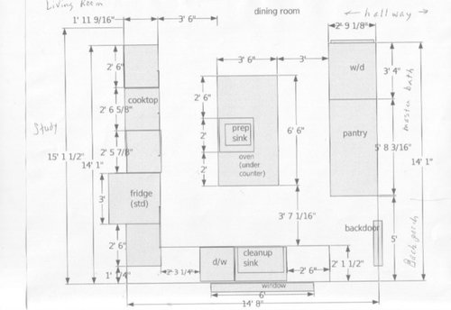
please review my kitchen design - not urgent but hope to hear
I feel very apologetic asking for feedback on my kitchen plan. I have been to Home Depot, Ikea is coming tomorrow - I bought their 2 hour design consultation which I am told by the store employee to expect very very little except for how cabinets can fit into an existing design. And we had a kitchen designer for a short time who helped but didn't seem to be what I needed.
So below is where my plan stands. I am not even talking to contractors about the kitchen yet. We are remodeling a bathroom and I am talking to them about that but thought I didn't want to tackle both projects at the same time so...
My biggest concern is about the aisles, everything seems to be such a tight fit across the "width of the kitchen". I really hope to have a 42 inch wide island (and 6.5 or so ft long). Not sure how much I can cheat the aisle space. There are only two of us and we don't entertain a lot but I do cook a fair amount.
My urgency doesn't seem to be as great as 2littlefishies so I'm not asking for a rush here but would like to hear if there is something missing. Lots I could write here but thought I would just post the plan and cross my fingers and hope to hear from someone.
There are some inflexible things I can't change (such as swapping the cooktop with the fridge) since there is an impervious obstacle (i.e.stairway) behind the cooktop- too long to explain at this point. Also, FYI - back porch is almost never used for though traffic. I use backporch to store recycle stuff - our main path to the backyard is through french doors in the masterbedroom where we have a deck just outside. Steps are easier for me to navigate. Yard is small - not for entertaining.
Bottom line is that I think I'm basically trading having a nice minimal width to the island vs the walk-in pantry that I always dreamed of and can't have if I must have the island. Tradeoffs -- oh well

Follow-Up Postings:
RE: please review my kitchen design - not urgent but hope to hear
I'm not a great layout person but what occurred to me was what about sliding doors on the pantry so you don't have to worry about the door swing into the walk way. What if you made your island 3' wide instead of 3'6 and added the six to the aisle?
RE: please review my kitchen design - not urgent but hope to hear
- Posted by: lavender_lass (My Page) on Tue, Jun 26, 12 at 23:13
Hi! I think this looks pretty good. The big window over the sink looks great and the fridge/cooktop layout works well, with the prep sink.
Are you planning to have stools at the island? If not, I'd make the island 3' across...one side with the cabinets and shelves on the other (facing the pantry). This would give you 42" on each side and more room for your aisles. You could slide a stool under the end of the island, closest to the dining room.
Have you decided on cabinetry, countertops, backsplash, etc? Will the island be the same as the perimeter cabinets and countertop? This has a lot of potential! :)
Just to clarify..there are cabinets on the left of the fridge side of the dishwasher and the other side of the sink? Just the opening at the end for the backdoor access? Is it a stackable washer/dryer...and does it open towards the kitchen...or dining room? Is the pantry all tall cabinets?
RE: please review my kitchen design - not urgent but hope to hear
Thanks very much, deedles. Sliding doors would probably work.
And 3 ft wide island seems "realistic" but I can't get past my "unrealistic" phase yet - seems like 42 inches would in a pinch be able to seat two small people or even larger people if it is a party and very informal and they are kind of squeezing the excess over to the side (hard to explain picture in my head, LOL). I am thinking of having an 18 inch overlap on the side of the island with the pantry which means seating a couple more people - avoiding the "stadium style" of seating I have heard about here.
Would like to hear from anyone with a 36 inch wide island to see how much they might regret not compromising somewhere else to have more than 36inch for their island. (I could shave some more inches off the pantry - 24 inch depth for a pantry isn't unheard of, right?)
Thanks very much for your feedback, deedles.
RE: please review my kitchen design - not urgent but hope to hear
Coming to the point of having a real plan (that I like fairly much) to upload to the Kitchen forum is a very major milestone. And on top of that, the first reviews seem to indicate that the plan isn't crazy so that is quite a milestone for me. THANKS! I must admit that I think the first plan I ever did (several years ago) which I thought I liked very much was kind of crazy with almost no natural light for one thing. Amazing how much one can learn in this process especially when lurking on the kitchen forum.
I think I will have stools at the island (or at least one for sure) since I have feet problems and I will want to sit if I have any extended prepping to do. I have wondered how many stools. Dining room is so close by and large TV in the living room is nicely viewable from the dining room that I suspect we will be spending much more time snacking at the dining room table rather than at the island in the kitchen BUT... my husband has had very few requests and he has indicated he kind of wanted a "bar" or penninsula set up for the kitchen (he's not the type to be insistant) so I thought having the end of the island as a very small bar might fit the bill for that. Though 36 inches seems disappointingly small. Funny how I have trouble figuring out what I want until I think it will be taken away from me, LOL.
I tried to do a regular bar configuration but every way I looked at a bar, the fridge and stove were too far apart and with my feet problem, I wanted to get as close to a "galley" configuration as made sense given the space.
LavenderLass - is 36 inches just too narrow even if the aisle will have minimal traffic? even if there is an 18 inch overlap on the island for any stools to tuck under? I really need honesty - if it were your kitchen, would you in no way accept an aisle that is only 36 inches wide (behind possible stools)?
Haven't decided on cabinetry except will have a contemporary look - will not be white (probably not) and upper cabinets will probably be those ones that have aluminum trim. Lower cabinets will be light stain - possibly natural birch. Not sure if shaker or slab. Countertop will probably be quartz - maybe Cambria.
I was thinking of butcher block for countertop of island except I think I may use the island counter more than anywhere and I do chop/prep a lot - I don't know if a well-used butcher block island would work with contemporary cabinets everywhere else?
Not sure about backsplash but every one I have liked on the forum ends up being the same shade of color as the countertop. I'd love to have a granite slab for backsplash and have it match the counters but think that is too much of a splurge for us - but haven't totally ruled it out - that is the fun part of being at the beginning before you see any bids.
LavenderLass asks "Just to clarify..there are cabinets on the left of the fridge side of the dishwasher and the other side of the sink?" If you mean the cleanup sink, I haven't decided - don't think I need them for storage - maybe a couple of open upper shelves on either side of the cleanup sink for esthetic puposes? Was thinking it might be nice not to have cabinets on every wall space? If it was your kitchen and there were only two people in the house, would you max out the cabinets? There are cabinets left and right of fridge - and another set right of cook top with drawers beneath everywhere they fit along that wall and a small bank of drawers across from cooktop. WOW! That is so much more than I have now, it is almost overwhelming, LOL.
and "Just the opening at the end for the backdoor access?" YES
and "Is it a stackable washer/dryer" YES and it will open towards the dining room (or actually towards the hallway just before the opening to the dining room.
and "Is the pantry all tall cabinets?" I don't know about this at all - have thought of pantry being a closet with shelves (including shallow countertop in middle) inside or also possibly as two rows of half cabinets with one level of cabinets across the bottom and one level starting at the midpoint and going to the ceiling. There is (or will be after bathroom remodel) a broom closet not too far away in the hallway so don't need to store brooms and such in pantry and don't need to store recycle stuff.
Though I'm thinking of possibly storing our microwave in the pantry. The cooktop will be induction and I'm thinking of having one of those "instant hot water" spigots installed next to prep sink making the microwave almost as an unnecessary appliance. But that seems kind of radical so haven't really decided.
Cabinets on both sides of cook top and both sides of fridge (if I don't use one of these cabinets for the microwave). I'm very happy to say that I'm pretty sure the storage as shown will be much more than I could possibly need for kitchen stuff - a good thing since the house is old and small with relatively little closet space so might borrow some of it for other things besides kichen stuff.
Sorry for the length here.
RE: please review my kitchen design - not urgent but hope to hear
Is plumbing move-able, in general? I'll guess you have no basement.
--
The cooktop can straddle two cabinets, leaving 12" countertop on the RHS and 36" countertop on the LHS. There are advantages to this, several. The obvious disadvantage is that feel you lost something on the RHS (while you are in the designing phase) but in reality you haven't lost anything at all.
--
36" is good for a straight aisle as yours. End to end, people move from an open area to a place where they open a door and walk out. Or vice versa, they walk in, close the door and cross a short distance to a big open area. Nothing will feel claustrophobic, or like threading the needle. Having not seen the adjacent areas' floor plans, I cannot comment about the possibility that several visitors sitting on high stools will impede flow if other visitors want to pass back and forth. Not likely to happen, even if you start holding a lot of open parties. But, one of your statements about the hallway to the dining room make me wonder what you meant. By showing the adjacent five or six feet of space around the kitchen, you will provide Very Important Information about traffic flow. No need to post a whole house plan.
It's not clear to me why the island stops before the end of the kitchen. You could continue it, narrower, until the line that marks the end of the kitchen space.
Ikea will tell you that their tall pullout pantry unit can be less than 24" deep. Or ikeafans.com people will tell you this. Can your washer or dryer fit in less space than 24" depth?
Look at the tall pullout cabinets on the Ikea web site. You put two or three side by side and you have a wall of pullouts (drawers). Your front piece can be any Ikea or other piece.
The picture here is not the best:
http://www.ikea.com/us/en/catalog/products/S89869638/vvv
In your drawing you have a lot of pantry space. This is one thing to reconsider.
Here is a link that might be useful: Ikea calls it
RE: please review my kitchen design - not urgent but hope to hear
My island is 39" deep by 57" long, and the only time I come even close to using the whole thing is with big dinners, like Thanksgiving. That's a really big surface. Also, if people were sitting on the other side as I worked I'd have no problem keeping my workstuff away from them and out of their drinks. If I were doing something exceptionally messy (I can be an exceptionally messy cook) I could just swivel and do that on the counter behind me--like keeping flying flour well away from the black velvet. Actually, though, even I've never had to do that.
RE: please review my kitchen design - not urgent but hope to hear
- Posted by: herbflavor (My Page) on Wed, Jun 27, 12 at 8:35
have your ruled out an in-turned peninsula at the top of left hand run? [depends on what is beyond in living/dining]The "bar and entertainment" things desired could function well there,as well a small sink. The island down at the bottom could now lose the sink,shorten to about 48 by 40 and actually have stools around 2 sides. The pantry-it's large-I'd split it-on the bottom end near outside door place cabinets and house the microwave either atop or below counter. That would be a better spot than mwave in pantry for me. The L shape of the two walls looks fine...maybe you ruled out the jog of a peninsula at the top, but it came to mind and could possibly work well with the dining area beyond,and "unload" some of the functions from the middle part of your kitchen. Then I wouldn't worry quite so much about widths.
RE: please review my kitchen design - not urgent but hope to hear
I think a 24'' deep pantry is too deep unless you have pull-out shelves. I like the idea of sliding doors for the pantry. Why don't you make the pantry go from the floor to the ceiling. The upper shelves could store those things that only get used a few times a year. I would do the same with the rest of the upper cabinets too.
RE: please review my kitchen design - not urgent but hope to hear
- Posted by: liriodendron (My Page) on Wed, Jun 27, 12 at 9:57
Some possibilities:
Move the w/d to somewhere else in the house and shrink the pantry space depth to about 12-14" along the whole wall. This would add space that could be used to increase the aisles perhaps as much as 4 to 6 inches apiece.
Narrower pantries are actually much easier to use as little can get lost behind other stuff. They are cheaper because you don't need expensive roll-outs. You could make them (with small mods) pretty inexpensively by stacking 12" deep wall cabs up from floor to as high you wanted. Accessing them while people are seated would always be a challenge, but perhaps you could plan so you have a single stool on the DR side of the island for when either you or your DH are hanging out while the other is cooking. Additional stools could be on the pantry side but mostly used for when you have guests (and maybe less likely to be getting stuff out of the pantries) or when the cooking is finished and both of you are seated at the island - one at right angles to the other.
Don't forget to plan for the 1 1/2 -2" of counter overhang that protrudes into the aisle space from the front plane of the cabs. (This is only where you aren't having a larger overhang for seating.)
Consider a range instead of a cooktop to get the oven under the cooktop in oder to reduce cross-aisle movement carrying hot items from one to the other and also (probably) raise the oven up a few inches. Ranges are usually cheaper than cooktop and separate ovens, as well. So can save some $$ or upgrade it a bit.
Your drawing is a little confusing: is there a walkway through the counter area near the DW? If not, then close the counter run up and add work space. If there is an opening/walkway, it's a almost too narrow to be useful. Where would that opening lead to?
I'd consider moving the DW to the other side of the sink in order to not have a drop down door blocking the aisle at the corner and within the action zone.
Going back to the island - I wouldn't stay rigidly fixated on any particular inch measurement. Losing an inch or two (if it makes yoyur aisles more workable) is OK. Some additinal suggestions: if you move the undercounter oven and choose your prep sink very carefully and get 21" cabs instead of 24" deep cabs (or modify 24" cabs) you can have the kind of overhang your thinking of, but truly, the comfort factor for say 17" overhang vs an 18" overhang - if it comes down to that - doesn't signify. But having your aisles too narrow to work in will be a permanent irritant.
Still, you should search for pictures and commentary here about aisle widths. There is a fantastic kitchen by farmgirlinky where the aisle width between the cleanup sink and and an island is only about 36" and it looks great and works well. Her other aisle, between island and range, is wider, however.
Another ergonomic factor to consider when dealing with minimum clearances would be if the expected users are very large people. I am quite short so my comfortable dimensions for bending over and lifting something out of the oven in a 42" aisle (without hitting my backside on the opposing counter) are shorter than my very tall husband's.
Whenever you're in doubt about clearances do two things: make a scale drawing on graph paper and make an actual sized mock-up using large cardboard boxes and such to see how it feels to move around in the space.
If you make (and post) a measured drawing on graph paper, you'll get more suggestions that won't waste time proposing ideas that may not work. It's a tremendously useful and easy thing to do to make sure you're not putting in more than can be accommodated in the space you have to work with. Line drawings can lead you far astray.
HTH
L.
RE: please review my kitchen design - not urgent but hope to hear
Hi Elphaba,
This is a personal thing, because we are all different and what bothers one person is nothing to another ... but honestly, I would be worried about those 36" aisles being too narrow.
Our own kitchen is still a work in progress, but I gave this a lot of thought for us! I spent ages measuring out spaces and bending down trying to pretend I was opening cabinets etc... LOL Hopefully one day soon there will be holograms! :-)
Anyway, I would be concerned that your pantry side might feel claustrophobic, as this will be walled or floor to ceiling cabinetry, right? I think that the other side might be more forgiving, as the upper and lower cabinets will give a greater illusion of space. You eye will be looking back into the backsplash... I hope that you know what I mean! I have stood between a few islands with floor to ceiling cabinetry 3 ft behind me and it did feel very close. A bit oppressive! Your front doorway is probably about 3 ft wide. Stand there and see how that feels... Maybe it might not bother you at all!
My other concern would be that you would have enough space when opening your oven... Could you pul the door down and comfortably bend down in that space...? I think that it would be very tight and no-one would be able to pass. I don't think that anyone could use your fridge at the same time either...?
Also looking at your fridge, I presume that it is hinged on the right (as you stand in front of it) as most are? How big is the door swing? Because to use the fridge, you will might have to squeeze in for a fairly wide door swing...?
I don't mean to be a downer, and maybe these things won't bother you and your DH at all! But you did ask for honestly!
If you have your heart set on the island, I'm afraid I would take it in a bit... But I would maybe consider reconfiguring it with a peninsula instead.
Good luck with your project! It will be worth all the angsting in the end!!!
All the best,
Ruth
RE: please review my kitchen design - not urgent but hope to hear
ps You might be interested to see Laurajane02's recent posted about aisle widths and fridges... She has 42" and is concerned that that is too narrow...
RE: please review my kitchen design - not urgent but hope to hear
Thanks Davidro - Plumbing is moveable - cooktop will be induction/electric so no gas lines. Hadn't thought of advantages of 36 inches of countertop to left of cooktop and right of fridge. Though I had thought of the 30 inch countertop adjacent to dining room might be nice to put a tray on that has a wine decanter and glasses and ice bucket, etc. - though I guess that is what a buffet in the dining room is for.
My skills at google sketchup graphics aren't the best but I will try to make a diagram that has adjoining areas as you suggest - hopefully by tomorrow, I might have that.
VERY glad to hear your opinion of the 36 inch aisle - I'm inclined to think it adequate, maybe not optimum but adequate.
Having the island stop where it does and not extend it to the end of the kitchen near the dining room was just a guess. I thought since I didn't think I needed a larger island, I might as well keep it shorter. And that means if someone is sitting at the end of the island (next to the dining room), they won't extend out too much and any traffic from hallway won't be impeded but then of course since I haven't given much info about that hallway, that isn't clear from diagram - hopefully it will be clearer when I do the new diagram with more surrounding info.
Current Washer/gasDryer stack is 27" wide by 35" deep - will face the hallway and it won't fit in a 24 inch space - but I have thought that I could buy two new machines that were smaller if that made any significant difference to my options. There is even a chance I could put the w/d stack in the hallway outside the hall bath that is being planned - if that helps things a lot. But more plumbing if I do that last option. There is still plumbing if I put them where they show on the diagram but not as much plumbing.
Davidro - thanks for your input on the pantry - currently I have the luxury of using what used to be a butler's pantry - pretty much like a large walk in pantry with a nice countertop - I don't use it very efficiently but that space will be confiscated by the "study" in the new plans so I have to downsize. I like those tall Ikea cabinets - would that be your preference over a "closet" with bypass doors and with numerous interior shelves with middle shelf functioning as shallow countertop for small appliances maybe? (and lower shelves having "trays" that pull out?) I really don't know much about what is optimum here but I'm glad to hear that you think 24 inches deep for the pantry is good. Your comment seems to think that pantry may be too large? Because another option would be to reduce width of pantry and add cabinets or shelves outside the pantry next to the back door (as you go out the back door, shelves/cabinets would be on your left) - this would reduce pantry width by 13 inches or so? Is there an advantage to having multiple little pantries vs one big space for pantry (in terms of width)?
rosie - thanks for your input on the island - I think the planned length of my island which is 6.5 ft is plenty long but I think 36 inch width is too narrow. Maybe I will compromise with what you have at 39 inches (instead of 42 inches on my plan now - does that 39 inches include countertop overlap of inch (or so) on either side or is your 39" depth of island taking into consideration only cabinet/shelves space beneath?
Herbflavor, bill102, liriodendron, and Ruth - I'm still processing your great feedback. Now thanks to Herbflavor (and Davidro), I'm thinking of moving the washer/dry and having pantry only 12 inches deep giving me extra inches for aisle - will read the other post by laurajane on 42 inches maybe being too narrow for an island - and also plan to revisit "bar/peninsula" ( hoping it doesn't put too much distance between sink and fridge - (seems like there was too much central walking around space with the bar (causing problems with my limits due o feet problems..more to think about)
And Liriodendron - I thought 43 inches in front of oven would be adequate - will need to think more about this. I will be using mostly a toaster/convection oven that I love which I plan to have out on the countertop between the fridge and dishwasher - I use this almost 100% of the time - stay tuned while I process some more - Ikea lady is here for her input
and THANKS VERY much for all this stuff to think about. Glad I have the time to get this right with all the help from you guys.
--Alice
RE: please review my kitchen design - not urgent but hope to hear
I just told the ikea person in my house doing a design on the computer to scrap the washer/dryer - instead (for now on paper) putting the microwave and wall oven on that side (near the back door) -
24 inch deep pantries to the left of the wall oven along that wall. Reducing depth along that wall now gives me 9 more inches to play with regarding the aisle and island width and countertop edge overlaps.
My only other concern is that several seem to think 24 inches is too deep - if these are Ikea tall cabinets - hopefully accessibility will be good - though not sure how to store small appliances such as crockpot(s), blender(s), toaster(seldom used but still nice to have), dehydrator, etc.
What about one 24 inch deep Ikea pantry and adjacent to that another 24 inch deep "closet" with countertop inside for appliances (and shelves above and below)?
RE: please review my kitchen design - not urgent but hope to hear
- Posted by: lavender_lass (My Page) on Wed, Jun 27, 12 at 11:47
What about something like this, instead?
{{gwi:1910231}}From Cottage house plans
You would have the range and prep sink in the same zone, with the pantry by the fridge. And, I added a few upper cabinets by the fridge and one side of the sink. The range could have narrow uppers or just a hood and backsplash. And...room for at least three stools :)
RE: please review my kitchen design - not urgent but hope to hear
Are you measuring your aisle widths cabinet-to-cabinet or counter-to-counter? Counters come with overhangs (Of between 1-2") which will shrink your aisle widths.
My pantry is 24" deep with stationary shelving up top and roll out shelves on the lower part.
It looks like you are doing an 18" overhang for you island seating - I can't figure out if it matters but 16" should be enough.
RE: please review my kitchen design - not urgent but hope to hear
The bigger chunks of layout are the ones to think about first. Then the fine grained pieces of layout after that. So, first is whether the W/D stack goes here there or somewhere down the hall. Much much later we talk about the decanter, the backsplash, etc.
Do not mix the two levels of granularity in the same discussion. Get the big chunks in their big-chunk place first, and then start bringing out the details. Avoid mentioning the details (e.g. even the nice little countertop oven is a detail, at this stage of the discussion) until you get the major elements in their "right" place.
elphaba all these incoming ideas in this thread are ignorance-based because we cannot see what lies beyond the imaginary line that ends the kitchen in your drawing. We don't know How much is a tight space hallway, how much is open, etc.
Doors and "traffic" are major things. But, in your house there is not much traffic.
RE: please review my kitchen design - not urgent but hope to hear
Lavender Lass - thanks for the diagram with the penninsula - but fridge and stove further apart than I would like. I don't walk very well and I use a LOT of produce so too much walking around room I think.
But will show this to my husband and if he indicates he MUCH prefers - will rethink this option (he doesn't spend much time in the kitchen so his voice isn't the loudest...) stay tuned..
blfenton - yes I've heard about those little overhangs - I think thanks to this forum that I've come out of my dream land and realize aisle space is not enough in the original diagram I've posted -
contractor is coming this afternoon about the bathroom remodel and I plan to talk to him about moving the washer/dryer to the hallway outside the bathroom which is on the other side of the hall from the kitchen.. stay tuned
RE: please review my kitchen design - not urgent but hope to hear
- Posted by: lavender_lass (My Page) on Wed, Jun 27, 12 at 12:50
Elphaba- I can understand not wanting to walk too far between appliances. This may be out of the budget, but a fridge drawer (or undercounter fridge) in the peninsula might help with produce...and you could keep the temperature just right for those items.
RE: please review my kitchen design - not urgent but hope to hear
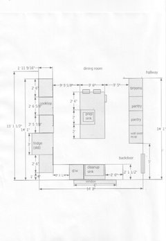
As requested earlier from Davidro who wanted to understand traffic flow, below is a whole house "sketch" which shows our first floor layout (upstairs is only a loft) and second diagram is where I'm at with regard to kitchen design after input from you guys and after Ikea consultant/designer who was at my home today gave as far as cabinets fitting.
Also, from the earlier discussion, I had some confusion about whether I could relocate the washer/dryer to the hall. The contractor who visited today didn't have any problems with the relocation. It helps a lot that our foundation is "pier and beam". Moving plumbing around is a whole lot easier. New location of washer/dryer may be a bit claustrophobic in the hall way outside the bathroom but I only do laundry a couple times a week for short spurts. I'm in the kitchen a whole lot longer and since the relocation of washer/dryer is the only thing keeping me from having the kitchen layout I REALLY wanted from the beginning (barring the fact the pantry has gotten quite a bit smaller), I am a happy camper.
I'm going to lie low a while and get our bathroom done and maybe a roof before I come back with any updates on the kitchen.
And for anyone who is in doubt, the Ikea prices for all cabinets is half of what price was quoted for Innermost cabinets by Home Depot. And the Ikea quote includes several of the appliances though I'm not sure yet if that is how I will really go. But cabinets -yes - their prices are too good to pass up. The money we save can go for the bathroom we're getting that has a curbless shower, and several other expensive details which Ikea can't help us out on.
I'll still be listening but hopefully everyone can see the aisles around the island are considerably wider (maybe even too wide with my feet problems). If I need more pantry space, I'm fairly sure that several of the drawers in the main part of the kitchen will not all be used so I can use them for pantry space spill over if there is any.
THANKS AGAIN (though I will definitely be back - still need to pick out countertop/backsplash/flooring/hoodOverCooktop and make decisions about appliances..)
And since I haven't marked it well, let me explain that there are upper cabinets on either side of the cooktop and also to the left of the fridge. No uppercabinets on the sides of the "cleanup sink" with the large 6 foot wide window. Think I may wait until kitchen is done and probably install some open floating shelves on either side of cleanup sink - more for esthetics than function but I think I can wait until the last minute for that. (Maybe even some art work...)


RE: please review my kitchen design - not urgent but hope to hear
- Posted by: farmgirlinky (My Page) on Sat, Jun 30, 12 at 18:20
Our island is long and narrow (just 33" wide), with 36.5" aisle on one side and 34.5" on the other! The custom Julien utility sink is 2x2 square and accessible from both sides of the island, and therefore also easily reached if you are working at the range on one side, or at the long run of counters on the other side. (There's also a prep sink in that long run of counters.) During clean-up one can lean against the range holding a glass of wine and chat with the poor soul scrubbing pots, face to face. (There is no backsplash at the utility sink.) The faucet is a profi-style one, sidemounted so that it can be used by a person on either side of the narrow aisle, whoever gets to it first, either left-handed on one side or right-handed on the other. The dimensions break all the rules, and my husband and I just love the way the kitchen works, so I say chuck the rules if you have a need to do so. If there were a problem, it would be this: every morning I have to circle around the island to the filtered faucet to fill the teakettle -- the utility faucet is unfiltered. If this bothered me enough, I could put a filter on the utility faucet but I just am not bothered by the occasional trip around the island. Ask me again in twenty years -- but by then I'll need the exercise!
Some of these aisle width guidelines seem to me to build in extra steps. I should also say that the layout of our kitchen encourages visitors to be off to one side at the kitchen table -- all very cozy. It IS important to consider the flow pattern. My darling cousin Tandy recommended to me that I rehearse a Kitchen Ballet before locking in the layout of our kitchen: imagine coming home with bags of groceries, unpacking them, cooking, washing up, loading the dishwasher, unloading the dishwasher -- it was a helpful reminder. Our kitchen has turned out to be a stepsaver. It is possible for a kitchen to be too big.
Lynn
RE: please review my kitchen design - not urgent but hope to hear
- Posted by: lavender_lass (My Page) on Sat, Jun 30, 12 at 18:39
I like this plan much better! Moving the washer/dryer makes such a difference and the wall oven/microwave is going to be great :)
The seating at the island seems to be a better fit and I do like the fridge near the cooktop and the prep sink is so handy. This layout makes more sense with your house plan, too.
Plant room...I would love to have one! Any pictures?
RE: please review my kitchen design - not urgent but hope to hear
I have 42" aisles and I wouldn't want them any wider where there's no seating. You could give the extra inches to the aisle with the seat.
RE: please review my kitchen design - not urgent but hope to hear
- Posted by: andreak100 (My Page) on Sun, Jul 1, 12 at 7:59
Your kitchen width is 11" more than ours. And I am one that will have 36" aisles in the kitchen. We will have a narrow island (24"; with countertop 27")
I just returned from a trip with to IKEA with a tape measure in hand (or you can use one of the paper ones they have, but they are only a meter long, so for the wider aisles, you are sort of fudging a bit when measuring).
They have several kitchens set up, many with islands. And their aisles in the kitchens are varying widths! It was an excellent way for me to get a feel for what different sized aisles would work like. I hung out in them for a bit, opening and closing drawers and trying to envision myself working in the kitchen...not so much in terms of layout, but in terms of navigating the aisles.
My findings, which could be different for everyone - 36" IS workable. And that is definitely without the possibility of someone seated in that aisle area...if someone were seated, and you were trying to open a drawer (or pantry with roll-outs), that extends approximately 21" into your aisle, leaving you with just 14-15" for the chair and the person...you would need to be off to the side and all in all, I would say it would be messy.
Also worth noting, while "workable", it can be tight, particularly if you want to stand in front of a drawer bank and open the bottom drawer (top to middle ones, weren't so much of an issue). At around 39-40", I felt that it was comfortable to open drawers. Interesting to experience how even 3" makes a difference in an aisle!
In our kitchen, I don't really have the luxury of opening up our aisles wider (going minimal width island already) and we will wind up around 36-37" for our aisles.
As mentioned, make certain that you are measuring from countertop to countertop because if from cabinet to cabinet, you will have 3 less inches than shown on your layout.
Post a Follow-Up
Your Name:
Your Email Address:
Subject of Posting:
Message:
Optional Link URL:
Name of the Link:
A copy of your follow-up will automatically be emailed to the original poster.
Return to the Kitchens Forum










deedles
lavender_lass
Related Professionals
Everett Kitchen & Bathroom Designers · Hillsboro Kitchen & Bathroom Designers · Mount Prospect Kitchen & Bathroom Designers · Cleveland Bathroom Remodelers · League City Bathroom Remodelers · Londonderry Bathroom Remodelers · Salinas Bathroom Remodelers · Joppatowne Bathroom Remodelers · Effingham Cabinets & Cabinetry · Fort Lauderdale Cabinets & Cabinetry · Jeffersontown Cabinets & Cabinetry · Key Biscayne Cabinets & Cabinetry · Tinton Falls Cabinets & Cabinetry · Liberty Township Cabinets & Cabinetry · Soledad Tile and Stone Contractorselphaba_gwOriginal Author
elphaba_gwOriginal Author
davidro1
rosie
herbflavor
bill102
liriodendron
Ruth_123
Ruth_123
elphaba_gwOriginal Author
elphaba_gwOriginal Author
lavender_lass
blfenton
davidro1
elphaba_gwOriginal Author
lavender_lass
elphaba_gwOriginal Author
farmgirlinky
lavender_lass
dilly_ny
andreak100