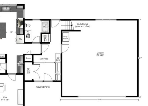
Critique my garage entry/mudroom/bath layout
10 years ago
Featured Answer
Sort by:Oldest
Comments (23)
- 10 years ago
- 10 years ago
Related Professionals
Ann Arbor Architects & Building Designers · South Pasadena Architects & Building Designers · Chula Vista Home Builders · Prichard Home Builders · Salisbury Home Builders · Anchorage General Contractors · Beloit General Contractors · Cedar Hill General Contractors · Fitchburg General Contractors · Flint General Contractors · Palestine General Contractors · Panama City General Contractors · Poquoson General Contractors · Richfield General Contractors · Seal Beach General Contractors- 10 years ago
- 10 years ago
- 10 years agolast modified: 10 years ago
- 10 years ago
- 10 years ago
- 10 years agolast modified: 10 years ago
- 10 years ago
- 10 years ago
- 10 years ago
- 10 years agolast modified: 10 years ago
- 10 years ago
- 10 years ago
- 10 years ago
- 10 years ago
- 10 years ago
- 10 years ago
- 10 years ago
- 10 years ago
- 10 years agolast modified: 10 years ago
- 10 years ago
Related Stories

MOST POPULARA Colorful Place to Whiten Whites and Brighten Brights
This modern Minnesota laundry-mudroom gets a smarter layout and a more lively design
Full Story
ENTRYWAYSCorral Your Gear with a Makeshift Mudroom
Turn a nook or entry into an organized drop zone with cubbies, storage bench and a couple of coat hooks
Full Story
ENTRYWAYSThe Most Popular Entry Photos of 2015
Readers find inspiration in organized mudrooms of every shape and style
Full Story
HOUZZ TOURSHouzz Tour: Pros Solve a Head-Scratching Layout in Boulder
A haphazardly planned and built 1905 Colorado home gets a major overhaul to gain more bedrooms, bathrooms and a chef's dream kitchen
Full Story
KITCHEN OF THE WEEKKitchen of the Week: More Storage and a Better Layout
A California couple create a user-friendly and stylish kitchen that works for their always-on-the-go family
Full Story
THE HARDWORKING HOMEHow to Design a Marvelous Mudroom
Architects and designers tell us how to set up one of the toughest rooms in the house
Full Story
BATHROOM WORKBOOKStandard Dimensions and Measurements for a Primary Bath
Create a luxe bathroom that functions well with these key fixture dimensions and layout tips
Full Story
MUDROOMSHouzz Call: We Want to See Your Hardworking Mudroom
The modern mudroom houses everything from wet boots to workstations. Proud of your space? Inspire us with your photos and tips
Full Story
MUDROOMSRoom of the Day: This Mudroom Is Just Plain Hot
Wait till you see what’s behind the hooks and bins in this genius family drop zone
Full Story
MUDROOMSRoom of the Day: A Most Important 5- by 14-Foot Space
This busy mudroom is a lifesaver. Here’s how the designer found the space and made use of every inch
Full Story








mrspete