Please critique and help me improve our layout
All ye GW kitchen layout gurus, we need your help.
We’re planning a total gut and expansion of our tiny kitchen. I’ve been playing with various layouts, tossing one after the other, the one below is the lone if somewhat imperfect survivor. I’m asking you all to critique this plan, as I really need different sets of eyes (and brains) to help me see if and what needs to be changed/improved to achieve the most functional space possible.
Our house:
3000 sqft, A modern 4 bedroom in a Northshore Chicago suburb. We bought this house for its many large windows and sweeping views of the back yard. The house was built as a passive solar house back in the 60s, and functions as such beautifully. In summer - due to the shaded windows - the house stays quite cool without us turning on the AC, while during winter when the sun sits low in the sky, sunlight streams through the whole house, so that on the many sunny, but bitterly cold days, the heat barely ever comes on. We absolutely love this house, except:
The current kitchen: it's really tiny, smaller than in our first city house, and the cabinetry and layout are dysfunctional.
About us:
DH and I both cook and bake. Our 2 kids are grown and mostly moved out. They and other family members stay with us for extended periods of time (up to 2 weeks). The kids cook when they're here and at xmas bake up a storm. We have friends over fairly regularly (2-8 people max) and once a year in summer we entertain a larger crowd outdoors.
We’re planning to retire and move to milder climes in about 5 - 8 years.
Our goals:
Expand the kitchen (3-4x!) to make it proportionate to the house. We’d like to be able to cook together comfortably as well as socialize with friends, serve appetizers/drinks when we entertain, etc.
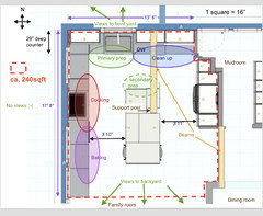
We want to take advantage of the views into the backyard and front yard, especially while prepping and clean-up. We’re planning for a large prep sink with accessories such as cuttingboard, colander etc. and views towards the front yard, plus another prep zone that faces towards the family room and people, and views to the backyard.
Few wall cabinets, they make me feel boxed in. We want to keep three of the four west wall windows (despite there being no view through these) as they give us lots of light.
We both like to bake and want a separate area to roll out dough, use the mixer and cookie sheets and in general make a mess without encroaching on the prep areas.
Cabinetry:
Most likely we’ll go with Ikea boxes. Mostly drawers, some pullouts for base cabs.
Appliances:
36" induction cook top.
42” -44” range hood
30” or 36” oven
36” fridge - counter depth. The bigger the capacity of the fridge vs. the freezer, the better, we have an additional freezer in the basement.
Drawer type MW in pantry or island, if not, inexpensive MW with pull-out shelf underneath.
Dishwasher: Bosch or Miele - one of the super quiet models.
1st floor blueprint:

Potential issues with the plan below that we think we can live with but we'll probably get an ear full from you all:
Clean-up area is btw. fridge and sink/prep. We think we’ll be able to live with this, as we almost always clean up after meals, not during cooking.
Island btw. fridge and cooktop/oven. We’re thinking that this won’t be much of an issue for us, since we start preparing meals by gathering all the ingredients first. So the veggies go to the sink, all other foodstuff gets placed on the island. Later, those foods can be reached from the cooking area.
Please note: 1 square = 16" (go figure!)

Thoughts?
Comments (43)
- 10 years agolast modified: 10 years ago
Provided that the door will still open, I'd push the fridge toward the corner, and try to shorten the end of the island closer to the sink, to keep the island from creating so much of a barrier between fridge and range. Shortening the island will also leave a little more work space in the clean-up aisle.
User thanked mama goose_gw zn6OH Related Professionals
Bethpage Kitchen & Bathroom Designers · Georgetown Kitchen & Bathroom Designers · Henderson Kitchen & Bathroom Designers · Midvale Kitchen & Bathroom Designers · Pike Creek Valley Kitchen & Bathroom Designers · San Jose Kitchen & Bathroom Designers · Glen Carbon Kitchen & Bathroom Remodelers · Lyons Kitchen & Bathroom Remodelers · Middlesex Kitchen & Bathroom Remodelers · Westminster Kitchen & Bathroom Remodelers · Christiansburg Cabinets & Cabinetry · South Gate Cabinets & Cabinetry · Elmwood Park Tile and Stone Contractors · Santa Monica Tile and Stone Contractors · South Holland Tile and Stone ContractorsUser
Original Author10 years agoherb - Our minds work very similarly. Your suggestions match my first layout exactly, one that I eventually didn't pursue. Yes, this layout hits a lot of points: Views while prepping on the island and at the sink and while seated. I abandoned this layout as the prep island just ends up too small, and looks somewhat forlorn in the space, and is now further from the sink, necessitating a prep sink, which will make the available work surface even smaller. Also, the peninsula encloses the kitchen space a bit too much for my taste. But, yes, it might work with a bit of tweaking, so it's back in the running, we're definitely going to consider this layout again.


The fridge is surrounded by tall pantry cabinets. Drawers as high as possible, thereafter pullouts and then shelves or maybe wire baskets up top. Having few uppers, I think we really need to keep these tall pantry cabs. Also, I like how they camouflage the fridge.Glasses and everyday dishes etc will be stored in open cubbies and/or shelves on the right of the sink. Hubby and I drink filtered water from the faucet during the day, no sodas/juice etc. so it'll be a quick beeline to the sink for a refill.
Yes, If at all posssible, I would rather not mar the surface of the island with a prep sink.

Hope the above pic shows the type of cabinets planned.
User
Original Author10 years agomama - yes, the fridge can be moved closer to the north wall by the width of one 15" wide cabinet. The reason I centered it in the pantry is that it allows the landing space to be on the island vs. the "dishes/glassware" zone.
It might be more complicated to shorten the island. It'll depend just where exactly the support post will end up. We can hack the cabs of course, but only so much, before affecting the ability to install drawers. Where I have drawn in the support is, where to the best of our knowledge it'll end up. I'll battle the Ikea planner some more tonight, see what I can do.
- 10 years ago
What are the dimensions of the existing kitchen? having trouble reading the blueprint.
User thanked sheloveslayouts User
Original Author10 years agobenje - Sorry about the crappy quality of the blueprint. Hopefully this one will be easier to read.
Currently the kitchen is ca. 80sqft

- 10 years ago
so do the family room and dining room now become one area?...I'm looking at the orange dotted lines......? isn't there more space beyond those lines? You had a very large dining room...where is it going ....what is the overall new footprint?
- 10 years agolast modified: 10 years ago
Can you move the back door and change the layout of the powder room? I believe this powder room configuration needs a minimum interior of about 32 inches wide by 72.
If the house is modern in style, I think it would be best to have straight walls like this if you can make it work:

ETA: If your powder room toilet is presently on the exterior wall, you may not have to move the toilet plumbing, which would be great for the budget.
User thanked sheloveslayouts User
Original Author10 years agoherb - ehh, no, we are just increasing the size of the opening between the kitchen/family room and the dining room. Currently the opening is only 32" wide, we're doubling that to 64". This change is already present in the new plan posted above.

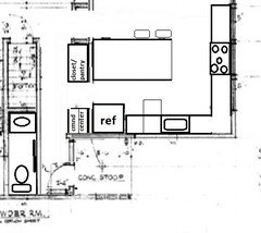
Here the bird's eye view of what you suggested, and was actually our first layout:
User
Original Author10 years agoBenje - thank you, great idea, wow, that looks sleek. I'm on my way to work, will ponder and get back to you later.
- 10 years agolast modified: 10 years ago
I don't have a clear understanding of your dimensions, so this is a very rough sketch of something to try if you can change the backdoor and powder as suggested above.
Instead of widening the entry between kitchen and dining (which might negatively impact the overall design of your house) I added an opening toward the back door. There's a command center near the door for a spot to drop your purse/keys. The fridge is accessible without walking through the primary work spaces. Large peninsula backs up to the closet. You've got ice-water-stone-fire. But again, not sure if it works with your dimensions.

User
Original Author10 years agoArrgh.. it's been a long day, sorry for my late response.
Benje - I'm so impressed with how you see the bigger picture. You immediately see so many possibilities to improve the space further. Thanks so much!
Alas, we really can't move any more doors, nor move the toilet. The reason of course: cost, and the relatively short time before we will retire and move/downsize. I know, it seems such a small thing to do. Move a door here and a toilet there... but it all adds up, and the consequences of each "little thing" add up. For example, the house is clad in cedar siding from the 60s. Very nice, but... currently available cedar siding has not the same dimensions any more, (width and thickness/angle) so moving a door and matching the siding gets complicated and expensive in a hurry.
Also, we've already started to gut the powder room and will start to rebuild it on a smaller footprint. This will give us room to move the washer/dryer into the leftover space. We would like the powder room completed, the W/D out of the mudroom and in its new location before we start the kitchen rehab. (Btw. we're not moving the laundry into the 2nd floor, there just isn't a good spot for it without more major remodeling.)

Regarding the mudroom: I really like your suggestion regarding straight lines in a modern houses, You got me thinking: I believe we should be able to hide some of the "zig zag" of the mudroom/kitchen wall by diy-ing shallow built-in shelves and/or storage cabinets.
I absolutely love the kitchen layout or your 2nd plan. Oh, the difference a couple of feet can make in a kitchen....This layout would be ideal if... we didn't have a need for a separate mudroom. In fall we track in wet leaves, in winter snow boots leave black puddles from melting snow. In spring, muddy boots leave dirty shoe prints behind. I'd be forever cleaning the floor, since it would be visible from the kitchen. Also, we live in a family neighborhood, potential future buyers will in all likelihood have children. In our area everyone will expect a mudroom, it doesn't need to be as large as the current one, but it does need to have lots of storage. In addition to kid's backpacks, there needs to be room for winter coats, snow boots, and snow pants, a space for hats, mittens, gloves and scarves. Raincoats, rain boots, umbrellas and more. I do think a door is essential to keep it all contained.
Regarding dimensions: odd, there are barely any on the architect's blue prints. Tomorrow pm I should have time to add some key measurements.
In the meantime, thanks so much and good night!
- 10 years ago
Have you considered moving the kitchen into the family room and making present kitchen a family room/den?
- 10 years agolast modified: 10 years ago
Okay. Now, this is what I'm thinking... If mudrooms are important in your climate, and if your potential buyers are going to be families, I don't know that it's the best idea to compromise your mudroom/laundry/bathroom for the kitchen. Your existing formal living room looks large on paper and I'm wondering if it could be used as formal living/dining. If your dining room could be used as your family room, if your family room could become your kitchen, and your kitchen could become an office/den/study. It would spare your nice big laundry/mudroom and get your kitchen closer to those backyard views in a bigger area with more walls for appliances and cabinets.
Can you rearrange the purposes of your rooms like this?
\
User
Original Author10 years agolast modified: 10 years agoBenje - you're dangerous! LoL! You opened a pandora's box! One I/we thought we had firmly closed. You're getting us to consider moving rooms around again, ideas we played around with over the years.
Sorry, I/we need a bit more time to consider these ideas, I'll get back with drawings of those ideas, previously abandoned for various reasons
THANKS!
- 10 years agolast modified: 10 years ago
It's funny to be called dangerous. Blowing up renovation budgets is as crazy as I get. I'm the most risk averse person you'll ever meet :-)
Your home sounds wonderful. I'm very drawn to 60s modern homes.
if it works with the house's aesthetic, I think you'll get a better return on your investment if you can repurpose the rooms.
Another dangerous thought..,if there is any way to squeeze in a shower where you're planning to put the stacking washer and dryer + the existing broom closet, and if you can steal away space behind the back door for a closet, the area I proposed as an office could also become a main floor bedroom. Not sure about your area, but main floor bedrooms of any kind seem to be in increasing demand here.
If you can add an office/small guest room and increase .5 bath to .75 you likely get a nicer return when you sell. Not to mention just a more functional space to enjoy yourselves.
User
Original Author10 years agolast modified: 10 years agoBenje -
I love it you when you're dangerous!
The additional shower that makes a 5th bedroom possible. Genius!
We never once thought of it, dumb us.
To understand the quirky nature of our house (and my locating the kitchen at the north end of the current living room), it helps to know the house's history and its placement on the lot. Here is the house as originally planned by the home owners/architects: (They, nor the village permit people knew of the ancient village sewer on this and the neighboring properties.) Yes, I know.... incredible!

They literally hit the sewer when digging for the foundation. Of course, the presence of the sewer line made the east side of the lot partially unbuildable. They were forced to move the house closer to the western lot line, and moved the driveway to the east side of the house (over the sewer), and built the garage further back at a permissible distance from the darn sewer:

This explains the weirdness of the long distance between the garage and the mudroom/kitchen spaces.We always thought the architect should have redrawn/flipped the interior horizontally before building. Alas, he did not, which is why, from time to time in conversations with each other, we've played musical chairs with the rooms. Our preferred version was always this one below: (exception 5th bedroom and additional shower - we never once thought of it):

We abandoned this plan due to the extra cost of electrical and plumbing (a new vent stack will need to run through one of the bedrooms). We were not aware of the structural nature of the walls we were going to move/open btw. kitchen and mudroom and FR and DR.
We were so deep into enlarging the existing kitchen, it never occurred to us to go back and reconsider our initial ideas. Until now.
The thing is, the above layout hits most of our goals for the house.
Pros and cons:
Kitchen:
Pros:
- No need for structural work.
- Shorter grocery haul. Much closer to the garage or my parked car in the driveway.
- At 10' x 14' this is a much larger space than what we have now.
- Cooler east side location, sunny for breakfast!
- A bit more open to dining room.
- For convenience's sake: no need to demolish existing kitchen before the new kitchen is completed .Yay!
Cons:
- At 14' long it is 2 1/2' feet shorter than my planned kitchen with its recessed pantry/fridge into the mudroom.
- Longer distance to mudroom/broom closet etc.
- Longer distance to dining table in backyard.
- Plumbing/electrical cost increase.
Living room:
Pros: None
Cons:
- Looses the fire place.
Dining room:
Pros:
- A bit more open to kitchen.
- My favorite room in the house stays in the favorite location for it.
Cons: None
Family room:
Pros:
- Gains a fire place.
Cons: None
Mudroom:
Pros:
- Laundry can stay (we need only reorganize).
Cons:
- Odd location, leads to living room.
Bathroom, formerly also known as powder room:
Pros:
- Without the planned W/D, this space gains room for a shower!!!
- Makes 5th bedroom possible.
- Adds value to house: We'll have 3 whole bathrooms!
- No need for a pocket door to close off toilet area from laundry.
- Clerestory window can stay.
Cons: None
Office/5th bedroom, formerly also known as office/music area
Pros:
- Adds property value, wow, wow, wow!
Cons: None!
Thanks so much Benje!
So you can picture our place a bit better, here are some pics of our house.
East and North side: (passive solar, no windows on north side).
My House · More InfoNote to self: take some pics of backyard/south side of house! In the pic there are rubber balls on the lawn. Our kids are in their mid to late twenties! :-)
My House: 60s passive solar house by architect Ronald Stahl · More Info
Our house · More InfoTotally unstaged living room. Luckily, the ugly track lights are long gone:
Haha, longest post ever. Hats off, if you made it to here.
My House · More InfoI will post kitchen plans for the new location on a new thread.
- 10 years ago
Thanks for posting pictures of your home. It's wonderful!
Is this alcove significant?

User
Original Author10 years agolast modified: 10 years agoThanks, Benje, we think the house is quite wonderful too.
We know there is ductwork inside that short wall. Unless it can be rerouted, the wall will have to stay.

- 10 years ago
Here are a couple more thoughts on that 5th bedroom.
If you can put the door next to what looks might be a laundry closet, it'll be more direct to the bathroom. Also, when looking down the brick walkway, it would be better to look at a wall than a door to a bedroom.
Because the room is so small, the doorway positioned below preserves as much clear floor space as possible because the door doesn't swing into the room.
A nice big closet with doors that don't swing too far into the floor space would be a great asset; store everything in the closet and you only basically need a bed or a desk in the bedroom proper.
In this configuration you might lose one window.
User thanked sheloveslayouts - 10 years ago
Oh, pippabean, I adore your home. I knew I would since I've read your other posts promoting more modern, MCM styles. And your decor is fabulous. I'm especially drooling over the couch/chair. Those shapes and legs!
I'm thrilled you're open to changing rooms. I think you're going to end up with a better end result. I really have nothing to add other than to say I look forward to your next post with info about the updated location and to see how this project evolves.
User thanked funkycamper User
Original Author10 years agolast modified: 10 years agobenje - Sorry for my late response. We've been out of town over the weekend.
I like that your plan creates closet space outside of the small room. I'll have to remember that. For the near future, we're probably leaving that room open to the new living room. Come selling time, we'll probably look into giving a buyer a choice in how to use this room: so we're considering installing an interior glass sliding walls/doors system. It will depend on what's inside of the mudroom/kitchen wall, as well as that small alcove wall containing the heating duct. etc. Thanks so much.
I've also been busy planning the kitchen in my living room/office area and I'm really struggling with the space. 14' is an awkward length in a kitchen. 2 ft. too short for a nice sized island, but too wide to just leave empty in the middle. I'm going to play around a bit longer before starting an new thread to ask for layout help.
Thanks so much Benje, you've been such a great help.
User
Original Author10 years agolast modified: 10 years agofunky - thanks for your kind words. Glad you like our Sofas and the chair. The sofa is called (Ying) Yang by Ligne Roset, the chair on the other hand, is from Ikea (their version of a lazyboy, I guess). High end and low end getting along just fine... :-)
The sofa of course was an unbelievably lucky find on craigslist, and we got 3 pieces too, isn't it gorgeous?

As I wrote on my above post to benjesbride, I'm unexpectedly struggling with trying to create a good flowing nice sized kitchen into the new location. I'm sure I'll be posting a new thread soon.
- 10 years ago
Oh, that couch is even more amazing than I thought from the back view. The Ikea chair is a great match. I love the red. If I could find a deal like that on CL or other second-hand source, I'd snatch it up in a heartbeat. If I don't find any used treasures, I'll be using a lot of Ikea furniture in my MCM ranch. If I only get 10 years of out them, for the price, so what? In 10 years I'm bored and want a change anyway, lol.
Looking forward to seeing your plan in your new space and hope I can provide some help.
Oh, I love the sliders at that website. What a perfect compliment to your home. Good idea. In a perfect kitchen set-up, I'd have those to separate from the rest of the house if I wanted privacy in there but be open other times. With those on each side of the house, it will be like book-ends. Just a thought.
User thanked funkycamper User
Original Author10 years agolast modified: 10 years agofunky - sorry for not responding earlier, I missed your last post.
I too find that Ikea stuff looks best when combined with furniture from other sources. I do hope you'll find some great MCM/Bauhaus finds either on CL or at garage sales and flea markets. Good luck hunting!
As to the red couches: They were not at all what I'd been imagining for our LR. In fact I had been looking for a grey modern corner sofa, to be paired with a colorful patterned area rug and fun pillows etc. So much for the best laid plans. Lol...There was just no way that I could pass up these 3 wool covered top quality chaises. I had my doubts at first, but now we love them, red color and all. They can be used separately, or combined into a super comfy sofa. Let me warn you though, the red color determines EVERYTHING else in the room. Patterned rug? No way! It had to be solid grey to tone down the red, along with grey pillows with just the thinnest minimalist creamy-yellow stripe for a bit of interest.
As to Ikea furniture. Materials seem to vary hugely. We used to have one of those ubiquitous "Poang" chairs, the cover fabric faded badly (it stood by the window), whereas the red "Romme" recliner which also sits by the window, has not faded at all over the many, many years we've had it (ca.1996), and the upholstery has not sagged either. The cover is as tightly stretched as when I bought it and it is extremely comfortable. And nobody suspects its origins, it goes with the Ligne Roset couches just fine.
The one thing I've learned with Ikea stuff: We never seem to throw any of it out, I'll take an old piece apart and find that its parts can be reused in a different way for a different purpose. As for the the old Poang chair, I put new fabric on it, and it looks as good as new in the guest bedroom.
And now to the kitchen in the living room plan: I'm afraid we've come to the conclusion that we'll have to scratch it and stick to the original kitchen plan. Many reasons. I'll write a new post about the whys and wherefores below.
- 10 years ago
Did you consider putting the kitchen in the family room? It seems like that change would be a lot less invasive than the living room.
User thanked sheloveslayouts User
Original Author10 years agobenje - no, we'd never move the kitchen to the backyard side of the house. All the south facing 1st floor windows are low, 18" off the floor. Not good for a kitchen, but perfectly proportioned for family room, living - and dining room.
- 10 years agolast modified: 10 years ago
I appreciate if putting a kitchen in the family room would destroy the unique architecture of your house. No one knows your house better than you.
Generally speaking, I don't think a patio door and a low sill necessarily dictate no kitchen, so I played around in the Ikea Planner (while catching up on Project Runway, of course.) The range and the fridge could be swapped. Or the fridge could be scooted closer to the sink to make room for a 36" pantry. I landed on this configuration to get the 36" sink cabinet under a window for you.
Please keep in mind this was just for fun and done quickly in the Ikea Planner, so its far from a perfect drawing :-)



- 10 years ago
I just had another thought. Above, I lost track of that wall with the vent in it. however, that alcove might be a good spot to recess the fridge and maybe a shallow pantry? Not sure how that would all piece together, but I did a quick change in the planner. Why are so many cabs missing fronts?! The Ikea Planner is a crazy maker.

User thanked sheloveslayouts - 10 years ago
No worries, pippabean. I would gladly make whatever decor changes were needed for the red. You don't need any other focal points. I love color. Especially when people are bold with it. I'm considering bright orange love seats. :)
We inherited some lovely vintage 50's furniture from my parents. A dining table, chairs and buffet, bedroom set, small display cabinet, and coffee table. Also a 1960's color TV console with built in stereo. The speakers work quite well so might take the TV out and add shelves for CD's and CD player there.
I like benjesbride's ideas.
User
Original Author10 years agobenje - your plans look great, but.... are just not for us. We'd be losing our family room, which we do use and like a lot. Also, I do remember how practical it was years ago, to have the kids play close to the kitchen when I prepared meals. Had I young children, I wouldn't even look at a house without a family room by the kitchen.
So we are back to the first plan posted above, despite the structural work that will need to be done. I don't think that the layout needs changes, as I would have gotten many more responses telling me to move things around, lose the island, etc. etc. That didn't happen, so w'ell go for it.
funky - your place sounds like a lot of fun. Great, that you inherited your parent's MCM furniture and it's just what you like too, you're so lucky!
- 10 years agolast modified: 10 years ago
I've been following your thread and I'm glad to see you're going back to your original plan. I liked it when you posted it and I still do now. Th plan's so well thought through and you even added (Buehl's) zones too. No wonder you didn't get many critiques, the GW experts here didn't have anything to add. Lol! I for one am looking forward to construction updates and your reveal! Best of luck!
User thanked User User
Original Author10 years agolast modified: 10 years agoellie - I do like the original plan too, despite all the structural work needed...sigh.
Yep, I saw work zones first on Buehl's layout drawings. She is really amazing. Reading her posts has helped me immensely in planning our own layout. And drawing the zones into the plan made me see what needed changing and adjusting. And it really helped with visualizing how we would use the kitchen. Thanks so much Buehl!
benje- I so appreciate your help. Please know that even though we're going back to the first layout above, I'm really glad you made me consider other possible solutions. I just know that once we're in the worst of construction, I won't have second thoughts, questioning our choices, and wondering if maybe there was a different and easier solution. I now know that's not the case. Thanks so much.
- 10 years ago
You're welcome. It was fun trying a few ideas out on your house; I appreciate that you encouraged me. Not everyone is so receptive to other ideas.
When we were planning our project I explored every possible option. It drove my husband bonkers, but I'm so glad I did. You will be too. There's a peace and confidence that comes from knowing you left no stone unturned.
User thanked sheloveslayouts - 10 years ago
I also thought your original plan looked good but, since you asked for ideas, I'm glad you got a few. I also agree that exploring multiple options helps hone things down to what is most important to you and gives you confidence in your final choice.
I had thought the other side of the house makes sense, too, since that is closer to parking and carrying groceries. But if that's not workable, your current plan is great.
I just offer a tweak. I am sold on secondary sinks as that is where we have the most congestion. I also wouldn't be able to use your proposed baking center for baking as it's too far from a sink. Maybe I'm just extra-messy or maybe I just like to rinse my hands more often than most people, I dunno, I just know that if there's not a sink within a step, it wouldn't work for prep for me. So I suggest you consider a sink at either the pink locations. Obviously, YMMV.

About the furniture. Yes, I was thrilled to get them. We bought my parent's house, a 1949 ranch, and kept the furniture we liked and needed. One thing I really like about the furniture, besides the sentimental memories attached, is they are not like the retro-styles sold today so there is a uniqueness to them. Other furniture went to other family, friends or was sold. Our prior home was a 1908 Craftsman so most of the furniture was Mission/Arts & Crafts era with some new pieces in those same styles and just looks out of place in this house. We've kept a few cherished pieces and are still selling off a few others. My husband will not give up the oak ice chest and dining set with buffet which are going in man cave in the basement. Good for poker games.I hope you'll share progress pictures and I look forward to your final reveal.
User thanked funkycamper User
Original Author10 years agofunky - thank you, you're making a really good point about the need for a small second sink close to the baking zone.
So I was going to play around with the Ikea planner to see where I might best place a small sink, when, argh...I found all my older site saved plans scrambled, non functional and non fixable. The just recently created "kitchen in living room plans" are ok, but my original plans saved around 2 weeks ago and longer are total chaos, scrambled, kaputt! While working on the new plans I had been so happy to see that Ikea finally had fixed their planner, it all of a sudden worked really well on my Mac. Well, that turned out to be a very short lived happiness, as their software fix destroyed all my older existing plans. Thanks a ton, Ikea! :-(
I guess I should be grateful I took screenshots.
It's not so easy to find a good spot for an extra sink. If at all possible, I want the island to be sink free. I also would like it as far away as possible from the living area, and close to the cooktop, so that it could double as a pot filler.
On my plans I have the oven in the cabinet next to the cooktop (since many induction cooktops don't allow ovens directly below) so if I keep the oven there, the sink then would have to move one cabinet further down, smack dab in the center of my baking area....not good. And I don't want it at the end of the cabinet run either, too close to the family room.
The solution: we'll have to find an induction cook top that allows an oven underneath.
- 10 years ago
Sucks that you lost your plans. Big time sucky! I'm sorry you'll have to "rebuild".
We're all do things a bit different and have our own preferences. For me, I'd go with an induction range so I could have a place for the sink. No doubt about it. If you bake a fair amount and really want a separate baking center, it is a must, imho. Plus, it's in an ideal location for a coffee/tea center out of the main work zones in the kitchen. When you have guests, fill an ice bucket and it will be handy for mixing drinks. A range also appeals more to my wallet as separate cooktops and ovens cost more than a range. And the oven door is lower to the ground requiring more bending to access. And you lose the little drawer at the bottom. I really only see an advantage to separate units if the oven will be wall-mounted hire so less bending is required.
I'm curious. What are your reasons for wanting separate units?
User thanked funkycamper - 10 years ago
Hi, PB. I know you're set on renovating the kitchen in it's present location, but I just saw this picture and thought of your space. If the kitchen is an open galley in the family room and a small family room is put in the kitchen. It might be a stretch of the imagination, but I thought I'd share...
Family kitchen · More InfoUser thanked sheloveslayouts User
Original Author10 years agofunky - I totally agree with the practicality of the extra sink, water by the cooktop, the baking area and as a beverage center for parties.
Ranges, I don't like them much. The simple freestanding ones are out of the question, spills run down the side into the netherworld between cabinet and stove...yak, shudder! The slide-ins don't create that type of mess and cost less at the outset than built ins, but if either the cooktop or the oven stops working, both need to be replaced, not much of a savings there. We currently have a GE top of the line slide in range in which the oven racks keep falling off the guides as (can anyone even believe this?) the oven walls have started to bow out. So much for "American made" and "top of the line" in today's appliances. Also, we're aiming to achieve a minimalist scandinavian look, and ranges, even the slide-in ones just have so much bulk to them. As to occasionally bending down, it's probably good for us, and just doesn't bother me. I'd say the bending when filling and emptying the dishwasher is much more of an issue, as we do that repeatedly each day and often for a prolonged time. If my DW would butt up to tall cabinetry in my kitchen plan, I'd elevate the DW center to counter height, the way Europeans build theirs right into their cabs, now that would really make a nice difference.

benje - I've seen that kitchen, it's very cool looking. An open galley like that is what my dream home would have, so practical and no corners. And yes, it would look and work fabulous in our family room.
But, he problem is, the family room would not look good in the old kitchen space, for one the space is just too small. Secondly, the almost wall to wall and floor to ceiling window and sliding door in the current family room are what make sitting there and gazing into the backyard ideal. We also enjoy these views from our kitchen, as we can see through the family room into the backyard. The reverse would not be the case, the kitchen cabinetry would block the view from people who are sitting on low couches. In the current kitchen, the window sills are at ca. 37" and cannot be changed (beneath two of them sits our tall AC). anyway there is no view out the side yard, and we will not add a "picture window" to the front of our house. So, no, I don't think we would ever use this space as a family room. Nice try though benje - thank you.
- 10 years ago
Yeah, I'm not opposed to bending either. It's just something that people have mentioned a lot here so thought I would pass it along. When I'm unloading oven or DW, I tend to practice my squats! :) Easier on the back and a good, short workout.
I don't blame you for not wanting to mess up your views and sightlines. From what you've shared, they're wonderful. Enjoy them.
I hope you find a way to have that prep/beverage sink in that space. I don't think I have any other ideas to share to make it work for you. Sorry.
Gosh, I hope my almost one year old, slide-in range doesn't start bowing. It feels dang sturdy.
I sure wish we had more European appliances available here, both in the US in general and my local area in particular. They are so much more attractive and creative, aren't they? Our options are even less than those in more metro areas as the Euro-dealers are 2 and 3 hours away with no locally-based appliance repair people for support. We, basically, have Home Depot and Sears so options for any of those cool appliances are even more limited.
Best wishes and let us know what you decide to do. And, of course, pictures! :)
User thanked funkycamper User
Original Author10 years agolast modified: 10 years agoThanks funky - I do think we'll be able to have that second sink there, it's just a matter of finding the right induction cooktop that allows an oven to be installed underneath. I think there are some available that can be combined. I'll do my research and I will check the on the appliance forum. I hope my dear hubby won't say that 2nd sinks are frivolous... I do think chances are good I might have to deal with that...
Well it's a suburban Chicago backyard view, not the Rockies or the beach, lol. But it's private and lush - with dappled sun through the trees, flowering bushes, annuals and perennials. And quite surprisingly, full of wild life, with humming birds darting to and fro, bunnies nibbling on almost everything and just the other day during breakfast, we saw a glossy reddish brown weasel slinking by, That, I have to say was a first in more than 20 years in this house. I'm sure I've never seen a weasel outside a zoo before.
I was visiting family overseas last year, everybody has built-in appliances at various price points, be it in small apartments or single family houses and they tell me they're built as always and confidently: "Oh sure, they will last 20 years." I wish (sigh). That's why I'm looking at Bosch, Miele, Liebherr etc.
Now, if I just could get an interior designer, or GC to return my calls...
- 10 years agolast modified: 10 years ago
Your backyard sounds absolutely lovely. We also enjoy trees, shrubs, flowers, birds and hummingbirds and our small vegetable garden. Not-so-much the other critters since we got the dog though. Although we did have a hellacious battle in our hedge the other night. I thought it was a dog fight and was relieved our dog was in the house, barking madly, but it was raccoons. I have no idea what set them off on each other. Weasel? I probably wouldn't have even known what it was right away. I've never even seen those on hikes. How cool is that?
I drooled over the Liebherr and Bosch fridges. Big slobbery drools. But the $500 delivery fee, on top of the price, on top of no local service providers squelched that. Maybe someday, right? I hope you find the appliances you need to get the look you want and the prep sink. Tell DH that it's not frivolous but, rather, an investment. And tell him you'll bake more. :)
Is real estate booming in Chicago? I've read elsewhere here that folks are having problems getting bids and commitments due to real estate booms in their areas. I hope you don't have to wait it out to find somebody.
Best wishes!











herbflavor