New draft of our plan....mind taking a look?
Hello! Your thoughts were really helpful with our last draft. We took many of your comments into consideration, and tweaked the plans. Some things had to stay (i.e. garage), but I think the flow is looking better (here is a link to our last post....http://ths.gardenweb.com/discussions/3886080/holding-my-breathethoughts-on-our-family-home-plans-please?n=29)
To remind you, we live in the Midwest with 2 young boys. We purchased an almost .5 acre golf course lot in a very active and friendly community- we plan to entertain often and plan to be a stop for neighbors while on the course. Here's some of my feedback to the builder for the current plan....anything I should add?
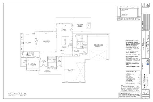
Width of front/exterior door….room for a double door?
Coat closet space in entry?
Discuss pantry/dog room location….switch?
Alignment of sunroom/livingroom/kitchen- alignment seems off-centered.
Thoughts on cooktop/double oven versus all combined.
Dimension of kitchen island? Lengthen to align room?
Exterior doors added to sunroom.
Exterior door on garage.
Steps down from wrap around porch in back, off of dining room
Fridge placement? Working triangle in kitchen needs work.
If pantry/dog room is switched, pass through for groceries in garage

Comments (33)
- 9 years ago
Lizzie where are the elevations and the second floor plans and how it will be situated on the lot?
You have 2 sets of stairs. Where do they go?
You said you were working with an architect but an architect wouldn't just give you a plan without elevations. That's something a draftsman would do.
I still think the snout garage could be better incorporated into the house. And I hope you realize you're basically building a house for your garages and not the other way around. Here's how much room your garages actually take up of your house space if you superimposed one on the other. But if they are needed, they are needed.
If it were me, I'd fire the architect and go find someone who can do a charette with you and show you how to really incorporate your garages etc into the house design. I think there are better ways to do so, but without seeing the lot, the upstairs plans and the elevations it's too hard to tell.
You cannot build a house in isolation. All the parts need to work together and they only work together when you design as a whole.

Related Professionals
Henderson Architects & Building Designers · West Jordan Architects & Building Designers · Holiday Home Builders · Monticello Home Builders · Placentia Home Builders · Valencia Home Builders · Arkansas City General Contractors · Coatesville General Contractors · El Sobrante General Contractors · Harvey General Contractors · Mentor General Contractors · Mount Laurel General Contractors · Solon General Contractors · Tuckahoe General Contractors · West Melbourne General ContractorsLizzie
Original Author9 years agoThe midwest is by no means the mecca of architectural inspiration, but the garage thing is so interesting to me. This garage placement is 100% normal/typical for this area. I have no problem with it. Our neighborhood will be the site of the parade of homes-type event this year...at least 8:10 (approximately) homes have this garage orientation. The builder and architect build a beautiful home- this is the process we've committed to...no firing him. He has a picture of a home that is set as our inspiration; I'm sure he has second floor elevations, but we haven't seen them yet. I'm ok with this process. I trust him and my builder.
The second set of stairs goes down (only) to the man cave in the basement- wanted easy access from the garage/back covered porch to up/down to the man cave, without kids/golfers having to tromp through the house.
Any other thoughts on the flow/layout would be appreciated.
- 9 years ago
I'm sure he has second floor elevations, but we haven't seen them yet. I'm ok with this process. I trust him and my builder.
I wish you the best of luck. I know that when I start a drawing, I don't start with one section only without knowing how the whole drawing lays out. And if you've followed any of the threads here from the architects, they'll tell you over and over that designing a house is not designed in a vacuum. The house needs to relate to the site, and the plans, the inside, the outside and the elevation all have to be designed as a whole.
Our neighborhood will be the site of the parade of homes-type event this year...at least 8:10 (approximately) homes have this garage orientation.
Sort of reminds me of when I used to say to my Mom, "but everyone's doing it."
Lizzie
Original Author9 years agoOur garage will not look like a garage from the street; it will have windows, be covered in stone, and will blend seamlessly with the facade of the home. This type of layout is just so common here; it is as common as a rectangular-shaped fireplace. It's a non-issue for me.
- 9 years ago
Architectrunnerguy just posted this in another thread. I highly recommend getting a cup of tea or coffee and enjoy reading.
"Ok, had some second thoughts about posting here as it might be interpreted as hawking for work which I'm not being plenty busy, but on the other hand I want you to be in a situation where you're spending a healthy six figure chunk of your hard earned money the best way possible and I write this advice for the lurkers too! Especially since there are no "do overs" in building a whole house.
So with that said and in lieu of a massive retype by me, let me point you to a coupla threads......
Get somebody CREATIVE to sit down with you for a design session as CP described above. Doesn't have to be expensive or time consuming. Here's a link to one: http://ths.gardenweb.com/discussions/3887104/what-should-i-expect-from-my-architect-long?n=17 Scroll down to my 5/12/16 post. And there's a photo there of what one of these sessions looks like. It's not a bunch of hocus pocus "man behind the curtain" stuff. And while you're here, scroll down 2 posts to my thoughts on trusting a CREATIVE designer and the place for preconceived ideas. My guess is, and I'd agree if you said it's pure speculation, with all the cutting and pasting you're doing you haven't realized that a leap of faith is required on your part for the best outcome.
And here's another link from someone on this board who did exactly that: http://ths.gardenweb.com/discussions/3598813/we-fit-an-architect-into-our-budget-and-it-was-so-worth-it?n=17
And, for a little self education, here's a list of great books on good home design: http://ths.gardenweb.com/discussions/3281434/book-suggestions?n=10
And last but not least, here's a great thread on what makes for good home design. Get a cup of coffee, a comfortable chair and spend some time going through it. It's long but worth the read. All of us design folks chimed in there (along with many others) so you get all the great thoughts and ideas in one convenient location http://ths.gardenweb.com/discussions/3285825/what-makes-a-house-have-good-design?n=39"
Lizzie thanked cpartist - 9 years ago
Thoughts on your list:
Width of front/exterior door….room for a double door?Probably not room for a double door. It's hard to read the dimensions on your photo. Even if there is room, I think it would look squished in there.
Coat closet space in entry? I absolutely would not build a house in the Midwest without an entry closet. --Can you pull the front door location out to be even with the stairs. Then a small, short closet could be built under the stair landing if no other solution is available.
Discuss pantry/dog room location….switch? Why--I'd rather have the dogs off slightly away from the kitchen, but then I'm not a big dog person.
Alignment of sunroom/livingroom/kitchen- alignment seems off-centered.
There are a couple of reasons it seems off center. The island doesn't line up with the wall of cabinets/cooktop. It needs to be moved "south" to line up. As it is now, it blocks the walkway to the mudroom/pantry area. Imagine walking from the living room to the pantry. It's not a direct walk, but one would walk around the island.
There are a couple of other options, but it involves moving a lot of other pieces.
Thoughts on cooktop/double oven versus all combined.--Depends on how you cook and your needs.
Dimension of kitchen island? Lengthen to align room? (see above comment. It's the location, not the size.)
Fridge placement? Working triangle in kitchen needs work.--minimally move it to the right if you can't find a better location. - 9 years ago
Our garage will not look like a garage from the street; it will have
windows, be covered in stone, and will blend seamlessly with the facade
of the home. This type of layout is just so common here; it is as
common as a rectangular-shaped fireplace. It's a non-issue for me.I hear you when you say "everyone's doing it", but you're not building a house to be mediocre or like everyone else; if so, you'd be buying something that already exists. You're building a house so it'll be the best you can possibly do. You've heard this saying: Good, better, best, never let it rest 'til your good is better, and your better is best.
I don't mind a garage facing frontwards at all -- quite often it's the best possible arrangement for the land and the house layout. What I do dislike -- and I think many people here agree -- is a garage that protrudes forward, making it the first thing you see as you approach the house. Sure, you can cover them with stone and place windows in them, but they're still -- quite obviously -- garages, and they set a mediocre tone for the house.
Here's an illustration of the problem created by protruding garages (not forward-facing garages, just protruding garages):

Imagine the large red block represents your driveway and the smaller red boxes represent a walkway to the front door. The blue X is a guest's car. Your guest pulls up to your house and pulls all the way forward, which "feels right". He exits his car, and he is now standing between two garages, which is kind of weird. He cannot see the front door. He is forced to leave his car and walk around the first garage, and it's quite some distance before he can see your front door. It's uncomfortable for him to be "between" his own car and your front door ... without any visible destination.
Now, imagine that the protruding garage is gone, leaving only the "in line with the house" garage:
Okay, this example isn't particularly good because you still have the staircase protruding in front and it's still a long distance from the garage ... but the guest arriving in this driveway has a better sense of where he's going. He can judge the distance between his car and the front door better.
Arriving at the first house with two garages is bad. This one is better. You can do better still. I'd look at flipping the entry and the large stairwell -- the purpose being to bring the front door closer to the parking area. "Arriving at this house" needs work.
Here's a better example, chosen simply because it was the first one I found on google:
Now when the guests arrives in your driveway, the front porch is crystal clear. It's much more comfortable for the guest to leave his car and walk directly to the door, no odd feeling of abandoning his car and not yet having his destination in sight. Part of this is that the garage and the front door are (wisely) placed close together, but the larger part is that no obstacles exist between the parking area and the front door.
Having said all that, if you are going to have a four-car garage (I honestly don't see any reason for this), this arrangement makes sense -- it minimizes your driveway and doesn't overwhelm the elevation with extra doors. But you can do the same thing pushed back from the front of the house.
Moving on from the garage discussion:
I like the small dog room, but I think I'd rather see it at the back of the house, where it could include an exterior door straight into a dog run or fenced back yard. This would mean you would never have to bring a muddy dog through the house to reach "his room".
When I was a small child we lived in a house with a living room /sunroom set-up exactly as you've drawn it here -- it was lovely. I'd extend the sunroom a scant 2-3 feet to "flatten out" the back of the house; it'll be a money saver and give you a couple more feet.
I wouldn't bother with the split bathroom in the downstairs bath. By eliminating the door in between, you could go with a larger, more luxurious shower (nicer in case you ever put a person with limited mobility -- say, an elderly parent who's ill -- into that guest room) AND you could have a larger, nicer sink. These two plusses are vastly better than a door interrupting the bathroom for no reason.
Your garage door entrance is nice and spacious and has great flow to two parts of the house. Its negative is that it could be dark -- I'd definitely use a glass door at the far end.
I'd go with a glass glider in the dining area; the inswing door you've pictured will be impeded by the table. Actually, with a second door only steps away (in the mudroom hall), do you even need that door?
Since the pantry door will probably remain open most of the time, I'd go with a pocket door.
I'm tempted to suggest that you flip-flop the pantry and the half-bath (so the half-bath can have a window), but this places the pantry a few steps further from the kitchen. Another option: You could position the pantry where the mudroom lockers are now ... and move the lockers to the half-bath's current position ... bumping the half-bath to the exterior wall.
- 9 years ago
You better leave enough room for your air distribution system. Nothing like building a new home and living in a bunch of hot and cold rooms. The plumbing is easy, it is the HVAC that never fits.
- 9 years agolast modified: 9 years ago
Well said Mrs. Pete! Especially the "Everybody's doing it" part.
Brings to mind the "Fosbury flop"..Dick Fosbury the guy who decided to go over the high bar ON HIS BACK beating all the other "Everybody's doing it this other way" guys in the '68 Olympics...or....
The Australia II, designed by Ben Lexcen who didn't design a keel "100% typical/normal" but an imaginative winged keel that took the Americas Cup from the Americans for the very first time after 132 years of defeat...or....
John Houbolt...an aerospace engineer with NASA in 1963, when all the other engineers where charging Gung Ho ahead with a design for a "Buck Rogers" style rocket landing on the moon because "that's what everyone thinks we should do".
He wrote a memo, risking a career by going over all the heads of all his immediate superiors, advocating a much smaller detachable landing vehicle citing large technical difficulties with a huge rocket and likely failure given the current preconceived "only one way do it" thinking. In the memo he actually termed himself as a "voice in the wilderness" he was that alone among all the "it's done this way" folks. Fortunately Mr. Houbolt was heard.
So, I encourage you to move forward in the spirit of Fosbury, Lexcen and Houbolt in thinking about your house.
And PS: Written for the lurkers too!
Lizzie thanked Architectrunnerguy - 9 years agolast modified: 9 years ago
And to add to that, if we all thought we should do things because everyone else does it like that, then we'd never have an iPad or iPhone either. Thankfully Steve Jobs didn't follow the herd, and not only in terms of technology but also in terms of making the iPhone and iPad to look better too.
As well as giving us computers in our hands, he also made sure to make them look "sexy".
Lizzie thanked cpartist - 9 years agolast modified: 9 years ago
I am not a big fan of what may be a dark hallway behind the kitchen. Will the "dog room" have a doggie door to the outside? Would that be best to the back yard? I would try to eliminate that hall. Perhaps switch the pantry or powder room with the current dog room and put the dog room where the current pantry is. The dog room and pantry can open off the kitchen instead of the hall. There is also a way to keep the mudroom and bathroom or pantry off the garage with the hall to the kitchen, but not have the hall go all the way to the back door/porch. Then have whatever is to the back entered directly from the kitchen. Basically give what is now hall space to whichever 2 rooms you put behind the kitchen. You may want the dog room at the front for a reason. If so keep it there. I would prefer it out of the way so the dogs can be put in it when people are coming and going without barking or whining and being disruptive. Hopefully this makes some sense. If you really want the hall, go for it. I am just nitpicky about "wasted" hallway space with no windows.
lafdr
Lizzie thanked lafdr Lizzie
Original Author9 years agoThank you everyone for your comments! I definitely think that moving the dog room to the back hallway makes the most sense; the pantry might need to be enlarged next to the stairs....with some kind of self-closing door because my pantry is usually a bit of a disaster.
Mrs. Pete....thank you for explaining the reason why protruding garages are so seemingly despised. I honesty have never, ever, ever considered that.....once again, I must have parked and walked up to the front door of a home with similar layout without ever thinking twice about it....or wondering where to go, for that matter. I will bring it up to my architect, but I'm afraid that changing the layout of the garages (which I still don't feel up-in-arms about) will completely change the layout of everything else and put us back at square 1. We did originally have the house set with a courtyard entry, but THAT seemed like it was all just a sea of garages, so we changed it.
Can anyone give me ideas how to re-arrange the garage situation?
Ps....I found the link to my home inspiration.....we are hoping for something similar to this......

- 9 years ago
Here the garage isn't the snout but is in the back and creates the back edge of the covered porch.
Lizzie thanked cpartist - 9 years ago
I am not a big fan of what may be a dark hallway behind the kitchen.
If the door at the end of the hallway is glass, it won't be a dark hallway.
I am not a big fan of what may be a dark hallway behind the kitchen.
Yes, if you place the pantry next to the staircase you can use the space underneath as extra storage. I see numerous possibilities for that space -- but the one thing that's unacceptable is closing it off as if it weren't a valuable asset!
Can anyone give me ideas how to re-arrange the garage situation?
Move it to the side, attach the garage(s) with a breezeway, push the garages to the back so that the rooms behind them protrude backwards, make one garage detached, downsize to a more modest garage that won't overwhelm the plan -- these things could be done in any number of ways.
Lizzie
Original Author9 years agoThank you Cpartist and Mrs. Pete! I think another problem might be is that we are super tight on the width of our lot, so that we don't have room to turn (left) into our garage, as pictured in CP's rendering (if you look at my original post, you can see how it lies on the site). The other obstacle is that we want as much as a backyard view as possible, particularly to the southwest and southeast corners of the lot (backyard faces south). The Southwest overlooks a lake; the southeast overlooks a green. Straight out the back will just be fairway and and homes on the other side. Ughhh.....this is frustrating.
Lizzie
Original Author9 years agoIf the door at the end of the hallway is glass, it won't be a dark hallway.
--> This is most certainly our plan! I love light!
If I move the pantry to the area next to the stairs, I'd love to put some sort of pass through from the garage to the pantry. Have you seen this before? It would make unloading groceries so much easier!
- 9 years ago
Please remind me again how wide your lot is and what your setbacks are?
Lizzie, I of all people know how frustrating this all is. Ask anyone here who knows what I've gone through. We've taken to calling my house Cpartist's Saga. (You can look it up. LOL)
Back this past December DH, the builder and myself were all ready to go. In fact we sent the plans to the city for permitting in January. Fast forward a few weeks and we realized that there were still a few things niggling at us. (We were limited because we could only have a footprint of 35% of our lot and our lot was only at the time 65' x 93')
DH was unhappy with his study. The dining room was ok but could have used another foot or two. We only had a 1 car garage (We're downtown in a small city so figured we could get away with one car, until we had 2 this past season and liked having the second car). The guest suite was about 2' too tight in width. And we weren't thrilled with the layout of the master suite bathroom/closet layout.
So we decided to step back, stop the permitting and buy another 1/2 a lot. So now our lot is 97.5' x 93' and we were able to correct those things that were bothering us. Of course that set us back and only 2 weeks ago were we able to get back into permitting.
However, I'm so glad we did. Our house is 100x better for it. It will be an awesome house that will perfectly suit our needs and will look great both outside and in.
Additionally, (and please forgive me for saying this) what about your inspiration photo do you like? I'm asking because I'm looking at your inspiration and it seems to be a conglomeration of so many different styles. It's not french. It's not craftsman. It's not shingle style. It's not english cotswold. It seems to be let's throw it all on and see what sticks. There are FIVE different types of siding on the house. Honestly it lacks a cohesiveness and focus.
May I kindly suggest a wonderful book that helped me with my house elevation? It's called What Not to Build by Sandra Edelman, Judy Gaman and Robby Reid and it's mostly illustrations with descriptions of why things work and why they don't. I highly recommend it.
Lizzie thanked cpartist - 9 years agolast modified: 9 years ago
I like the garage as is. The guest could park further back of there's room for more than one car.
It gives you a nice space for a little seating area along your walkway. Even if you don't use it often, it would be very welcoming and add some interest to the front yard. Just a few ideas...maybe with a fountain and some plantings behind it : )
Oh, and I would move the kitchen island down, so it's more in line with the range wall.

- 9 years ago
If I move the pantry to the area next to the stairs, I'd love to put
some sort of pass through from the garage to the pantry. Have you seen
this before? It would make unloading groceries so much easier!I haven't seen a pass-through as you're describing ... but I have seen a picture (in one of the Not So Big House books) of a pass-through between the garage entry hall and the kitchen. I'm sure it's possible and likely not even very difficult. I think the biggest issue may be that any door between the house and the garage must be "up to standards" -- that is, not just a little wooden door that'd do for a bedroom.
I like the garage as is. The guest could park further back
Yes, the guest could, but he probably wouldn't recognize the problem until he'd already parked -- and might not quite realize why the approach feels uncomfortable.
- 9 years ago
I think the garage thing is overblown. I think it'll look fine. With your limited lot width I'll be difficult to change to side entry garage without compromising on ability to enter and back out of garage.
My house has same exact setup in garages and no way does it look like a tumor is growing from the house.
Lizzie thanked Asylum_Point Lizzie
Original Author9 years agoAdditionally, (and please forgive me for saying this) what about your inspiration photo do you like?
We are an informal family- I like a more informal look to a home, so have been drawn to shingle and farmhouse styles. I don't want to commit to a 100% farmhouse style, but like that there are elements of it in this pictures. We also like the shingle/northeastern style, and thought that this pictures incorporates it. And, at the end of the day, this is one of the rare pictures both my husband and I agreed on....
- 9 years ago
I love shingle style. It is one of my top two favorites with craftsman being the other. If you love the shingle style, you should definitely lean towards a shingle style, but make it shingle style and not a massing of 6 other styles mashed together.
- 9 years ago
Hey Lizzie! Speaking as a know-nothing who delurked last weekend; I will not be able to tolerate myself without commenting on your oh!-so!-exciting!-life!-changing!-adventure! What a wonderful process you are beginning (emphasis on beginning!). Do not let anyone rain on your parade!
With that said, please take the time n.o.w. to make absolutely certain that you make this project your "Most Excellent Adventure" and build a home that will work for your family now and will also be ready for you alls future needs.
1--Please, please, please, with cinnamon and sugar on top/hot coffee on the side/whatever floats your boat--Read and pay the closest attention to every detail that cpartist and Architectrunnerguy offer for your consideration. They are consumate proven professionals and artists in every sense of the word. They both give amazing amounts of their time here helping people.
2--Read cpartist's saga of designing their home, because this is a genuine epic event on which you have chosen to embark. Learn from all that she has handled, and with true grace and finesse plus infinite patience.
3--Read all of Architectrunnerguy's input available. He has great, highly pertinent info for you!
4--"Listen" to what they communicate so well, with their persistent honesty.
I just saw lolauren and mrspete have also offered their talents. Listen.
HVAC guy speaks the truth. In your area you will need to incorporate ample room for HVAC plant(s) and runs. Think about how to access those frozen pipes when you lose power and the fuel for your back-up generators all leaks out or never gets filled or whatever. Happens.
Others will have equally valuable insights.
If you fully commit to making the time and go through your process here, you will end with a home that will not only serve you fairly perfectly, without wasted space and money-sucking poor design; it will speak to your soul and gladden your heart every single time it is within your field of vision.
Your house has the potential to be a beautiful, aesthetically wonderful, modernly-appointed work of art, as well as a superb blending of form and function that will be fully customized for your family's current and future needs.
You do not want to build a house, you want to build a home. ;-)
I am sooo excited for you and yours. Remember to relax and savor every minute of the entire process!
Architectrunnerguy, thanks for the shout-out to lurkers! ;-) You made my day.
- 9 years agolast modified: 9 years ago
Hi Lizzie,
What a wonderful project you and your family are embarking on!
I'd like to add a +1 to the advice to listen to ARG, cpartist, and others above. They know what they're talking about.
Your inspiration picture is beautiful; I can see why you're drawn to it. One thing to note: the garage in your inspiration pic takes up about 1/4 of the facade of the house and is even with the front porch. In your plans, the two garages will be a bit over 1/2 of the facade of the house and much of that will protrude in front, making it more noticeable. So getting a look at elevations now will be important to ensure that you like how it looks. And you might love it! I just don't want you to be surprised or disappointed if you have an image of the inspiration in your head and your elevations don't look like that.
Agree that it would be great to have the dog room with easy access to the back yard. Also, when you're fairly settled on the overall plan, post your plan on the Kitchens forum for great layout advice. They'll help you make the most of your kitchen.
- 9 years ago
Thank you Elizabettes and chicagoans for your kind words. Being an artist (I am not a house designer, architect or interior designer although I was an interior design major in college for 4 days before I realized I'd have to do what the customer wanted. Oh and I did stay at a Holiday Inn once) I love to see beautiful homes and interiors.
Lizzie, as ARG has said many times, you are spending at least 6 figures of your hard earned money so make it YOUR best house. You're creating a one of a kind custom home, so it doesn't need to look like all the other homes in the neighborhood, but your dream.
And yes, of course we have restrictions in terms of lot size etc, but good designers and architects consider that a challenge and that's when a good designer is at their best.
- 9 years agolast modified: 9 years ago
Thanks Elizabettes and Chicagoans. I always keep the lurkers in mind, having had more them than the actual posters here ask me a private question about their projects. They're far more of those than the actual posters.
And the interesting thing is, this residential design thing is a temporary sideline for me. Actually I'm a professional runner. Had to take on this architects gig 35 years ago to temporarily make ends meet while getting the runner thing going. But it's purely temporary mind you and I'm finally beginning to turn the corner. Last week got a certificate for $10 of gas at the local station for 1st place in my age/gender group.....Oh, and almost forgot...a free energy bar too! Yep, turning the corner for sure....won't be here much longer...this is purely a temp job...yep, not much longer now...
- 9 years ago
cpartist, is that kinda snarky because of the shall we just say, corporate decor choices "...Holiday Inn..." ? Sometimes I am uber serious and must be told "this is a joke". I am completely in awe of what you do; and then I saw pics of your current home...OMG!!
Architectrunnerguy, you are too funny! Seriously though, it's good you have a day job to fall back on, running is fiercely competitive. I hope you shared that energy bar with Mrs. Architectrunnerguy!
Thank you b.o.t.h. for your kind comments. They mean a whole lot.
- 9 years agolast modified: 9 years ago
cpartist, is that kinda snarky because of the shall we just say, corporate decor choices "...Holiday Inn..." ? Sometimes I am uber serious and must be told "this is a joke". I am completely in awe of what you do; and then I saw pics of your current home...OMG!!
OMG no, not at all snarky. I was trying to be funny and referencing the TV commercials where people act like they're experts (doctors, lawyers, etc) and it turns out they're not and then they say, "But I did stay in a Holiday Inn."
Although now that you mention the Holiday Inn decor... ;)
And thank you for the comments about my condo which we sold this past May. :)










User