Need floor plan advice / ideas - Craftsman bungalow addition
My wife and I recently purchased a 1920's craftsman style 2+1 bungalow with the intention of renovating and adding on. We're in the process of finding an architect or residential designer. In the meantime, we measured the existing house (as well as our current home and furniture) and have been tinkering on paper (and in SketchUp) and would greatly appreciate any feedback or ideas.
Ideally, we'll end up with a minimum 3 BR, 2.5 bath house. We'd also like to keep it one story. Also, my wife is a photographer and would like ~500 sq ft studio (that could hopefully be converted to an in-law suite or 2 additional bedrooms later if we ever sell).
Here's the existing floor plan (from lead/asbestos inspection):

Here's our Take #1 superimposed on the lot (dashed lines are setbacks):

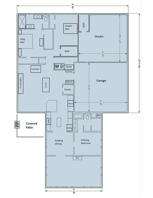
We tried to work with the existing driveway to have a side entry garage with enough room to backup and turn around. Changing the entry to the existing bath created a guest bedroom / en-suite (existing laundry becomes the new closet). We were less sure about how to re-purpose the existing living and master, but thought removing the non load bearing wall between them would create a large living space. And wouldn't you know, the 8 ft pool table we've always wanted would fit in that room comfortably and still leave room for a pub table and other games :-) The rest of the plan was expanding the kitchen that's open to a new family room and creating a master suite and 3rd bedroom (that would probably function as our office).
Take #1 has a few problems we couldn't figure out how to solve: there's no half-bath anywhere, so folks in the front game room are walking all the way through the house (or ducking into the guest en-suite). Also the studio would ideally have access to a bathroom, so we added one in there but it would save money if it could share a bathroom instead of having it's own. And our neighbor to the left is a lawn care service, so we're concerned with having the master a mere 10' setback away from early morning noises.
Take #1 where you can see it better:

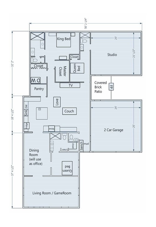
So, on to Take #2. Changed to a front load garage and would make do with a turn-around further down the driveway. We liked the idea of flipping the covered patio over to the other side (better view) and separating the studio and garage to create a sort of protected courtyard. We kept the guest/en-suite idea and managed to squeeze in a powder room (5' x 4' 4"). The studio ends up sharing a bath with the 3rd bedroom, and we're insulated from the noisy neighbors some by the master bath and more distance. We tore out another wall to combine the existing kitchen and dining to create a larger dining room (which would be our office since we never use a formal dining room).

We don't have too many issues with Take#2, besides the fact that it probably costs more to build. But we'd love to hear some feedback, or get some fresh ideas that we probably haven't even considered.
Thanks in advance.
Comments (18)
- 8 years agolast modified: 8 years ago
I did a similar project years ago adding an large addition with garage to a bungalow. It was tricky in many aspects. I would recommend contacting a local architect who can see first hand the factors that will effect your project and come up with an efficient design. In my project, the lake is across the street at the top of the image.

. - 8 years ago
Have you checked with your local zoning or building department to check on: 1) Required lot setbacks; 2) Maximum buildable lot coverage? And/or any other regulations or restrictions on how your lot and existing house can be improved?
Related Professionals
Oak Hills Design-Build Firms · Schofield Barracks Design-Build Firms · Bellview Home Builders · Clearfield Home Builders · Saint Petersburg Home Builders · Valencia Home Builders · Cibolo General Contractors · Clinton General Contractors · Fitchburg General Contractors · Fredonia General Contractors · Glenn Dale General Contractors · Kailua Kona General Contractors · Las Cruces General Contractors · Melville General Contractors · Titusville General Contractors- 8 years ago
Frankly, neither of your versions work because your kitchen becomes a major traffic zone. You never want your kitchen work zone to have people needing to move through it to get to another room.
- 8 years ago
In either of your 2 options, how do you intend to get to the studio space once you convert it to additional bedrooms?
- 8 years ago
Sometimes tearing down the old house and building a completely new house makes the most sense. Don't forget to consider that option too.
bruce_bentley2
Original Author8 years ago@Mark -- Thanks for the feedback - we are currently searching for the right person to help us. It's pretty obvious we don't know what we're doing :-) We just wanted to go through this exercise to help us communicate to whomever we hire what we think we want. Since the original house is fairly typical, we were hoping someone on here might have done one of these in the past and have general ideas to share.
@Virgil -- We have. Setbacks are 10' on the sides for structures (5' for driveways), 30' in the back and it's either 30 or 40 in the front. The lot is 100' x 200' and we're allowed 35% coverage. With both of these rough ideas, we're getting close to 35% once you include the large driveway, porches, overhangs, etc. No other restrictions we're aware of.
@cpartist -- very good point. I'm sure the kitchen forum would cry foul on that too. We were trying to keep the kitchen fairly "central" and close to the garage... It's just the two of us (in our 40s, no kids) so it could work for us, but I see the resale problem there... thanks for bringing it up.
@kirkhall -- also good catch. In option 1, we hoped the garage was large enough to add a small hallway access (not ideal, but could work). In option 2 (which we like better), we thought we'd convert it an in-law suite since it'll have it's own exterior entry (from the covered patio)
@chispa -- point taken. We do love the feel of the old house, and would consider it a shame to demo it, but sometimes trying to shove a square peg into a round hole just doesn't work :-) It certainly took awhile to come up with the ideas we posted, and as pointed out there are many compromises going on due to the original layout.- 8 years ago
Can you post a picture of the house? Does the interior have details worth saving like unpainted woodwork or a dining room buffet? Or an original fireplace?
- 8 years ago
Great--you understand the buildable envelope and coverage. Now, stop doing what successful architects do everyday, and spend your valuable time finding and selecting an architect who has a track record of successful single family design.
I know, I know--it's great fun to mush around floor plans, but good residential design is a combination of three issues addressed simultaneously: 1) Site planning and development; 2) Interior planning and spatial sequences; and 3) Exterior massing and character. All three of these issues constantly push and pull at each other, always impacting the others. Thus, every experienced architect understands that designing custom single family homes requires juggling all three of these constraints from start to finish.
If you can do all three of these, and do them well, keep going. If not, don't waste your time and energy, much get yourself attached to some sort of direction which you have spent many hours developing yourself.
Find someone who does this for a living...successfully!
Good luck--exciting times ahead!
- 8 years agolast modified: 8 years ago
Are there windows for the two bedrooms by the studio? Is the only interior access to the studio through a bathroom?
The diagonal walk through space between the two master vanities looks awkward.
What is "love?"
Do you have pics of the house?
I think it's good to play around with plans before hiring the architect because it's a good exercise to realize what is important to you during the design process. Anyway, keep us updated on how it goes! What state is this in?
- 8 years ago
Obviously, as everyone above has said, you need to hire a competent local creative person to look at your space - I'm new to these forums, and I've been reading a lot about architectrunnerguy's design charettes, and I WANT ONE. But that's beside the point. :-)
But I did have one idea jump out at me when I looked at your post, so I thought I'd share it... You did ask for fresh ideas that you might not have considered. :-)
In your aerial photo, it appears there is an existing barn on your lot. My first thought, looking at it, was to incorporate that structure into your new plans - though probably tear it down and rebuild - but use the fact that the footprint of that barn is already a part of your lot, and build an L-shaped addition that respects the original house a little more.
Here's your Take 1, with my approximation (from the photo) of where that existing barn is:

And here's what I mean about incorporating that space into an L-shaped addition:

I feel like recessing the addition a bit on the driveway side feels a little more respectful of the original house - it could create almost a courtyard feel back there. How you parcel out the space, of course, is up to you, but a few ideas pop into my head:
1. The barn space becomes the studio. The garage goes directly behind the house. The problem with that is that the rest of your house ends up feeling like an extended corridor that wraps around the garage.
2. The barn space becomes the garage. If you leave your kitchen roughly where it is in both your ideas, though, that ends up being a long hike to carry groceries from the garage to the kitchen.
3. The barn space becomes the garage. The existing house gets relegated to entirely bedroom space, and the addition houses your studio and all of your more public spaces - so you create an entry in the "courtyard" created by the L of the addition, and place your kitchen, family room, and dining area and studio all in the new part of the house.
4. Not really related to how you use the addition, but another thought: does your wife's studio have to be square? Why not use the front of the existing house (where you're creating a game room) for her studio space? Shed have a separate entrance which could then also come in handy for a future in-law suite (or even a small income apartment). So her studio space would be the existing living and master bedrooms (about 420 sq feet, so a little smaller than you specified), and then part of the existing bedroom or dining room becomes a bathroom serving the studio (and also serving any future apartment space).
I didn't take the time to draw any of this up - that's up to you and your competent local creative person, of course - I just wanted to show you the idea of an L-shaped addition incorporating the footprint of the existing structure.
Good luck!
bruce_bentley2 thanked Quinn Eskimo - 8 years ago
I kept thinking about how an L-shaped addition connecting to a garage where the existing barn is could look, and whether it was possible to fit all the elements you want into such a space. I don't have the skills to hand draw things with any kind of accuracy, but I have software... so I went and played. :-)
A few points to keep in mind:
1. This is, in no way, shape, or form, meant to be anything other than a "hey, lets see how an L-shaped addition could look" - it isn't meant to be anything you'd ever actually build - it has WAY too many weird and wonky elements to it.
2. I have no idea how the roofs would work where the new house meets the old house. The software hacked something together, but it is extremely wonky.
3. Speaking of wonky - there's some seriously wonky stuff going on in this "plan." Weird angles in hallways, etc. I wanted the bedrooms to get natural light, and with so much width, the only way that jumped out at me to do it was to run a hallway down the middle. I'm certain there's MUCH better ways of accomplishing this - talk to your local competent, creative design professional!
3. speaking of hallways - they are an incredible waste of space. I believe a competent designer could give you everything you want in much less square footage (i.e., less money!)
So, with that said, this is the image I generated:
Original house on the left. New entry in addition, garage where the barn shows up in your aerial photo. I feel like this respects the old house, without making it look quite so much like you tacked a big new house onto the back side of a little old house.
This is the overall (rather silly) plan I drew up:

and since you can't see that very well, I broke it into pieces, starting from the back of the house:

Middle of the house (game room/porch overlaps image above - I couldn't remember how much of it I had grabbed for the back view)
and the front:

That's it for tonight. Have fun! Keep us posted on what you come up with.
bruce_bentley2 thanked Quinn Eskimo - 8 years ago
I'm back. :-) The crazy twisty angled hallway really bugged me - I just couldn't leave it like that. And since I drew it, I might as well share it. I was curious how this idea would fill your lot, so I grabbed your photo as a backdrop and tried to get the scaling close to right. There's a bunch of walls here that should be invisible, and a total lack of doors - these are just boxes representing ideas of where rooms might go.
From top of image to bottom: gameroom and garage at the back of the house.
mudroom/breezway with powder room. connecting house to garage.
Kitchen below gameroom, looking over an (undrawn) island to family and dining rooms.
Then comes master bedroom and closet, the start of the hall (opening off the family room), and the family bath.
Below that is the master bath and a bedroom.
Below that is a large storage closet for the studio, the other bedroom, and, finally, at the bottom of the image, the studio.

I also think you might be better served by putting the studio over the garage - their dimensions are roughly the same, and stacking those spaces could save you a significant amount of money. It also makes it much easier to create a side-entry garage (as I believe you said you prefer), and to separate that space in the future as an in-law or small rental apartment. I understand you'd rather keep it on one floor - I'm not sure your reasons for that, but an elevator could help. You can build it with the money you save by cutting 500 square feet off your foundation. ;-)I tried building it that way in the software, but I wasn't happy with how it was coming out, and the software could NOT figure out the roofs, which was really annoying. So I gave up and walked away. I've played with this one enough to make me happy. Time to wait and see what your competent, creative, local talent comes up with. :-)
--Quinn
bruce_bentley2 thanked Quinn Eskimo - 8 years ago
I'm with Virgil- get a competent architect to translate all your ideas into reality. It will be collaborative, and as long as there's good communication you'll be able to "tweak" as he/she designs.
bruce_bentley2
Original Author8 years agoFor those asking for pictures, here's one from the street:

I totally understand Virgil's (and others) concerns -- rest assured we have already spoken with a few local professionals and we're very close to hiring an experienced residential designer.
Reading over several threads the past few days (special thanks to ArchitectRunnerGuy) has helped me to understand the design process better. It has also allowed me an opportunity to see things from an architect's point of view -- I get how it could be frustrating to always have clients bringing in their suggested floor plans... what was the phrase I saw on here somewhere? It was like "bringing a fast food burger to a gourmet buffet" :-)
I think for us, attempting to draw up our own ideas was just an exercise to force us to consider all the details and the push/pull of different needs and wants... and we figured they would be a good jumping off point for discussion with whomever we hired.
As I was searching for different perspectives, I stumbled upon this site and saw some amazing threads where people were collaborating and building off each other. That's what inspired me to post our "armchair architect" layouts. Even if we hire the best architect we can find, some creative and wonderful idea may come out the collective wisdom on this site that could have otherwise been missed...
One thing ARG's other threads have helped me to understand is that even having a few sketches of ideas still doesn't effectively communicate all the reasons why to an architect. You can't just hand over those ideas and say "here, start with this, but make it 10 times better". The design charrette process he described is really the key to getting everyone on the same page. I've definitely learned better questions to ask when evaluating potential architects and designers ("Tell me about your process").
Getting back to question answering:
Rockybird - this is in Georgia. There would be windows in the master, and the spare bedroom near the studio (although in Take 2, there's barely any exterior wall space left for one -- I caught that, but was out of ideas on how to make it better). The shared bath would technically be the only interior access to the Studio -- the whole idea is for my wife to be able to have clients in the studio without them having to come into our house. The shared bath is really just for cost savings...
BTW, the current house faces north. As I've read more about the importance of south facing windows and light penetration, I see that both our ideas haven't been considerate of that and we would have some dark areas...
Quinn - Wow is all I can think of to say right now! Thank you so much for your thoughtful and creative ideas. We had not considered layouts with the studio in the front of the house - that could definitely work, and yes the studio could be an L shape. One of the only reasons we were thinking it would be new construction was also due to cost savings -- other than a few more windows and HVAC, the studio space could pretty much be the same fit and finish as a garage -- bare concrete floors, etc. So we were hoping the cost per square foot to build that could be cheaper... I like your placement for the garage and "bumping in" the L shaped addition to be more respectful of the original house. And I love that the squirrelly hallway bothered you so much you had to come back the next day and make it better. I'd love to know what software you're using... seeing exterior renders really helps me visualize what the completed addition could look like. We are in complete agreement about hallways - we tried our best to eliminate them too. As for keeping things on one level -- for the studio it's pretty important. We have a two story house now and some of my wife's equipment is upstairs. She has tons of gear (lights, backdrops, etc.) and sometimes travels to clients. She is quite tired of the multiple trips up and down the stairs... Depending on the cost savings, we would be willing to consider putting the game room and/or a 3rd bedroom and bath upstairs.
I think that's all for now. Thanks again to everyone for contributing, and I'll be sure to update this as things progress.
- 8 years agolast modified: 8 years ago
The house is charming looking and typical of a craftsman bungalow.
Does the interior have details worth saving like unpainted woodwork or a dining room buffet? Or an original fireplace? Please don't turn it into a HGTV update if it does.
If you're on Facebook, there are two good forums there relating to old craftsman houses and bungalows, American Bungalow and The Arts and Crafts Movement.
bruce_bentley2
Original Author8 years agoHey cpartist - there are not many interior details worth saving... no unpainted wood work and sadly no built-ins (we'd love to add some). Most of the trim work has been pieced together over the years and there are plaster cracks and mismatched trim revealing where doors used to be, etc. An original fireplace between the existing living and master (you can just make it out on the aerial pic I posted) used to be two-sided, but has been covered on the living room side. Original heart pine floors have some rough spots, but overall are in fair condition, and we're hoping to save them (or if needed, re-purpose them for an accent wall or ceiling even). The windows are original and have the wavy glass which is cool to see, but are in disrepair and painted shut.
- 8 years ago
Thanks Bruce and the best of luck with your project. Since you appear to have more than a passing interest in design "stuff" here's a couple more threads. Some great books http://ths.gardenweb.com/discussions/3281434/book-suggestions?n=10 and thoughts on good design http://ths.gardenweb.com/discussions/3285825/what-makes-a-house-have-good-design?n=39
And the best of luck with your project. Exciting times lie ahead!











Architectrunnerguy