14 X 12 Kitchen - Ideal Island Size
Wondering what sizes of kitchen island would fit best with this layout. Dishwasher and sink can be moved in the island itself. We would ideally like some seating, we have many young children so they seem to want to be close to the action! Also not sure if we should install a pendant light over the island, or just leave it as a pot light. We have no upper cupboards going in, and prefer the minimalist look. We decided to put two pot lights over the 14' workspace with the main sink, as we feel one will lead to dark corners at night. Any thoughts?

Comments (31)
- 7 years agolast modified: 7 years ago
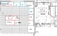
I like the layout in your inspiration picture better, with the fridge in the kitchen. The bottom edge of the island is at 12'. The red lines on the pantry represent a diagonal door.
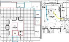
With the island turned:
I don't know if this is a kosher kitchen, but I marked off duplicate zones on the grid layout, just in case.
Related Professionals
Venice Lighting · Austin Furniture & Accessories · Carlsbad Furniture & Accessories · Evanston Furniture & Accessories · Glendale Decks, Patios & Outdoor Enclosures · Little Rock Decks, Patios & Outdoor Enclosures · Monroe Decks, Patios & Outdoor Enclosures · Salisbury Decks, Patios & Outdoor Enclosures · River Edge Architects & Building Designers · Surprise Furniture & Accessories · Hainesport General Contractors · Beloit General Contractors · Easley General Contractors · Sheboygan General Contractors · Sun Prairie General ContractorsRenae Hale
Original Author7 years agomama_goose-
Thanks for your time!
The reason that we have the fridge in the pantry, is provide a clean sight line, since I do not want any upper cabinets. With no uppers a fridge looks very lost and lonely by itself. In my current kitchen, the fridge is about the same distance from the prep area that this design would dictate, and I do not find it limiting in anyway. And this way we can have a sliding door, I'm not a huge fan of angled anything, I like 90 degree corners, not sure why...
We may put in some open shelving potentially, but not much. I love the way the open walls leave room for art and other un-expected things. We don't need any additional storage.
We also would like to keep the dishes close to the dining table, with the dishwasher, and dish storage on that end of the kitchen limiting the amount of travel they(the dishes) will have. I don't usually rinse my dishes, just scrape them, so a garbage can under the island/prep sink, and if we need a sink, that one would suffice.
We are mostly concerned about the size of the island, I would prefer bigger rather than smaller, since this seems to be the area everyone congregates at our current house. I like the island orientation in your first sketch best. And seating along the left side would be best, then I don't need to dodge any people standing on the table side of the island. How many seats could we do? Maybe four? We have five children, so that would be ideal, but maybe that's too big for the space?
- 7 years ago
What kind of hood are you planning? Given the large cooktop area (60"??) you'll have a very large one. This will already be visually occupying vertical space along that wall so adding the fridge there might not stand out as much as you're thinking. I would personally prefer to have the fridge up closer (just cuz you're used to something doesn't mean it can't flow better =) [plus where you have it in the pantry, you'd never be able to fully open the door b/c it's up against the wall AND running the fridge in a small-ish space can really warm up the pantry which isn't great for some goods]
A few examples of just a hood + fridge on a wall:



Renae Hale
Original Author7 years agoDamiarain:
Thank you for you time as well!
Yes, I know two stoves seems excessive, but we own/operate a large ranch, which means I have the responsibility of feeding 8+ very hungry men, plus my own family of seven. The plan for the range hood is for two undermount range fans with a custom "box" similar to the one in the last of your pictures, except it will go all the way to the ceiling. And will be the same color as the tile/wall. There is to be a 4" of natural birch inset along the bottom edge.
The first picture you showed is exactly what I don't want. I do not love the feel or look of this space. It looks very unfinished, and like the fridge was an afterthought (to me anyways) These are also mostly examples where there is a inset wall next to the fridge, unless I put one in, my fridge would be by itself, with no wall next to it. You would have to balance/ it with something, (such as they tried to do in the last picture with the range hood being painted the same, and the same height) as well as building it in or having panels on the front. and adding cupboards to the other side of the range hood. And as well as having very tall walls, this creates shadows on the top of cupboards, and fridges that I was looking to avoid in the main kitchen( I don't want to add additional lighting) or cupboards to the roof. Hence why we decided no uppers at all.The issue of not being able to open the fridge door would also apply to at least 2/3 of these pictures as well, since they are against walls too. The trick is you leave a small space, not really a problem.
We are mostly wondering about the island size, would like your input on that!- 7 years agolast modified: 7 years ago
You're willing to walk into the pantry, every time you need something from the fridge, but you're not willing to carry dishes (or have helpers carry dishes) from the most convenient spot for DW/dish storage, to the table? And you'd prefer to do dishes from the prep sink, with no landing space on one side?
To have adequate prep and clean-up space and seating for 5, you're going to need a much larger island. You'll have the minimum NKBA recommended prep space on the current island, and you have all that wasted space around the larger sink. If you separate your prep and clean-up zones, helpers can load or unload the DW, or gather dishes to set the table, without entering your prep space. Everyone can carry his own dishes to the clean-up area at the end of the meal. If kids are too small, now, to carry their own dishes, they won't be too small for long.

Each seat at an island needs 24" of elbow room on the counter, and 15" of knee space. See link below:
ETA, the doors on most refrigerators won't open fully if the fridge is against a wall. Check your specs to see how much space you need between the fridge and wall to open the door far enough to remove crispers for cleaning.
Five seats at the island in your design:

Another thought, if you make it an open galley, with only one sink, then you have ample prep space on the island, 5 seats, and DW and dish storage near the table. As children learn to help, you can have them prepping at each end of the island. Note that the work aisle is a little wider than the standard 48":
Renae Hale thanked mama goose_gw zn6OH - 7 years ago
HI! Love that big window and huge pantry. I think you will need bigger.
What kind of countertop material are you going with?
What are the dimensions of the stove wall and then from the present island to the wall at the bottom? From the island to the perimeter cabinets(and have you lived with this proposed width and is it comfortable to you)? What is the size of the table being used. This will help!
I would look into that commercial? range as but these can be costly and need to meet special requirements (like electric, hoods) and is that ok? Additionally do you find one dishwasher and one fridge adequate?
Should we assume two cooks?
Where in your present plan do you plan on standing and doing your prep? Thanks!
Renae Hale
Original Author7 years agoMid America Mom:
We haven't decided for sure on a countertop, I was thinking something very hardy, especially on the island , as it will most likely see the most abuse. What do you " think?The wall with the ovens is 15'6", and our table is 87" X 37" fully extended. I know it is an odd size, it is an antique from my grandparents. I'm not sure of the width that is present in the plans my best guess is 48" (also guessing the current island is about 5'X5'?), This was one thing that I didn't bother with a whole lot with out architect, she had wonderful structural engineering skills, but is perhaps not the most skilled designer. Do you have a size that is the most comfortable?
I forsee most of my time being spent between the stove and the island space. This is why I'am unsure of where the best place to put the sink is, in the middle or one of the sides? Should the island be narrower (4') and longer (toward the kitchen table) around 6'-6-1/5'? I think mama_goose has a good point about the dishwasher/dishes drawer being in the same area as the prep.. My older boys mostly empty/load the dishwasher, so maybe it would be better over by the main sink area?
We originally looked into doing commercial range with six burners, and one and a half ovens, but it is much cheaper/functional (more burners and two full ovens..) to have two regular ranges side by side. One fridge and one dishwasher are adequate, we bring at least half of the meals out to the men, so that cuts down greatly on dishes. We will have an additional fridge located in the cold storage room, and I put up a large amount of produce through canning(also in the cold-storage)
I have one daughter (she is only two now..) so far, so there will be two cooks eventually.
And thank you for not commenting on the fridge, I know it wouldn't work for everyone(or most people ;)
- 7 years ago
:-) You are welcome. I love hearing about cold storage (jealous).
Sorry cannot help on lighting as I dislike pot/puck (it creates a spotlight thing).
In my perfect world I would have a commercial grade stainless OR the blue-ish soapstone. Cleaning these are a breeze and there is no need for special sealers etc. Slab sizes can cause seams and some folks worry about that. Weight concerns for any material and if you need to reinforce or add supports.
I asked about the table as I did not see one in your plan. That is so lovely you are using a family heirloom. With 37 that is a bit narrow. How does your family serve? Some do the "spread" on the table. I have done a sideboard in a past house. Many days we lay out in the kitchen under our dish cabinets. If you do decide to use the island make sure to buy stools that do not have a back.
People love to center the main or cleanup sink on windows as it looks "right". Getting things cleared is a quick process so I would put the dishwasher there and it does not go into valuable space near the table and gives you a needed cabinet there. It is suggested to have the dishwasher out of the prep area so it would be on the left side of the main sink in this plan. Consider a very large two bowl, with a gooseneck faucet, so you can put in cookie sheets, casserole pans, dutch oven and stock pots without issues. You have a huge window there so you could even have one with an integral drainboard (to me most of these are swoon worthy) like you see with Elkay - http://www.elkay.com/kitchen-sinks#q=|15|15|1|ads_f22001_ntk_cs%3A%22Drainboard%22
- 7 years ago
It is hard to give you size as I still do not have a handle to actual dimensions of the space from top at the window to the bottom (23'?) . I think you could go longer but not sure as you have to worry about walkway clearances. I see right to left is about 15' in this plan. I assume the table is at the bottom of the plan. 3 folks on each side or is it a head/bottom of the table for parents flanked by two on each side? What is the space to the left of the kitchen going to be and what furniture placement will be in there?
Is there a micro if so where? Where is dish storage?
Getting closer :-)
- 7 years ago
Can you post a clip of the kitchen as well as the spaces around it? I'd like to see how it all works together.
Is this your only dining area?
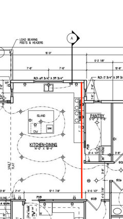
You may have already answered this, but I couldn't find it. What is the overall length of the kitchen/dining (red line?)

Renae Hale
Original Author7 years agoThe pot light issue can be mostly solved if you get ones that are rounded, and protrude slightly from the ceiling, they do not cast shadows on the ceiling, instead they light it up too. I looked high and low for them when we remodeled the lighting fixtures in our current house, because I am not a fan of the shadow making/ spot light thing either! The newer LEDs have come along way. But that's my feelings....less fixtures to date everything...My parents put good pot-lights in twenty-five years ago, they still look up-to-date.
My current sink is 33" wide and 9" deep, I know I would want something the same size if not a bit larger, and I Have the faucet picked out, picture below. I am not sure about material of the sink, I have enjoyed stainless in the past and think it will be the most enduring option as far as "in-syle" goes. But I do like the idea of white silgranite, too. And I know that brass/gold is trendy right now, but when I got engaged (2008, when all you could find was white gold) we special ordered yellow gold wedding rings for me. I've always loved yellow gold best, very excited we are living in a world where its 'a thing' again. The last picture is what we're thinking for a color scheme.
This will be our only dining area. The space is 22-23' (your red line benjesbride) from top to bottom and 14' wide (the exterior is 15'). We eat several different ways, with a family function(we have quite a large family, my husband is one of five as well) , we usually do a buffet style, so that would most likely be on a countertop somewhere ( most likely people would want to sit at the island) With the Hired Hands, its quite often served on the table in bowls/platters (or pots and pans because we're really fancy...) With just my personal family, I most often make up the plates and serve them that way (my kids are young, 8,6,4,2, and new, so thinking later it may be more of self-serve on the table). We've used the table for ten years, so not too worried about it being narrow. It will be oriented horizontally in the sketch, with three/four chairs on each side and one on each end. (photo of it in our current house for reference, it is only extended to 72" which is where is generally stays unless we have company. Along with terrible lighting for this picture, the walls are white!)"I'am very odd in the fact that I do not use a microwave, and have no plans to ever have one. (apparently odd in more than one way…)
I would put the dish storage in a big drawer on the left side of the dishwasher, which is left of the main sink. I think that will work best. So happy for all the advice! I may put some open shelving there too. But Personally I like the minimalist look, so I wouldn't want a bunch of things stacked there.
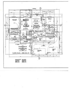
I have also included a picture of the entire main floor, and feel free to laugh at my quickly sketched lines (by no means straight) but hopefully somewhat to scale.




- 7 years ago
Quick note before I read more. LOL I too dislike micros! Did not have one for years in our previous house. I once had one in the pantry (hey you will have electric for the fridge there...). This house I conceded to one but it is over the stove and not taking up my precious counter or lower drawer space. We hardly use it.
- 7 years ago
Ha! When I saw you were planning two ranges I immediately thought of Chris loves Julia's kitchen. Nice :-)
- 7 years ago
Are you working with an architect?
As I'm looking at your whole house plan, I'm seeing some areas that seem um, unrefined. Like the secondary bathroom. And the super narrow office. I have concerns about your kitchen/dining space, but it seems the constraints are part of the ripple effect of design decisions elsewhere in your house.
Renae Hale
Original Author7 years agoYes we have an architect. She is very skilled with structural engineering like I said, not so much when it comes to design. The narrow office is not really one of my concerns, it will have a narrow desk for a portion, and be used rarely (our shop has the main office in it), probably mostly for book storage. But if you have any suggestions with the main Bath, feel free to share. I wasn't going to pay her $200.00 an hour to come up with more odd suggestions, if you know what I mean. So there is a few unstructural things (like the kitchen, and main bath, and the odd electrical layout... no plugs in the garage?!) that we left alone.
- 7 years ago
Is there a way you can post the house drawing with clearer dimensions? It's too blurry for me to see. Well, I think it's the image and not my aging eyes. Ha.
Renae Hale
Original Author7 years agoI can't post a PDF, it would seem, but o can give you whichever dimensions you need. The top of the layout (big Kitchen window) points north-northeast.
- 7 years agolast modified: 7 years ago
You have 3 sons and one daughter, so therefore you will have one more cook?!? What if your sons want to cook? What if your daughter hates cooking and wants to work on the ranch? OMG, this is 2018! Get those boys working in the kitchen!
- 7 years agolast modified: 7 years ago
Yes we have an architect.
Are you sure it's a licensed architect and not a "designer"? BIG difference and I'm sorry with the odd sizes and layout, it looks more like what a designer would create.
How large is your property? I ask because if you have a narrow city type lot, I can understand the front load snout garage sticking out in front of the house. However if you're on any amount of land, I can't understand why you'd want a garage being the first thing you see as you drive up and overwhelming the look of the house.
This house as designed is not for land but for a city lot. You can do better. Sorry.
- 7 years ago
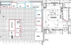
Hi! Just taking into consideration no seating on the bottom or right side of the possible island with seating 5. I also come up with mama goose's idea. 6*5'3" ish. I would do a column/leg support at the corner. With that many people in the household I would not go any smaller than 48" aisle. Three choices "but" 1. Moving the dishwasher then into the prep/cook areas ... the helpful guidelines tell us that this is frowned upon. 2. Moving the dishwasher to the far left of the sink which most folks would not do as many rinse. Why far left? The door would potentially hit a diner (if this was next to the sink) or you could not pass when diner there and door open. I mocked up mama's ;-)

- 7 years ago
Renae - your house plan is stressing me out. I'm weird like that. I was going to try to make some suggestions, but... Where the heck is your master closet?!
- 7 years ago
I hate to bring it up. BUT I would not recommend this proposed plan. As designed now your dining area feels like a giant hallway. You cannot go much skinnier on a table. There is wasted space near the laundry and near the pantry. There is a pinch point between table and island which would feel exaggerated due to that wasted space... Even if we shrink the island or turn it into a double galley.
I would change the raw space (move or eliminate stuff like storage next to laundry?) and see what comes from that.
Renae Hale
Original Author7 years agolast modified: 7 years agoGood grief, life is too short to stress about someone else house plans ;) Thank you for all of your input, it has helped!
mama goose, I love what you did! Gives us a very good idea of what we're after. Thank you so much, really! (it's even Husband approved)- 7 years ago
Renae.....Don't know if this was mentioned (I didn't read the entire thread), but you do not have enough lighting in your kitchen and the lighting you do have is not in the correct place. You only have 5 cans in the entire kitchen (not including the one over the sink). Your entire sink wall (which is 14 feet long) has only one light ...the one over the sink. You have zero lighting over your counters and the lighting you do have will cast shadows on all your task/prep areas.
- 7 years ago
I wanted to try out an idea and see if it worked out on "paper" so to speak. I'm going to post what I did in case it sparks ideas or helps in any way. If it doesn't that's totally okay. I just draw floor plans for fun, like a puzzle.
My goals were 1) to put the dining room next to big windows 2) to position the pantry in such a way that you don't have to go around a corner to get into the fridge.
I also moved a lot of other stuff around that you can see in the third image; WIC for the bedroom, changed bathroom, moved storage closet, moved garage door, added bench and hooks, moved laundry and pantry so they have storage on both sides with more efficient layouts.
Again, just for fun. If it's not helpful please just keep scrolling :-)



- 7 years agolast modified: 7 years ago
Coming from a momma with four kiddos who also lives on acreage. Please know I'm not tearing apart this plan I'm just pointing out things that I know I would want. Also I do not know what part of the country you are in. We live in Minnesota so messy cold wet snowy things we need a spot to dump them(voice to text). We also have lots of dirt and gravel and that sort of thing.
-First off I would want an entrance directly from the outdoors, that's a family entrance with a large closet, either open or closed lockers lots of Boot & Shoe storage.
-With five kiddos I would prefer laundry near their bedrooms.
-I would not want a laundry walkthrough from the garage ALTHOUGH a 2nd laundry for dirty barn clothes near family entrance is wonderful! No extra carrying of messy clothes to laundry. My laundry room is never pinterest-worthy ;) and I like to be able to shut the door not think about that :)
- master bedroom closet, I do not see one.
- Closet in your entryway. Again I'm not sure what part of the country are in so maybe you don't need to have storage for company's coats but you do have a big extended family so?? Would you be having hooks on the walls or???
- do you need a bathroom that your Ranch hands use or is that in one of your outbuildings?
- I love the idea of an office space with books, I would think of it more as a library do you think that you would utilize that space with all that desk area or would you rather have it a reading Nook?
Absolutely love using two 30 inch ranges. In my opinion it is the perfect way to get a 60 inch range for an excellent price point.
- 7 years agolast modified: 7 years ago
You're welcome, Renae. Here's a rough idea of taking space from the laundry entry, and storage areas--maybe 18" deep. I gave you a narrow bookcase beside the stairs, and a closet where the storage area was drawn. I omitted the enclosure around the fridge, although the fridge location did not change. In one of my previous posts I mentioned that most refrigerator doors won't open fully against a perpendicular wall, so if the stub wall is even with the fridge box, there will be no problem opening the fridge door far enough to remove crispers for cleaning. I put the sliding pantry door beside the fridge. If you need to open the left door of the fridge past 90°, you can open the slider.

Also, couldn't resist rearranging master bedroom and bath to give you a walk-in closet. (You have no idea how much time I spend thinking about other people's house plans. ;) It took the office/library, but there is a corner of the BR with a desk for office work. I drew an optional closet for the foyer entry--are you using the space under the foyer entry stairs?












mama goose_gw zn6OH