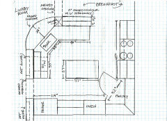
Help Please! Dark kitchen...Taj Mahal counters? Paint cabinets?
4 years ago
Related Stories

KITCHEN CABINETS7 Ways to Pair Dark Kitchen Cabinets With Dark Counters
Dare to dive into the deep for a sophisticated look in your cooking space
Full Story
KITCHEN CABINETSPainted vs. Stained Kitchen Cabinets
Wondering whether to go for natural wood or a painted finish for your cabinets? These pros and cons can help
Full Story
KITCHEN DESIGNKitchen of the Week: White Cabinets With a Big Island, Please!
Designers help a growing Chicago-area family put together a simple, clean and high-functioning space
Full Story
KITCHEN MAKEOVERSBefore and After: 3 Kitchens With Gorgeous Dark Green Cabinets
Cabinetry painted in rich shades of green adds life to these stylishly remodeled kitchens
Full Story
KITCHEN DESIGNDark Green Cabinets Add Elegance to a Welcoming Kitchen
See the clever storage and design ideas in this family hub in Ireland
Full Story
KITCHEN CABINETSKitchen Cabinet Color: Should You Paint or Stain?
Learn about durability, looks, cost and more for wooden cabinet finishes to make the right choice for your kitchen
Full Story
MOST POPULARFrom the Pros: How to Paint Kitchen Cabinets
Want a major new look for your kitchen or bathroom cabinets on a DIY budget? Don't pick up a paintbrush until you read this
Full Story
BEFORE AND AFTERSBefore and After: New Paint, Counter and Tile Refresh a Kitchen
A former restaurant owner chooses a new palette inspired by her beloved Lake Michigan
Full Story
KITCHEN CABINETSHow to Update Your Kitchen Cabinets With Paint
A pro gives advice on when and how to paint your cabinets. Get the step-by-step
Full Story
KITCHEN CABINETS7 Reasons to Choose Dark Kitchen Cabinets
A deep color on your kitchen cabinetry can offer coziness, elegance, drama and more
Full Story

kempek01
llpmortonOriginal Author
Related Professionals
Highland Park Kitchen & Bathroom Designers · Mount Prospect Kitchen & Bathroom Designers · Piedmont Kitchen & Bathroom Designers · Feasterville Trevose Kitchen & Bathroom Remodelers · Glade Hill Kitchen & Bathroom Remodelers · Broadlands Kitchen & Bathroom Remodelers · Phoenix Kitchen & Bathroom Remodelers · Salinas Kitchen & Bathroom Remodelers · Sun Valley Kitchen & Bathroom Remodelers · Winchester Kitchen & Bathroom Remodelers · Cave Spring Kitchen & Bathroom Remodelers · Bullhead City Cabinets & Cabinetry · Murray Cabinets & Cabinetry · Red Bank Cabinets & Cabinetry · La Canada Flintridge Tile and Stone Contractorsbiondanonima (Zone 7a Hudson Valley)
dan1888
llpmortonOriginal Author
E Huntley
biondanonima (Zone 7a Hudson Valley)