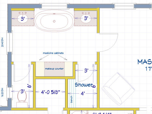
3x6 walking area in shower? How does this size feel
5 years ago
Featured Answer
Sort by:Oldest
Comments (17)
Related Professionals
Bloomingdale Interior Designers & Decorators · Boise Interior Designers & Decorators · Frankfort Kitchen & Bathroom Designers · Hammond Kitchen & Bathroom Designers · Fort Wayne Furniture & Accessories · Athens General Contractors · Avon Lake General Contractors · Casas Adobes General Contractors · Parsons General Contractors · Pine Hills General Contractors · Carlisle Kitchen & Bathroom Designers · Portland Kitchen & Bathroom Designers · Tempe Bathroom Remodelers · Terrell Bathroom Remodelers · Walnut Creek Window Treatments- 5 years ago
- 5 years ago
- 5 years ago
- 5 years agolast modified: 5 years ago
- 5 years ago
- 5 years ago
- 5 years ago
- 5 years ago
- 5 years ago
Related Stories

NEW THIS WEEK6 Small Bathrooms With Dramatic Walk-In Showers
In 65 square feet or less, these designers make big design statements using stylish tile and bold contrast
Full Story
BATHROOM DESIGNNew This Week: 3 Baths With Walk-in Showers and Stand-Alone Tubs
See how these spacious bathrooms celebrate elegant stand-alone bathtubs and luxurious walk-in showers
Full Story
BATHROOM DESIGNNew This Week: 9 Bathrooms With Stylish Walk-In Showers
Pros use tile and color to create a cohesive feeling in rooms with curbless and low-barrier showers
Full Story
MOST POPULAR10 Stylish Small Bathrooms With Walk-In Showers
Get inspired by this collection of compact bathrooms that make a splash with standout design details
Full Story
BATHROOM MAKEOVERSReader Bathroom: A New Shower and a Spa Look for $6,100 in Iowa
Over the course of 8 years and 2 renovations, a couple turn their dated bathroom into a relaxing and uplifting space
Full Story
BACKYARD IDEAS6 Cozy Outbuildings That Feel Like Cabins in the Woods
Get ideas for a backyard retreat from outbuildings that create the feeling of camping out at home
Full Story
LIFEHouzz Call: Does Caring for Your Home Feel Like Fun, Not Labor?
For Labor Day, we’d like to hear what home projects don’t feel like work to you. We’re guessing that a lot bring you joy
Full Story
BATHROOM DESIGNNew This Week: 10 Bathrooms With Wonderful Walk-In Showers
See the features that make these inspiring spaces about more than just washing and rinsing
Full Story
SHOWERS5 Reasons to Choose a Walk-In Shower
Curbless and low-barrier showers can be accessible, low-maintenance and attractive
Full Story
BATHROOM DESIGN5 Bathrooms With Wet Room Areas for a Tub and a Shower
The trending layout style squeezes more function into these bathrooms
Full StorySponsored
Fairfax County's Specialized, Comprehensive Renovations Firm

Carrie B