Need opinions! Can't decide on kitchen design.
We've wrestled with the design of the kitchen for years and last year I finally paid a designer to help.
I'm worried about a few things. Will I like having the fridge so close to the sink - will it be cramped? Will I be annoyed that the fridge obstructs the view into the mudroom so that I won't be able to see who is at the side door? Is it dumb to put the stove on an inside wall so that I'll have to have two 90 degree turns (and run the vent through the mudroom and laundry closet) to vent it outside?
It seems like this design is the only way to get the cabinet space that I want while keeping my giant fridge. What do you think of the design?
I've attached the designers plan (with IKEA sized cabinets in red) and elevation (not updated to reflect IKEA cabinet dimensions - but to give an idea), plus the plan in IKEA format, and a few pictures from when we bought the house.
I need either the courage to go through with this plan, or some ideas to make it better. Any help much appreciated!


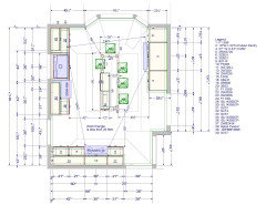
Plan converted to IKEA

Round arch to living room, french door to dining room, opening to hall

Fridge currently on dining room wall and stove backing onto laundry closet in mudroom. New plan swaps the fridge and stove. Door goes to mudroom.

View of sink, bay window, island, and dishwasher, all which will stay essentially in same place in new design.

Pantry will go on the left on the wall backing onto living room.

Comments (57)
- 4 years ago
Mamagoose's plan is excellent, although it doesn't get you much more in the way of storage. Can you remove the soffit? That would allow you to put in taller uppers for a few extra inches, at least. You could also add open shelves across the window.
- 4 years ago
Yes, 15" either side of the stove is workable but tight. The bigger problem is the depth of the fridge. A counter-depth fridge wouldn't hold so much but also wouldn't dominate the kitchen. Is there room in your house somewhere else for a second fridge?
Related Professionals
Corcoran Kitchen & Bathroom Designers · Bay City General Contractors · Rolling Hills Estates General Contractors · Seguin General Contractors · Westerly General Contractors · Kalamazoo Kitchen & Bathroom Designers · Bonita Cabinets & Cabinetry · Plum Design-Build Firms · Ojus Kitchen & Bathroom Designers · York Bathroom Remodelers · Fairmont Bathroom Remodelers · Arkansas Interior Designers & Decorators · Augusta General Contractors · Newington General Contractors · Waianae General Contractors- 4 years ago
Hi Anne, Thanks for giving me the fridge dimensions. The fridge is important because it's the largest piece in the kitchen and whereever you place it, it's going to take up space. Once I made the bay window in the drawing, it has opened up the top right corner. I have moved the fridge away from the window with a 6" filler and to me it looks alright. If you want, you can put a Pull Out Pantry to the left of the fridge (12" wide) and then it won't obstruct the view. I have managed to provide plently of counterspace and cabinets for storage. There are two 42" wide wall cabinets, a 33" and two 30" bases. Facing the range is an 18" pullout. To the left of the dishwasher is a 21" wide trash and recycle cabinet with two large bins. Enough seating at the island for four people and the over hang is 15" on both sides. Let me know what you think.




Anne Kirsten Bowser thanked User - 4 years agolast modified: 4 years ago
No to DW between sink and range!
Avoid a "barrier island" -- the island should not be between
- The sink & Prep Zone and the refrigerator
- The range and the refrigerator
- The sink & Prep Zone and the refrigerator
Be sure you have adequate aisles between the island and the sink run, between the range and the island, and between the back run of cabinets and island.The minimum work aisle width is 42" for a one-person (and always a one-person kitchen) and 48" for more than on person. Keep in mind that aisles are measured to/from the items that stick out the farthest into the aisle -- counter overhangs, appliance handles, walls, etc. They are not measured to/from cabinets. Cabinet measurements only include the boxes, they do not include the doors/drawer fronts (~1 more) or counter overhangs (~1.5" more). The typical perimeter is 25.5" deep.
Aisle width behind seating ranges from
- a minimum of 44" when there is NOTHING behind the seats other than a blank wall -AND- no traffic behind the seats to
- 51" to 54" when there are counters/appliances/cabinets behind the seats and/or traffic behind the seats to
- 60" when two seating areas are back-to-back (e.g., table and counter seating are back-to-back)
Minimum seating overhang for a counter-height island is 15". Don't skimp, people will take up the same amount of room in the aisle regardless of overhang, they'll just be more uncomfortable sitting there with a shallower overhang. If you are a tall family (or have long legs), then 15" might not be enough. It's fine for most people. If you do skimp, then add the inches you're skimping on to the aisle behind the seats...like I said, people will take up the same amount of space, so you need to account for it. Islands with seating and standard cabinets should be 41.5" deep -- 1.5" counter overhang + 24"D cabinets + 1" decorative doors/end panels on the backs of the cabinets + 15" seating overhang = 41.5"An option if you cannot fit a 41.5" deep island is to have shallower cabinets in the island.
- 4 years agolast modified: 4 years ago
These links will help you understand the comments you are receiving. They've been taken from the "New to Kitchens? Read Me First!" thread:
Kitchen Design Best Practices/Guidelines:
- Work Zones, What Are They?: https://www.gardenweb.com/discussions/5500762/faq-kitchen-work-zones-what-are-they
- Aisles Widths, Seating Overhangs, etc.: https://www.gardenweb.com/discussions/5500771/faq-aisle-widths-walkways-seating-overhangs-work-landing-space-etc
- Storage Planning: https://www.gardenweb.com/discussions/5500787/faq-how-do-i-plan-for-storage
- Ice.Water.Stone.Fire, a humorous discussion of Kitchen design: https://www.houzz.com/discussions/2699918/looking-for-layout-help-memorize-this-first
- 4 years agolast modified: 4 years ago
Based on 12'11", you do not have room for an island with seating plus cabinets behind the island.
25.5" deep counter on the window side
+ 42" wide aisle (bare minimum)
+ 41.5" deep island
+ 44" aisle behind the island
================
153"
12'11" = 155"
155" - 153" = 2" left to work with
You do not have room for any cabinets behind the island. There's room for the island, but not the cabinets behind them that some are showing. Even reducing the depth of the island cabinets will not gain you enough room.
How many seats are needed at the island? Would two on each end (total of 4 seats) be sufficient? Would extra drawer bases on the back of the island provide enough additional storage?
Note: Since you have a large family, consider putting those 2" into the aisle between the island and the window wall. 48" would be better....with a large family, sufficient aisle widths become very important. Think about having you and a couple of kids helping out with meal prep (assuming you have children, I'm making that assumption based on your "large family" comment.)
Could you please post a sketch of the entire floor the Kitchen is on? It lets us see how the Kitchen relates to the rest of the home. It doesn't have to be to-scale, but it should accurately show how the rooms relate to each other and should include all interior & exterior doors. In addition, it will help us see how traffic flows in, around, and through the Kitchen. Label the front entry and family entry. The family entry is usually a garage or side entry, but it might not be. It's helpful to know which door you use to bring in groceries. - 4 years agolast modified: 4 years ago
Look at Mama Goose's plan...it's a good plan if you must have an island with seating.
- 4 years agolast modified: 4 years ago
@Buehl Draw a floor plan, elevations, with full dimensions, and post it, PLEASE. Once you start drawing then you will understand you cannot get everything you wish for. You have to compromise somewhere, question is where.
There was another project where you did your math and your numbers were wrong. Are you Kitchen and Bath designer/remodeler? It doesn't seem like you are.
- 4 years agolast modified: 4 years ago
On which post was my math wrong?
Is the above wrong?
In your first layout, I saw a 33" aisle -- yikes! Way too narrow - especially for a large family!
- 4 years ago
Anne, if you are planning on getting rid of the bay window in future and replacing it with a patio door, why not extend the wall where I have placed the fridge so it will no longer obstruct the view? Just a thought.
And @Buehl please post a floor plan with dimensions to prove your math. Copy pasting NKBA guidelines does not prove your competence. Applying these guidelines matters and you have not offered any solutions based your ability to follow these guidelines. Which makes me wonder if you really are an experienced professional. If you are not a professional your comments can prove to be dangerous, because this is serious work.FYI plan was revised to show minimum 36" clearance in both isles.
Anne Kirsten Bowser thanked User - 4 years agolast modified: 4 years ago
I agree with Buehl about the barrier island (which is why I didn't make the island a barrier between appliances in the plan I posted), and aisle widths. Having the appliances so spread out is less efficient for the cook, and the fridge-to-range leg is more than the NKBA recommend max distance of 9' for good kitchen function. (And no, I'm not a pro.)
The first plan posted (by the OP) is better for a work triangle, except for the traffic passing through the cooking zone:
A few inches could be added between the sink and fridge by lining up the right edge of the sink with the right edge of the window. The asymmetry could be disguised by centering the faucet on the window:

- 4 years ago
I have seen all the plans posted here and we can keep posting guidelines and old theories, but it is up to Anne to decide what works in her home, not us.
The things to keep in mind are number of people in the house, their ages, how much do they use the kitchen, who cooks mostly, what kind of menus do they cook, ethnic foods they cook, do they entertain, is the kitchen the center stage of the party, is the home owner a chef or a baker, what cooking utensils and special items do they use, what kind of storage are they looking for, how often do they use the microwave and for what...........these are all personal questions and that is what determines the layout of the kitchen. Secondly, how big is the house. I would never recommend anyone putting a tiny kitchen in a massive house, it shows poorly when listed for sale and when they have company. Thirdly, it is an exercise to cook, serve and clean so one has to learn to get around things like islands etc. If Anne wants an island she's going to have to run around it all the time.
The plan I have proposed is keeping in mind that there could be more than one person working in the kitchen at the same time. When that happens everyone is doing something different and not the same thing at the same time. Neither are tasks overlapped and I am assuming that Anne is organized enough for her kitchen to function.
A sink in the middle of a kitchen is like your dirty laundry at the front door, greeting guests as they walk in.
What really happens in the Kitchen maybe similar to this flow chart. As a Lunchtime example that lasts for roughly 2 hours from preparation to cleanup. In this flowchart I have started from the fridge with a green arrow. Follow the arrows and find your way around the kitchen.
I am a professional ktichen and bath designer and remodeler, and a chef, I completed my degree in Hotel Management, Catering and Nutrition. I have designed kitchens for Bakers, Chefs and Canners and I am always learning something new. I am waiting for Anne's feedback because she should be communicating with designers/contractors at this point.........sorry guys, I am begging you to stop confusing her. If you have designed your own kitchens, that is not enough. We have designed and installed hundreds of kitchens and pros on this platform need a voice.
- 4 years agolast modified: 4 years ago
No one here is trying to stop pros from offering advice. Nowhere, until your last post did you state you are a pro. Nowhere in Buehl's posts, or my posts, did we state we are pros. As you stated, Anne can make up her mind--no one is twisting her arm. Get a grip and act like a professional--if your advice is sound it will speak for itself--no need to 'beg' another person to stop posting.
And seriously? You liked your own post?

- 4 years agolast modified: 4 years ago
As requested, here's the floor plan

Island is 41.5" deepCounters under the window are 25.5"D
With a large family, 36"W aisles are too narrow. I speak from experience. I come from a large family (8 of us) and we had 36" aisles between the table and counters. It was awful! Fortunately, we were able to move the table out of the way (of course, we had to move it back for dinner, but at least we could move it out of the way when trying to work in the Kitchen). An island cannot be moved out of the way.
Even 42" is too narrow for a large family, but with the limited amount of space available and all the doors & windows, 48" is not going to be possible without either eliminating the seating at the island or shallower cabinets in the island.
Of course it's up to Anne to make the final decision. However it's up to us to warn her of the issues so she and her family can make an informed decision. They will go into this knowing what issues they think they can live with and make their decisions accordingly. But do not do them a disservice by not at least warning them.
- 4 years ago
I’ve skimmed through the comments (looks like a lot of great advice.) I agonized over my reno for months trying to improve my issues, so I understand.
I would flip the fridge & stove back to original locations, shrink that island by losing the overhang, and be very sure you can remove those walls in the entry. They look suspiciously load bearing.
- 4 years ago
Anne -- I'm sorry your post seems to have devolved into this. Please do not let what is happening above stop you from posting.
- 4 years ago
@mama goose_gw zn6OH I am a new pro on this platform, less than 2 weeks. You cannot unlike any 'like' if you clicked it by mistake. It's not the same as Facebook that you can unlike something you liked before. FYI
My very first post I interacted on a Kitchen remodel, out of nowhere, I was trolled by non-pros for a few days with nasty personal comments. They wanted me off the discussions and I don't know why. These guys are still continuing to troll other pros and Houzz doesn't want to remove them. Honestly, the level of professionalism of Houzz is falling because Pros are unable to function here. We are busy off this platform working and this gives us an opportunity to educate people.
I complained to Houzz and their posts were removed. But Houzz didn't look far enough to investigate how these non-pros are trolling other pros. I wrote several emails of examples of how pros are forced to lay low because any negative comment from us affects our portfolio here and if we direct our customers to Houzz, they read everything.
After long awating for a response from Houzz, they don't want to clean up their act. If home owners prefer to listen to anyone regardless of pro or non-pro then I decided to interact as a non-pro. I have a choice, I used the option. I had to, because people like yourself think they know everything, but one or two comments doesn't solve the problem, copy pasting NKBA guidelines is not the right way to offer advise. NKBA guidelines are for us to help you. A person who doesn't have the basic knowledge of designing kitchens, will only be more confused trying to figure out how to use the NKBA guidelines. It's like, trying to figure out how to do surgery on yourself by reading the Grey's Anatomy. Would you like to be on a medical discussion platform and tell the patient not to listen to the physician? Where will that patient end up? Right here like Anne's discussion, confused and bewildered.
I would love to have pros post complete plans of their own designs so we can learn from each other and offer the best solution to people looking for help.
In another discussion on Houzz, in the very end, laying low throughout the discussion, a pro commented to the effect of 'we've gone around in circles and there has been no solution'. End of discussion. The poor lady wanted advise, but this is exactly what happened. Here is the perfect example of what non-pros do. They want to be smarter than pros and no one benefits from the discussion.
You don't have to repeat 'find a pro, find a pro, find a pro' and then not listen to us. I want Anne to know that this his how mistakes are being made in homes and we as pros notice them when we walk through them. Mistakes like code violations, low grade cabinets in an expensive home........I could go on. Whether it's a spec home or pictures posted on Realtor, or remodeling an old home, regardless it's the experience as a whole that counts. - 4 years agolast modified: 4 years ago
You cannot unlike any 'like' if you clicked it by mistake. I just liked Buehl's post, then clicked the thumbs up icon to cancel it, then liked it again. Being able to cancel might depend on the device one is using (laptop vs phone, etc.), so I apologize to you, for my response, if you liked you own post by mistake and can't change it.
Neither Buehl, nor I, are trolls. I have never trolled another poster, no matter how inappropriate his post--so please don't paint us all with the same brush. You haven't read many of my posts if you have the impression I think I know everything. I don't, which is why I try to remember to cite the sources (see my links to NKBA and New to Kitchens thread). This is not the only source for info for someone who is planning a kitchen--I don't expect anyone to take only my advice without doing some research, or contacting a pro (KD, contractor, architect) if that meets their comfort level.
Welcome to the forum. I think there is room for all of us to interact courteously in the Kitchens forum, therefor I am going about my usual MO, and the folks looking for advice can take mine or ignore it--as long as they are informed and won't have regrets as soon as the paint is dry in the new kitchen.
I also apologize to Anne for the direction this thread has taken.
- 4 years agolast modified: 4 years ago
I think mama goose’s plan is probably the best option thus far.
Mavvery Sure, your initial plan, and those following have a 6 inch filler beside a French door fridge. There is absolutely no way you can open the door wide enough to remove drawers for cleaning in that space. In my situation, because of the shelves on the inside of the door, you need at least 14 inches space in order for the drawers to clear the doors. Maybe if there was a bay window there it could work, but I don’t think that is happening at this point.
- 4 years ago
@Buehl Thanks for posting a plan. I read all your comments and understand what can happen in a large family. As another example, my parents were 11 family members and only the person cooking was allowed in the cooking area at a time, because it's dangerous. in those days, the kitchen was 6' x 6' enclosed space. No one was allowed in this space because of contamination. It was a sacred space in the house. That's why we had dining rooms separate from the cooking area and the same dining room was used for prep work. Those sentiments no longer exist. We had rules and we followed them.
I have a very small kitchen today and we are only two people the distance between the counters is 52" and only one of us can be there at a time. So, we have decided to cook a whole meal one at a time and it's working for us.
If Anne wants an island and she wants a 42" that is not doable but maybe it's possible on one side.
Here's your math, however you look at it = 155.75 Total width of room - 42"-42"-25.5"-25.5" = 20.75" island. This isn't possible.
When we design a kitchen, we measure the actual dimensions on the floor and keep into account that there is toe space where one can stand. These are also the dimensions that the contractor needs to lay down the cabinets.
So my math will be as follows:
155.75" - 24" - 24" (cabinets on both sides) = 107.75". Reduce this by minimum depth of cabinet for island - 12" = 95.75" - overhang of 15" = 80.75" isles available. What do we do with this 80.75? That is the question. If the fridge is to one side near the wall, round off the corner of the counter at a radius of 6" or more and create room there. Reduce the length of the island and the depth of the fridge is not in the way.
Now, what to do with the 80.75". Have equal isles or have one isle bigger than the other.80.75" - 42" = 38.75" She can have one isle 42" and the other 38.75".
To gain more room reduce the depth of the base cabinet next to the fridge to 21" deep.Then both isles will be 42" and 41.75". If either of the isles from cabinet to cabinet was less than 36" I wouldn't recommend an island in the middle. This is a tight situation but it's doable.
Putting the fridge next to the sink or next to the range is not working out at all, it is reducing working counterspace drastically. - 4 years ago
@Annette Holbrook(z7a) I understand and am aware of the situation. There is an existing bay window. Please see the pictures. I have offered wider solutions.
- 4 years agolast modified: 4 years ago
Anne, here's a quick rendition on a grid, of the plan I posted. The red oval is a spot where the plan you posted doesn't seem to match the pics of your kitchen--unless I missed that it has been changed, or will be changed when the kitchen is remodeled. ETA--I see it's just like that on the Ikea plan.
The brown thing on the sink is an integrated cutting board, which can extend counter space when needed. MW drawer could open toward the fridge, to keep users out of the prep space, or a counter MW could be incorporated into the pantry, and a side-loading pantry added for extra storage, and to make the fridge look built-in.
Each square=6":

- 4 years ago
@mama goose_gw zn6OH 'Once burnt is twice shy'. I don't want to belive that people are trolls, unless they become personal. So, I apologize too.
Other than reading NKBA guidelines on Houzz. I am a member of NKBA and have access to more information than the general public. I attend training sessions through them, 2020, countertop vendors, cabinet vendors, as well as read up on Standard Building Codes. In addition, an opinion from a licensed GC is the final say. A lot of information, through various memberships, is not available to general public. Anyone can research upto a certain extent but not as much as pros can. This is why I stress that non-pros let us do our jobs. I know that you're trying to help people and I won't discourage you from doing that, but little knowledge is dangerous. I have a saying, "one can gain the greatest success in the profession they have the best skills in".
I don't have any regrets to the conversations we are having on Anne's discussion. These are healthy discussions, difficult discussions that might otherwise end up with broken hearts. I don't want that to happen to anyone. Anne Kirsten Bowser
Original Author4 years agoSorry everyone - I will do my best to respond to all the comments, but please re-ask any questions I miss.
The lower right corner is 'indented' as in the plan. It is load bearing so the configuration here will stay.
We are a family of 5. I do almost all the cooking (which I love to do) and most of the time I have enough room to work (I use the entire island and the space between sink and stove). I run into problems with bigger projects (like pizza night when I'm rolling out dough) or baking, and I don't have space to let stuff cool or sit temporarily.
We've actually already ripped out the pantry (was only 12" deep with stupidly short shelves) and the bulkhead on the fridge wall so everything is sitting on black plastic shelves on the living room wall. My appliances (wok, rice cooker, dutch oven...) are on another set of black shelves in the dining room. The black shelves are 17 inches deep I think.
We have 4 stools around the island currently. My space is between sink and island, and everyone else (kids, guests for pizza night) are on the stools - except when my husband makes my morning coffee when my place is on the couch ;) When we (used to before covid) have guests over, I'll pull up a chair on "my" side of the the island.
I guess I should clamp a 40 inch wide piece of plywood on top of the island to see how it would "feel" and work with having both pantry on the living room wall and an island with an overhang.
There is a tradeoff somewhere, surely, between guidelines and whether the guidelines make your space functional for you.
Fridge is double door, so they need less room to open fully (for drawer removal and cleaning) than a single door.
I love the side-opening cabinet beside the fridge idea.
Offsetting the window to the right would give this view.
Here's a layout of the kitchen in relation to the rest of the first floor.
And here's what I'm working with currently. Not a pretty sight but it has been functional enough...
Appreciate everyone's contributions. Like someone mentioned, I've been agonizing over this darn kitchen for so long!!!- 4 years ago
Hi Anne, thanks for posting the layout of the whole house. Now it makes so much sense how to design the kitchen. I will draw another plan for you. I don't usually jump to offer solutions unless I have figured out the whole thing. It'll be until tomorrow before I can get it to you. I am so sorry for the situation in your home at this time. If you do order cabinets, please bear in mind that the lead times on custom cabinets is 6 to 8 weeks. There are other choices where the lead times are shorter. I would recommend All plywood construction on the cabinets and not builder grade.
Have you given any thought as to what cabinet line you want to use. It will help me suggest the right sizes since each cabinet line has flexibility and others don't at all. It will be fruitless to give you a design if the cabinets will not come in the reequired sizes. You will have to redesign around the cabinet line. Best to avoid that from this point moving forward. Have you decided on the color of the cabinets and the island. Any thoughts on the countertop - granite, quartz or other. This will help me give you a clear perspective on the visuals. Lastly, I will give you a ballpark figure on how much cabinets and countertops will cost, you are most welcome to share this with your own designer and decide how to proceed.Anne Kirsten Bowser thanked User - 4 years ago
Hi Anne,
Here are two designs.
One design, Concept B,with appliances on three different walls has been tweaked for better work flow. This is the best option thus far. There are items that can be moved around, such as the MW. Bear in mind that it has a left hinge and we cannot trap it in a corner. The tall cabinet to the right of the fridge can then be turned into a pantry. I can move the DW to the right of the sink. But that will block the path from the sink to the fridge during cleanups. That is why I put it on the left of the sink. When you're cooking if you want to quickly grab something clean from the DW it's right there for you. Otherwise, it is not going to be in the way. Rarely does anyone clean dirty dishes while cooking a fresh meal at the same time. Unless you are constantly falling behind. I have added a 5th stool under the island.

The second one, Concept C, shows two appliances back to back from each other. Although this is what people thing is the work triangle, but in most cases I have found it not to work efficiently with multiple people in the kitchen. I just wanted to show you why this doesn't work. If I move the range and down draft to the wall to the right of the bay window, it's too far from the sink. With the island in the middle it's not efficient. Wall space is cruical for cabinets. In this design, an empty wall is wasted space.
There is a simple formula for your kitchen if you want an island - two rows of 24" deep cabinets+ one skinny island+two isles for the most counter space and storage options.
Is it possible for you to post a photo of the outside of the bay window in relation to the house? What you do with the bay window in future is going to affect the layout of the kitchen. I was just wondering if you want to visit that option now or later, since you have too much on your plate at this time. Thanks. - 4 years agolast modified: 4 years ago
As lovely as the drawings are, the aisle widths and layout are not realistic. Each seat needs 24" of elbow space, and 15" of depth for comfort at counter height. An island with three seats on the longer side, and one seat on the short side would need to be 87" long--72" elbow space for three seats, plus 15" knee space for the seat on the short side. The seat across from the sink, in an already less-than-sufficient aisle is not going to work. The kitchen will be comfortable neither to work in, nor to sit in, especially if anyone is sitting in any of the three seats at the top, while prep is taking place.
The following is primitive, but I'm putting it on the grid to show just how everything relates--one square=6". You'd be squeezing around the end seat every time you went to the fridge--even when no one is sitting there, and there's traffic from four different entries funneling past the range (the appliance which should be in an area protected from traffic). At least in your existing layout you don't need to worry about trying to carry a pot of hot water across a traffic aisle to drain it in the sink, and you can move prepped items from the prep space to the range, without crossing the traffic aisle.
The island provides barely any storage, and what's there will be more difficult to access than standard drawers in a deeper island. It will basically be an upper cabinet, sitting four inches off the floor. That can work if it's just extra storage for seldom used items, but storage in that spot needs to be easily accessed, and needs to accommodate items which are used often.

Anne, I think your idea to mock up an island is a great one; if you have access to some large boxes, you might try including the different perimeter configurations, too. - 4 years ago
@mama goose_gw zn6OH It's the 2020 Kitchen design program that makes my drawings look lovely, they have made a lot of improvements in their renderings lately, so we're not spending too much time. That makes us look good, so thanks :). Below are some points that you have addressed and I am happy to comment on them:
1. Island - I have increased the length of the island to 87". The overhang is 15". That leaves enough space between the end seat and the corner of the bay window to pass through. So thanks for pointing that out. Anne's original pencil sketch shows a 71" x 36" island with a 10.5" overhang. I am assuming that is her minimum requirement. Secondly, the photo she posted yesterday shows three chairs close together, I am assuming her children are small and all children grow for sure.
Please see Anne's note yesterday "We have 4 stools around the island currently. My space is between sink and island, and everyone else (kids, guests for pizza night) are on the stools - except when my husband makes my morning coffee when my place is on the couch ;) When we (used to before covid) have guests over, I'll pull up a chair on "my" side of the the island."I decided to give her a stool on her side of the island, however I can move it anywhere she likes.
2. You say," You'd be squeezing around the end seat every time you went to the fridge--even when no one is sitting there" The dimension from the corner of the bay window (where it meets the wall) and the corner of the island is 31 3/4" enough room to pass from behind. Besides when not in use, the chair can be slid under the counter leaving 35 1/2" of walkway behind the chair. Is that enough? Again an Anne question. Please bear in mind that the bay window still exists, although their intention is to replace it making the clearance smaller, as shown in your sketch. I have asked Anne to post a photo of the exterior of the Bay Window and after I look at it we can brainstorm an alternative rather than reducing the space behind the end chair. Fair enough?
3. The Range location - Anne is not sure if she wants the Range in that location because of the duct situation. After trying all other locations this still seems to be the best. I can place the Range on the island but that will require a downdraft and she loses all the cabinets on the far wall. The other location will be the far wall, then it's even farther from the sink. The third location is to remove the window and place the Range in the middle but then the sink would have to be in the walkway or the island. Once again it defeats the purpose of the island as a seating arrangement. No matter how you look at it, at least one appliance will end up in the path of the traffic. Do you think that the Range on the far wall with a small prep sink or a pot filler might work as a water source? I'm 4' 11" tall, personally I wouldn't use a pot filler, I won't be able to reach it. Maybe Anne can.
4. Storage on the island - You say, "The island provides barely any storage, and what's there will be more difficult to access than standard drawers in a deeper island. It will basically be an upper cabinet, sitting four inches off the floor." That one cabinet 24" W x 30" H x 12" D is the second smallest cabinet in the entire kitchen. It has a toe kick. The cabinet line I use makes these cabinets for the islands. She can put cookbooks in it. Or a mixie. The rest of the kitchen has larger cabinets and two full size pantries from floor to ceiling. There are four cabinets that can be drawers near the sink and range. That's Anne's decision. BTW all wall cabinets drawn are 39" tall. I don't know how tall Anne is or you are, but I need a step stool everywhere I go. When I design my own kitchen I will break all NKBA guidelines and drop everything down to my level :D.
Per code, islands have to be anchored to the floor, provide adequate support to the countertop and must have at least one outlet. I can remove the cabinets and put a wall underneath that too will make an island. Or I can make the best use of the cabinets available to me to build the island. This island therefore has posts because of space constraints. Could have brackets or invisible supports attached to the cabinets, then you don't need posts. The design is still developing.
5. ibid - I saw this website and this is what I say, "You can bend the rules, but you cannot break the laws". So, NKBA guidelines are not set in stone that you will be punished if you are off by 1" or 3". But code violation is a serious problem. One code violation is where a Range cannot be placed within 18" of a window and someone in this chat has placed a range and hood right next to the window.
Anne asked a question yesterday, "There is a tradeoff somewhere, surely, between guidelines and whether the guidelines make your space functional for you." How will you answer this for her?Thanks @mama goose_gw zn6OH and I have another idea for the layout and hopefully that will work.
Anne Kirsten Bowser
Original Author4 years agoThanks for your continued suggestions and ideas.
I think we are looking for the 80/20 solution here. This house is not perfect - it has its quirks, so we're not expecting a perfect solution. I'm looking for an improvement of 80% - this is not and will not be my dream kitchen.
Here is the back of the house. The bay window is the kitchen, the sliding door is the living room (which is also sunk down by 1 step).
Access to septic tank shown to demonstrate that we can't extend further than existing deck (13.6 feet)
- 4 years ago
With due respect to the professional designer, I am scratching my head at Concept B - how does the clearance between fridge and island pass muster? It's only 40.5" from island counter edge to cabinet, and probably 4-6" less than that where the fridge is. How on earth could any human sit at the island and still have the space behind be accessible/usable? The fridge simply could not be opened if someone was sitting at the island. There's also no overhang on the island, which - while I understand that's the current situation the OP has, sitting at an island with no overhang is incredibly uncomfortable. Surely a new design - even 80/20 as OP says - should do better? Just look at the photograph upthread from the OP showing the island and back wall -- the shelving currently there looks to be about 12" deep; now imagine it doubled in depth (+ inches for the fridge) and tell me how anyone could sit at the island.
Regarding the second design the professional designer suggests, the designer deems this design infeasible because of a conflict between the in-island range and the dishwasher. But in this design the dishwasher could surely be placed on the right side of the sink - and thus no longer in conflict with the range, given the fridge is in a different location.
I have been on these boards for at least 5 years, hold an architecture degree myself, and have consistently been impressed with the layouts buehl and mamagoose have produced, as they always take considerations like those I've named here into account.
- 4 years ago
@course411 These are not the final drawings. The Design is still developing. If I had an opportunity for a site visit and an in person consultation more questions would have been answered. I appreciate your concerns.
I have been in the industry for 34 years in both commercial and residential wearing all kind of hats from conception to completion of projects. Isle widths is not such a serious issue. More serious issues I have faced are revising drawings when a contractor had built a wall two feet taller than drawn by the Architect. This happened on ArtStreet University of Dayton and I had to redo the shop drawings. Secondly, the foundation of RDU airport was dug and poured 10 feet farther back than shown on the architectural . Our entire team had to find a solution and draft it. So I wouldn't worry so much about 1 or 2" in the isles. Code is minimum of 36". Code supersedes guidelines and the final say is the home owners.
- 4 years ago
I have to agree with Mavvery_Sure regarding aisle width. While guidelines are important and useful they can't always be adhered to and compromises need to be made. My first kitchen remodel broke many rules yet functioned exceedingly well when my children were small. Of course, once they grew up, we were able to design a better kitchen since I no longer needed seating for them nor had the need to keep them away from the cook zone.
I like Mama Goose's design because it gets the range out of the main aisle. As much as I don't like the sink in the island, I'm not sure there's a workaround. I would, however, still install tall, shallow storage cabinets on the wall opposite the island. More storage has priority over a wider aisle there, IMO. I would also consider a smaller sink. We lived with a 24" sink for decades and it was fine. Not as wonderful as a big one but somethings gotta give when your kitchen is small. We have family and friends in the UK and Europe and they all have very small sinks. Doesn't phase them a bit and they are all excellent cooks.
It's a challenging kitchen, Anne but I'll bet you can get most of what you want into it. Good luck.Anne Kirsten Bowser thanked cheri127 - 4 years agolast modified: 4 years ago
cheri12l makes some good points. I remodeled a kitchen in an old house, and there were guidelines I had to bend. My aisles are less than optimum (no secret, as I've posted my floor plan before). I was fortunate in being able to place appliances so that the narrow aisles work--the DW opens into a long aisle, rather than against the island, and the island does not completely overlap either fridge or range, so there is step-back space into a long aisle in front of each. Standard-depth fridge is recessed into a former door opening.
The walkway behind my island seating is only 36", but there are no appliances on that run. The base cabinets on that wall are shallower than standard (they are vintage cabinets), as are the uppers. Walking behind the seating is not a problem because the upper cabinets provide the shoulder space a tall vertical cabinet would not. I chose the narrow walkway so the work aisle could be wider, and even though I could have more space in front of the sink if I moved the island a few inches, the 42" aisle works fine (because of DW placement, as I mentioned). Island seating overhang is 16", with a 19" cabinet on the working side (I measured my widest baking pan and sized the cabinet for it). Your 18" cabinets could be drawer storage, but I don't know if that depth would work well for dishes. If you think 18" would work for dish storage, you could have another seat instead. I included the shallow cabinet behind the dish drawers, so that space isn't wasted. I considered having wider dish drawers open toward the bay, but that corner would make unloading awkward.
Anne, as I prepared the holiday meal yesterday, I thought about your kitchen compared to mine. My kitchen is a little over 13.5', so 6" or so wider than yours. If you used 18" deep cabinets on part of the island, with 24" deep drawers for dish storage, you could have the tall cabinets you included in your first drawing. Walking in that aisle won't be as comfortable because there is no shoulder space as there would be with uppers and base cabinets, but that might be a compromise you can live with. Keep in mind that if you change the bay window to a door, traffic in that aisle will increase. I'd suggest a slider, or other style door, with one side fixed, to direct traffic to that aisle, rather than through the work aisle.I have a doorway into another room, where your slider would be, so traffic doesn't need to pass through the work aisle.
A 24" single sink would work, and you could still use the cutting board to extend the counter. Items could be rinsed at the sink, the moved to the island for other prep--another compromise you might be willing to make. I do the same, when I want to prep facing the room, rather than the corner between the sink and range. I also have a 12" trash pull-out, which is one of my favorite parts of the remodel. It's sufficient, but we compost and recycle, so it's mostly for plastic packaging and paper waste.
I used the kitchen for many years without an island--I had a small drop-leaf table without seating, in the middle of the kitchen, although I kept a stool in the corner, for the times I needed to sit. Even though my aisles are the minimum recommended, I love the island and wouldn't go back. I wouldn't design narrow aisles into a new kitchen; when we remodel, we work with what we have, but we need to consider safety and comfort, as well as function.

Anne Kirsten Bowser thanked mama goose_gw zn6OH - 4 years agolast modified: 4 years ago
Hi Anne, Here is Concept D. I took into account that the bay window is going to be removed. If the house has issues, I assumed that the bay window may have been one of them. I used the following NKBA guidelines to make your isle clearances. These are from the link ibid ,
mama goose_gw zn6OH posted earlier. These are ADA guidelines which means IF your house is ADA then your kitchen should follow this code. An ADA house has to have other structural elements that I will not go into details here.

Concept D (Below) has structural changes you have to make to the house.1. Remove the existing kitchen sink window and use the entire wall for range. The range hood can be vented out easily.
2. Bay Window Option A - Remove the bay window and use the opening to install a new exterior door and one window to it's left. For esthetics make sure the window starts where the sink ends. So this arrangement will be shorter than 84". You can install a cabinet above the sink but it might look odd. Hang a pendant light or have open shelving for herbs etc.
3. Bay Window Option B - Remove the existing windows and do the same as Option A. Add a second window making sure it lines up with the sink below. As shown in Concept D. Total width 96" larger than the bay window. Offers a larger view of the back yard.
4. Cabinets and appliances can be moved a few inches right or left depending upon the final design.
5. On the empty space on the wall, install a recessed TV monitor.


- 4 years ago
Except for the two seats in the work aisles, that's a nice plan. The fridge is easily accessed by anyone coming into the kitchen, and there is vertical storage. I'd make the island smaller to provide wider aisles, and skip the extra seats.
- 4 years ago
@mama goose_gw zn6OH thanks. At least on one side of each of these seats is a 50"+ clearance, so I'm not overly concerned. You can actually sit there and play cards or board games, and talk to your children over dinner :)
- 4 years ago
It's not the seat in the 50" aisle I was referencing--it's the seats in the too-narrow 36" work aisles. More space is needed in those aisles, especially the aisle with the range, since anyone going to the sink, from at least one entry, will be walking past it.

- 4 years ago
As someone who agonized over our layout and just corrected some flow issues, I really like these last two plans in the first one, if you put down to the right side and range in island toward fridge, that would work. The empty wall does seem wasted, but the island can be bigger and no longer an obstacle. In the other plan, sacrificing the bay for expanded cabinetry and workspace is fabulous! If your budget allows, that’s what I would choose. I may have missed discussion re: arched passageway, but if you choose the latter and it’s not load bearing or full of utilities, you could possibly widen that passageway.


- 4 years agolast modified: 4 years ago
I really like Mama Goose's last design. I know it looks like there isn't enough space between the range and sink but you'll be doing all of your prep on the island. And if you're a clean as you go cook, the sink so close to the range is ideal. Her layout also keeps the kids out of the work zone as they can access the fridge, microwave and pantry storage without walking through the cooking zone.
It's hard to say if you should be designing the kitchen with the assumption that you'll put sliders where the bay window is. If it's something you really want to do, it might be worth it to find a way to do it now. It all depends on how long you expect to stay in your home. We always operated from the perspective that we were in our forever home; we ended up living there for 25 years. As we prepare to remodel the house we just moved into, I'm less inclined to splurge like I did before because I don't see us staying here for more than 10 years. I'm always surprised and impressed by how many folks on these forums remodel kitchen after kitchen as they move around or build house after house. I think I'd rather have my fingernails ripped off. LOL
- 4 years ago
@cheri127 Here is a response to your comments "I really like Mama Goose's last design." Attached is Mamagoose's plan with redlines. I would like to request non-pros to be careful of suggesting ideas where there are code violations and NKBA guideline misunderstandings. Just because you see photos of kitchens built with these mistakes, it doesn't mean that they are right. What is right and wrong is only discovered by professionals who are familiar with standard building codes and follow NKBA guidelines. I hope that this drawing will be a good example and a learning experience.

- 4 years ago
As I said previously, one can still have a kitchen that functions well for them despite ignoring the guidelines. When the space is small compromises must be made. If you saw my first remodel, you would probably have had a heart attack (and yes we used a certified KD) but we loved that kitchen and it was very safe for our young children. Code is a different story all together and varies from township to township. If the range must be further from the window than drawn, of course it won't work there. However, the space between the sink and range isn't a problem when all of the prep can be done on the island. I'm also sure that Mama Goose put the microwave in a deep upper with a counter below for a landing space for both it and the refrigerator.
I've seen many, many pictures of kitchens designed by professionals that I couldn't possible work in. - 4 years ago
Question: (apologies if the answer is buried earlier in thread)
Why not lose the bay and access door altogether and wrap the cabinetry all the way to the other wall? There are already too many passageways in the existing kitchen. - 4 years agolast modified: 4 years ago
@Therese N Anne wants to remove the Bay Window. She had mentioned that there are issues with the house and it's quite possible that the bay window is on of them.
- 4 years ago
Mavvery_Sure, I hope you can appreciate that your chastising of the non-professionals would land better if you yourself had not been suggesting questionable designs yourself. You call out mamagoose's sketch for not having a 48" walkway when your Concept B has a 40.5" walkway. When I pointed that out, you defended yourself with "These are not the final drawings. The Design is still developing." You also put stools in 36" walkways in your Concept D design.
Intended or not, the tone you are offering up in this thread of "stand back, I know better" is a little hard to take given you've done the things you're now criticizing others for doing.
Back on point: I like aspects of your Concept D design, and if combined with theresen's suggestion of eliminating an access door altogether, there could be a great kitchen design for the OP. That's what this board is so good at - iterating off of one another in a collaborative fashion. - 4 years ago
@Anne Kirsten Bowser I am going to take leave from your posting. If you think that I have been of any help to you, kindly contact me privately for detailed construction documents and an estimate of how much it can cost for cabinets and countertops. I will be happy to make changes to Concept D without the Bay Window or if you have something else in mind.
At this point I feel that the purpose of this post has been fulfilled. I thank you for giving me the opportunity and it was my pleasure to be of assistance. If I don't hear from you I wish you luck with your remodel.
Anne Kirsten Bowser thanked User Anne Kirsten Bowser
Original Author4 years agoThanks to everyone who took the time to post and make suggestions. I think we will move forward with replacing the bay window and installing a door.











Emily