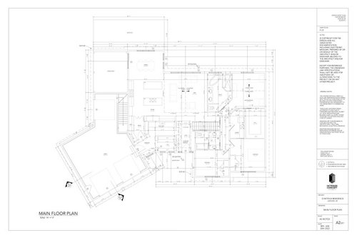
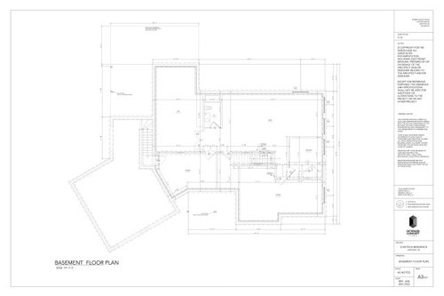
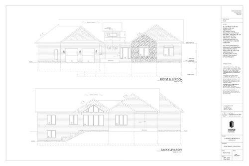
Feedback for Blueprints (Semi-Custom Home Build April 2022)
3 years ago
Featured Answer
Sort by:Oldest
Comments (16)
- 3 years agolast modified: 3 years ago
- 3 years ago
Related Professionals
Daly City Architects & Building Designers · San Angelo Architects & Building Designers · Sunrise Home Builders · Fargo General Contractors · Fridley General Contractors · Panama City Beach General Contractors · Highland Park Kitchen & Bathroom Designers · Allouez Kitchen & Bathroom Remodelers · Channahon Kitchen & Bathroom Remodelers · Middletown Cabinets & Cabinetry · Bethpage Kitchen & Bathroom Designers · Montebello Kitchen & Bathroom Designers · Elk Grove Kitchen & Bathroom Remodelers · North Chicago Kitchen & Bathroom Remodelers · Effingham Cabinets & Cabinetry- 3 years ago
- 3 years ago
- 3 years ago
- 3 years agolast modified: 3 years ago
- 3 years ago
Related Stories

ARCHITECTUREGet a Perfectly Built Home the First Time Around
Yes, you can have a new build you’ll love right off the bat. Consider learning about yourself a bonus
Full Story
FURNITUREWhy It's OK to Hate Your New Custom Sofa
It takes time to get used to bold new furniture, but dry your tears — the shock can be good for you. Here's what to expect
Full Story
HOUZZ CALLHouzz Call: How Are Shortages Affecting Your Home Project?
Have you noticed higher material and product prices? Experienced project delays? We want to hear about it
Full Story
REMODELING GUIDES15 Ways to Design an Easy-Clean Home
Spend more time doing what you love with these pointers for minimizing cleaning needs throughout the entire house
Full Story
BEFORE AND AFTERSHouzz TV: See Recycled Walls and Cool Cassette Art in a Woodsy DIY Home
Walnut countertops join hardwood floors and pieces made from leftover framing in a bright Spanish colonial
Full Story
SELLING YOUR HOUSEHelp for Selling Your Home Faster — and Maybe for More
Prep your home properly before you put it on the market. Learn what tasks are worth the money and the best pros for the jobs
Full Story
GREEN BUILDINGHouzz Tour: Going Completely Off the Grid in Nova Scotia
Powered by sunshine and built with salvaged materials, this Canadian home is an experiment for green building practices
Full Story
WORKING WITH PROSYour Guide to a Smooth-Running Construction Project
Find out how to save time, money and your sanity when building new or remodeling
Full Story
KITCHEN DESIGNSmart Investments in Kitchen Cabinetry — a Realtor's Advice
Get expert info on what cabinet features are worth the money, for both you and potential buyers of your home
Full Story
TRADITIONAL HOMESMy Houzz: Step Inside a Grand 1800s Victorian
A 7,000-square-foot historic estate returns to glory, thanks to loving renovations by a tireless Texas couple
Full Story












PPF.