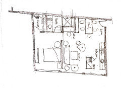
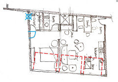
ADU garage conversion layout. Sink separate from the toilet area?
3 years ago
Featured Answer
Sort by:Oldest
Comments (20)
Related Professionals
Normal Kitchen & Bathroom Remodelers · Republic Kitchen & Bathroom Remodelers · Hewitt Kitchen & Bath Fixtures · Cleveland Kitchen & Bathroom Remodelers · Whitman Interior Designers & Decorators · Big Lake General Contractors · Columbus General Contractors · Erie General Contractors · Hanford General Contractors · Hutchinson General Contractors · Lakewood Park General Contractors · Fort Carson Furniture & Accessories · Irmo Furniture & Accessories · Bell General Contractors · Owosso General Contractors- 3 years ago
- 3 years ago
- 3 years ago
- 3 years ago
- 3 years ago
- 3 years ago
- 3 years ago
Related Stories

KITCHEN SINKSWhy You May Want a Separate Cleanup Sink in Your Kitchen
A cleanup sink plays a distinct role in the kitchen. Here’s what to consider when planning yours
Full Story
GARAGE CONVERSIONS9 Garage Conversions Fit New Uses Into Old Spaces
These creatively redesigned spaces offer room to work from home, work out or hang out
Full Story
GARAGESHouzz Call: Show Us Your Garage Conversion
Have you switched from auto mode into workshop, office, gym or studio mode? We'd love to see the result
Full Story
GARAGES6 Great Garage Conversions Dreamed Up by Houzzers
Pull inspiration from these creative garage makeovers, whether you've got work or happy hour in mind
Full Story
HOUZZ TOURSHouzz Tour: From Garage to Play Pavilion in Seattle
An active Washington state family encourages creative and athletic play by transforming a garage into a multipurpose gym-style pavilion
Full Story
SMALL SPACESFrom Falling-Down Garage to Tidy Guest Quarters
An unneeded structure makes way for a compact, economical cottage as part of a backyard overhaul in California
Full Story
BEFORE AND AFTERSNew Layout Takes Master Bath From Awkward to Awesome
A freestanding bathtub, textured tile and natural wood make design waves in this coastal Massachusetts bathroom
Full Story
HOUZZ TOURSHouzz Tour: A Midcentury Garage Conversion Gets a Modern Update
A 1950s home designed by noted architect Paul Rudolph gets more light and an indoor-outdoor connection
Full Story
GARAGE CONVERSIONSTour a Converted Garage With Style Inspired by Mexico
An ADU serves as a guest cottage, children’s play space, laundry room and more
Full Story
KITCHEN DESIGNKitchen of the Week: Transformed Garage in D.C.
A smart spatial arrangement and cheery colors helped turn this Washington, D.C., garage into a functional and family-friendly kitchen
Full Story





Sherry8aNorthAL