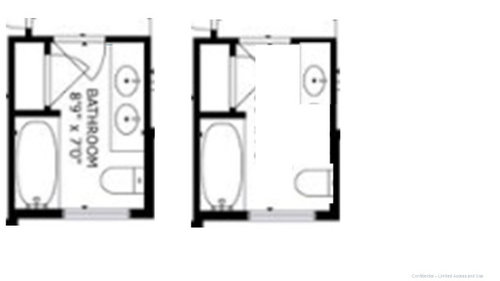
Long or short vanity?
9 months ago
Featured Answer
Sort by:Oldest
Comments (23)
Related Professionals
Bel Air North Interior Designers & Decorators · New Providence Interior Designers & Decorators · Four Corners Architects & Building Designers · Wesley Chapel Kitchen & Bathroom Designers · Chaska Furniture & Accessories · Hampton Bays Furniture & Accessories · Holliston Furniture & Accessories · Ames General Contractors · Elyria General Contractors · Greenville General Contractors · Kemp Mill General Contractors · La Marque General Contractors · New Bern General Contractors · Sauk Village General Contractors · Signal Hill General Contractors- 9 months ago
- 9 months agolast modified: 9 months ago
- 9 months ago
- 9 months ago
- 9 months ago
- 9 months ago
- 9 months ago
- 9 months ago
- 9 months ago
- 9 months ago
- 9 months ago
- 9 months ago
- 9 months ago
- 9 months ago
- 9 months ago
- 8 months ago
- 8 months ago
Related Stories

DECORATING GUIDESImproving a Rental: Great Ideas for the Short and Long Haul
Don't settle for bland or blech just because you rent. Make your home feel more like you with these improvements from minor to major
Full Story
DECORATING GUIDESShort Café Curtains Are Long on Style
More casual than full-length curtains, these abbreviated window treatments offer privacy without obscuring light and views
Full Story
FIREPLACESLong Mantels Go the Distance
Don't stop short by sticking on a candle and calling it a day. Long mantelpieces offer the chance to really stretch your style
Full Story
HOUZZ TV5 Bathroom Vanity Features Pros Always Recommend
In a short video and article, see the storage and style elements design and remodeling pros say everyone should consider
Full Story
BATHROOM DESIGN15 Small-Bathroom Vanity Ideas That Rock Style and Storage
These floating vanities, repurposed dressers and open shelves offer creative and useful design solutions
Full Story
BATHROOM DESIGN18 Sumptuous Vanities for Singular Bathrooms
Uncommonly beautiful or dazzlingly detailed, these dream vanities bring a rarefied air to bathrooms
Full Story
BATHROOM VANITIESVintage Vanities Bring Bygone Style to Baths
Turn an old table, desk or dresser into a bathroom vanity with a character all its own
Full Story
DECORATING GUIDESA Short History of the Sunburst Mirror
Learn the origins and uses of this popular, captivating home decor item
Full Story
MOVING5 Risks in Buying a Short-Sale Home — and How to Handle Them
Don’t let the lure of a great deal blind you to the hidden costs and issues in snagging a short-sale property
Full Story
DECORATING GUIDES13 Decorating Tips for Short-Term Renters
Mirrors, curtains, lamps and other features set a stylish tone you can take with you
Full Story








BeverlyFLADeziner