new build - already building! Do corner office doors block sound??
I’ve gotten some great info from this site, and I’m hoping that Houzz can help me again with the following detail as the walls are being framed as I type 😬!
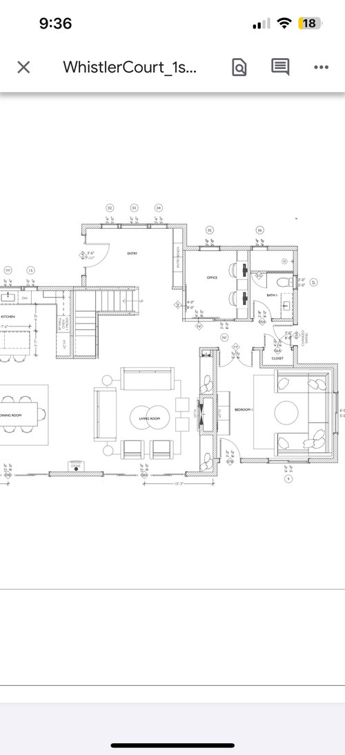
Our home office (labeled “living”) is designed with corner, glass, sliding doors, but I’ve realized recently that this option won’t block sound like I would hope for it to do. Are there other options that would work here?
The office will be used for kids homework and working from home.
We don’t want the office to be private visually, but we do want it to block out distracting sound and also afford some sound privacy.
I’m open to French doors on one wall – if that would look good, single glass doors on either side of the corner – could that work? I’ve tried visualizing double French doors across from the stairs, but I wonder if having french doors that are wider than the stairs will look strange.
I like the look of the two doors on the corner, but I’m just not sure that they will be functional for sound blocking.
Any ideas would be appreciated – thanks in advance!

Comments (49)
W H
Original Author7 months ago@A Mat No, do you know if it is really effective? And, is it crazy expensive?
Related Professionals
Fountainebleau Furniture & Accessories · Avenal General Contractors · Five Corners Architects & Building Designers · Los Alamitos Architects & Building Designers · Boise Design-Build Firms · Westmont Home Builders · Livermore General Contractors · Reisterstown General Contractors · Baileys Crossroads General Contractors · Rochester Furniture & Accessories · Fallbrook Furniture & Accessories · Nashville Interior Designers & Decorators · Town 'n' Country Cabinets & Cabinetry · Athens Furniture & Accessories · Rockledge Flooring Contractors- 7 months agolast modified: 7 months ago
" do you know if it is really effective? And, is it crazy expensive? "
There really is no such thing as sound proof glass. There are systems (frame and glass) which will block out most all noise but the walls need to be considered as well. The door set up you have now will definitely not filter any sound at all. You need insulated walls (sound attenuation batt insulation), or double drywall with green glue and solid core doors realistically. Glass doors with weatherstrip and insulated laminated over tempered glass may help depending on the STC rating. And "crazy expansive" is a relative term, but anything specialty gets considerably more pricey. - 7 months ago
No sliding door of any kind is half as good as even a cheap hollow core swing door. You need a solid core swing door, plus sound attenuation measures, to start to modulate the noise transfer. Like double wall drywall with greenglue, or staggared wall 2x4 construction with foam between, plus batting. Or both. Also add soft surfaces, pay attention to insulating penetrations, and adding HVAC returns for every room, etc.
Realistically, that isn't ever going to be a quiet room. The placement negates that. W H
Original Author7 months agoI’m OK if the room isn’t perfectly quiet, but I am wondering if the sliding doors will let too much sound in. I’m wondering if there is a way to make French doors on one wall look good here or two single glass doors on either side of the corner or a single door on one side with side lites. I’m mostly just trying to figure out if there is another design that would look good that would block the sound out better.
- 7 months agolast modified: 7 months ago
French doors alone will stop nothing in the way of sound. As far as design for French doors, tough to answer as we have no real context other than a floor plan. Plain single tempered glass with zero weatherstripping will block next to nothing in any type of door.
W H
Original Author7 months agoI’m wondering more about floor plan design - location of doors that would block the sound better - should they line up with the stairs, etc. is there a better way to post this question to get more of an interior design feedback?
- 7 months agolast modified: 7 months ago
" The office will be used for kids homework and working from home."
FIRST, please post the framing plan in entirety, for full context, IN JPEG format, not a screen shot.
Second? Ages of the kids?
The at home endeavor that would require nearly "sound proof?
The densest forest at night is a cacophony of creature noise that would lull a country dweller to sleep, and keep a city dweller used to screaming ambulances and street traffic......wide AWAKE for half the night or more.
Show the rest of the plan of this living floor.? Hopefully with room/wall dimensions
The plan seems to make little sense, you've placed the desired "quiet" opposite a rec room, with an assumed tv and video games and next to a bath for flushing toilet aggravation, and the glass serves what purpose?!
The room is too small to accommodate both work from home adults and a good homework space, which, btw....more often happens in the kitchen with mom, or in their own bedrooms.
You want it visible, why? and to where? It can't be seen from the kitchen and no idea why you'd want a real work space and monitors visible from the living room.....
More context needed.: )
- 7 months ago
What are your priorities? Based on the architects plan openness seems important. If sound is most important the smallest single solid door possible. Anything in between is a series of consequences. You can get exterior French doors with double pane glass and weatherstripping, they will prevent a lot more sound transference than typical interior French units with 1/4” gaps all around.
- 7 months ago
This doesn’t really answer the design issue but lately I have been in several offices (doctors and other professionals) that use a noise masking system. It’s essentially a subtle white noise that keeps you from being able to hear things that are being said in the other room. If something like were an option for you, you could have any kind of normal door you wanted.
- 7 months ago
The room labeled "Living" is really the living. The Office is labeled "office".
The corner sliding doors are likely going to be very $$$ and to do them right they would need to be something you'd see in an office - more like double pane glass with a storefrong configuration. These do a decent job of sound containment. (Was in a new Madison Ave office yesterday with entire walls of double paned, insulated glass that did an excellent job of containing our voices from the open hallway)
Unless there's a reason to have the corner sliding doors - I'd avoid them and put a door on a wall / close off more of the space. If you want a lot of glass, do that wall that faces the hallway in storefront insulated glass with a single door that meets a thin frame with a sealed closure.
None of this will be cheap.
If you are working and looking at the computer / pointed towards the desk -not sure the glass is really going to do much for keeping an eye on things just due to basic anatomy (other than increase light penetration into the house, and conversely - allow anyone in the living room / entry to see into your workspace / kids HW area) . W H
Original Author7 months ago@just_janni - you’re right! Another version of the plan that I have labels the office as “ living”, but this document does label the office as “office”.
In answer to a few questions, the kids are teenagers; the work from home will consist of phone calls and computer work. I did want the office to be in the middle of the house so that it is not private. We don’t think that having computers in bedrooms is healthy. If kids are working on homework that is not on the computer, I’m sure that they will be working anywhere that they want to work.
The number one priority is for the computers to be in a central location in the house that is not private, and the second priority is blocking sound to some extent. So, I like where the office is, and I like having glass, and I am just trying to figure out how to make it quieter so that it isn’t too distracting to work in there. (Silence would be great, but obviously that will not be possible with glass and the location of the office, so I’m just trying to decrease the sound). And, I also want the layout to look good from the other rooms.
I will see if I can post a plan that is clearer.
- 7 months agolast modified: 7 months ago
You're going to need a local glass company, special order to get an STC level you can live with.
You've picked the poisons, and then you pay to get the result.
In other words, the only way to have a quiet glass is to have glass that is "quiet", acoustically tailored ....from as little quiet as you might hear a voice in the hall, to one that is essentially muting all around you.
You need an on site consultation, and state the goal, in hand WITH the builder.
Anything else is to reinvent a wheel, and or reduce the mount of glass significantly.
- 7 months agolast modified: 7 months ago
The first floor plan provided shows a space label "Office" that appears to have what is commonly referred to as "Barn Doors" meeting in a corner. The only sound these will block is if your dog's name is "Sound".
Many things baffle me in this floor plan like why a wood stove is 15' away from the fireplace? Where the light switch goes for the exterior door that enters the house from the east (assuming north is up)?
I wonder if the designer of the house was aware of the OP's current concerns?
- 7 months agolast modified: 7 months ago
Perhaps a solid door on the hallway side and a large window on the wall facing the kitchen. Maybe it is the double corner door idea that is throwing you. Discard that idea and simple have a window wall.
- 7 months agolast modified: 7 months ago
You need to DUMP this whole design and start over, if you actually want to meet your stated needs. It is a poor design, that costs the earth, to NOT even come close to meeting the stated objectives. WHich are wack, BTW. Talk to your kids about your fears. Don't create kiddie jail for them.
Work from home and kids homework doesn't need fishbowl supervision. Worst idea ever. They will just have their own phone in their room for the things you want to control being on the bigger screen. Micromanaging behavior leads to backlash and the opposite results from teaching good decision making instead. Secure and happy kids want to be in the middle of stuff, and be in the kitchen to do their homework, not in a petri dish under a microscope. Probably with monitoring software and cameras too. The whole idea is pretty repulsive. - 7 months ago
The smartest, most focused high achieving kids I know? Kids of Dr's, attorneys, accountants, teachers! Early teens, late teens and all their parents would say this:They had in place, a standard for behavior,life, respect for rules, parents, teachers, homework ,all of it.....by age10/12.
After that? The ship sails. You either can trust or you can not. They don't spend all day with you, and you don't want them to. You want them ready to meet and refuse many more temptations than can be found on a laptop of Mac monitor......: )
W H
Original Author7 months agoWow - there are some interesting comments here 🙂. It’s nice that people feel so passionate about things. I actually have high achieving, wonderful kids that I can trust. They also happen to be “kids of Dr’s” - a pediatrician in fact (and their mother is a former social worker- with a background in child development). Parenting successfully is creating boundaries that help kids thrive and give kids a safe space to grow. Sometimes parents wrongly equate a lack of limits with trust. For a two year old - our boundary might be the fence in the backyard- a place where the child can play, discover, and grow safely. If there were dangers (a pool for instance) just outside the property line, having a two year old play without a fence would not mean that the child was trustworthy, but it would mean that the child was missing out on parenting he could have benefited from. Parenting successfully is giving kids boundaries that they can grow in. Micromanaging would be telling the child exactly what to play in the fenced yard and not allowing discovery. There are many teenagers who stay up all night playing computer games. Too much screen time leads to a lack of connection, poor sleep, overstimulation, and obesity. These things lead to a lot of other problems. Two year olds aren’t old enough to decide how much candy to eat, and I would argue that most (if not all) teenagers’ brains aren’t developed enough to consistently use screen time in a way that benefits their health and development. We have boundaries for our kids, and one of them is that screen time is in public places. We can’t (and wouldn’t want to) control our children’s every action, but we should, at least, be smart about the things that we actually provide for them. So, I wouldn’t keep a stash of candy in my two year old’s room or buy my thirteen year old a car, a porn magazine, or a beer (although he is very trustworthy), but I would have screen time location and time limits, pay for the drum lessons he wants, support him in getting together with his friends, sign him up for the baseball team that he wants to join (and drive him to practices), and remind him to go to bed on time. Good parenting consists of setting helpful boundaries, supporting the healthy ways that our children want to develop, and connecting with our children.
So…., the screens will stay in a centralized, public location 😄, and I am trying to find a way to make that location look good and block out some of the noise. If I could find the best spot (as far as looks go) to put (maybe exterior?) French doors I think that that could be helpful.
I also recognize that some aspects of the plans don’t make sense for everyone, and I could describe why they make sense for us, but then this comment would be WAY too long!
W H
Original Author7 months agoDoes this look like a good design- French doors that are centered on the stairs but wider than the stairs? Maybe a 5 foot door? (I assume this would block out more sound than barn doors).

- 7 months ago
I feel materials are more important than design.
If you want sound proof, use sound proof materials.
Perhaps look inside some commercial office buildings. - 7 months ago
I do not remember french doors inside of commercial buildings. I remember glass doors with weatherstripping. I-remember glass walls, some conference room walls were probably were 50’ long, also windows with no street noise.
You want to build a sound proof office, use sound proof materials. - 7 months ago
You're going to sit on the stair and watch them do homework?
I think you need a bit more refining of the most important goal. Light, open view, sound.....
It's a better location for a single door. I would not give up storage space within, none of which is planned but for desk space along a wall.?
W H
Original Author7 months agoNot planning to sit and watch, but I am planning to have a public location.
Single door, OK. Can you give me any idea on size of the door/location? Would it be better centered on the stairs or on the other side of the office? (thinking of looks).
- 7 months agolast modified: 7 months ago
I would use no more than a 30" door and I would try to get over the "public" aspect of the space.
You need to do yourself a 1/4 SCALE drawing of the room, what you want in there.. how you will light it, .....how deep the desk, where is the printer, the school supplies, the printer paper, etc
You nave made the entire function.....about a view from outside and ignored all inside but s,o,u,n,d
- 7 months agolast modified: 7 months ago
You're still only posting a portion of the MAIN living floor. The wall dimensions are missing. I don't understand the big "rec room".......
I don't know if the full bath also acts a powder room for guests.......( UGH ) draped damp towels are lovely......: (
Basically? Flesh out the floor plan information, include legible dimensions , refine the most important goal of the office- you want to watch all the coming and goings in your home, with a turn of a head? You need to enforce teen browsing limits ? Or you want your nearly sound proof barrier to the comings and goings in a mud room/ w door banging and stair? The work space..... what it needs to contain? ......add an image of the"public" view and look of the "dream" office/homework " space. The look of the rest of the interior "dream style."
- 7 months ago
I'm trying to tease out the goals and functions here so you can nail down the most useful design that will actually serve your purposes.
We don’t think that having computers in bedrooms is healthy.
Where do they go to text their friends? A phone is a computer these days. Are they allowed anywhere private with an internet connection or texting ability? If so, then they are using a computer anywhere, including their bedrooms. And if this is so, can you be more flexible on computers in the bedrooms thereby not needing so many special requirements for the office?
If the goal is to really get computers out of the bedroom, what does that have to do with having a space where you can watch them? Why can't they use their computer in a visually closed office? It sounds more like the goal is to be able to monitor them - a panopticon [link] homework vibe. Seriously, consider the psychological ramifications.
Most teens use noise cancelling headphones or white noise apps to block out sound. Do you want them to block out sound so they can concentrate or to block out sound when you want to get work done in there when you are using it as an office?
Barn doors are horrible for blocking out sound. A well built, tight fitting, thick wood door should be excellent at cancelling out sound. Get one of those and throw a baby monitor in the room for surveillance. Seriously, it will be just as subtle as creating a fish bowl room, and result in better design. - 7 months ago
How far along are you with this build? I’d almost suggest moving the entrance to the home where the office is planned and use the larger (current entry space) for an office for 2…but not sure if that works with the overall home design/ current construction schedule. Aside from all the other issues mentioned I am just focusing on the office set up and for 2 this is very tight. Besides a computer they will need space to spread out books and papers, have a printer, etc.
- 7 months agolast modified: 7 months ago
Fwiw we live in an old house where a patio has been converted to an office, no door just portieres- I worked from home for several years in there and also had teens studying in there - noise was never an issue, when I WFH the house was empty and the teens always wore headphones if they needed quiet -
I think sometimes when building we can get caught up in creating “optimal“ conditions when they are not really needed on a day to day basis (i am fighting that with a current lake house build)
If it were me, I would just make it a pleasant room to be in with lots of natural light (no built ins so the purpose can be converted down the road if needed) and add a nice interior single french door to create a feeling of connection with the rest of the home
- 7 months ago
Alright.........all the things that drive me insane adjusted.

Most noted ON the drawing.......
Any age over 12, is a "teen". Bud, it is a short trip from 13 to out the door to college and you get to control nothing about their study habits.
If they're 14/15/16 now ? Your teen miles are shorter yet.
Shrink the bath, It's a one person! Unless you are saving it for a parent with mobility/stability issues ? Five feet is commonplace.
What's the darn climate? Even if tropical,there is no end to shoes and flip flops. I change the window at entry, and the door to no side lights. Use a GLASS door ,gain some closed storage.
Lining up wall .... GIVES you a more sound effective barrier with a normal single glass door, when YOU are working.
A heavy 1/2 inch glass framed panel facing the sit on the stair : ( see in.
I'm with Kendrah on the computer issue. They either respect you/your rules, or they do not , and they do that when under your nose or ten miles away. They have similar in friends,or they do not. A leash is ineffective and all that happens is chafe.
Create your home with the idea that parenting is not a forever job.
Have more order to walls at the same time.
Yes,,,,, that hallway past rec is wider.....and yes the fire wall is cut back a bit


- 7 months ago
I am late to the party but the whole idea of watchin the kids all day is ridiculous and the corner sliding doors inside make no sense. There are lots of ways to block what you do not want the kids to do on the computer just like on the TV and in most cases kids I know work in their bedroom doing homework with the door open if you are so concerned . An office is IMO a space where quiet and little visiblity works best The office is not agreat space to put on display since storage , work tops are all a must and often messy.As for the kids computers most have laptops and they can be left out of the bedroom at night with no issues . Kids need privacy just like everyone else and to makr an office a fish bowl is just odd .
- 7 months ago
Someone does not understand technology. If they want to be online, they will. During school even. Trying to turn them into little controlled puppets never works. They need to be taught how to, not not to.
- 7 months ago
I think you may be overly concerned with the noise canceling properties.
How quiet do you need the room to be? How noisy are you and your kids?
I have been a telecommuter for the past 20 years and for 20 years before that I ran a business from my home. Over the years I had different spaces and never had noise as a barrier to the functionality of the space.
My sister had an office that was literally open to the living room and entry. She had two teenage sons who did their homework in this space and her and her husband did not "work from home", but often had to do work from home. Betty was a pediatrician / single practitioner and was on call every other day and every other weekend, sharing coverage with another pediatrician in our town. The kids had to learn from an early age that mom had important calls and they had to be quiet when she was on a call.
Here are two pictures from when her home was listed for sale that shows how open the office was to the living space.
You can see the corner of the pony wall separating the office from the entry/living room
and here is another view of the office . . .
There were many days when her husband was in the living room watching TV and my other sister and I would be looking at things on the internet and visiting with my sister and could hold conversations without disturbing her husband or having the TV disturb our conversation.
I had an office in my last home that was separated from the family room by a sliding glass door. The only issue I had was employees who walked into the door. Happened several times and once where I had to take the employee to the hospital because she hit the door so hard with her head that she fell backwards and hit her head on the tile floor.
I like this look where it is open, but it is obvious when the door is closed vs open.
I moved my office from the room with a sliding glass door to the garage and we made the old office into a workout room for my husband.
He would play the TV loud enough that he could hear over the treadmill, but as long as the doors were closed I could watch TV in the next room without issue.
Most people with home offices have hallow core doors that won't block as much sound as double pane glass doors.
As a telecommuter living by myself I don't bother to close my office door, but I do have two dogs that run and play and bark at dogs going down the street or the mailman or squirrels on the back patio. I am in 4-6 hours of meetings each day. Between having a good Plantronics headset with background noise cancelling and using the teams noise reduction no one other than me hears the dogs. I also know that the people I work with often apologize for the noise in the background that I cannot hear. W H
Original Author7 months agoLots of helpful comments- thank you! I like the look of the glass, corner pocket doors. I’m wondering if they would block a little sound or if they would really block none. It seems like pocket doors could be better than barn doors.
- 7 months ago
Pocket doors will generally block sound better than barn doors but will not block a lot of sound. Barn doors block sound not much better than closing your eyes. Barn doors belong only on a barn. Tell your draftsman that.
- 7 months agolast modified: 7 months ago
Forgive me please? If you WANT this look, then do the darn look.! Make the right side stationary, and the left a pocket glass door! The sound will be what the sound will be, depending the glass you use. It will be all the "public" you need
There is NO damn reason for both to slide into a pocket. Elephants are not making a pilgrimage into the space.

Have all you want! Have really "public" ! Get with a commercial glass source and move on!
When you are working at home, and these teen kids are in school.....where is the noise that prevents you from making phone calls, or receiving them, coming from? I'm all for "design thoughtfulness" but not when it gets to over think..What is the purpose of DOUBLE doors into a rec room, when you need silence?
You need to see kids while you are working and they are playing video games?
What is the purpose of that "rec room" space when the teens exit for college?
Does the room require an exit to outside? Why?
Is it to someday be a guest bedroom? I ask because the bath across a hallway isn't luxurious in size, and the office is too small for it's purpose so it seems not to be a future aging primary bed/bath situation. I predict your next office question will be about how to make it look decent and tidy when you can see the mess from entry and your seat on the couch?
Seems a lot more logical to me, long term........below, work from home and homework considered within the total house.I think you might be in fantasy land , and below is called "opportunity for q.u.i.e.t , and more office space to boot, a future more private guest bed IF that was the plan.
Children leave if you've done your most important job. Yup...they fly the coop if you are lucky: )

- 7 months ago
Elephants are not making a pilgrimage into the space.
This goes on the best of @JAN MOYER list.
Remember with pocket doors, you cannot have electrical on the walls where they slide into.
If you use quality materials for the build, then I don't think sound will be a problem. My big question is where the two doors meet. Does one door have a notch where the other slides into when closed? If you do Jan's suggestion of one stationary, then the stationary one can have (forgive me that I don't know the correct word) a slot, niche, or jamb of sorts where the other nestles tight into it. - 7 months ago
i really like the door and hallway in @JAN MOYER schematic - helpful for noise control etc and the area could work as a nice guest suite down the road
- 7 months agolast modified: 7 months ago
If you want electrical on a pocket door wall, you'd need a lot of wall thickness depth, ( 10" )

As Kenrah noted?That door should die INTO a matched, shallow slot, and you would need a"corner" of sorts at the right stair/ side/hallway, for it to do that.
Meaning.....I would keep both walls at identical thickness.
But only ONE door needs movement.
You'd also get a more substantial , residential look, as to me, despite well done, pic above feels commercial in nature.
Then again, I'd not do it at all, so what can I say : )
- 7 months agolast modified: 7 months ago
Quality materials and quality construction may get you the sound control you like.
We built a kitchenette laundry room off of my husband's office. I was obsessive about sound control so he could be on zoom while I was running a loads in the washer and dryer. I was figuring out all kinds of special doors for sound control. My architect said, let's just built it without any special sound proofing. In the end we can adapt the door if needed. She was right. We can't hear the washer and dryer at all. Cone of silence.
We added two pocket doors to our galley kitchen. When they are closed, you cannot hear - or smell - anything from the kitchen. We used solid construction. Our doors were custom made from hardwood. The mechanical parts that allow the doors to slide are some hafele system. More expensive than others and we had to wait an extra 2 months for them to come in during covid, but our contractor said they were the best, no fail, solid parts.
None of our construction used sound proofing materials. They were just solidly constructed walls and doors and they did the trick. Don't cheap out on materials and you might be fine with sound control.
This pic looks beautiful, but look at the image on the right. The left door at the bottom has light showing through. If you can see light coming through the bottom of a door, you are surely going to get sound coming through. This doesn't look like great construction in my mind.
- 7 months agolast modified: 7 months ago
GOOD LORD!
There has to be a minimal gap for the door to move! Or have I lost my mind? It might be as little a 1/8 of an inch.....but the gap will need to be there.
Is this a confessional...... or an office? Are there wide people?


- 7 months ago
This is off topic but my curiosity is getting the best of me.
Why is there a wood stove 15 feet from a fireplace?
- 7 months agolast modified: 7 months ago
I asked myself the very same thing, Mark. If the answer is so that the other "sofa faces a fire", or to "enable a view of a fire from inside a glass corner enclosure" ? I may have to run out to Ace.... for rope: )
- 7 months agolast modified: 7 months ago
The depth of what appears to be a front porch is another mind bender. Not even baby elephants will be making a pilgrimage into the entire space.












HALLETT & Co.