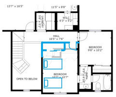
3 kids, 3 beds, 2 small bedrooms. How would you make it work?
last month
Related Stories

BEDROOMS3 Girls’ Bedrooms in 3 Bold Color Palettes
A New Jersey couple, their daughters and their designer work together to create distinctive bedrooms for the girls
Full Story
KIDS’ SPACESNew This Week: 3 Amazing Kid Rooms That Will Make You Rethink Your Life
Designers share details of fantastical concepts like indoor swings and a pirate’s crow’s nest in projects recently uploaded to Houzz
Full Story
KIDS’ SPACESNew This Week: 3 Kids’ Spaces That Will Make You Smile
Graphic wallpaper, modern furniture and big imaginations create happy rooms for children of all ages
Full Story
HOME TECHWhy Google Just Paid $3.2 Billion for a Company That Makes Thermostats
Smart home technology just got a new champion — and everyone is speculating about the reasons
Full Story
BEDROOMSNew This Week: 3 Bed, Nightstand and Wall Combos You’ve Got to Try
Whether you prefer moody, minimalist or sunny, these 3 bedrooms uploaded to Houzz recently are exercises in stylish harmony
Full Story
HOUZZ TOURSMy Houzz: Making Room for 3 Generations
A Salt Lake City home creates privacy and independence for grandparents, parents, kids and dogs
Full Story
KIDS’ SPACESRoom of the Day: 3 Brothers Share 1 Big Bedroom in Hawaii
With a loft, personalized areas and plenty of space for play, this shared boys’ bedroom inspires togetherness and a sense of fun
Full Story
KITCHEN DESIGNKitchen Remodel Costs: 3 Budgets, 3 Kitchens
What you can expect from a kitchen remodel with a budget from $20,000 to $100,000
Full Story
BATHROOM DESIGNNew This Week: Space-Saving Ideas in 3 Small Bathrooms
Follow a few of these design moves to make the most of your compact space
Full Story
SMALL KITCHENSNew This Week: 3 Ways to Make Your Kitchen Feel Bigger
Using lighter colors, bringing in more sunshine and a few other tricks can help you visually enlarge your kitchen
Full Story
WestCoast Hopeful
arcy_gw
Related Professionals
Memphis Interior Designers & Decorators · Watertown Interior Designers & Decorators · Orange County Interior Designers & Decorators · Cincinnati Interior Designers & Decorators · Muskogee Interior Designers & Decorators · Beatrice Interior Designers & Decorators · Miami Architects & Building Designers · Vicksburg Architects & Building Designers · Helena Architects & Building Designers · Peoria Kitchen & Bathroom Designers · Greenville Interior Designers & Decorators · Albuquerque Interior Designers & Decorators · Tallahassee Furniture & Accessories · Hopkinsville Furniture & Accessories · Poughkeepsie Furniture & AccessoriesJAN MOYER
Norwood Architects
JAN MOYER
Patricia Colwell Consulting
WestCoast Hopeful
chispa
CAGE Design Build
Valinta
JAN MOYER
Patricia Colwell Consulting
chloe00s
partim
Debbi Washburn
3onthetree
Sigrid
JAN MOYER
JAN MOYER
Kendrah
lisedv
Diana Bier Interiors, LLC