Bathroom of the Week: Charm and Accessibility in 56 Square Feet
A new bathroom meets the needs of a multigenerational household with aging-in-place features and timeless style
When Kylene Alexander of Design Shop Interiors designed a new bathroom for a four-generation household near Sacramento, California, many different present and future needs had to be taken into account. Here’s how Alexander used thoughtful details and finishes to accommodate those needs and also reflect the client’s traditional taste.
The most pressing assignment was to make the bathroom accessible for the client’s father, who lived with the family part time and was using a wheelchair while recovering from surgeries.
To personalize the space for the father’s very specific needs, Alexander asked the client to send her the wheelchair’s measurements. Then, she designed and had custom-made a solid wood vanity based on those measurements and the size of the room, leaving enough space for the wheelchair and a caregiver to maneuver.
When the vanity doors are closed, it looks just like any other vanity. But it has pocket doors, much like those you’d normally find in a kitchen, that retract out of the way so that the wheelchair can pull right up to the sink. A medicine cabinet above the vanity supplements the storage offered by the vanity’s three inset drawers.
Alexander knew that the father might not always use a wheelchair. And since this bathroom is on the home’s first level, the homeowners wanted it to be welcoming and functional for guests too. So there’s a detachable cabinet base (not pictured) that can be put back in place when that accessibility is no longer needed.
To personalize the space for the father’s very specific needs, Alexander asked the client to send her the wheelchair’s measurements. Then, she designed and had custom-made a solid wood vanity based on those measurements and the size of the room, leaving enough space for the wheelchair and a caregiver to maneuver.
When the vanity doors are closed, it looks just like any other vanity. But it has pocket doors, much like those you’d normally find in a kitchen, that retract out of the way so that the wheelchair can pull right up to the sink. A medicine cabinet above the vanity supplements the storage offered by the vanity’s three inset drawers.
Alexander knew that the father might not always use a wheelchair. And since this bathroom is on the home’s first level, the homeowners wanted it to be welcoming and functional for guests too. So there’s a detachable cabinet base (not pictured) that can be put back in place when that accessibility is no longer needed.
The travertine mosaic flooring was another design choice made to be both aesthetically pleasing and safe for all users.
“There are a lot of grout lines there, which creates a lot of traction,” Alexander says. “In addition to that, [travertine has] a little bit of pitting, and then when you go to grout it, the grout kind of hides in some of those grooves.” The natural stone itself is somewhat porous, and when sealing it, they kept the finish very matte. As a result, the floor has a charming, cottage-y look that’s also very slip- and puddle-resistant.
10 Design Tips for Preventing Slips in the Bathroom
“There are a lot of grout lines there, which creates a lot of traction,” Alexander says. “In addition to that, [travertine has] a little bit of pitting, and then when you go to grout it, the grout kind of hides in some of those grooves.” The natural stone itself is somewhat porous, and when sealing it, they kept the finish very matte. As a result, the floor has a charming, cottage-y look that’s also very slip- and puddle-resistant.
10 Design Tips for Preventing Slips in the Bathroom
The countertop is Taj Mahal quartzite — a natural stone that’s durable and stain-resistant enough to stand up to the homeowners’ grandkids, who lived here too. The countertop’s ogee edge adds an elegant touch.
“The client was very much into those fine details, which made it easier to give [the room] more of that design-forward aesthetic, instead of the ADA-forward aesthetic,” Alexander says.
Check out our beginner’s guide to get started on your home project
“The client was very much into those fine details, which made it easier to give [the room] more of that design-forward aesthetic, instead of the ADA-forward aesthetic,” Alexander says.
Check out our beginner’s guide to get started on your home project
All of the hardware in the room is unlacquered brass, a living finish that patinas beautifully with use. Alexander calls the material the room’s showstopper and says it not only lends the room a lot of character, but also has antibacterial benefits thanks to its copper content.
The shape of the hardware was also carefully considered. This faucet is also available with cross handles, but Alexander chose lever handles because they’re easier to grab for people with limited dexterity, including people with arthritis.
Shop for bathroom faucets
The shape of the hardware was also carefully considered. This faucet is also available with cross handles, but Alexander chose lever handles because they’re easier to grab for people with limited dexterity, including people with arthritis.
Shop for bathroom faucets
These narrow wooden decorative shelves are above a toilet to the immediate left of the vanity.
The toilet (which is just out of frame) is chair-height and elongated, and it has a washlet seat, which can improve hygiene and independence for people with a variety of disabilities.
11 Ways to Age-Proof Your Bathroom
The toilet (which is just out of frame) is chair-height and elongated, and it has a washlet seat, which can improve hygiene and independence for people with a variety of disabilities.
11 Ways to Age-Proof Your Bathroom
A grab bar, mounted on the shower’s half wall, is in easy reach of the toilet.
The floor, which isn’t pictured here, runs directly into the shower with zero threshold. Because the design team was adding the bathroom to an existing room, they were working with a limited footprint. But Alexander tried to create as much room as possible for someone using a walker or wheelchair and their caregiver to negotiate the space. The shower opening, which has a glass pivot door with a large bar handle, is nearly 3 feet wide.
There’s a linear drain in the shower, and the lever-style shower handle and diverter are easy to operate.
The floor, which isn’t pictured here, runs directly into the shower with zero threshold. Because the design team was adding the bathroom to an existing room, they were working with a limited footprint. But Alexander tried to create as much room as possible for someone using a walker or wheelchair and their caregiver to negotiate the space. The shower opening, which has a glass pivot door with a large bar handle, is nearly 3 feet wide.
There’s a linear drain in the shower, and the lever-style shower handle and diverter are easy to operate.
Since the father would have assistance using the bathroom, Alexander used just a few attractive and strategically placed grab bars. This bar that holds the hand shower, for example, is weight-rated for use as a grab bar. But Alexander is always thinking ahead.
“Because there tends to be a lot of uncertainty as to what the future looks like when we’re doing certain aging-in-place projects, I’ve gone to having the contractor do blocking in the wall all the way around all three walls — basically for the entire midsection of the shower,” she says. “So that way we have the support already built in. And if other grab bars need to be added, we can do that without major construction.”
“Because there tends to be a lot of uncertainty as to what the future looks like when we’re doing certain aging-in-place projects, I’ve gone to having the contractor do blocking in the wall all the way around all three walls — basically for the entire midsection of the shower,” she says. “So that way we have the support already built in. And if other grab bars need to be added, we can do that without major construction.”
Using timeless finishes was another way Alexander hoped to extend the longevity of the design. For example, for the shower walls and built-in bench, she chose a clean, simple white tile with some texture for a handmade look. Now the bathroom can adapt as the different needs of the household change over the years — and stay looking beautiful for decades.
Alexander has designed a lot of accessible bathrooms for children caring for elderly parents, and she took care of her own grandfather, so she knows how sensitive the topic of aging and accessibility can be. She’s also seen how, by the time people need extra help, it can be hard for them to see it, let alone admit it. Her advice: “Have these conversations early,” she says. “As we’re designing, I ask, ‘Is this the forever home?’ because I think it’s a lot easier to think about these things now, for the future.”
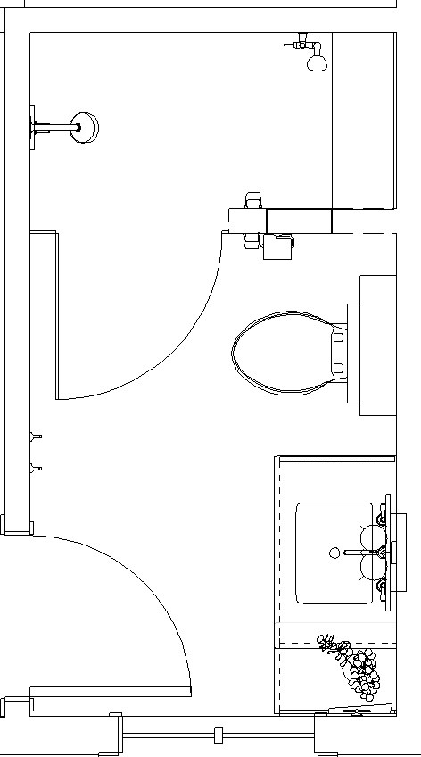
The bathroom floor plan
More on Houzz
Read more bathroom stories
Browse bathroom photos
Find a bathroom remodeler
Shop for your bathroom
More on Houzz
Read more bathroom stories
Browse bathroom photos
Find a bathroom remodeler
Shop for your bathroom














Bathroom at a Glance
Who lives here: A couple, the wife’s elderly father, the couple’s daughter and the daughter’s young children
Location: Granite Bay, California
Size: 56 square feet (5.2 square meters)
Designer: Kylene Alexander of Design Shop Interiors
Builder: IC Construction
Stylist: The Shop
The new bathroom is part of a suite that was created by carving up an existing guest area on the first floor of the split-level home. In this photo, you can see the edge of the toilet to the left of the vanity. A shower is on the other side of the toilet.
Scroll to the bottom to see a floor plan.
Find a bathroom designer near you