Bathroom of the Week: Classic Style Revives a Cramped 1920s Relic
A Massachusetts master bathroom more than doubles in size after a long-awaited renovation
Before: The roughly 8-by-5-foot bathroom before the renovation was original to the home. “It was extremely small and in desperate need of updating,” Haddad says. The plan was to take over an adjacent walk-in closet to enlarge the space.
Despite the many features the homeowners were keen to change, there were a few elements they wanted to preserve. “We were restricted to working within the footprint and not touching any windows. We also needed to keep the toilet in the existing location, and we had to keep the hall door entrance to this bathroom,” Haddad says.
Ready to renovate? Find a bathroom designer on Houzz
Despite the many features the homeowners were keen to change, there were a few elements they wanted to preserve. “We were restricted to working within the footprint and not touching any windows. We also needed to keep the toilet in the existing location, and we had to keep the hall door entrance to this bathroom,” Haddad says.
Ready to renovate? Find a bathroom designer on Houzz
After: The renovation more than doubled the bathroom’s size. White, marble and polished nickel finishes contribute to the elegant and traditional look the homeowners were after.
The toilet stayed in its original spot, as did the windows and hallway door. A new built-in cabinet shields the toilet and holds toilet paper and other essentials. The cabinet also houses the bathroom’s radiator, which the homeowners didn’t want to remove. This is an example of how the homeowners’ vision helped drive the bathroom’s aesthetic, with the design team refining and enhancing it for comfort and livability.
Cabinet and trim paint: DKC-67, Donald Kaufman
The toilet stayed in its original spot, as did the windows and hallway door. A new built-in cabinet shields the toilet and holds toilet paper and other essentials. The cabinet also houses the bathroom’s radiator, which the homeowners didn’t want to remove. This is an example of how the homeowners’ vision helped drive the bathroom’s aesthetic, with the design team refining and enhancing it for comfort and livability.
Cabinet and trim paint: DKC-67, Donald Kaufman
A single vanity sits opposite the toilet. The design team proposed the idea of adding a double vanity or two individual vanities, but that would have meant losing this door to the hallway. “They felt that it wasn’t a concern,” Haddad says of the couple’s decision to keep the door rather than add another sink. “They’re never in the bathroom at the same time.”
The custom vanity features Bianco Carrara marble counters and deep rollout drawers. The generous-size medicine cabinet offers even more storage.
Medicine cabinet: Robern
The custom vanity features Bianco Carrara marble counters and deep rollout drawers. The generous-size medicine cabinet offers even more storage.
Medicine cabinet: Robern
Carrara marble mosaic tile covers the floor, adding more pattern and texture to the space. “We were looking for marble mosaics,” both for aesthetics and for its lowered risk of cracking or separating (which an older home’s out-of-level floors could induce), Haddad says. The homeowners chose this pattern as soon as they saw it. “They never wavered,” he says.
Find marble mosaic tile in the Houzz Shop
Find marble mosaic tile in the Houzz Shop
The expanded bathroom allowed for a larger shower and a freestanding soaking tub. “They always wanted this type of tub,” Haddad says. And while they didn’t want a claw-foot tub, they did end up choosing one made of cast iron (which they had painted white) to feel more authentic to the home. The new shower nestles into the corner near the tub, next to the gambrel roof.
The design team played around with a variety of floor plans, and the homeowners chose this one because it combined cost-saving ideas (not moving the toilet and windows) with top design elements from their wish list. “They like a lot of open space to move around in, and this one provided that,” Haddad says.
Wall and shower tile: Carrara marble; shower fixtures: California Faucets; bathtub: Beardsey 59-inch, Penhaglion; see more freestanding tubs
The design team played around with a variety of floor plans, and the homeowners chose this one because it combined cost-saving ideas (not moving the toilet and windows) with top design elements from their wish list. “They like a lot of open space to move around in, and this one provided that,” Haddad says.
Wall and shower tile: Carrara marble; shower fixtures: California Faucets; bathtub: Beardsey 59-inch, Penhaglion; see more freestanding tubs
Before: The master bedroom had a door to the bathroom, seen at left, and a walk-in closet, at right. The homeowners wanted to better integrate the bathroom with the bedroom.
After: The master bedroom and bath now connect via a new dressing area (shown here) in the bedroom. The design team borrowed space from the bedroom for the dressing area, dedicating all of the original walk-in closet’s square footage to the bathroom.
The wall with the armoire in the previous image is now the pocket door opening to the bathroom, with the dressing area open to the bedroom. “Incorporating the old walk-in closet into the master bath was the best decision. This allowed us to create the feel of an updated master suite,” Haddad says.
Each closet features 7 linear feet of storage. The entire dressing area is 66 inches wide.
The wall with the armoire in the previous image is now the pocket door opening to the bathroom, with the dressing area open to the bedroom. “Incorporating the old walk-in closet into the master bath was the best decision. This allowed us to create the feel of an updated master suite,” Haddad says.
Each closet features 7 linear feet of storage. The entire dressing area is 66 inches wide.
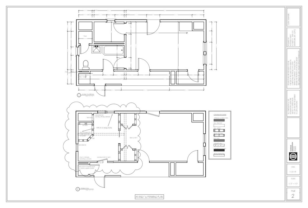
This drawing shows the bathroom floor plan before the renovation, top, and after. In the “before” plan, you can see the separate entrances to the bathroom and closet from the bedroom. The bathroom before the renovation features a small shower stall, tub, sink and little else.
Post-renovation, you can see how the bathroom took over the closet space, with the new dressing area connecting the bedroom and bath. The soaking tub occupies the nook where the closet used to be, with the shower just next to it in the corner.
General contractor: Steve Simms
Cabinetry and vanity: Pennville Custom Cabinetry
Tile: LaFauci Tile and Marble
More on Houzz
Homeowner’s Workbook: How to Remodel Your Bathroom
Browse thousands of bathroom photos
Work with a bathroom designer near you
Shop for bathroom products
Post-renovation, you can see how the bathroom took over the closet space, with the new dressing area connecting the bedroom and bath. The soaking tub occupies the nook where the closet used to be, with the shower just next to it in the corner.
General contractor: Steve Simms
Cabinetry and vanity: Pennville Custom Cabinetry
Tile: LaFauci Tile and Marble
More on Houzz
Homeowner’s Workbook: How to Remodel Your Bathroom
Browse thousands of bathroom photos
Work with a bathroom designer near you
Shop for bathroom products












Master Bathroom at a Glance
Who uses it: A couple
Location: Massachusetts
Size: 105 square feet (9.8 square meters)
Designers: Mark Haddad and Susan Cracraft of Interiology Design
This master bathroom renovation had been a long time coming for a couple of empty nesters. They’d lived in their 1920s New England Colonial home for years, and had renovated much of it, while continuing to use and share the cramped, outdated original upstairs bathroom.
By the time they hired Interiology Design, the couple had a pretty clear view of what they wanted for their bathroom overhaul. In addition to expanding the room’s roughly 40-square-foot footprint, they also envisioned a more elegant, timeless space that wouldn’t feel out of place in a nearly 100-year-old home. “Their aesthetic and their style was really to capture the traditional New England home,” designer Mark Haddad says.
Wall paint: Baby Goat White, Donald Kaufman