Bathroom of the Week: Clean and Compact With a Corner Shower
Two brothers get an updated bathroom with dual custom vanities, a neo-angle shower and cool style in 80 square feet
When a Michigan couple wanted to add rooms and functionality to their second story without increasing its square footage, the remodeling team had to approach the space like sculptors. “You start with a chunk of stone. You can’t add to it. You mindfully chip away,” says Chad Nightingale, founder and owner of building firm Nightingale. That included reducing the size of the sons’ bathroom and eliminating its alcove tub. But by reconfiguring the bathroom’s layout and customizing every inch, the team was able to fit in two vanities, a matching storage tower and a roomy corner shower, plus an abundance of clean, contemporary style.
After: This photo of the remodeled bathroom, designed for the homeowners’ teenage and preteen sons, was taken from almost the same vantage point in the doorway as the “before” shot. The window was preexisting but is more visible here.
A new custom neo-angle shower — a corner shower enclosure with walls that meet at 135-degree angles instead of the standard 90 degrees — is now where the toilet used to be. The new toilet (not pictured) moved across from its previous location, into a little nook. The single vanity pictured here is approximately where the existing vanity sat.
Not pictured are a second vanity — one of the homeowners’ top requests — and a matching storage tower, which sit across from this vanity, next to the toilet nook.
Nightingale credits Houzz for helping them get from “before” to “after” on this bathroom project.
“We always love to point people to Houzz as a point of reference and inspiration because [projects on Houzz] are built by people in the industry,” he says. “They’re not built by DIYers or rendered programs or conceptual ideas that aren’t practical. So … we can actually put [examples from Houzz] into play in the field.”
New to home remodeling? Learn the basics
A new custom neo-angle shower — a corner shower enclosure with walls that meet at 135-degree angles instead of the standard 90 degrees — is now where the toilet used to be. The new toilet (not pictured) moved across from its previous location, into a little nook. The single vanity pictured here is approximately where the existing vanity sat.
Not pictured are a second vanity — one of the homeowners’ top requests — and a matching storage tower, which sit across from this vanity, next to the toilet nook.
Nightingale credits Houzz for helping them get from “before” to “after” on this bathroom project.
“We always love to point people to Houzz as a point of reference and inspiration because [projects on Houzz] are built by people in the industry,” he says. “They’re not built by DIYers or rendered programs or conceptual ideas that aren’t practical. So … we can actually put [examples from Houzz] into play in the field.”
New to home remodeling? Learn the basics
To arrive at the new layout, Nightingale took into account the existing confines of the space, such as the ceiling height and window location, and design requirements such as points of egress, walkway widths and minimum shower requirements. He also factored in the separate vanities. (The mirror above the second vanity is reflected in this mirror.) By the time those points were considered, this new configuration emerged as the most functional and efficient solution.
While keeping plumbing in the same spots is often cited as a way to keep costs down, Nightingale cautions that function and layout should always be the top priorities. “If you need to save, save on the finishes, because those are easy to fix or replace later. Not having a good layout is not something you can surmount cost-effectively,” he says.
Plus, moving all the plumbing versus leaving it as is might not be as expensive as you think, Nightingale says. For his company, $1,000 to $1,500 is typical. “On top of that, now you also have brand-new shutoff valves and you have new drains,” he says. “And you can get a lot of extra benefits besides just increasing function and making it more aesthetically pleasing. You also now have the peace of mind that you just put all this money and finishes into a bathroom and it’s going to last.”
While keeping plumbing in the same spots is often cited as a way to keep costs down, Nightingale cautions that function and layout should always be the top priorities. “If you need to save, save on the finishes, because those are easy to fix or replace later. Not having a good layout is not something you can surmount cost-effectively,” he says.
Plus, moving all the plumbing versus leaving it as is might not be as expensive as you think, Nightingale says. For his company, $1,000 to $1,500 is typical. “On top of that, now you also have brand-new shutoff valves and you have new drains,” he says. “And you can get a lot of extra benefits besides just increasing function and making it more aesthetically pleasing. You also now have the peace of mind that you just put all this money and finishes into a bathroom and it’s going to last.”
Fortunately, in this case, they could maximize both style and function. For the aesthetic element, Nightingale partnered with interior design firm North + Birch.
“Our goal was to design something that felt cool and a little masculine without being trendy,” says Carolyn Sauber, who worked on the project with North + Birch owner Steph Morris. “We wanted our design to grow with [the boys], which is why we focused on quality, durable materials such as the quartz countertops, custom white oak cabinetry and concrete floor tiles.”
This photo of the previously pictured vanity offers a truer sense of its 50½-inch width.
Tile: Ann Sacks and Virginia Tile; light fixtures: Hudson Valley Lighting; countertops: Envi quartz; plumbing fixtures: Miseno
“Our goal was to design something that felt cool and a little masculine without being trendy,” says Carolyn Sauber, who worked on the project with North + Birch owner Steph Morris. “We wanted our design to grow with [the boys], which is why we focused on quality, durable materials such as the quartz countertops, custom white oak cabinetry and concrete floor tiles.”
This photo of the previously pictured vanity offers a truer sense of its 50½-inch width.
Tile: Ann Sacks and Virginia Tile; light fixtures: Hudson Valley Lighting; countertops: Envi quartz; plumbing fixtures: Miseno
The shower is spacious enough to allow for a corner seat, which coordinates with the dark gray quartz vanity tops and the saddle on the low curb.
The lower portion of the shower walls are covered in taupe-colored horizontal stacked rectangular tiles with contrasting light grout, and the floor is covered in matte black penny round mosaic tiles with dark grout. The shower walls above the taupe tiles, which are just out of view here, are covered in light-colored, vertically stacked tiles that blend with the room’s painted walls. The concrete floor combines all of those neutral tones in a bold geometric pattern.
The lower portion of the shower walls are covered in taupe-colored horizontal stacked rectangular tiles with contrasting light grout, and the floor is covered in matte black penny round mosaic tiles with dark grout. The shower walls above the taupe tiles, which are just out of view here, are covered in light-colored, vertically stacked tiles that blend with the room’s painted walls. The concrete floor combines all of those neutral tones in a bold geometric pattern.
Before: The existing vanity had double sinks and traditional styling. Above it was a large, bulky soffit.
Shop for bathroom vanities on Houzz
Shop for bathroom vanities on Houzz
After: The new vanities and storage tower were custom-made by WeissWorks, a company recently purchased by Nightingale. WeissWorks collaborated with North + Birch on the design, then fabricated the cabinetry in durable solid wood.
Wall-mounted faucets free up space on the countertops and are easy to clean around — a definite plus in a kids bathroom. Their black finish coordinates with the bath accessories and frame on the custom glass shower surround.
Wall-mounted faucets free up space on the countertops and are easy to clean around — a definite plus in a kids bathroom. Their black finish coordinates with the bath accessories and frame on the custom glass shower surround.
Two deep drawers and pullout trays with soft-close slides are built to fit around the sink and plumbing. The trays are flush with the cabinet frame when closed but 2 to 3 inches shorter on top than their openings so they can be pulled open. When the drawers are closed, the look is seamless thanks to the ribbed design and integrated drawer pulls.
As with moving plumbing, springing for custom cabinetry might sound like a budget buster. But Nightingale says he always advises homeowners not to be afraid of custom, which he says doesn’t cost that much more — maybe 10%, he estimates — than stock cabinetry. That can add up in a big kitchen but less so in a small space. And when every inch counts, custom “really is a great way to solve small-bath problems,” he says.
As with moving plumbing, springing for custom cabinetry might sound like a budget buster. But Nightingale says he always advises homeowners not to be afraid of custom, which he says doesn’t cost that much more — maybe 10%, he estimates — than stock cabinetry. That can add up in a big kitchen but less so in a small space. And when every inch counts, custom “really is a great way to solve small-bath problems,” he says.
This demo plan shows the “before” layout of the kids’ bathroom in dotted red lines. The updated bathroom and a new guest bathroom below it are drawn in solid gray lines.
The illustration shows how Nightingale eliminated closets and removed the alcove tub to carve out the new guest bath. In doing so, the team reduced the size of the kids bathroom from 85 to 80 square feet. (Scroll to the bottom to see the new floor plan.)
Only the kids bathroom is pictured in this story, but you can see the new guest bathroom, as well as more photos of the house remodel, in the project folder.
The illustration shows how Nightingale eliminated closets and removed the alcove tub to carve out the new guest bath. In doing so, the team reduced the size of the kids bathroom from 85 to 80 square feet. (Scroll to the bottom to see the new floor plan.)
Only the kids bathroom is pictured in this story, but you can see the new guest bathroom, as well as more photos of the house remodel, in the project folder.
Before: Here’s the original alcove tub, next to a small built-in linen closet.
Look back at the “before-and-after” floor plan to see the new configuration overlaying the old one. The new toilet backs up roughly to where the closet door is in this photo. The closet and the part of the tub visible here were absorbed into the new guest bathroom.
Look back at the “before-and-after” floor plan to see the new configuration overlaying the old one. The new toilet backs up roughly to where the closet door is in this photo. The closet and the part of the tub visible here were absorbed into the new guest bathroom.
After: This is the second, smaller vanity and storage tower. They sit directly across from the first vanity and next to the toilet nook. The photo doesn’t exactly line up with the “before” because of how that back corner was reconfigured — again, it may be helpful to refer back to the demo plan or to the new floor plan below.
Note the circular integrated pulls on the storage tower and the plentiful shelf space inside.
The kids bathroom may be 5 square feet smaller than it was before, but the custom finishes and smart space planning add up to a much more efficient and stylish setup — perfect for the brothers and a space others can appreciate as well.
The kids bathroom may be 5 square feet smaller than it was before, but the custom finishes and smart space planning add up to a much more efficient and stylish setup — perfect for the brothers and a space others can appreciate as well.
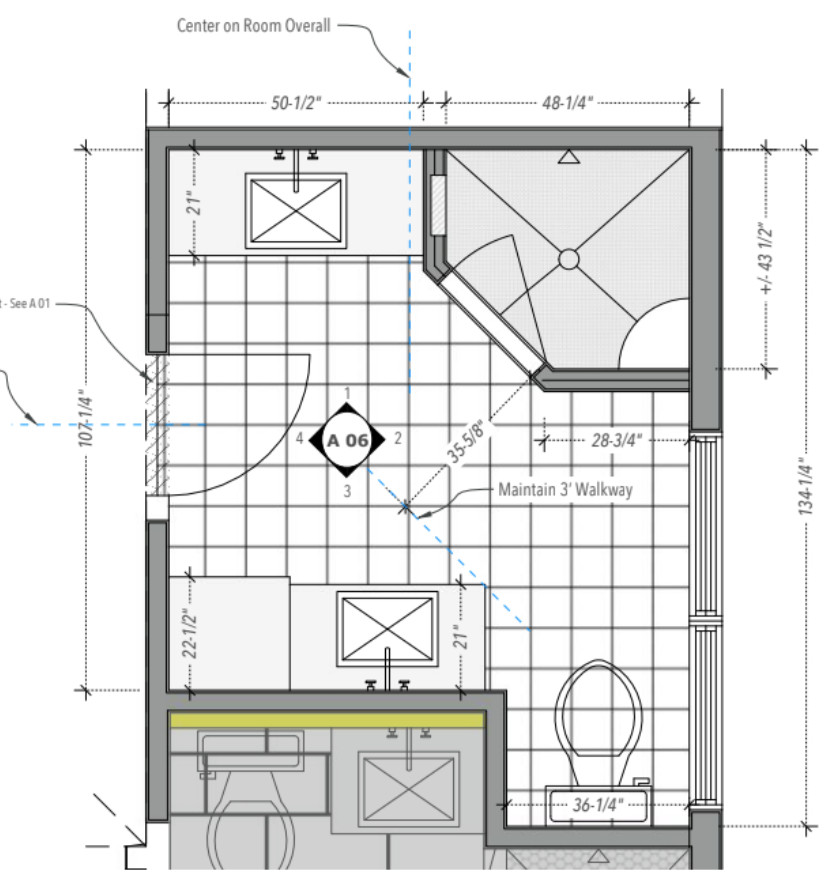
The new floor plan
More on Houzz
Read more bathroom stories
Browse bathroom photos
Find a bathroom designer
Shop for your bathroom
More on Houzz
Read more bathroom stories
Browse bathroom photos
Find a bathroom designer
Shop for your bathroom
















Bathroom at a Glance
Who lives here: A couple and their two sons
Location: Oakland Township, Michigan
Size: 80 square feet (7.4 square meters)
Designer: North + Birch
Builders: Nightingale (construction drawings, budgeting and project management), and WeissWorks (cabinetry and millwork)
Before: The homeowners had worked with CBI Design Professionals on a redesign of their whole home that included adding square footage. But some time after completing the remodel of the first floor, they decided to use the current space on their second floor more efficiently instead of expanding it.
Nightingale’s firm discussed the homeowners’ goals with them, which included adding a guest bath and laundry. Then it revised the floor plans accordingly. This kids bathroom, which had an alcove tub across from the vanity, was central to the new plan.
Find general contractors, bathroom designers and other pros near you