Bathroom of the Week: Colonial-Style Home Gains Spacious En Suite
A second-floor remodel makes room for a relaxing retreat with classic details, a low-curb shower and a claw-foot tub
When this Wisconsin couple settled into their 1960s Colonial-style home tucked into a quiet wooded neighborhood, they knew the existing 70-square-foot second-floor primary bathroom wasn’t going to meet their long-term needs. To achieve the spa-like en suite they envisioned, they turned to Cor Improvements and design director Jim Pitzen, who reimagined the layout by converting a bedroom into a spacious 170-square-foot bath.
The transformation includes two vanities, a freestanding claw-foot tub, a walk-in shower and a water closet — all in a welcoming blue-and-white palette with classic details that honor the home’s roots. The update also added a walk-in closet and an adjacent laundry room, creating a highly functional layout tailored for comfort and ease.
The transformation includes two vanities, a freestanding claw-foot tub, a walk-in shower and a water closet — all in a welcoming blue-and-white palette with classic details that honor the home’s roots. The update also added a walk-in closet and an adjacent laundry room, creating a highly functional layout tailored for comfort and ease.
After: This photo, taken from a similar angle as the previous one, shows how the space has been dramatically transformed. While the windows remained in their original locations, Pitzen reimagined the primary bedroom as a bright, spacious new bathroom. A nearby guest room now serves as the new primary bedroom. A short entry hall and large walk-in closet — created in the footprint of the original bathroom — connect the two spaces. (See before-and-after floor plans below.)
The increased footprint allowed room for semicustom blue vanities on two walls. Each has full-overlay cabinet fronts, soft-close doors and hinges, tapered glass knobs in oil-rubbed bronze and furniture-style feet. The vanities tie in with the velvety blue eggshell paint used on the upper walls (Smoky Blue by Sherwin-Williams), while beadboard wainscoting and trim in a warm off-white (Alabaster by Sherwin-Williams) add light contrast. “We did the beadboard paneling because it’s more traditional for this Colonial-style home,” Pitzen says.
On the floor, 8-by-8-inch porcelain tiles feature a white marble-look background with swirling gray travertine-style floral and leaf motifs. “This was more driven by the wife, who really wanted the soothing blues in the bathroom and liked the idea of tiles for the floor with some detail to it,” Pitzen says.
New LED ceiling lights on dimmers provide customizable ambient lighting, while ceiling-mounted exhaust fans near the shower and inside the water closet ensure proper ventilation.
Floor tile: Kelli Fontana Inlay Proper Florence Lace, The Tile Shop; vanities: London MDF/maple in Peacock Blue, Countryside Cabinets; hardware: Harlow glass tapered knob in brushed oil-rubbed bronze, Hardware Resources
Find a bathroom designer
The increased footprint allowed room for semicustom blue vanities on two walls. Each has full-overlay cabinet fronts, soft-close doors and hinges, tapered glass knobs in oil-rubbed bronze and furniture-style feet. The vanities tie in with the velvety blue eggshell paint used on the upper walls (Smoky Blue by Sherwin-Williams), while beadboard wainscoting and trim in a warm off-white (Alabaster by Sherwin-Williams) add light contrast. “We did the beadboard paneling because it’s more traditional for this Colonial-style home,” Pitzen says.
On the floor, 8-by-8-inch porcelain tiles feature a white marble-look background with swirling gray travertine-style floral and leaf motifs. “This was more driven by the wife, who really wanted the soothing blues in the bathroom and liked the idea of tiles for the floor with some detail to it,” Pitzen says.
New LED ceiling lights on dimmers provide customizable ambient lighting, while ceiling-mounted exhaust fans near the shower and inside the water closet ensure proper ventilation.
Floor tile: Kelli Fontana Inlay Proper Florence Lace, The Tile Shop; vanities: London MDF/maple in Peacock Blue, Countryside Cabinets; hardware: Harlow glass tapered knob in brushed oil-rubbed bronze, Hardware Resources
Find a bathroom designer
The vanities have polished marble-look quartz counters and backsplashes that provide both durability and a refined appearance. White oval undermount sinks are paired with classic-style widespread two-handle faucets, each with a high-arc spout and oil-rubbed bronze finish. “It’s a classic finish that works well with this Colonial-style home,” Pitzen says.
Oil-rubbed bronze towel rings are mounted beside each vanity. Oval tilting mirrors in a matching bronze finish coordinate with light fixtures that echo the rich tone. “The oval mirrors, sinks and freestanding claw-foot tub give this bathroom soft lines,” Pitzen says.
Gilcrest mirror and Weymouth towel ring, both in oil-rubbed bronze, Moen; sinks: Caxton, Kohler; faucets: Weymouth in oil-rubbed bronze, Moen
Shop for bathroom vanities on Houzz
Oil-rubbed bronze towel rings are mounted beside each vanity. Oval tilting mirrors in a matching bronze finish coordinate with light fixtures that echo the rich tone. “The oval mirrors, sinks and freestanding claw-foot tub give this bathroom soft lines,” Pitzen says.
Gilcrest mirror and Weymouth towel ring, both in oil-rubbed bronze, Moen; sinks: Caxton, Kohler; faucets: Weymouth in oil-rubbed bronze, Moen
Shop for bathroom vanities on Houzz
The spacious low-curb shower at right occupies a portion of the former bedroom closet. It features a frameless tempered glass enclosure with a protective easy-to-clean coating, a swing door and oil-rubbed bronze hardware that complements other details in the room. The shower face and half wall are painted a warm beige-gray (Alpaca by Sherwin-Williams) to provide visual definition. The curb is topped with the same marble-look quartz used on the vanity counters. “This is substantially larger than what they had,” Pitzen says. “The size of this shower also allowed us to put a full-length bench inside.”
On the far left, a doorway leads to the new walk-in primary closet, located where the original bathroom once stood. It connects to the new primary bedroom. To the right of the closet entrance is a paneled door open to the new entry hall that connects to the primary bedroom. The closed pocket doors seen in the hallway lead to the second-floor stair landing. “They can close that off and have privacy to walk back and forth from the bedroom to the bathroom,” Pitzen says.
The 10 Most Popular New Bathrooms Right Now
On the far left, a doorway leads to the new walk-in primary closet, located where the original bathroom once stood. It connects to the new primary bedroom. To the right of the closet entrance is a paneled door open to the new entry hall that connects to the primary bedroom. The closed pocket doors seen in the hallway lead to the second-floor stair landing. “They can close that off and have privacy to walk back and forth from the bedroom to the bathroom,” Pitzen says.
The 10 Most Popular New Bathrooms Right Now
Inside the shower, beveled 3-by-6-inch snow white ceramic subway tiles, set in a classic subway pattern with beige-colored high-performance grout, create a crisp and timeless backdrop. A band of multipatterned porcelain mosaic tiles adds visual interest and contrast.
A combination of oil-rubbed bronze fixtures — including a fixed shower head, a hand shower with slide bar and a 7-inch rain shower head — provides a flexible and luxurious experience. The top of the built-in bench is finished with the same marble-look quartz used on the vanity counters and shower curb, tying the design together. On the floor, storm gray porcelain penny tiles with matching grout add subtle texture. “We added a water heater in close proximity to this bathroom,” Pitzen says. “They had mentioned it took a very long time for warm water to reach their location before.”
Shower fixtures: Moen
See why you should hire a professional who uses Houzz Pro software
A combination of oil-rubbed bronze fixtures — including a fixed shower head, a hand shower with slide bar and a 7-inch rain shower head — provides a flexible and luxurious experience. The top of the built-in bench is finished with the same marble-look quartz used on the vanity counters and shower curb, tying the design together. On the floor, storm gray porcelain penny tiles with matching grout add subtle texture. “We added a water heater in close proximity to this bathroom,” Pitzen says. “They had mentioned it took a very long time for warm water to reach their location before.”
Shower fixtures: Moen
See why you should hire a professional who uses Houzz Pro software
Opposite the shower, a 72-inch white cast-iron claw-foot tub makes a striking statement with its oil-rubbed bronze feet and coordinating tub filler, complete with an elephant spout and hand shower. “Claw-foot tubs are pieces of art with soft lines and curves,” Pitzen says. “The claw-foot design gives it that decorative and artistic feel and look. The homeowner wanted this for her relaxation and her retreat.”
The tub is positioned beneath an existing single-hung window that looks out to the front yard and the couple’s garden. “They’re nestled in the woods, so it’s private,” Pitzen says. On either side of the window are dimmable sconces with etched glass shades. The extended window sill runs the length of the wall, creating a functional ledge for candles, plants or other decor. A 24-inch oil-rubbed bronze towel bar nearby keeps a bath towel within easy reach.
Tub: Lena cast-iron claw-foot tub in oil-rubbed bronze, 72 inches, with Monarch feet, Signature Hardware
10 Aging-in-Place Features Pros Swear By
The tub is positioned beneath an existing single-hung window that looks out to the front yard and the couple’s garden. “They’re nestled in the woods, so it’s private,” Pitzen says. On either side of the window are dimmable sconces with etched glass shades. The extended window sill runs the length of the wall, creating a functional ledge for candles, plants or other decor. A 24-inch oil-rubbed bronze towel bar nearby keeps a bath towel within easy reach.
Tub: Lena cast-iron claw-foot tub in oil-rubbed bronze, 72 inches, with Monarch feet, Signature Hardware
10 Aging-in-Place Features Pros Swear By
Before: This photo shows the former primary bedroom before the furniture was removed. The paneled door next to the window led to the original 70-square-foot bathroom, while the door at the right opened to the second-floor hallway and staircase landing. The stairs seen in this photo lead up to the attic. “There was also a second door into the primary bathroom from the hallway,” Pitzen says. “The primary bedroom didn’t feel very private because you had a direct view from the stairwell right there.” (Note the two windows on the wall for reference in the next photo.)
After: This photo was taken from roughly the same vantage point as the previous one. The tub now sits beneath one of the original windows, while the second window is located in the new water closet. “It’s always a big design item for people, if they want the privacy and have the space for it,” Pitzen says of a water closet. “We had the ability to do a private water closet because of the size of the bathroom.”
Just to the right of the water closet is the new walk-in closet, which now occupies the footprint of the former bathroom. It connects directly to the new primary bedroom.
New to home remodeling? Learn the basics
Just to the right of the water closet is the new walk-in closet, which now occupies the footprint of the former bathroom. It connects directly to the new primary bedroom.
New to home remodeling? Learn the basics
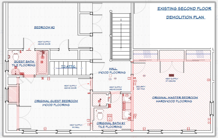
Before: Here’s a look at the original second-floor layout of the home. The small primary bathroom (bottom middle) sat off the primary bedroom (bottom right). Both had doors that opened directly to the second floor central hallway and stair landing (center). The guest bedroom (bottom left) shared a wall with the primary bathroom.
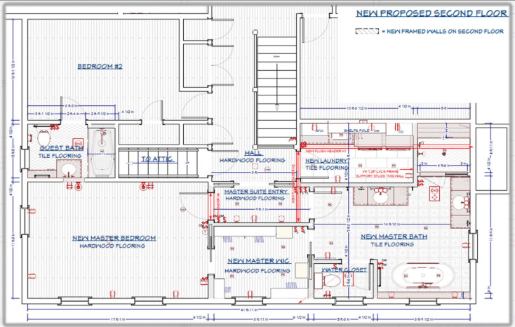
After: The new primary bathroom now occupies the space where the original primary bedroom stood (bottom right), while the upgraded walk-in closet was created in the footprint of the former bathroom (bottom middle). The new primary bedroom was relocated to the space that had previously served as the guest bedroom (bottom left).
A central entry hall with double pocket doors (center) now links the new bedroom and bathroom, providing privacy when needed. Reworking the layout also made room for a new laundry area (center right), carved from the original primary bedroom. “The homeowners are extremely pleased at how this turned out and how we made their vision a reality,” Pitzen says. “From the spacious shower to the look of the room, they absolutely love this space.”
More on Houzz
Read more bathroom stories
Browse bathroom photos
Find a bathroom remodeler
Shop for your bathroom
A central entry hall with double pocket doors (center) now links the new bedroom and bathroom, providing privacy when needed. Reworking the layout also made room for a new laundry area (center right), carved from the original primary bedroom. “The homeowners are extremely pleased at how this turned out and how we made their vision a reality,” Pitzen says. “From the spacious shower to the look of the room, they absolutely love this space.”
More on Houzz
Read more bathroom stories
Browse bathroom photos
Find a bathroom remodeler
Shop for your bathroom















Bathroom at a Glance
Who lives here: A couple
Location: River Hills, Wisconsin
Size: 170 square feet (16 square meters)
Designer-builder: Cor Improvements
Before: This photo shows the former primary bedroom after all the furniture was removed prior to the remodel. It had moss green walls, hardwood floors and ample natural light. A door to the right of the far-right window led to the small bathroom (see below). “They knew they would have to sacrifice the bedroom and were willing to do that because the home had an adequate amount of bedrooms,” Pitzen says. “The only way to create the primary suite they wanted and to do this bathroom and the laundry room was to sacrifice the bedroom.”