Bathroom of the Week: From Closet to Stylish En Suite
A designer converts a former closet into a bright and open bath with a low-curb shower and blue and pink tile
This young professional couple’s 100-year-old Chicago home came with lots of character. What it didn’t come with was a private bathroom for the main bedroom. Instead, one — and only one — hallway bathroom served the three bedrooms on the two-story home’s second floor.
Wanting an en suite bathroom, the couple turned to designer Heather Fuchs of Metro Design Build for help. Fuchs identified the couple’s main closet as the perfect spot for a bright and airy bathroom. So she converted an unfinished sunroom off the couple’s bedroom into their main closet and turned the former closet into an attractive new bath. A spacious low-curb shower gives the space roomy function, while matte pink wall tiles perk the area up. Geometric blue-and-white cement floor tile energizes the room, and a floating cherry wood vanity adds a punch of warmth.
Wanting an en suite bathroom, the couple turned to designer Heather Fuchs of Metro Design Build for help. Fuchs identified the couple’s main closet as the perfect spot for a bright and airy bathroom. So she converted an unfinished sunroom off the couple’s bedroom into their main closet and turned the former closet into an attractive new bath. A spacious low-curb shower gives the space roomy function, while matte pink wall tiles perk the area up. Geometric blue-and-white cement floor tile energizes the room, and a floating cherry wood vanity adds a punch of warmth.
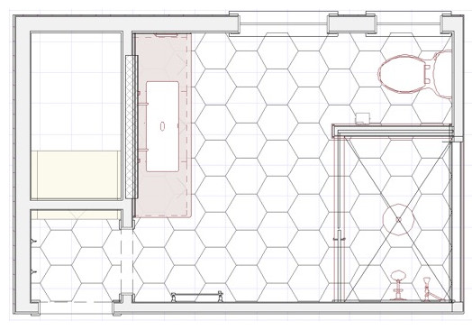
After: Taken from about the same angle as the previous photo, this view shows how Fuchs worked around the two windows to create an airy layout with a low-curb shower and a floating vanity. The toilet sits in a corner, blocked by a partial shower wall.
Fuchs knocked the former space back to the studs, updated the electrical and added plumbing. New recessed LED lighting ensures a well-lit space at night.
Find a bathroom designer near you
Fuchs knocked the former space back to the studs, updated the electrical and added plumbing. New recessed LED lighting ensures a well-lit space at night.
Find a bathroom designer near you
White walls and ceiling enhance the light look, while matte 2-by-12-inch pink shower tiles create a warm and welcoming vibe. “When you walk in the bathroom, the first thing you see is the shower,” Fuchs says. “I didn’t want you to see plain drywall. I like that it’s a soft, neutral but playful color. It’s like [the homeowners’] personalities. They’re low-key but fun.”
Handcrafted blue-and-white geometric floor tile brings a burst of pattern. A matte finish provides safe grip underfoot. “We played off some of the colors in their bedroom,” Fuchs says. “They’re also really into a midcentury style, so that’s why this pattern was selected.”
The main floor and shower floor feature radiant heat. A matte black swing-arm towel rack on the right keeps towels close to the shower.
Floor tile: Radar hex in Federal Blue + White, Cle Tile; shower wall tile: Rosy Finch in matte, 2 by 12 inches, Fireclay Tile
Shop for wall and floor tile
Handcrafted blue-and-white geometric floor tile brings a burst of pattern. A matte finish provides safe grip underfoot. “We played off some of the colors in their bedroom,” Fuchs says. “They’re also really into a midcentury style, so that’s why this pattern was selected.”
The main floor and shower floor feature radiant heat. A matte black swing-arm towel rack on the right keeps towels close to the shower.
Floor tile: Radar hex in Federal Blue + White, Cle Tile; shower wall tile: Rosy Finch in matte, 2 by 12 inches, Fireclay Tile
Shop for wall and floor tile
A custom three-eighths-inch-thick clear glass enclosure has matte black hardware and hinges that complement other black details in the room.
The white one-piece elongated comfort-height toilet features a heated seat with a bidet element and a built-in nightlight. A touchscreen remote on the wall controls the seat functions.
Toilet: Cimarron comfort one-piece elongated 1.28 GPF toilet in white, Kohler; toilet seat: C3-230 cleansing toilet seat, elongated, in white, Kohler
The white one-piece elongated comfort-height toilet features a heated seat with a bidet element and a built-in nightlight. A touchscreen remote on the wall controls the seat functions.
Toilet: Cimarron comfort one-piece elongated 1.28 GPF toilet in white, Kohler; toilet seat: C3-230 cleansing toilet seat, elongated, in white, Kohler
Need a pro for your bathroom remodeling project?
Let Houzz find the best pros for you
Let Houzz find the best pros for you
A matte black fixed shower head, rain head and multifunction handheld shower give the homeowners a spa-like experience.
A thermostatic valve with volume controls provides a consistent temperature. “Since they live in an older home, they want to control the temperature,” Fuchs says. “But it also allows them to easily pick and choose the showering experience they want every day.”
Shower fixtures: Purist hand shower, control valve and thermostatic valve, Kohler
A thermostatic valve with volume controls provides a consistent temperature. “Since they live in an older home, they want to control the temperature,” Fuchs says. “But it also allows them to easily pick and choose the showering experience they want every day.”
Shower fixtures: Purist hand shower, control valve and thermostatic valve, Kohler
A storage niche with a white quartz ledge extends almost the entire length of the back wall of the shower, allowing the homeowners to keep shower products off the floor. The quartz ledge matches the quartz used for the low-curb shower threshold.
10 Bathroom Design Features Pros Always Recommend
10 Bathroom Design Features Pros Always Recommend
A square stainless steel shower drain sits in the center of three of the hexagonal floor tiles.
A floating cherry wood vanity keeps the floor visually open and makes it easy to clean. A custom stain gives the wood a rich appearance, and it coordinates with the floor tile to create a fun midcentury modern style the homeowners like. The satin black pulls have a diamond knurl grip.
A recessed mirrored medicine cabinet provides additional storage. “It’s not only wide and fills the width of the space, it also has an electrical outlet inside,” Fuchs says. The piece also features integrated LED lighting.
A single 35-inch-long sink saves space. “We were looking for a solution for both of them to get ready in the morning, but the space was a bit tight for two sinks,” Fuchs says. “This way they both have a faucet, sink space and a good amount of countertop space.”
Vanity: Crystal Cabinets; sink: Lacava
Shop for a bathroom vanity
A recessed mirrored medicine cabinet provides additional storage. “It’s not only wide and fills the width of the space, it also has an electrical outlet inside,” Fuchs says. The piece also features integrated LED lighting.
A single 35-inch-long sink saves space. “We were looking for a solution for both of them to get ready in the morning, but the space was a bit tight for two sinks,” Fuchs says. “This way they both have a faucet, sink space and a good amount of countertop space.”
Vanity: Crystal Cabinets; sink: Lacava
Shop for a bathroom vanity
The wall-mounted matte black faucets feature white knob covers. “We wanted something that was different,” Fuchs says. “This specific line can be customized with where the colors go. We liked that we were able to pull the white in, since it’s an accent color in the bathroom. The black also coordinates with the other details.”
Fuchs was also able to customize the location of the handles, so they would be symmetrical. The end of each faucet is knurled, which complements the knurled cabinet hardware.
Faucets: MOD+ collection, Graff
Fuchs was also able to customize the location of the handles, so they would be symmetrical. The end of each faucet is knurled, which complements the knurled cabinet hardware.
Faucets: MOD+ collection, Graff
The same pink tile used in the shower forms a backsplash, creating a unified look in the space.
New to home remodeling? Learn the basics
New to home remodeling? Learn the basics
A built-in cabinet around the corner from the vanity offers storage for linens and extra toiletries. “It’s actually an existing piece, we only added the hardware to match the rest of the bathroom,” Fuchs says. “It was already white, so it matched everything we had going on in there.”
Two matte black hooks on the wall to the left keep robes handy.
Two matte black hooks on the wall to the left keep robes handy.
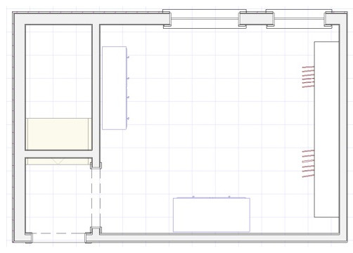
Before: This drawing shows the location of the main components in the former closet. The two windows are at the top center and top right.
After: In the updated space, the glass-enclosed shower (bottom right) and floating vanity (center left) create an open and airy layout. The toilet (top right) sits below one of the windows.
“This space gives them that private en suite bathroom where they can unwind,” Fuchs says.
More on Houzz
Read more bathroom stories
Browse bathroom photos
Find a bathroom designer
Shop for your bathroom
“This space gives them that private en suite bathroom where they can unwind,” Fuchs says.
More on Houzz
Read more bathroom stories
Browse bathroom photos
Find a bathroom designer
Shop for your bathroom

















Bathroom at a Glance
Who lives here: A young professional couple
Location: Chicago
Size: 102 square feet (9.5 square meters)
Design: Heather Fuchs of Metro Design Build
Before: The spacious former closet presented an opportunity for an open, bright new bathroom thanks to two windows. “It was such a waste of space,” Fuchs says. “We knew this space was the perfect size for an en suite bathroom.”