Bathroom Design
Bathroom of the Week: Teak Cabinetry and Universal Design
An extensive remodel of their master bathroom will help allow this Seattle couple to age in place
Timeless Materials
One of the homeowners is very hands-on. “He’s an avid woodworker and crafted the teak vanity and shelves himself, which saved on the budget,” Moisan says. Another budget-saver was using the excess tile and countertop materials from their powder room remodel.
The countertops are Meridian Satin quartzite by Pental. The natural stone plays off the rich wood of the teak beautifully. Single-lever faucet handles maintain a minimalist aesthetic that puts the focus on the natural materials.
One of the homeowners is very hands-on. “He’s an avid woodworker and crafted the teak vanity and shelves himself, which saved on the budget,” Moisan says. Another budget-saver was using the excess tile and countertop materials from their powder room remodel.
The countertops are Meridian Satin quartzite by Pental. The natural stone plays off the rich wood of the teak beautifully. Single-lever faucet handles maintain a minimalist aesthetic that puts the focus on the natural materials.
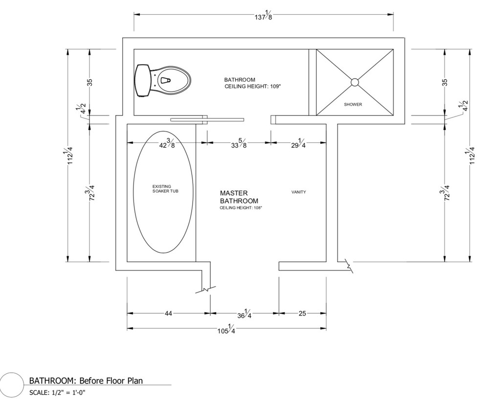
Before: The original bathroom was poorly laid out and needed a complete reconfiguration to be accessible for someone with mobility issues. It was chopped up, with a separate water closet and shower stall area, and it had a space hog of a soaking tub that the homeowners were not interested in using. The bathroom’s 82-square-foot footprint remained the same, but removing the dividing walls and tub gave them space to make the room accessible to wheelchairs and walkers.
Universal Design Principles
Before: This floor plan lines up nicely with the previous photo. There was a tiny shower stall in the top left corner. And the dividing walls between the toilet and shower were not practical for aging in place.
Before: This floor plan lines up nicely with the previous photo. There was a tiny shower stall in the top left corner. And the dividing walls between the toilet and shower were not practical for aging in place.
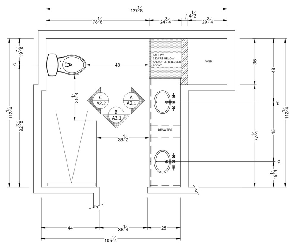
After: With the walls and the tub removed, there was space to create a roomy shower stall, left, and additional storage, right. The curbless entry to the shower faces the toilet.
Key Measurements
Key Measurements
- There are 39½ inches of clearance between the shower and the vanity.
- The toilet is 17 inches high.
- There are 48 inches of clearance between the toilet and the vanity and about 35 inches between the toilet and the shower.
- The shower stall is 44 inches wide.
- The countertops are 33 inches high.
Ample light is another important aspect of universal design in a bathroom. They installed recessed lights, two four-bulb vertical sconces and undermount vanity lighting to provide plenty of light. All of the fixtures are on dimmers so they can adjust them from bright morning makeup light down to dim midnight-trip-to-the-bathroom light.
The sinks are wall-mounted, ceramic and ADA-compliant, allowing access for wheelchairs and walkers beneath them. The homeowner built removable shelves underneath the sinks (see first photo) that they can use for extra storage now and remove them in the future, if necessary.
A good friend of the couple who uses a wheelchair helped check the vanity clearances as the homeowner worked on the vanity.
Universal Bath Design: Light Your Bathroom for All Ages and Abilities
The sinks are wall-mounted, ceramic and ADA-compliant, allowing access for wheelchairs and walkers beneath them. The homeowner built removable shelves underneath the sinks (see first photo) that they can use for extra storage now and remove them in the future, if necessary.
A good friend of the couple who uses a wheelchair helped check the vanity clearances as the homeowner worked on the vanity.
Universal Bath Design: Light Your Bathroom for All Ages and Abilities
Before: The shower stall was small and had a curb — not conducive to aging in place.
Read more stories about bathrooms with universal design
Read more stories about bathrooms with universal design
The design team added several features that will allow the homeowners to age in place:
Creating a curbless shower that would be accessible for a wheelchair or walker was tricky in a condo with concrete floors. To build up enough height for the drain to function properly, the designers increased the floor thickness in the bathroom and bedroom an imperceptible amount, but enough to allow for the slant they needed in the shower for drainage.
The shower walls are clad in the same quartzite as the countertops. Limiting the material palette created a cohesive look in the minimalist style the couple likes. The shower floor tiles are Eco-Stone by Pental. It is porcelain with a natural stone look that picks up on the colors in the veining of the walls and is slip-resistant.
More on Houzz
How to Design an Accessible Shower
Find a local bathroom designer for your project
Shop for bathroom products
- Curbless entrance
- Stall dimensions that are large enough for a caregiver to fit in when help is needed
- Slip-resistant tile
- Plywood blocking in the walls to support future grab bar installation
- Handheld shower head
- Wall-mounted flip-down teak bench that can support up to 500 pounds
Creating a curbless shower that would be accessible for a wheelchair or walker was tricky in a condo with concrete floors. To build up enough height for the drain to function properly, the designers increased the floor thickness in the bathroom and bedroom an imperceptible amount, but enough to allow for the slant they needed in the shower for drainage.
The shower walls are clad in the same quartzite as the countertops. Limiting the material palette created a cohesive look in the minimalist style the couple likes. The shower floor tiles are Eco-Stone by Pental. It is porcelain with a natural stone look that picks up on the colors in the veining of the walls and is slip-resistant.
More on Houzz
How to Design an Accessible Shower
Find a local bathroom designer for your project
Shop for bathroom products














Bathroom at a Glance
Who uses it: A couple that wants to age in place
Location: Seattle
Size: 82 square feet (7.5 square meters)
Designers: Jen Kowalski of Six Walls Interior Design (interior design) and Matt Moisan of Potter Construction (construction and universal design)
This couple’s forever home in Seattle is a ground-floor condo in a beautiful urban waterfront area of downtown, with Puget Sound, the ferris wheel and ferry terminals across the street. When they were ready to remodel their master bathroom using universal design principles, they called Potter Construction, a firm they’d found through Houzz when they remodeled their kitchen in 2015. During that remodel, the design pros got to know the couple’s style well. “They love unique wood, handcrafted work and earth tones and textures,” says Matt Moisan, a certified aging-in-place specialist and general manager at Potter Construction. “They are also quite minimalist.”
Find a local bathroom remodeler