Bathroom of the Week: Traditional Meets Zen in Pennsylvania
A designer reworks a typical 1990s layout to accommodate smarter storage solutions and a larger shower
After building their house in Pennsylvania’s Lehigh Valley back in the 1990s, this couple found that one of their favorite things about the home was watching the sun set behind the Appalachian Mountains from their bathtub. Decades later, with their children all grown up and moved out, they were ready for a full remodel of the bathroom. A big bathtub placed beneath its corner windows was a nonnegotiable must-have.
Lucky for them, they were close friends with a designer, Jill Jarrett. Jarrett had designed their dream kitchen a few years earlier, so she understood their style and needs. For their primary bath, she created a traditional design that worked well with the style of the rest of the house. More important, she reworked the layout to give them the storage they lacked, a larger shower and, of course, a large tub with sunset views.
Lucky for them, they were close friends with a designer, Jill Jarrett. Jarrett had designed their dream kitchen a few years earlier, so she understood their style and needs. For their primary bath, she created a traditional design that worked well with the style of the rest of the house. More important, she reworked the layout to give them the storage they lacked, a larger shower and, of course, a large tub with sunset views.
After: Jarrett removed the linen closet and tub surround, which created space for a large double vanity. She made up for the loss of the closet by adding a linen armoire on the other side of the room.
“They loved their bedroom paint color and wanted to continue it into their bathroom,” Jarrett says. She used the color, Benjamin Moore’s Grant Beige, on the cabinetry and beadboard wainscoting. The walls are Benjamin Moore’s Linen White.
“My clients had a good idea of what they wanted and were involved in the design,” Jarrett says. “As part of my initial consultation, I always involve Houzz in two ways. First, I use it to collaborate with my clients on ideas. Second, I invite them to get to know us by looking at the awards we’ve won and reading our reviews.”
“They loved their bedroom paint color and wanted to continue it into their bathroom,” Jarrett says. She used the color, Benjamin Moore’s Grant Beige, on the cabinetry and beadboard wainscoting. The walls are Benjamin Moore’s Linen White.
“My clients had a good idea of what they wanted and were involved in the design,” Jarrett says. “As part of my initial consultation, I always involve Houzz in two ways. First, I use it to collaborate with my clients on ideas. Second, I invite them to get to know us by looking at the awards we’ve won and reading our reviews.”
“They have a lot of stuff they wanted to store, so we included a tower on the countertop,” Jarrett says. The tower has outlets inside. The new vanity also has a bank of drawers in the center to maximize storage. Mirrored medicine cabinets add even more storage.
The cabinetry design has a traditional furniture-like look. The cabinet profiles, the cabinet hardware and the wood mirrors are also traditional. The hardware is by Armac Martin in its burnished brass finish.
The cabinetry design has a traditional furniture-like look. The cabinet profiles, the cabinet hardware and the wood mirrors are also traditional. The hardware is by Armac Martin in its burnished brass finish.
The toilet room is just past the vanity to the right. This meant the vanity would have to be 21 inches deep maximum to allow clearance to the toilet room. Therefore, Jarrett recommended wall-mounted faucets to save counter space. The beautiful Arabescato D’Oro marble extends from the countertop up the backsplash.
The faucets have knurled details, which are similar to a crosshatch pattern. The finish is antique brass.
Browse bathroom faucets in the Houzz Shop
The faucets have knurled details, which are similar to a crosshatch pattern. The finish is antique brass.
Browse bathroom faucets in the Houzz Shop
Before: A large bathtub and its surround occupied the corner under the windows, and it was one of the homeowners’ favorite things about their home. “I had a hard time talking them out of keeping this tub until I showed them everything I could do in here without it,” Jarrett says with a laugh.
After: By replacing the drop-in tub with a freestanding one, Jarrett opened up more floor space for the vanity and a large shower. The footed tub has a traditional silhouette. “They shopped for tubs and sat in so many of them,” the designer says. “They found this one the most comfortable, with perfectly angled sides, and they love it.”
The tub has views of the trees and Blue Mountain beyond. Fun fact: The Appalachian Trail traverses this mountain ridge. The site is completely private, so no window treatments were required.
Jarrett added towel bars that double as grab bars off two sides of the tub. This involved adding extra support in the walls to make sure the bars can handle the weight of people using them to pull themselves up.
Bathtub: Parisian 2 freestanding, MTI Baths
The tub has views of the trees and Blue Mountain beyond. Fun fact: The Appalachian Trail traverses this mountain ridge. The site is completely private, so no window treatments were required.
Jarrett added towel bars that double as grab bars off two sides of the tub. This involved adding extra support in the walls to make sure the bars can handle the weight of people using them to pull themselves up.
Bathtub: Parisian 2 freestanding, MTI Baths
Before: A second vanity wrapped the corner on the other side of the tub surround. Again, the lack of storage caused overflow onto the counters.
The double doors lead to the bedroom. The doors swung into the bathroom, taking up space, so Jarrett replaced them with double pocket doors. A small shower stall was to the left of the doors. You can see a tiny sliver of it in the photo.
The double doors lead to the bedroom. The doors swung into the bathroom, taking up space, so Jarrett replaced them with double pocket doors. A small shower stall was to the left of the doors. You can see a tiny sliver of it in the photo.
After: The designer moved the shower across the room. By building a pony wall between the shower and tub, she created space for one of the two towel-grab bars that serve the tub. She also added a towel hook to the end of the pony wall so it’s easy to grab a towel without stepping out of the shower.
Find a local tile professional
Find a local tile professional
The new shower measures 5½ by 3½ feet. It includes a regular shower head, a rain shower head and a handheld wand on a slide bar. “I recommend using these three shower heads together to all my clients whenever it’s possible,” Jarrett says.
Having the handheld wand near the bench is good for aging in place, as one can sit while rinsing off. Jarrett added a grab bar in this area to ease getting up from the bench.
Having the handheld wand near the bench is good for aging in place, as one can sit while rinsing off. Jarrett added a grab bar in this area to ease getting up from the bench.
The 12-by-24-inch tiles on the shower walls are porcelain, digitally printed to look like travertine. “I was nervous about using a digitally printed material, but this one is really nice,” Jarrett says. “Porcelain printed like this has come a long way.” Natural travertine is porous and porcelain is much easier to keep clean.
Jarrett used the same material on the shower floor in a 2-by-2-inch mosaic size and on the bathroom floor in a 12-by-24-inch size. Limiting the material palette adds to the zen feel of the space.
Jarrett used the same material on the shower floor in a 2-by-2-inch mosaic size and on the bathroom floor in a 12-by-24-inch size. Limiting the material palette adds to the zen feel of the space.
Jarrett repeated the Arabescato D’Oro marble she used on the vanity on the shower bench, curb, the top of the pony wall and the bottom of the shower niche.
After: To make up for the storage space lost by removing the linen closet, Jarrett replaced it with a custom linen armoire. The freestanding furniture look lends a traditional feel. Drawers in different sizes accommodate a range of bathroom items.
Shop for cabinet hardware
Shop for cabinet hardware
This photo provides a good look at the cabinet profile Jarrett used on the linen armoire and vanity. The flat-panel doors and drawers have stretched-out ogee details.
The cabinet doors and drawers are 1 inch thick. This is a deeper and more substantial profile than standard, which is three-quarters of an inch thick.
Jarrett installed rails inside the armoire doors to hold more products. “These are the same rails we use for cans or spices in a kitchen,” she says.
Jarrett installed rails inside the armoire doors to hold more products. “These are the same rails we use for cans or spices in a kitchen,” she says.
The ceiling light is an alabaster globe. It looks like the moon when illuminated at night.
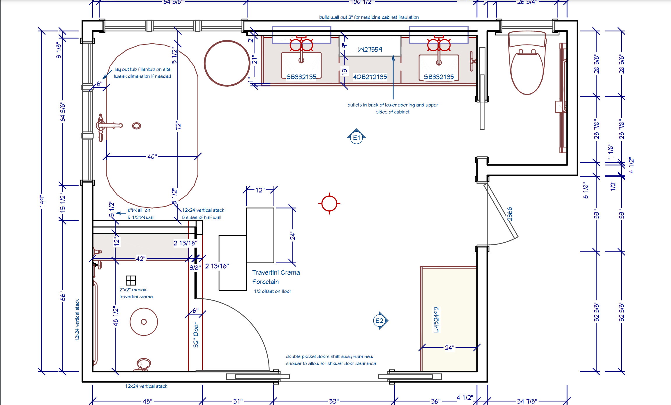
Floor plan: Across the top from left to right, this plan shows the bathtub, the double vanity and the toilet room. The linen closet used to be to the left of the toilet room. Across the bottom is the new shower, the new double pocket doors that lead to the bedroom and the linen armoire. The door above the armoire leads to the closet.
“My clients love their bathroom and they especially love their new bathtub,” Jarrett says. “They rave about it.”
More on Houzz
Read more bathroom stories
Browse bathroom photos
Find a bathroom remodeler
Shop for your bathroom
“My clients love their bathroom and they especially love their new bathtub,” Jarrett says. “They rave about it.”
More on Houzz
Read more bathroom stories
Browse bathroom photos
Find a bathroom remodeler
Shop for your bathroom



















Bathroom at a Glance
Who lives here: A couple
Location: Allentown, Pennsylvania, area
Size: 189 square feet (18 square meters).
Designers: Jill and Jesse Jarrett of Jarrett Design
Before: The room had two small vanities on either side of a large tub surround. There was a linen closet to the right of the vanity seen here. The door on the adjacent wall led to a toilet room. The freestanding rack and countertop clutter seen in the “before” photos illustrate the lack of storage.
While the clients wanted traditional style for the bathroom, a calm feeling was also a must. “They wanted to bring the outdoors in and have a relaxed feeling in here. They also wanted to use natural materials,” Jarrett says. “They used the word ‘zen’ a lot and they really meant it. They even had a meditation room put into the plans when they first built the house in the 1990s.” Using a warm neutral color palette and natural materials helped Jarrett create a zen feel for the room.
Find a bathroom designer near you