Bathroom of the Week: Warm Transitional Style and a Big Shower
A designer reconfigures a layout to incorporate better flow, calming symmetry and lots of storage
This suburban Portland, Oregon, homeowner was ready for a big change in her townhome’s primary bathroom. The space wasn’t being used to its full advantage and the layout made the spacious room feel clunky and cramped. She hired interior designer Amy Pearson to help her get the bathroom of her dreams, as inspired by a recent visit to Portland’s Street of Dreams home tour. The designer incorporated tour-inspired ideas her client liked — such as warm wood tones, dimensional tile and cabinetry details — into the calm and soothing design.
Before: The existing bathroom had a garden tub with a large surround in the corner. “My client didn’t care very much about having a bathtub,” Pearson says. “We explored some layouts that integrated a Japanese soaking tub, but ultimately she opted for a linen cabinet instead.”
One asset the existing bathroom had was a skylight. The designer preserved it during the renovation, and it bathes the room in natural light.
One asset the existing bathroom had was a skylight. The designer preserved it during the renovation, and it bathes the room in natural light.
After: Removing the tub and its large surround left room to expand the double vanities all the way to the corner. “My client is widowed but she wanted two vanities, whether needed for herself in the future or for resale,” Pearson says.
Cabinetry: Rockwood Cabinetry
Find an interior designer on Houzz
Cabinetry: Rockwood Cabinetry
Find an interior designer on Houzz
Before: The existing double vanities wrapped the corner of the room, with a lower makeup counter between them. The opening on the right leads to the primary closet. Also, wall-to-wall carpeting ran throughout the primary suite, including in the bathroom.
After: Pearson placed the shower in the corner next to the closet entry. This allowed her to use a generous shower stall that measures a little over 6 feet by 3½ feet.
“One of the things my client really liked was dimensional tile,” Pearson says. “I found a porcelain tile that came in a matching dimensional version and used it along the back wall of the shower.”
Shop for a vanity stool
“One of the things my client really liked was dimensional tile,” Pearson says. “I found a porcelain tile that came in a matching dimensional version and used it along the back wall of the shower.”
Shop for a vanity stool
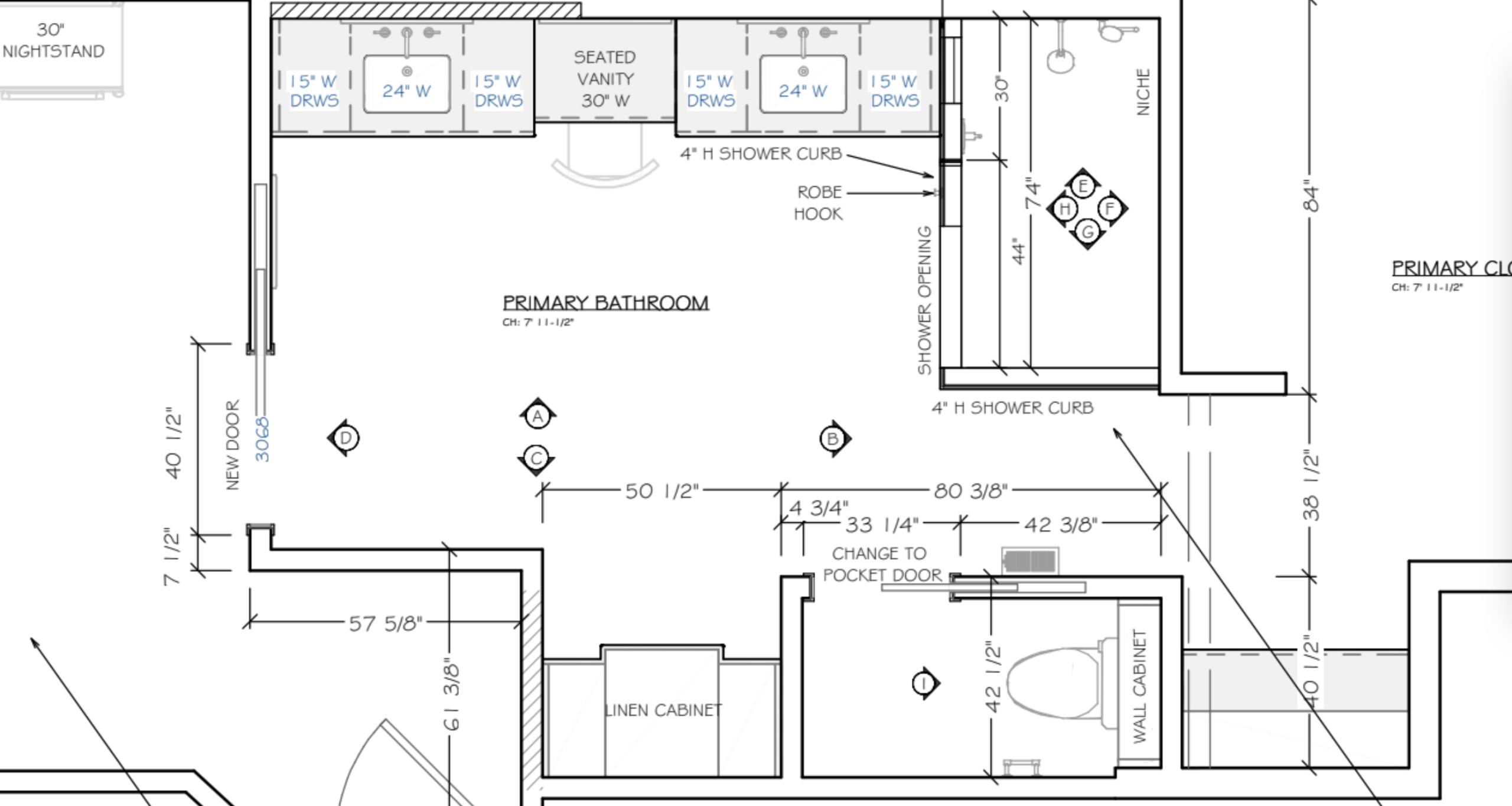
Floor plan: Let’s pause to get a good sense of the new layout. The vanities run across the top, with the new shower stall to the right. The toilet room is on the bottom right corner of the plan. This space did not move, but it did receive a new frosted glass pocket door, new floor tile and a new toilet. A pocket door’s lack of swing makes it a space saver.
One of the most crucial layout changes Pearson made was moving the entry to the bathroom. Previously, a swinging door was located along the bottom of this plan, where the linen cabinet is now. The walls around it created an alcove that was a waste of space. The designer moved the entry to the left side of the room, off the primary bedroom. This new door is also a pocket door.
One of the most crucial layout changes Pearson made was moving the entry to the bathroom. Previously, a swinging door was located along the bottom of this plan, where the linen cabinet is now. The walls around it created an alcove that was a waste of space. The designer moved the entry to the left side of the room, off the primary bedroom. This new door is also a pocket door.
The homeowner decided that the vanity she’d use the most was the one on the right. Pearson installed a hair appliance drawer that includes an outlet inside. She also installed rollout shelves in the cabinets beneath the sinks. This allows easy access to items stashed way in the back.
Browse vanities in the Houzz Shop
Browse vanities in the Houzz Shop
Another element Pearson’s client wanted was natural stone. The countertops are Taj Mahal quartzite, a durable natural stone. The wall tile works well with the colors and patterns in the stone.
All the cabinetry in the bathroom is rift-cut white oak. This beautiful wood is warm without leaning yellow or orange. The stain is a custom mix.
All the cabinetry in the bathroom is rift-cut white oak. This beautiful wood is warm without leaning yellow or orange. The stain is a custom mix.
Pearson also brought warmth into the room with the metal finishes, which are a mix of unlacquered brass, aged brass and polished nickel. She has some advice for mixing metals, though she notes that this is merely guidance and not a strict set of rules.
“I like to do things in horizontal layers, like a cake,” she says. “For example, here the cabinet hardware [aged brass] is one layer, the plumbing fixtures [polished nickel] are the next layer, and the mirrors and sconces [unlacquered brass] are the next layer. I will also stick with the same finish in categories, such as all the plumbing fixtures or lighting fixtures. Also, I’ll use all warm or all cold finishes within one room. Polished nickel can go either way, but it has warm undertones that chrome does not.”
“I like to do things in horizontal layers, like a cake,” she says. “For example, here the cabinet hardware [aged brass] is one layer, the plumbing fixtures [polished nickel] are the next layer, and the mirrors and sconces [unlacquered brass] are the next layer. I will also stick with the same finish in categories, such as all the plumbing fixtures or lighting fixtures. Also, I’ll use all warm or all cold finishes within one room. Polished nickel can go either way, but it has warm undertones that chrome does not.”
A clever functional detail of the shower is the low wall seen on the right. Pearson sized this to make it comfortable and safe for propping up a leg when shaving in the shower.
Twelve-by-24-inch porcelain tiles with a linen-like textured finish cover the floor. This was another place where Pearson fulfilled her client’s desire for textured tiles. The designer describes the color as a light warm greige. The composition is a one-third offset running bond pattern.
Twelve-by-24-inch porcelain tiles with a linen-like textured finish cover the floor. This was another place where Pearson fulfilled her client’s desire for textured tiles. The designer describes the color as a light warm greige. The composition is a one-third offset running bond pattern.
The shower floor tiles are the 2-by-2-inch version of the bathroom floor tiles. “I try to keep floor tile consistent across a bathroom,” Pearson says. This was another way to keep the eye moving instead of stopping. The smaller size provides more grip for safety in the shower.
The shower fixtures include a regular shower head, a handheld wand on a slider and a control valve within reach of the shower door. This means the homeowner can turn on the water and wait for it to heat up without getting wet. Pearson placed the shower niche within the pony wall to keep bathing products out of sight. After all, items like that can make the eye stop and keep the room from looking as spacious and calm.
The shower fixtures include a regular shower head, a handheld wand on a slider and a control valve within reach of the shower door. This means the homeowner can turn on the water and wait for it to heat up without getting wet. Pearson placed the shower niche within the pony wall to keep bathing products out of sight. After all, items like that can make the eye stop and keep the room from looking as spacious and calm.
Finally, you’ve heard all about it, seen it on the plans and perhaps caught a glimpse of it in one of the mirrors, but you haven’t seen the linen closet in all its glory yet. One element the homeowner had admired and wanted to incorporate was an X-shaped structure within it for storing rolled-up towels.
Pearson custom-designed all the cabinetry in the room, and the style of this cabinet is cohesive with the vanities. “I had the center protrude to make it feel more like freestanding furniture,” she says. Rather than being a typical monolithic built-in, the piece has character and depth.
While this project began as a bathroom renovation, the scope expanded quickly. “It was one of those ‘Well, while you’re here … ’ situations,” Pearson says. The project grew to incorporate the entire first floor of the townhouse, including a kitchen remodel.
See more of this home
More on Houzz
Read more bathroom stories
Browse bathroom photos
Find a bathroom remodeler
Shop for your bathroom
Pearson custom-designed all the cabinetry in the room, and the style of this cabinet is cohesive with the vanities. “I had the center protrude to make it feel more like freestanding furniture,” she says. Rather than being a typical monolithic built-in, the piece has character and depth.
While this project began as a bathroom renovation, the scope expanded quickly. “It was one of those ‘Well, while you’re here … ’ situations,” Pearson says. The project grew to incorporate the entire first floor of the townhouse, including a kitchen remodel.
See more of this home
More on Houzz
Read more bathroom stories
Browse bathroom photos
Find a bathroom remodeler
Shop for your bathroom















Bathroom of the Week
Who lives here: A single woman
Location: Lake Oswego, Oregon
Size: 188 square feet (17 square meters)
Designer: Amy Pearson
Contractor: Dick Baty
The homeowner wanted a neutral palette with warm wood tones and white. The longest wall in the bathroom contains two new vanities with a lower makeup counter in the center. Three mirrors and four sconces with milk glass shades lend symmetry to the calming space.
The shower stall is to the right, and Pearson extended the same tile from the shower stall across the vanity wall. “This keeps the eye from stopping. When you eliminate places that make the eye stop, it tricks it into thinking the room is larger,” she says. The tiles are porcelain with marble-like veining and measure 13 by 36 inches. “We had an amazing tile installer,” Pearson says. “He spent a lot of time laying out the tiles before installing to make the veining patterns match up as much as possible.”
Find a local tile professional