Bathroom of the Week: Warm Wood-and-White Style for Empty Nesters
A designer expands a main bath to add a double vanity and freshens up the look with marble, wallpaper and wood details
After raising their family in their 100-year-old Minneapolis home, this empty-nest couple wanted to update their bathroom with more storage and a fresh style while preserving its historic charm.
For help, they hired designer Emily Pueringer, who incorporated a hallway linen closet to expand the bathroom by 7 square feet. That freed up room to replace the pedestal sink with a new custom white oak double vanity that, along with new white oak linen cabinets, greatly increased storage space and added warmth. Meanwhile, marble hexagonal floor tile, washable floral print wallpaper and a curvy cast-iron tub create a classic style with a modern twist.
For help, they hired designer Emily Pueringer, who incorporated a hallway linen closet to expand the bathroom by 7 square feet. That freed up room to replace the pedestal sink with a new custom white oak double vanity that, along with new white oak linen cabinets, greatly increased storage space and added warmth. Meanwhile, marble hexagonal floor tile, washable floral print wallpaper and a curvy cast-iron tub create a classic style with a modern twist.
After: Pueringer knocked the bathroom back to the studs and incorporated the hallway closet space into the floor plan, increasing the bathroom by 7 square feet, to 160 square feet. This small but significant change allowed her to add a custom white oak double vanity with three center drawers, two wide lower drawers and two deep top drawers with oversize pulls. “The pulls are big and chunky and serve as towel bars,” Pueringer says.
A washable wallpaper in a wildflower pattern lends a stylishly delicate look to the vanity area. Large-format hexagonal marble floor tiles with gray speckling and tan veining anchor the room. “It’s a fresh take on traditional hexagon tiles you would find in this kind of space,” Pueringer says.
White walls with a hint of gray (Heron Plume by Sherwin-Williams) and a white quartz countertop complement the flooring and heighten the light and airy look.
A mirrored medicine cabinet with brushed black frame sits above each sink. Pueringer painted the three wall sconces in a custom finish to match the champagne bronze faucets. A semiflush-mount light with a metal shade and warm brass finish contributes to the updated transitional style.
Ceiling light: Clarke in Warm Brass, Hinkley; sconces: Utopia by Kelly Wearstler, Visual Comfort; custom vanity: Westwind Woodworkers; flooring: Hampton Carrara hex marble in antique brushed finish, 12 by 12 inches, The Tile Shop; wallpaper: Wildflower, Magnolia
Shop for bathroom vanities
A washable wallpaper in a wildflower pattern lends a stylishly delicate look to the vanity area. Large-format hexagonal marble floor tiles with gray speckling and tan veining anchor the room. “It’s a fresh take on traditional hexagon tiles you would find in this kind of space,” Pueringer says.
White walls with a hint of gray (Heron Plume by Sherwin-Williams) and a white quartz countertop complement the flooring and heighten the light and airy look.
A mirrored medicine cabinet with brushed black frame sits above each sink. Pueringer painted the three wall sconces in a custom finish to match the champagne bronze faucets. A semiflush-mount light with a metal shade and warm brass finish contributes to the updated transitional style.
Ceiling light: Clarke in Warm Brass, Hinkley; sconces: Utopia by Kelly Wearstler, Visual Comfort; custom vanity: Westwind Woodworkers; flooring: Hampton Carrara hex marble in antique brushed finish, 12 by 12 inches, The Tile Shop; wallpaper: Wildflower, Magnolia
Shop for bathroom vanities
A new white elongated comfort-height toilet now sits in the niche next to the vanity.
Toilet: Townsend in white, American Standard
Find a bathroom designer near you
Toilet: Townsend in white, American Standard
Find a bathroom designer near you
Before: In the former bathroom, opposite the sink and toilet area, open shelves above a second radiator offered limited storage.
To the right, a half wall with a decorative column separated the main bathroom from an addition added during a previous renovation. In it sat an aging, too-small claw-foot tub across from a partially enclosed shower stall.
To the right, a half wall with a decorative column separated the main bathroom from an addition added during a previous renovation. In it sat an aging, too-small claw-foot tub across from a partially enclosed shower stall.
After: Pueringer removed the open shelves and relocated the radiator to the site of a former radiator, which she got rid of. She then created custom white oak built-in linen storage that complements the vanity and adds another dose of warmth.
Before and After: 3 Dreamy White-and-Wood Bathroom Makeovers
Before and After: 3 Dreamy White-and-Wood Bathroom Makeovers
Pueringer also removed the half wall and decorative column, creating a more open connection. A 67-inch white freestanding cast-iron tub with a pedestal base replaced the former tub, giving the husband room to stretch his legs out. “The thick rolled edge helps you to be able to sit on and grab it so you can get in and out of the tub,” Pueringer says.
A floor-mounted tub filler with hand shower features a champagne bronze finish that coordinates with other finishes in the design, including the towel bars above the tub.
Tub: Artifacts in white, 67 inches, Kohler; tub filler: Dorval, Delta Faucet
Shop for freestanding bathtubs
A floor-mounted tub filler with hand shower features a champagne bronze finish that coordinates with other finishes in the design, including the towel bars above the tub.
Tub: Artifacts in white, 67 inches, Kohler; tub filler: Dorval, Delta Faucet
Shop for freestanding bathtubs
Before: The shower stall felt dark and unwelcoming.
After: Pueringer opened up the shower entrance and added frameless glass panels that let in tons of light from a nearby window. Creamy, glossy 5-by-5-inch wall tiles and 3-by-3-inch Carrara marble hexagonal tiles on the floor enhance the bright look.
New to home remodeling? Learn the basics
New to home remodeling? Learn the basics
The shower features a multifunction shower head in a champagne bronze finish. A grab bar in coordinating finish adds safety.
Two niches lined in brass Schluter trim keep products off the shower floor. A single long and lean niche below (seen in a previous photo) can store bars of soap or be used to prop a foot while shaving one’s legs.
Before: This floor plan of the former bathroom shows the hallway linen closet (bottom left) that limited vanity space. The shower stall (top right) featured a walled-out entrance that gave it a dark feel.
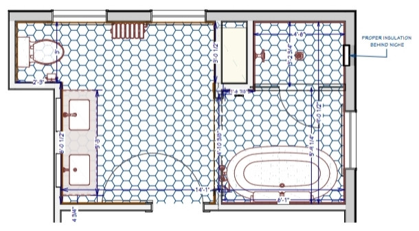
After: By incorporating the hallway linen closet space, Pueringer was able to add a double vanity (center left). Opening up the shower entrance created a light and airy feel. “This renovation just totally freshened the whole space up,” Pueringer says. “It’s very classic and timeless but also fresh.”
More on Houzz
Read more bathroom stories
Browse bathroom photos
Find a bathroom designer
Shop for your bathroom
More on Houzz
Read more bathroom stories
Browse bathroom photos
Find a bathroom designer
Shop for your bathroom

















Bathroom at a Glance
Who lives here: An empty-nest couple
Location: Minneapolis
Size: 160 square feet (15 square meters)
Design: Emily Pueringer of Emily Pueringer Design Studio
Before: The former bathroom had period charm with a pedestal sink, beadboard wainscoting and robin’s egg blue walls. But the sink offered no storage and the finishes, including faux travertine tile flooring, showed wear and tear.
A hallway linen closet to the left of the sink impeded the layout, but its square footage offered potential for increasing the size of the bathroom.