Deck of the Week: Standout Pergola and Outdoor Living Spaces
A landscape architect incorporates fire, water, shade and clean contemporary style into a family’s Atlanta yard
These Atlanta homeowners wanted a deck that would function as an outdoor dining area, lounge and entertainment space. Lead landscape architect Micah Rogers of Boyce Design and Contracting helped them create a beautiful new space that engages the senses and provides them with everything on their wish list. The list included a deck big enough for entertaining a crowd that also would have intimate spaces, the warmth of a fire table, the calming sounds of a water feature, modern integrated lighting, the use of composite materials, privacy from the neighbors and better circulation between the front and back yards.
After: “I played off the architecture of the house with the design,” Rogers says. He took cues not only from the home’s exterior but also from its interior decor. “It’s very modern with a contemporary open floor plan, and the interiors were minimalist,” he says.
The back property line runs on a diagonal and is farthest away from the house at the portion of the deck seen here. The setback requirements limited how far out Rogers could place the retaining walls that would edge the deck. He addressed these limitations by thoughtfully arranging the retaining walls in a stepped-back design. This divided the deck into three sections. The result is a large deck that has designated pockets of space for different uses and a more intimate feel. This largest portion serves as the main entertainment area and includes a dining area and fire table lounge.
After ripping up the old deck, the crew regraded the ground that had been beneath it, creating a gravel-lined drainage swale to redirect the water. The swale prevents water from pooling and mosquitos from gathering.
The back property line runs on a diagonal and is farthest away from the house at the portion of the deck seen here. The setback requirements limited how far out Rogers could place the retaining walls that would edge the deck. He addressed these limitations by thoughtfully arranging the retaining walls in a stepped-back design. This divided the deck into three sections. The result is a large deck that has designated pockets of space for different uses and a more intimate feel. This largest portion serves as the main entertainment area and includes a dining area and fire table lounge.
After ripping up the old deck, the crew regraded the ground that had been beneath it, creating a gravel-lined drainage swale to redirect the water. The swale prevents water from pooling and mosquitos from gathering.
A stunning new pergola defines the dining area. It is painted aluminum, with cedar slats set within the structural frame. The cedar slats of the overhang continue down the side, adding a beautiful architectural element to the large expanse of stucco on the back facade of the house. Party lights provide a lovely ambiance at night.
The pergola measures 16 by 14 feet. Rogers attached it to the house to provide support. This allowed him to place the support post on the left side in an unobtrusive spot, rather than at the outer corner, and creates a dramatic cantilevered look.
Steel cable rails off the side of the deck keep the views of the trees open. You can’t see it in the photo, but the cedar handrail along the top intersects with a cedar slat on the pergola’s wall in a beautiful way.
Shop for a fire pit
The pergola measures 16 by 14 feet. Rogers attached it to the house to provide support. This allowed him to place the support post on the left side in an unobtrusive spot, rather than at the outer corner, and creates a dramatic cantilevered look.
Steel cable rails off the side of the deck keep the views of the trees open. You can’t see it in the photo, but the cedar handrail along the top intersects with a cedar slat on the pergola’s wall in a beautiful way.
Shop for a fire pit
The new Trex composite decking looks like wood and runs parallel with the back of the house. The new walls are concrete, covered with a smoother stucco finish than the old walls had.
While the pergola defines the outdoor dining room, Rogers designed the new retaining walls beyond it to create a lounge nook. He anchored the lounge with a semicustom concrete fire table that has its own gas line.
A detail worth noting is the way the bench juts out beyond the retaining wall on the right. “This was a cool way to engage the space. The fire table sits outside of the retaining walls, so we pulled the bench out to line up with the outer edge of it,” Rogers says. “It also shows off how it’s cantilevered from all three sides so that you get the idea of the wood hanging in a sculptural way.” Those entering from the side yard can see the area from the opposite end of the patio, so it draws them toward it.
While the pergola defines the outdoor dining room, Rogers designed the new retaining walls beyond it to create a lounge nook. He anchored the lounge with a semicustom concrete fire table that has its own gas line.
A detail worth noting is the way the bench juts out beyond the retaining wall on the right. “This was a cool way to engage the space. The fire table sits outside of the retaining walls, so we pulled the bench out to line up with the outer edge of it,” Rogers says. “It also shows off how it’s cantilevered from all three sides so that you get the idea of the wood hanging in a sculptural way.” Those entering from the side yard can see the area from the opposite end of the patio, so it draws them toward it.
In between the retaining walls and the property line, Rogers placed a series of privacy screens in lieu of a fence. “The other house is very close, but we didn’t want a huge wall of fencing that would overwhelm the deck and make it feel claustrophobic,” he says. Instead, he designed 9-foot-wide individual panels with gaps between them. “It still feels private, but these have a stand-alone sculptural feel,” he says.
Rogers repeated the aluminum and cedar used on the pergola for a cohesive look. The aluminum frames have channels in the center that he slid the cedar slats into; he separated the horizontal slats with spacers to add to the open feeling.
The larger shrubs seen here are ‘August Beauty’ gardenias (Gardenia jasminoides ‘August Beauty’, USDA zones 7 to 10; find your zone). “These are robust and will grow into a nice monochromatic evergreen hedge,” Rogers says. They also will provide a lovely fragrance when they flower in late summer or early fall. For contrast, he planted creeping Jenny (Lysimachia nummularia, zones 3 to 9) as a brighter green ground cover. “The homeowners can decide if they want this to engage the retaining walls by letting it spill over, or keep it cleanly contained behind them,” he says.
Hire a local landscape designer
Rogers repeated the aluminum and cedar used on the pergola for a cohesive look. The aluminum frames have channels in the center that he slid the cedar slats into; he separated the horizontal slats with spacers to add to the open feeling.
The larger shrubs seen here are ‘August Beauty’ gardenias (Gardenia jasminoides ‘August Beauty’, USDA zones 7 to 10; find your zone). “These are robust and will grow into a nice monochromatic evergreen hedge,” Rogers says. They also will provide a lovely fragrance when they flower in late summer or early fall. For contrast, he planted creeping Jenny (Lysimachia nummularia, zones 3 to 9) as a brighter green ground cover. “The homeowners can decide if they want this to engage the retaining walls by letting it spill over, or keep it cleanly contained behind them,” he says.
Hire a local landscape designer
Before: The deck had awkward transitions throughout. For example, a raised tiled area off the kitchen door was unattractive and was at a different height than the rest of the deck, causing a tripping hazard.
After: Going for a clean and contemporary look meant extending the decking along this area. New recessed lights in the existing overhang illuminate the area at night, while plants breathe some life into the space.
This photo provides a glimpse of the lighting that runs around the underside of the benches. It also shows how the cantilevered bench lines up with the fire table.
Browse planters in the Houzz Shop
This photo provides a glimpse of the lighting that runs around the underside of the benches. It also shows how the cantilevered bench lines up with the fire table.
Browse planters in the Houzz Shop
In addition to the stepped-in retaining walls, Rogers broke up the deck with different levels. Seen here is the portion of the deck that is entered by people approaching it from the side yard. The sound of water cascading from a new water feature draws them around the corner to this area. This smaller area is also meant to be an intimate lounge (it was unfurnished during the photo shoot).
The lighting scheme also was important to the homeowners. Integrated lights make the steps safer at night.
The lighting scheme also was important to the homeowners. Integrated lights make the steps safer at night.
The fountain repeats the stepped motif and hugs the corner formed by the retaining walls. It is smooth concrete and has a wide spout that lets the water splash into a linear lower basin. The bottoms of both basins are lined in Mexican beach pebbles.
The sound of the fountain can be enjoyed from anywhere on the deck, creating a sense of calm. It also provides a nice view from inside the house.
The sound of the fountain can be enjoyed from anywhere on the deck, creating a sense of calm. It also provides a nice view from inside the house.
Before: The wooden stairs that led up to the deck from the yard were past their prime.
After: The new wider steps are more attractive, open and welcoming. Both sets of steps are as wide as the deck. The changes in level designate different areas of the deck — the portion in the foreground is a transitional wide path. Then the retaining wall takes a step back, widening the water feature zone of the deck. The dining area and fire table lounge area are located two more steps up from there. Planters placed along the edges punctuate the spaces with pops of color and soft textures.
Before: Along the side of the house, this area led from the parking area out front to the deck. “It was a disaster,” Rogers says. Mossy steppingstones formed the sole path through an area where grass refused to grow.
After: Rogers came up with a design for a path of large poured-in-place concrete pavers. They bring in more crisp, contemporary lines, but their irregular shapes and layout make the path more interesting. “This path is tailored to this particular space. It’s completely custom and doesn’t look like anywhere else,” he says.
Pea gravel and ‘Sky Pencil’ Japanese holly (Ilex crenata ‘Sky Pencil’, zones 5 to 8) shrubs line the path. “These will grow to about 7 to 8 feet high while staying at about 18 inches in diameter,” he says. “They are columnar, architectural shrubs that can be sheared up for a clean look,” the landscape architect says. “We wanted to create a green wall that would be at human scale and not too imposing.”
Pea gravel and ‘Sky Pencil’ Japanese holly (Ilex crenata ‘Sky Pencil’, zones 5 to 8) shrubs line the path. “These will grow to about 7 to 8 feet high while staying at about 18 inches in diameter,” he says. “They are columnar, architectural shrubs that can be sheared up for a clean look,” the landscape architect says. “We wanted to create a green wall that would be at human scale and not too imposing.”
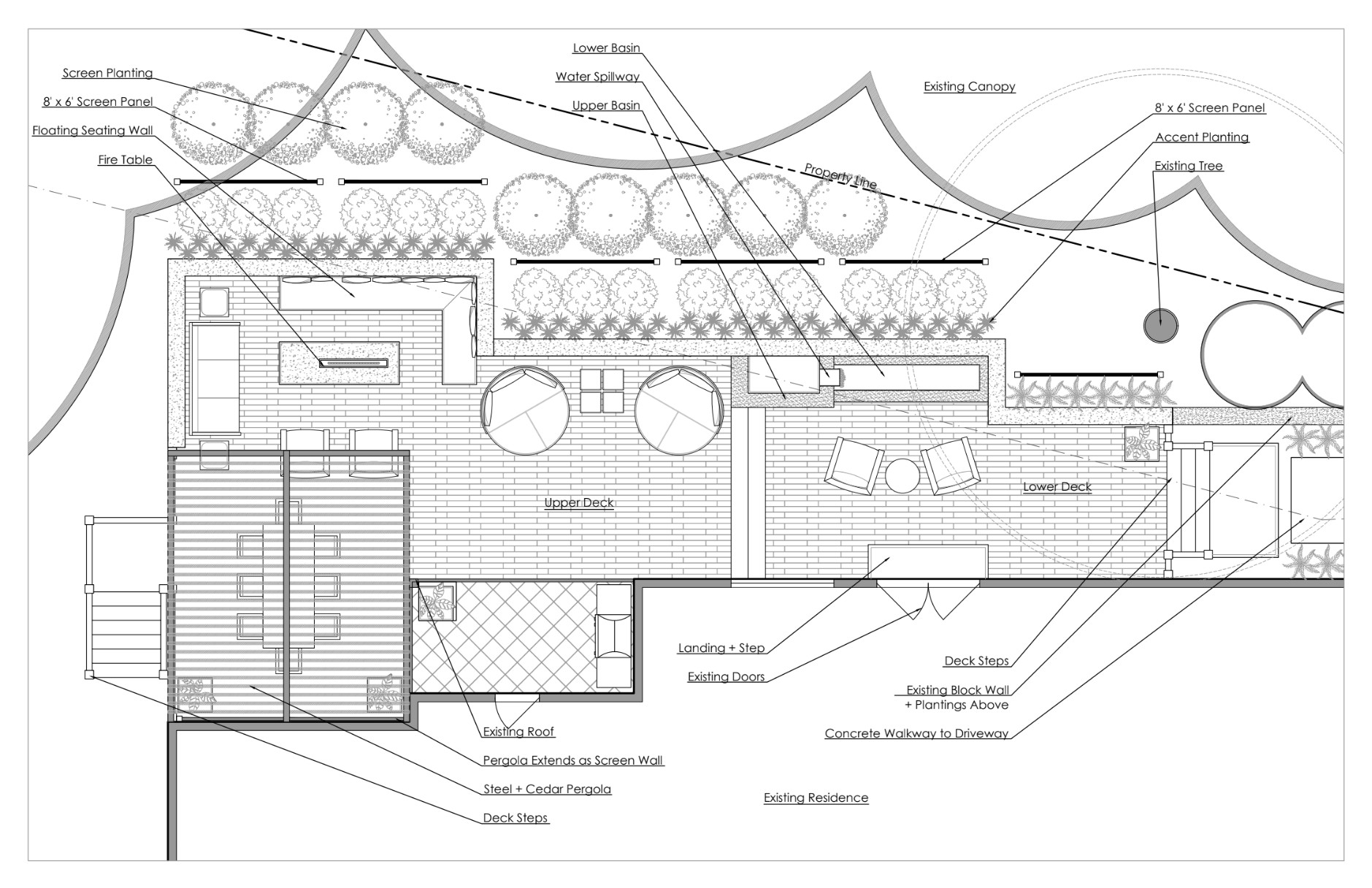
The property line runs diagonally along the the top of this plan, and the stepped arrangement of the retaining walls can be seen below it. The pergola is at the bottom left. Another detail to note is the way the cantilevered bench lines up with the fire pit table. The water feature is near the center of the plan. The steppingstones begin at the far-right side of the plan and continue down out of frame along the left side of the house.
More on Houzz
Read more stories about decks
Browse thousands of deck photos
Find a local deck and patio specialist
Shop for your outdoor spaces
More on Houzz
Read more stories about decks
Browse thousands of deck photos
Find a local deck and patio specialist
Shop for your outdoor spaces



















Deck at a Glance
Who lives here: A couple with two children
Location: Atlanta
Size: 950 square feet (88 square meters)
Landscape architect: Micah Rogers of Boyce Design and Contracting
Before: The existing deck and the surrounding retaining walls were low-grade and in a state of disrepair. The walls were covered in stucco that hadn’t held up very well. “In fact, when we removed them, we discovered that they were hollow inside and the wood framework had rotted — it would have collapsed in the near future,” Rogers says.
One of the challenges of the project was that the property line was quite close to the deck, and the response from the original builder to the required setback restrictions had been to cut the deck in and out in awkward ways. This didn’t take advantage of all the usable space, and gave the deck a bad flow.
Another big issue was that the deck was about 2 feet above the ground, and water that pooled beneath it had formed a breeding ground for mosquitos.
Find a local design-build firm on Houzz