Family-Friendly Remodel Opens Up a Home for Easy Living
A designer transforms a chopped-up first floor into a bright, comfortable space for a young family
This Charlotte, North Carolina, couple loved their home and their neighborhood but found that their first-floor plan was no longer working well for their growing family.
“They have two young boys and a dog and they wanted one big space where they could all hang out as a family,” says interior designer Jena Bula. “They also wanted to really live in this space, so we made it family-friendly by using highly durable fabrics, eliminating hard corners and providing ample storage.”
The project involved a full remodel of the kitchen, family room, sun porch and a few adjacent areas. Using Houzz Pro, Bula combined the existing family room and sun porch, added a new fireplace and built-ins, opened a wall between the new family room and kitchen and reworked the spaces connecting the kitchen and garage. The result is a series of rooms that are highly functional and family-friendly yet also refined.
“They have two young boys and a dog and they wanted one big space where they could all hang out as a family,” says interior designer Jena Bula. “They also wanted to really live in this space, so we made it family-friendly by using highly durable fabrics, eliminating hard corners and providing ample storage.”
The project involved a full remodel of the kitchen, family room, sun porch and a few adjacent areas. Using Houzz Pro, Bula combined the existing family room and sun porch, added a new fireplace and built-ins, opened a wall between the new family room and kitchen and reworked the spaces connecting the kitchen and garage. The result is a series of rooms that are highly functional and family-friendly yet also refined.
After: Bula combined the sun porch and family room into one large family space measuring 26 by 22 feet. The new room enjoys abundant natural light and views of the backyard through the wall of glass doors.
The before-and-after photos are tricky to compare, even though they were taken from nearly the same angle. That’s because the wall, the old fireplace and the change in level between the two rooms have all been removed. Bula installed a new fireplace on the wall perpendicular to where the old one had been. The new fireplace features a honed marble surround and hearth that give it a timeless, elegant look.
Above it, a Frame TV displays an image from local artist Susan Richards, who offers digitized versions of her work for this purpose. The colors and textures in the room echo those in the artwork, creating a cohesive, serene palette.
Wall, trim, ceiling and cabinet paint: Natural Cream, Benjamin Moore
The before-and-after photos are tricky to compare, even though they were taken from nearly the same angle. That’s because the wall, the old fireplace and the change in level between the two rooms have all been removed. Bula installed a new fireplace on the wall perpendicular to where the old one had been. The new fireplace features a honed marble surround and hearth that give it a timeless, elegant look.
Above it, a Frame TV displays an image from local artist Susan Richards, who offers digitized versions of her work for this purpose. The colors and textures in the room echo those in the artwork, creating a cohesive, serene palette.
Wall, trim, ceiling and cabinet paint: Natural Cream, Benjamin Moore
Mood board for the family room created with Houzz Pro software
Bula used Houzz Pro Mood Board software to communicate the look and feel of the rooms with her clients. In this case it was relaxed yet refined transitional style, with a natural palette inspired by the coast. Some selections evolved over the course of the project, but the mood board gave her clients a clear sense of the style from the start.
See why you should hire a professional who uses Houzz Pro software
Bula used Houzz Pro Mood Board software to communicate the look and feel of the rooms with her clients. In this case it was relaxed yet refined transitional style, with a natural palette inspired by the coast. Some selections evolved over the course of the project, but the mood board gave her clients a clear sense of the style from the start.
See why you should hire a professional who uses Houzz Pro software
To make sure the family had a place for everything, Bula designed a wall of built-ins combining closed cabinetry and open shelving for a balance of concealed and display storage. The cabinets hold games, toys, photo albums and media equipment.
Bula styled the shelves with baskets to corral smaller items and add texture. “We always shop for baskets to fit the built-ins we’ve designed,” she says.
Bula styled the shelves with baskets to corral smaller items and add texture. “We always shop for baskets to fit the built-ins we’ve designed,” she says.
Rather than opt for the typical symmetrical built-ins flanking the fireplace, Bula considered how each wall would relate to its surroundings and how the eye would travel through the room.
“Built-ins can look heavy, and sometimes with built-ins there’s just stuff everywhere you look,” she says. “We wanted to do something different here.”
She designed a custom built-in bench with storage drawers beneath it for throw blankets and toys.
“Built-ins can look heavy, and sometimes with built-ins there’s just stuff everywhere you look,” she says. “We wanted to do something different here.”
She designed a custom built-in bench with storage drawers beneath it for throw blankets and toys.
To balance the fireplace wall, Bula created a family gallery wall above the bench using oversize 25-by-25-inch frames with large mats. The grid arrangement plays off the lines of the built-in shelving on the opposite wall. “It’s not symmetrical but it feels even to the eye,” Bula says.
A custom cushion and throw pillows turn the bench into a soft, comfortable seating area. The drawers below have slow-glide hardware to keep little fingers safe.
A custom cushion and throw pillows turn the bench into a soft, comfortable seating area. The drawers below have slow-glide hardware to keep little fingers safe.
To keep the space safe for young kids, Bula recommended side tables with rounded edges and an upholstered ottoman instead of a coffee table.
She preserved the home’s oak floors, weaving in new pieces where needed, and had them stained a midlevel chocolate brown. “The rooms have so much light color that the flooring provided contrast and warmth,” she says. “However, I didn’t want to go too dark with the stain because that would show dog fur and dust more.”
She preserved the home’s oak floors, weaving in new pieces where needed, and had them stained a midlevel chocolate brown. “The rooms have so much light color that the flooring provided contrast and warmth,” she says. “However, I didn’t want to go too dark with the stain because that would show dog fur and dust more.”
A sectional sofa and two velvet swivel chairs provide plenty of seating for movie nights. “All the fabrics are very durable with a high double-rub count and are stain-resistant,” Bula says. “The rug is a low-pile wool that is naturally stain-resistant and easy to clean. It will stand up to dog hair better than a rug with a thicker pile would.”
To keep the room feeling light and airy, Bula kept the wall opposite the fireplace simple. The lack of built-ins or artwork was intentional. Picture-frame millwork adds subtle interest, while gold sconces with a leaf motif and blue linen shades bring color and soft, layered light.
To keep the room feeling light and airy, Bula kept the wall opposite the fireplace simple. The lack of built-ins or artwork was intentional. Picture-frame millwork adds subtle interest, while gold sconces with a leaf motif and blue linen shades bring color and soft, layered light.
Behind the swivel chairs, Bula placed a textured wood console table topped with a large mirror. “We needed something big to fill this wall but we didn’t want there to be too much art in the room,” she says. Ceramic lamps in a soft gray-green add color and mood lighting to this end of the space.
Before: The existing kitchen measured 26 by 13 feet, with an opening at the back left that led to the family room. While the footprint remained the same, Bula took the space down to the studs and reimagined the layout.
An entry to the garage was located just past the wall ovens on the left. Bula relocated this entry to improve flow and to create a small drop zone for the family.
An entry to the garage was located just past the wall ovens on the left. Bula relocated this entry to improve flow and to create a small drop zone for the family.
After: Working with Pfahl Architects, Bula opened the wall around the existing doorway and added a structural header for support. (See the before-and-after floor plans at the end of this article.)
Mood board for the kitchen created with Houzz Pro software
While the homeowners wanted a light kitchen, they did not want it to be white. Bula’s Houzz mood board included soft whites but focused more on creams, very light grays, mixed metals and natural textures such as leather and raffia.
“We used Benjamin Moore’s Simply White on the cabinets, which is a warm greige color,” she says. “The cabinets are paint-grade and wipeable.” Her clients opted for every item she presented on this mood board.
While the homeowners wanted a light kitchen, they did not want it to be white. Bula’s Houzz mood board included soft whites but focused more on creams, very light grays, mixed metals and natural textures such as leather and raffia.
“We used Benjamin Moore’s Simply White on the cabinets, which is a warm greige color,” she says. “The cabinets are paint-grade and wipeable.” Her clients opted for every item she presented on this mood board.
Before: The existing family room included a wet bar, with a small opening to the kitchen to its left.
After: Removing the wall between the kitchen and family room created a more open, connected feel. A new wet bar now sits to the right of its original location, serving both spaces as a convenient transition point.
“We opened up the kitchen, but it’s not a true open-concept floor plan,” Bula says. “It flows nicely and people can talk to each other and see each other from room to room, but it’s not all the way open. It’s nice to have it somewhat open, but it’s also nice to feel like your guests can’t see the dirty dishes in your sink from where they’re sitting in the family room.”
Once the clients approved the warm greige wall color, Bula selected a porcelain tile backsplash with subtle color variation in shades of white, greige and cream. The countertops are a warm white quartz.
“Quartz makes the most sense when you have little kids,” Bula says. “These are people who really like to cook too, and quartz won’t stain or etch the way natural stone would. This quartz has a light veining pattern that makes it look like natural stone.“
“Quartz makes the most sense when you have little kids,” Bula says. “These are people who really like to cook too, and quartz won’t stain or etch the way natural stone would. This quartz has a light veining pattern that makes it look like natural stone.“
The linen pendant shades add a crisp touch of white, while their gold details bring warmth and dimension. Woven leather counter stools introduce texture and contrast within the material palette.
New to home remodeling? Learn the basics
New to home remodeling? Learn the basics
Before: The previous kitchen had a breakfast nook in a lovely bay window.
After: New furnishings make the eat-in area more inviting and family-friendly. “The chairs are painted a really pretty sage color and we purposely did not use upholstery,” Bula says. “This makes them easy to wipe up.”
A raffia-wrapped lantern fixture keeps the views open while adding texture overhead. Linen valances trimmed in sage coordinate with the dining chairs and complete the tailored look.
A raffia-wrapped lantern fixture keeps the views open while adding texture overhead. Linen valances trimmed in sage coordinate with the dining chairs and complete the tailored look.
Before: The purple lines on the floor plan indicate the scope of work. Toward the top, the old fireplace wall divided the family room from the sun porch. The small opening to the kitchen is marked beneath the wet bar.
The spaces above the kitchen — formerly unfinished storage and workshop areas off the garage — became a new entry to the kitchen from the garage and a walk-in pantry.
The spaces above the kitchen — formerly unfinished storage and workshop areas off the garage — became a new entry to the kitchen from the garage and a walk-in pantry.
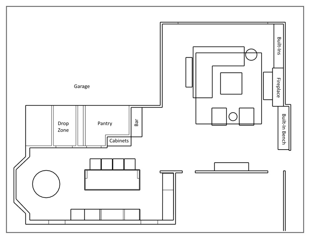
After: The breakfast nook sits on the left, with the expanded family room at the top right and the new fireplace on the right wall.
Additional changes include a new drop zone off the garage with cabinetry and hooks for shoes and bags, and the walk-in pantry beside it.
“I’m extra proud of this project because the aesthetic aligned perfectly with my firm’s signature style and my personal style,” Bula says. “The color palette includes coastal blues and greens paired with warm neutrals. The rooms are highly functional and livable but also refined, and nothing is too sterile.”
More on Houzz
Read more stories
Browse photos for ideas
Find home professionals
Additional changes include a new drop zone off the garage with cabinetry and hooks for shoes and bags, and the walk-in pantry beside it.
“I’m extra proud of this project because the aesthetic aligned perfectly with my firm’s signature style and my personal style,” Bula says. “The color palette includes coastal blues and greens paired with warm neutrals. The rooms are highly functional and livable but also refined, and nothing is too sterile.”
More on Houzz
Read more stories
Browse photos for ideas
Find home professionals
























Living Room and Kitchen at a Glance
Who lives here: A couple with two young boys and a dog
Location: Charlotte, North Carolina
Size: Living room: 572 square feet (53 square meters); kitchen: 338 square feet (31 square meters)
Designers: Delphinium Design (interior design); Pfahl Architects (architecture)
Builder: BMH
Before: The family room had a fireplace flanked by glass doors that led to the sun porch. The porch was a step down from the family room and had been used as a playroom. But after creating a new playroom upstairs, the homeowners no longer needed this one.
Find an interior designer on Houzz