Houzz Tour: Barn-Style Guesthouse in the New England Countryside
In Vermont, a timber-frame guesthouse modeled on a bank barn brims with traditional craftsmanship and timeless charm
A big red barn sitting behind a small white farmhouse is a common sight in New England. But along one stretch of dirt road just outside Woodstock, Vermont, one such barn is not like the others. It’s actually a newly built timber-frame guesthouse with five bedrooms, a chef’s kitchen, ample entertaining space and inspiring design elements galore. Here’s a peek inside.
Unlike modern stick-framed buildings, the structural load of timber-framed buildings (including many historic New England barns and homes) is supported by heavy wooden posts and beams, allowing for wide-open spaces without the need for load-bearing interior walls. To realize their vision of a timber frame for this guesthouse, the Sargents collaborated with timber-frame specialists Bensonwood and Vermont-based general contractor Housewright Construction.
Housewright broke ground and prepared the infrastructure and foundation for the installation of the building’s shell. Next, Bensonwood quickly installed the timber frame and enclosed it in the company’s proprietary structural insulated (SIP) panels — a hybrid approach that works especially well in areas with short construction windows. Housewright then worked closely with the Sargents to complete the build. The result of their combined vision and teamwork is a strong, energy-efficient building with large, open rooms and beautiful structural exposed beams.
You can see the dark Douglas fir timber frame encircling this well-equipped kitchen, which is on the home’s first floor. (The lighter-colored beams are joists that support the floor above.) Here, the ceilings drop from 10 feet in the basement to a little over 9 feet, leaving ample height for the custom hammered and riveted rolled-steel hood built by Montpelier-based Flywheel Industrial Arts.
Paint: Black Forest Green (island base), diluted wash of Palace White (poplar-paneled walls) and Mountain Peak White (ceiling), all Benjamin Moore
New to home remodeling? Learn the basics
Housewright broke ground and prepared the infrastructure and foundation for the installation of the building’s shell. Next, Bensonwood quickly installed the timber frame and enclosed it in the company’s proprietary structural insulated (SIP) panels — a hybrid approach that works especially well in areas with short construction windows. Housewright then worked closely with the Sargents to complete the build. The result of their combined vision and teamwork is a strong, energy-efficient building with large, open rooms and beautiful structural exposed beams.
You can see the dark Douglas fir timber frame encircling this well-equipped kitchen, which is on the home’s first floor. (The lighter-colored beams are joists that support the floor above.) Here, the ceilings drop from 10 feet in the basement to a little over 9 feet, leaving ample height for the custom hammered and riveted rolled-steel hood built by Montpelier-based Flywheel Industrial Arts.
Paint: Black Forest Green (island base), diluted wash of Palace White (poplar-paneled walls) and Mountain Peak White (ceiling), all Benjamin Moore
New to home remodeling? Learn the basics
The hood vents a stove set into the island, which has a dark green base and a reclaimed-chestnut countertop. The floors here and throughout the house are reclaimed hemlock from Vermont Plank Flooring. The whitewashed poplar paneling on the walls also continues throughout much of the home.
“I wanted [this house] to be ‘of its place,’” Ann says. “We worked with slate and Imperial Danby, which are two local, indigenous materials, for countertops. The woods we used are all grown in the woods around this building … and the blacksmithing is something that you would [traditionally] find in a barn or dwelling in New England.”
Against the sink wall, two refrigerators with bottom freezers flank a bank of light-colored lower cabinets and a wide window. The Vermont slate perimeter countertop shares undertones with the deep blue interior doors, including the pantry’s half Dutch door, which was added to secure pets.
Pendant lights: Visual Comfort; interior door paint: Tempe Star, Sherwin-Williams
“I wanted [this house] to be ‘of its place,’” Ann says. “We worked with slate and Imperial Danby, which are two local, indigenous materials, for countertops. The woods we used are all grown in the woods around this building … and the blacksmithing is something that you would [traditionally] find in a barn or dwelling in New England.”
Against the sink wall, two refrigerators with bottom freezers flank a bank of light-colored lower cabinets and a wide window. The Vermont slate perimeter countertop shares undertones with the deep blue interior doors, including the pantry’s half Dutch door, which was added to secure pets.
Pendant lights: Visual Comfort; interior door paint: Tempe Star, Sherwin-Williams
This small powder room, which has wood-paneled walls, is just behind the pantry.
Zoom in to see the simple but genius window treatments, which were designed by Ann. Part shutter and part shade, they have fabric sleeves stretched taut over iron frames made by a local ironsmith. Keep an eye out for them elsewhere in the house.
Zoom in to see the simple but genius window treatments, which were designed by Ann. Part shutter and part shade, they have fabric sleeves stretched taut over iron frames made by a local ironsmith. Keep an eye out for them elsewhere in the house.
The wood paneling opposite the toilet and sink features a subtle mural by Vermont artist Elisabeth Cadle, whose decorative painting graces walls and furniture pieces throughout the house. The tranquil scene was inspired by a pond on the property that’s frequented by great blue herons.
Everything You Should Know About Barn Homes
Everything You Should Know About Barn Homes
Beyond the powder room is a primary suite with a walk-in closet and three-quarter bath. The four-poster bed was custom-made, based on an antique design, by Leonards New England in Seekonk, Massachusetts. Cadle painted the folk-art-style faux graining — Ann describes it as “particularly lyrical” — on the antique trunk at the foot of the bed.
Instead of wood wall paneling, these walls have a plaster finish that’s tinted to match the poplar wall boards. The ceiling is finished with V-groove wood paneling. The draperies here (made from Lisa Fine fabric) and elsewhere in the home are custom.
Instead of wood wall paneling, these walls have a plaster finish that’s tinted to match the poplar wall boards. The ceiling is finished with V-groove wood paneling. The draperies here (made from Lisa Fine fabric) and elsewhere in the home are custom.
The primary bathroom’s bright blue vanity and bench have inset herringbone doors. The vanity countertop is Imperial Danby marble. You can see the shower tile, which is a similar shade of blue to the cabinet paint, reflected in the mirror.
“I like the tile to have ‘a touch of the hand,’ so it’s all handmade,” Ann says.
Browse a curated selection of bathroom vanities
“I like the tile to have ‘a touch of the hand,’ so it’s all handmade,” Ann says.
Browse a curated selection of bathroom vanities
The double-height dining room with its steel-framed window wall sits beyond a nearly 8-foot opening directly across from the kitchen sink. Motorized 18-foot-tall custom draperies stack against the wall, a pair of sideboards house wine fridges and an antique-inspired custom-made rug anchors the room.
The owners wanted the home to feel comfortable for a couple but also be able to accommodate a crowd, especially for Thanksgiving, which is their biggest holiday here. So Ann designed an extendable chestnut dining table with detachable leaves. When fully expanded, the table stretches through a large opening into the adjacent living room, making space for everyone.
A chandelier made by Beacon Custom Lighting illuminates the room. The multisized “bubbles” were handblown in Poland, and the cuffs securing them conceal dimmable LEDs.
The painting on the back wall is by Anne Sargent Walker, the sister of architectural designer (and Ann’s husband) David Sargent. To the painting’s left is a door to an elevator that serves this floor and the basement. Along with the first-floor primary suite, it makes the home accessible to those with limited mobility — one of the owners’ priorities.
How to Choose the Right Dining Table
The owners wanted the home to feel comfortable for a couple but also be able to accommodate a crowd, especially for Thanksgiving, which is their biggest holiday here. So Ann designed an extendable chestnut dining table with detachable leaves. When fully expanded, the table stretches through a large opening into the adjacent living room, making space for everyone.
A chandelier made by Beacon Custom Lighting illuminates the room. The multisized “bubbles” were handblown in Poland, and the cuffs securing them conceal dimmable LEDs.
The painting on the back wall is by Anne Sargent Walker, the sister of architectural designer (and Ann’s husband) David Sargent. To the painting’s left is a door to an elevator that serves this floor and the basement. Along with the first-floor primary suite, it makes the home accessible to those with limited mobility — one of the owners’ priorities.
How to Choose the Right Dining Table
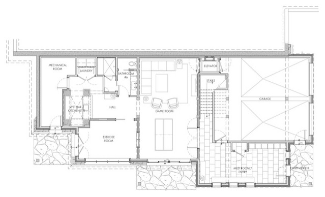
The living room spans the full length of the kitchen and dining room, with wide openings between the spaces that allow for easy flow. The opening to the dining room is at the top right of this photo. (See floor plan at bottom.) Ann filled the living room with a combination of antiques and contemporary furnishings, including handmade pottery lamps by Charlie West. The floor is covered with a traditional New England hooked rug that she had made for the space.
On the back wall, a floor-to-ceiling fieldstone fireplace echoes the rocky landscape visible through the window.
Shop for area rugs
On the back wall, a floor-to-ceiling fieldstone fireplace echoes the rocky landscape visible through the window.
Shop for area rugs
In the basement is one of the home’s most unexpected and fun elements — and the first thing the Sargents designed. It’s a vaulted stone-and-brick structure that supports that massive fireplace above it and also serves as a kitchenette/bar for the adjacent game room, complete with a 36-inch Sub-Zero refrigerator, a dishwasher and a sink. Ann got the idea from a structure in one of her own homes.
“I lived in a 1739 house that had a big central chimney, and when you went to the basement it was in an arch like this,” she says. “The difference is you would have to be 5 foot 1 to serve a drink in it, but the idea was there!”
25 Awesome Home Bars
“I lived in a 1739 house that had a big central chimney, and when you went to the basement it was in an arch like this,” she says. “The difference is you would have to be 5 foot 1 to serve a drink in it, but the idea was there!”
25 Awesome Home Bars
Ann may have had the idea for the structure, but she credits Housewright for making it work. “It came out exactly the way we wanted,” she says. “The way it was built in was really executed beautifully, and they have the patience and the subcontractors to get it done. I’m always thrilled when we get to work with [Housewright].”
The large canvas mural peeking out on the left is a Vermont landscape by artist Susan Harter. It originally covered the walls of the clients’ former dining room in Massachusetts. When they sold the home, they removed and saved it with the hope that they could eventually find a place to reinstall it. This proved to be a perfect spot.
The large canvas mural peeking out on the left is a Vermont landscape by artist Susan Harter. It originally covered the walls of the clients’ former dining room in Massachusetts. When they sold the home, they removed and saved it with the hope that they could eventually find a place to reinstall it. This proved to be a perfect spot.
The basement game room was difficult to photograph well, Ann says. But here’s a corner of the space, which features an antique chest and a Thomas O’Brien wrought-iron-and-wicker spindle-back chair from Century Furniture. The transom window allows light to pass into the exercise room on the other side of the wall.
30 Fun and Creative Ideas to Elevate Your Basement
30 Fun and Creative Ideas to Elevate Your Basement
The back wall of the entire basement is stone, which you can see behind the sliding door to the water closet inside the basement bathroom. The bathroom is equipped with a steam shower, which is a nice accompaniment to the exercise room.
Two stories up from the basement, at the top of a steel-and-wood staircase, a balcony overlooks the dining room. The stairwell wallhanging is a vintage African indigo mudcloth.
This detail shot captures both the beauty of the reclaimed-hemlock flooring and the level of detail and craftsmanship that went into building the staircase.
Your Guide to a Smooth-Running Construction Project
Your Guide to a Smooth-Running Construction Project
This antique secretary sits on the balcony, between the bedrooms. A copper rooster from a weathervane sits on top. The desk was originally pine, but Ann was set on red, and she could neither find nor have made a piece quite as special. “The guy who painted it was very upset with me, but I was desperate!” she says.
On one side of the balcony are two guest suites with custom beds (also from Leonards), exposed-beam ceilings and tinted plaster walls. Between the balcony and the sleeping areas are private dressing rooms and en suite bathrooms, which are separated from the sleeping areas by shutter-style doors.
The design was driven by both aesthetics and practicality. “Maybe you got up early to go for a run. Close the doors, get dressed in your little dressing area, and use the bathroom and leave [without] disturbing the sleeping person,” Ann says.
The design was driven by both aesthetics and practicality. “Maybe you got up early to go for a run. Close the doors, get dressed in your little dressing area, and use the bathroom and leave [without] disturbing the sleeping person,” Ann says.
Each guest suite also has a pair of French doors leading to a private balcony. As in the rest of the house, the rooms are filled with a mix of custom and antique furnishings and outfitted with colorful patterned textiles that pop against the warm neutral backdrop.
The soft, stretchy throws on the end of the beds were made by Alicia Adams Alpaca in New York’s Hudson Valley.
The soft, stretchy throws on the end of the beds were made by Alicia Adams Alpaca in New York’s Hudson Valley.
A detail from one of the guest bathrooms offers a closer look at Ann’s unique window treatments, made with Lisa Fine fabric. Note the small bump in the frame that keeps the fabric from slipping off.
Elisabeth Cadle hand-stenciled the pattern on the wood paneling next to the window.
Elisabeth Cadle hand-stenciled the pattern on the wood paneling next to the window.
Two additional bedrooms are on the other side of the balcony, including this one. An antique chair sits in one corner.
10 Essentials for a Gracious Guest Room
10 Essentials for a Gracious Guest Room
Next to it, a bunkroom has a daybed with a trundle underneath, as well as two single beds designed to become a king when pushed together.
The third bedroom and the bunkroom share this bathroom, which has a shower-tub combination.
This second-floor laundry room, also off the balcony, has side-by-side front-loaders, a sink and a drying rack. (Another washer and dryer are in the basement.) The pattern on the window coverings picks up the muted, earthy green paint on the walls and built-in shelves.
Paint: Artichoke, Sherwin-Williams
Paint: Artichoke, Sherwin-Williams































Who lives here: This is the vacation home of a couple with three adult children
Location: Near Woodstock, Vermont
Size: Five bedrooms, six bathrooms
Designers: Ann Shriver Sargent (interior design), David Sargent (architectural design), Sargent Design
Timber frame: Bensonwood
Builder: Housewright Construction
The original home on the more than 100-acre property is a cape-style farmhouse built in 1823. Its longtime owners — whose primary residence is in Massachusetts — hired David and Ann Shriver Sargent, the husband-and-wife team behind interior and architectural design firm Sargent Design, to build a guesthouse when the farmhouse started to feel too small for their growing family and friends.
The farmhouse is situated close to the road, at the bottom of a hill. To accommodate the property’s slope while staying true to the local architecture, the Sargents proposed modeling the guest quarters on a traditional timber-framed banked barn — a style of barn that’s built into a hillside, with “ground-level” entrances on two separate floors. The couple gave a thumbs up, then largely handed over the reins.
This mudroom entrance is next to the garage on the lowest level, which is essentially a walkout basement. Ann Sargent, who handled all of the interior design, placed antique rugs atop the heated slate floor and plenty of hooks on the wall to catch jackets as visitors come in from the cold. All of the home’s exterior doors, including this one, are made of reclaimed chestnut and have custom strap hinges and doorknob escutcheon (back) plates made by Vermont Country Iron.
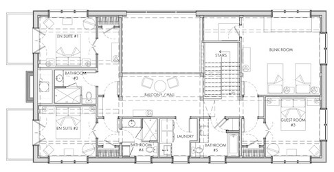
Scroll to the bottom to see the floor plans for all three levels.
Find an interior designer on Houzz