Houzz Tour: Color and Character in a Historic Townhouse
A design pro helps a couple remodel their interior spaces in an upbeat style that honors the 1874 building’s history
When a couple bought a townhouse in Cambridge, Massachusetts, they were attracted to its 19th-century history, funky details and Jenga-like floor plan. The main level contained the primary living spaces and three small lofts. A lower level had a secondary bedroom. After living there a while, the couple decided that the main level’s kitchen was perhaps too funky and that its primary bedroom plan left a lot to be desired. They asked architect-in-training Ian Masters to update the kitchen, rework the primary suite and refresh the rest of the interior. Masters came up with a plan that was modern but paid homage to the building’s rich history.
Inside the front door, the entry was likely part of a storefront at one time. A previous owner added the two small lofts and staircases, each above cabinets and coat closets. The owners use the spaces as side-by-side offices with a shared table between. Masters suggested highlighting the area with two shades of red: Roulette on the cabinets and Sugar Beet on the walls, both by Behr.
“The clients had a vision and were not afraid to be eccentric,” Masters says. “In fact, they leaned into it, as long as it was functional.”
“The clients had a vision and were not afraid to be eccentric,” Masters says. “In fact, they leaned into it, as long as it was functional.”
Just beyond the entry sits the dining room and kitchen. Masters kept the original posts and beams framing the living room exposed, lending the space a raw edge. The hardwood flooring also is original to the interior.
“This townhouse is a sensory experience waiting to be discovered,” Masters says. “The appeal is that you have to travel through it to find those experiences — they’re not all visible at once.”
Shop for furniture
“This townhouse is a sensory experience waiting to be discovered,” Masters says. “The appeal is that you have to travel through it to find those experiences — they’re not all visible at once.”
Shop for furniture
A leather sectional and a crystal chandelier are paired up in the living room. Masters suggested adding a spark of bright blue to the stairs that lead to another loft, which the owners use for lounging and watching TV. The volume below the stairs encloses a full bathroom, the only one on the main level prior to the renovation.
Masters had the dining room wall and the door to the entry painted in Benjamin Moore’s Newburyport Blue to echo the hue of the adjacent kitchen. Clerestory windows above the door bring in daylight from the storefront entry. A mix of chair styles adds a bohemian touch to the dining table.
Need a pro for your general contracting project?
Let Houzz find the best pros for you
Let Houzz find the best pros for you
Before: The couple felt the former kitchen, elevated a few steps above the dining room, was dated and did not make full use of the space. The voids under the floor were used for storage, and the potbellied stove had stopped functioning years before.
After: Masters stripped the kitchen to the studs and extended it toward the dining room to add more usable space. Custom cabinetry painted a deep blue, concrete countertops and new appliances give the space a fresh look that’s not at odds with the interior’s historic charm.
Masters replaced the potbellied stove with a small gas fireplace.
Kitchen cabinetry: Mobi Cabinets
Masters replaced the potbellied stove with a small gas fireplace.
Kitchen cabinetry: Mobi Cabinets
Wood-and-metal bar stools can be swung out of the way if someone wants to stand by the peninsula. Masters replaced the flooring with honey-tone hardwood that matches the flooring in the rest of the home. He outfitted the voids beneath the floor with storage drawers designed to hold food and water for the owners’ cat and dog.
Pros Share 6 Must-Have Kitchen Design Features
Pros Share 6 Must-Have Kitchen Design Features
New windows above the apron-front sink bring more daylight into the kitchen. Brass accents on the ILVE range echo the lights and plumbing fixtures. The cabinetry on the right serves as a pantry. For the backsplash, Masters suggested antiqued-mirror tiles interspersed with brass spacers for a touch of low-key sparkle.
Before: A secondary living room between the kitchen and the primary bedroom was an awkward, unusable space, and anchored at the far end by a powder room. Master’s task was to rework this end of the townhouse into a functional primary suite.
After: Masters turned the secondary living room into a dressing room with closet organizers and a midcentury-style sofa. Part of the room’s square footage was used to expand the original powder room into a full primary bathroom.
“We salvaged most of the original architectural details inside the house when we were doing the renovation,” Masters says. “We repurposed things like ceiling medallions and crown molding.”
“We salvaged most of the original architectural details inside the house when we were doing the renovation,” Masters says. “We repurposed things like ceiling medallions and crown molding.”
In the new dressing room, a wallcovering mural of a Louisiana blue heron painting by John James Audubon adds a bold, organic touch to the room and picks up blue accents in other parts of the house. Benjamin Moore’s Dragonfly on the walls provides a deep green background for the space and frames the entry to the new primary bathroom.
Before: The former primary bedroom featured a small closet with a mirrored door and a door that led to a neighbor’s townhouse, blocked by the armoire.
After: Masters converted the old bedroom closet seen in the previous photo into a niche with shelving, and sealed the doorway to the neighbor’s townhouse to make room for additional shelving. The owners kept the original potbellied stove from the kitchen as a sculptural piece at the foot of the bed.
Before: A powder room off the old secondary living room served the primary bedroom. To shower, the owners previously had to cross the whole main floor to use the full bathroom under the living room’s loft.
After: Masters expanded the former powder room to create a full en suite bath.
Two freestanding Signature Hardware vanities with soapstone countertops are connected by a piece of custom millwork that provides storage and electrical outlets. Dual brass-frame vanity mirrors hang from the window surround. A translucent film applied to the lower half of the window provides privacy.
New to home remodeling? Click here to learn the basics
Two freestanding Signature Hardware vanities with soapstone countertops are connected by a piece of custom millwork that provides storage and electrical outlets. Dual brass-frame vanity mirrors hang from the window surround. A translucent film applied to the lower half of the window provides privacy.
New to home remodeling? Click here to learn the basics
The expanded bathroom has a freestanding soaking tub with polished-brass feet. An antiqued-mirror tile wall and candle-holding chandelier add glamour.
A walk-in shower, with dual shower heads, features more of the antiqued-mirror tiles. Wood-look tile was a practical choice for the bathroom’s flooring.
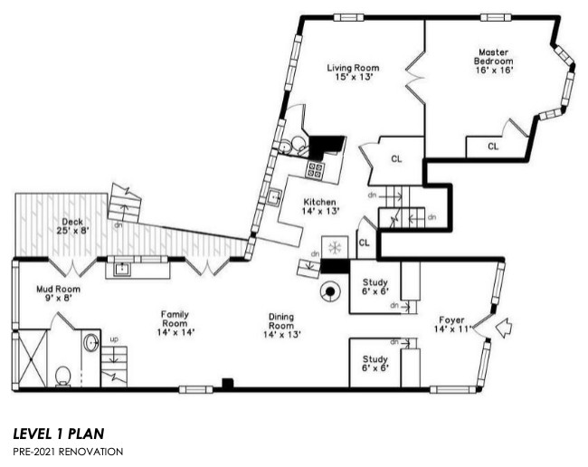
After: The current floor plan reveals the extended kitchen and rejiggered primary suite configurations. The new bathroom (top left) and dressing room (top center) occupy space that was once a secondary living area.
More on Houzz
Tour more homes
Hire a local design pro
Shop for your home
More on Houzz
Tour more homes
Hire a local design pro
Shop for your home

























House at a Glance
Who lives here: A couple and their cat and dog
Location: Cambridge, Massachusetts
Size: 2,300 square feet (214 square meters); two bedrooms, three bathrooms
Designer: Ian Masters of SKA
Builder: Fresh Start Contracting
Constructed in 1874 and located near Harvard Square, the building has housed everything from a grocery store and a bakery to a laundry and a Chinese restaurant. It even survived arson in 1876. In the 1980s, it was converted into three townhomes. More recently, the exterior was painted a distinctive robin’s egg blue.
“This building has a sense of cumulative history with all the different owners and uses,” Masters says. “Anything we did to the interior had to transcend time but add another layer and another story.”
Find a local architect on Houzz