Houzz Tour: Loads of Creativity in a Little Russian Townhouse
The architects’ innovative handiwork includes an under-the-stairs fridge, a pullout coffee table and a bedside faucet
This townhouse came without wiring, plumbing or furnishings, so there was a lot of work to do. The architects entrusted the engineering and welding to specialists. They did everything else, including painting the walls and making the furniture.
Find a specialist for your project on Houzz
Find a specialist for your project on Houzz
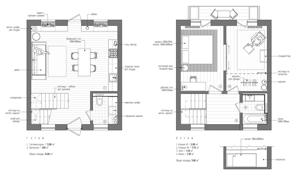
The partition walls in the townhouse weren’t load-bearing. Tearing them down made it possible to combine the hallway and the kitchen-living room and to build a stairway, which became a central feature of the space.
The architects came up with a creative layout for the second floor. They installed sliding doors between the two bedrooms. At the moment, the second bedroom is being used as a sitting room. In the future, it may become a children’s bedroom.
The architects came up with a creative layout for the second floor. They installed sliding doors between the two bedrooms. At the moment, the second bedroom is being used as a sitting room. In the future, it may become a children’s bedroom.
The architects weren’t trying for a perfectly smooth surface, so they didn’t even level the walls. They applied a layer of plaster about one-fifth to three-fifths of an inch thick with a trowel, and then painted it white. This finish was inspired by the traditional mazanka, a kind of wattle-and-daub home with uneven, whitewashed clay walls.
The advantage of this finish is that damage can be fixed piecemeal, without having to replace the entire surface.
They left the concrete ceiling exposed but sanded and varnished it. They wrapped the flexible cable wiring for the spotlight in gray fabric and attached the light to the ceiling with copper ring-screws.
The advantage of this finish is that damage can be fixed piecemeal, without having to replace the entire surface.
They left the concrete ceiling exposed but sanded and varnished it. They wrapped the flexible cable wiring for the spotlight in gray fabric and attached the light to the ceiling with copper ring-screws.
The architects chose natural wood flooring. They thought that a parquet finish would be too expensive for an experimental project and that it should be installed by experts. So they went for tongue-and-groove larch boards instead. Larch is a durable wood with a beautiful texture. They treated it with oil and hard wax.
The 20-foot-long boards were installed wall-to-wall. They put a layer of Ruberoid, a bitumen-based roofing material, between the framing and the boards so that the floor wouldn’t creak. They filled the spaces within the framework with slabs of stone wool, which provides sound insulation and thermal insulation.
Find a flooring specialist near you
The 20-foot-long boards were installed wall-to-wall. They put a layer of Ruberoid, a bitumen-based roofing material, between the framing and the boards so that the floor wouldn’t creak. They filled the spaces within the framework with slabs of stone wool, which provides sound insulation and thermal insulation.
Find a flooring specialist near you
A variety of chairs surround the dining table. The leather ones are midcentury European pieces, while the others were bought inexpensively online.
Browse dining chairs in the Houzz Shop
Browse dining chairs in the Houzz Shop
They bought ready-made kitchen cabinets and had the fronts and handles painted dark green.
Shop for ready-made kitchen cabinets
Shop for ready-made kitchen cabinets
Spice shelves hang on the exterior wall of the box that contains the bathroom. The box is covered with chalkboard paint.
Get ideas for using chalkboard paint
Get ideas for using chalkboard paint
The architects made the staircase on-site from edge-glued solid pine panels. The manufacturer had sawed the wood to the required dimensions, but the panels still had to be adjusted, sanded and oiled before being assembled.
To save space and hide the refrigerator from view, the architects built it into the rightmost section under the stairs. Next to it is a closet. The smaller cabinets contain household appliances and tableware.
To save space and hide the refrigerator from view, the architects built it into the rightmost section under the stairs. Next to it is a closet. The smaller cabinets contain household appliances and tableware.
This edge-glued paneling appears throughout the apartment on such elements as the sofa, bed, dining table, desk, shelves and bar. It also shows up on the countertops and the cabinet fronts in the kitchen and the laundry-bathroom. And it’s on the sliding doors, windowsills, balcony doorsteps and decorative window frame in the bathroom.
Soft pillows custom-made in a furniture workshop embellish the sofa. The sofa base has three covered pullout drawers. Thanks to the covers, the drawers can serve as coffee tables while storing items like bed linens, documents and electronics.
Soft pillows custom-made in a furniture workshop embellish the sofa. The sofa base has three covered pullout drawers. Thanks to the covers, the drawers can serve as coffee tables while storing items like bed linens, documents and electronics.
This is what the drawer looks like when it’s being used as a coffee table.
The custom cabinets along the window, with their latticelike fronts, are made of metal. They were painted based on the architects’ drawings at a friendly neighborhood auto repair shop for a minimal cost. They hold tableware and conceal the radiators.
The architects installed laundry equipment in the first-floor bathroom. The painted plaster walls match the ceramic tiles on the floor.
Shop for wall and floor tile
Shop for wall and floor tile
The owners, a young couple with a cat, wanted a big second-floor bedroom that could be divided, when needed, into two bedrooms. That’s why there are two doors off the hallway.
Large sliding doors separate the two rooms.
As with the rest of the furniture, the architects made the sliding partitions, the desk and the bed, with its large headboard, on-site.
Since people often get thirsty at night, the architects decided to help the owners by installing a faucet in the headboard. Instead of a nightstand, there is a zinc-coated barrel.
On the other side of the bedroom is a mezzanine furnished with an extra bed. In the future, this part of the room can become a separate children’s room with a play area.
The mezzanine is made of pine beams and plywood, painted white just like the ceiling and the walls. The safety barrier is made of metal attached securely to a load-bearing, reinforced-concrete beam.
There is a clothes rack in the area under the bed; the space is used as an open closet.
There is a clothes rack in the area under the bed; the space is used as an open closet.
The armchair in the sitting area was rescued from janitors in St. Petersburg, painted and upholstered. Underneath is a Turkish kilim rug from the 1970s. Next to the armchair is a bookcase that doubles as a side table. It was built on-site and stores glasses and bottles.
Shop for kilim rugs
Shop for kilim rugs
The plumbing layout created a niche around the Kaldewei bathtub, which acts as a contrasting accent. The tiled wall doesn’t reach to the ceiling; potted plants decorate the ledge on top.
More on Houzz
Read about other homes around the world
Find a pro
Shop for products
More on Houzz
Read about other homes around the world
Find a pro
Shop for products

























Townhouse at a Glance
Who lives here: A young creative couple with their cat
Location: St. Petersburg, Russia
Size: 721 square feet (67 square meters); two bedrooms, two bathrooms
Architects: Alexander Malinin and Anastasia Sheveleva of Int2architecture
Alexander Malinin and Anastasia Sheveleva say that over the past few years, foreign DIY blogs, magazines and video tutorials have been changing the decor scene in Russia. This inspired the architect duo to see what they could do in an interior with their own hands.