Houzz Tours
Houzz Tour: Midcentury Home Updated for Multigenerational Living
A California family opens up its courtyard-style Eichler to let in light and add a suite for grandparents
Homes constructed by the postwar developer Joseph Eichler are coveted for many of the features that appealed to families in the 1950s and ’60s, including their modern style, indoor-outdoor flow and large expanses of glass. But other common aspects of the homes, including poor energy efficiency, closed-off kitchens and small square footage, aren’t very conducive to contemporary multigenerational living.
So after a family with a young daughter and twins on the way purchased one such home in Palo Alto, California, it set out to upgrade the home’s function and finishes and to add a grandparents’ suite. The homeowners hired Klopf Architecture, which is renowned for its sensitive Eichler remodels, to get the job done — and to ensure that the home’s architectural integrity and distinctive character were preserved in the process.
So after a family with a young daughter and twins on the way purchased one such home in Palo Alto, California, it set out to upgrade the home’s function and finishes and to add a grandparents’ suite. The homeowners hired Klopf Architecture, which is renowned for its sensitive Eichler remodels, to get the job done — and to ensure that the home’s architectural integrity and distinctive character were preserved in the process.
This is the view from inside the home’s main living space, looking out across the courtyard toward the red gate and garage on its left.
Here’s a closer view from inside the courtyard, with the gate open. Translucent glass panels on either side of the solid gate provide privacy while letting in sunlight.
The landscaping and hardscaping are new, including the combination of basalt pavers and poured concrete used for the walkway and patio.
See Amazing Remodels of Eichler Homes
The landscaping and hardscaping are new, including the combination of basalt pavers and poured concrete used for the walkway and patio.
See Amazing Remodels of Eichler Homes
Before: This was the home’s existing front door, as seen from the courtyard.
The public areas, including the kitchen and dining room, are on the right side of the home. The wing to the left holds the bedrooms.
The public areas, including the kitchen and dining room, are on the right side of the home. The wing to the left holds the bedrooms.
After: This is the new view looking toward the front door of the house and through to the backyard. The door is directly opposite the courtyard gate.
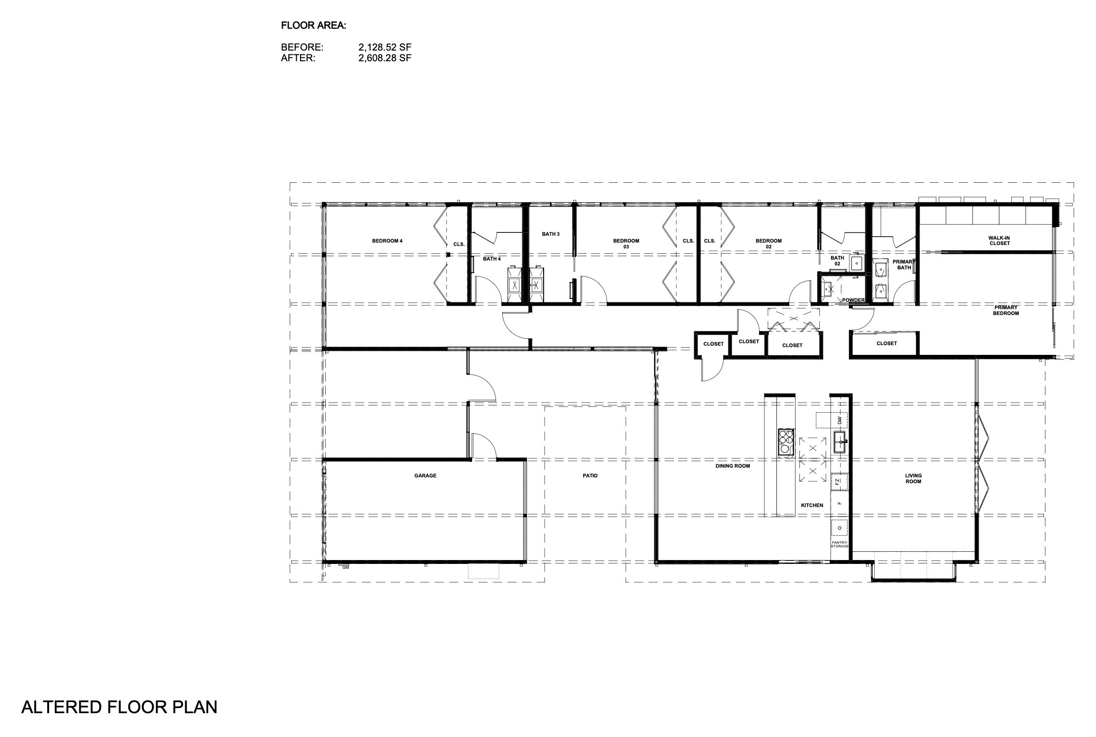
John Klopf and Angela Alexander of Klopf Architecture extended and completely reconfigured the bedroom wing to create a suite for the grandparents, taking the house from four bedrooms and two bathrooms to four bedrooms and 4½ baths.
Scroll to the bottom to see the home’s existing and new floor plans.
John Klopf and Angela Alexander of Klopf Architecture extended and completely reconfigured the bedroom wing to create a suite for the grandparents, taking the house from four bedrooms and two bathrooms to four bedrooms and 4½ baths.
Scroll to the bottom to see the home’s existing and new floor plans.
Still standing in the courtyard and facing the house, this is the view looking to the right. The home’s dining area is behind the window at left, and the garage is on the right. The courtyard is open to the sky and to the side yard.
Although the courtyard hardscaping is new, Klopf and Alexander preserved the home’s structural elements, including the wood framing and the concrete slab foundation. Since concrete production is a huge source of greenhouse gases, preserving the foundation instead of breaking it up and pouring a new one helped reduce the environmental impact.
The windows and doors throughout the house, meanwhile, were updated to meet today’s energy codes. Upgrading the original single-paned windows to double-paned windows with tempered glass was also critical for safety reasons, especially in a household with young children, Alexander says.
Although the courtyard hardscaping is new, Klopf and Alexander preserved the home’s structural elements, including the wood framing and the concrete slab foundation. Since concrete production is a huge source of greenhouse gases, preserving the foundation instead of breaking it up and pouring a new one helped reduce the environmental impact.
The windows and doors throughout the house, meanwhile, were updated to meet today’s energy codes. Upgrading the original single-paned windows to double-paned windows with tempered glass was also critical for safety reasons, especially in a household with young children, Alexander says.
The garage serves as a mudroom, laundry area and office. The window above the laundry area (the same one visible from the exterior in the previous photo) looks out to the courtyard and into the house, which makes the spaces feel connected.
Check out our beginner’s guide to get started on your home project
Check out our beginner’s guide to get started on your home project
The front door opens into the open-plan dining and kitchen area. While the parents are cooking, they can watch their kids playing in the courtyard.
Originally, Eichler homes had minimal insulation and a radiant heating system built into the slab foundation. Over time, those heating systems often failed and proved difficult to repair. When upgrading this home, Klopf embedded a low-profile forced air conditioning system in the new roof insulation, powered by an electric heat pump. (The house is equipped with solar panels too.) The larger circles in the ceiling pictured here are can lights. Beyond them, the smaller circles are the discreet air conditioning and heating ducts.
The client wanted the house to be all-electric — an environmentally friendly choice and a practical one too. “In a few years, the Bay Area air quality district has said they will be banning the sale of gas water heaters and gas furnaces,” Klopf explains. “And if that law doesn’t get challenged in court and holds up, then eventually everyone’s going to be replacing their equipment with electric one way or another. So if you’re doing construction now, you might as well plan ahead and put the electricity in there, so you don’t have to cut up the house and run new circuits later.”
Originally, Eichler homes had minimal insulation and a radiant heating system built into the slab foundation. Over time, those heating systems often failed and proved difficult to repair. When upgrading this home, Klopf embedded a low-profile forced air conditioning system in the new roof insulation, powered by an electric heat pump. (The house is equipped with solar panels too.) The larger circles in the ceiling pictured here are can lights. Beyond them, the smaller circles are the discreet air conditioning and heating ducts.
The client wanted the house to be all-electric — an environmentally friendly choice and a practical one too. “In a few years, the Bay Area air quality district has said they will be banning the sale of gas water heaters and gas furnaces,” Klopf explains. “And if that law doesn’t get challenged in court and holds up, then eventually everyone’s going to be replacing their equipment with electric one way or another. So if you’re doing construction now, you might as well plan ahead and put the electricity in there, so you don’t have to cut up the house and run new circuits later.”
Before: This was the existing dining room. Klopf says that the home’s original wood paneling, pictured here, had gotten “dingy-looking over the years.”
After: The owners wanted a fresh and contemporary look for the house. So the paneling was removed and the walls and original ceiling paneling were painted white. The ceiling beams were painted black for contrast. The flooring throughout the house is engineered hardwood.
Shop for furniture on Houzz
Shop for furniture on Houzz
Before: The existing kitchen’s design looked out of step with the home’s architecture. A low-hanging beam and upper cabinets (left) above part of the peninsula blocked the sightline to the living room and out to the courtyard.
After: “Our approach is to modernize the homes to make them work for the families today — in this case, a multigenerational family — and to push the architect’s original ideas harder and farther,” Klopf says. That included making the home even more open and with an even better indoor-outdoor connection.
Klopf and Alexander removed the low-hanging beam and upper cabinets, for example, and they recessed the exhaust hood above the cooktop to maintain that openness. The new kitchen, which was designed by Klopf Architecture and constructed by Henrybuilt, has midcentury-modern-style slab-front walnut and laminate cabinetry and Porcelanosa countertops.
Using the same “architectural language,” Klopf says, is a good way to make the new blend with the old. “So when you walk into it, you would think the original architect might have designed it like this if they were doing it in 2020,” he says.
Klopf and Alexander removed the low-hanging beam and upper cabinets, for example, and they recessed the exhaust hood above the cooktop to maintain that openness. The new kitchen, which was designed by Klopf Architecture and constructed by Henrybuilt, has midcentury-modern-style slab-front walnut and laminate cabinetry and Porcelanosa countertops.
Using the same “architectural language,” Klopf says, is a good way to make the new blend with the old. “So when you walk into it, you would think the original architect might have designed it like this if they were doing it in 2020,” he says.
The appliances include a panel-front fridge integrated into the bank of tall cabinetry to the right of the sink and a Wolf induction cooktop in the peninsula.
34 Home Design Trends That Will Define 2025
34 Home Design Trends That Will Define 2025
Before: The living room is on the other side of the sink wall. An asymmetrical fireplace dominated one of the living room’s side walls.
Scroll down to the home’s existing and new floor plans to get reoriented.
Scroll down to the home’s existing and new floor plans to get reoriented.
After: Here, Klopf and Alexander removed a structural post and opened up the back wall to the backyard with a folding-door system.
They replaced the original fireplace with a wider, symmetrical lighted TV niche, adding windows on either side. The back of the niche and top of the custom built-in cabinet are the same Porcelanosa used in the kitchen.
They replaced the original fireplace with a wider, symmetrical lighted TV niche, adding windows on either side. The back of the niche and top of the custom built-in cabinet are the same Porcelanosa used in the kitchen.
Before: The existing living room (on the left) opened to a small patio with an uneven surface.
After: The living room now flows to a large paved area with a fire pit (not pictured) in the low-maintenance backyard, facilitating outdoor living. The paving also provides a stable walking surface for older family members.
Here you can see the primary bedroom on the right, which was extended out into the backyard. The roofline on this side of the house was maintained but the height was raised from 8 to 9 feet, adding to the airy, spacious feel.
Exterior siding paint: Kendall Charcoal, Benjamin Moore
Here you can see the primary bedroom on the right, which was extended out into the backyard. The roofline on this side of the house was maintained but the height was raised from 8 to 9 feet, adding to the airy, spacious feel.
Exterior siding paint: Kendall Charcoal, Benjamin Moore
Before: The primary bedroom previously had a combined walk-in closet and bathroom on one side.
After: Klopf and Alexander removed the bathroom, expanded the walk-in closet and moved the closet door to the left (outside the frame of the photo).
A new slider door opens to the enlarged patio. The backyard is very private (a common characteristic of Eichler homes), but Klopf and Alexander cut through the structural roof to add a recessed, motorized roller shade for light control.
The new bedroom is clean and bright. Globe ceiling lights here and elsewhere in the house nod to the midcentury Lightolier ball lights originally installed in Eichlers.
Shop on Houzz for midcentury-modern-style ceiling lighting
A new slider door opens to the enlarged patio. The backyard is very private (a common characteristic of Eichler homes), but Klopf and Alexander cut through the structural roof to add a recessed, motorized roller shade for light control.
The new bedroom is clean and bright. Globe ceiling lights here and elsewhere in the house nod to the midcentury Lightolier ball lights originally installed in Eichlers.
Shop on Houzz for midcentury-modern-style ceiling lighting
Before: The existing bathroom had a central sink with the closet area to its right and a shower stall and toilet to its left.
After: Klopf and Alexander created a new bathroom suite just inside the bedroom door.
The bathroom’s curbless steam shower has a glass enclosure that reaches all the way to the ceiling. The shower is equipped with a bench, a handheld shower head, a linear drain and a pivoting section of glass above the door for ventilation. The home is next to a recreation center, and the mesh of one of its tennis courts is visible through the shower window.
The bathroom’s curbless steam shower has a glass enclosure that reaches all the way to the ceiling. The shower is equipped with a bench, a handheld shower head, a linear drain and a pivoting section of glass above the door for ventilation. The home is next to a recreation center, and the mesh of one of its tennis courts is visible through the shower window.
The goal was to bring in as much light as possible, which was achieved in part with the addition of a skylight. Now the homeowners don’t need to turn on the lights during the day.
The room also has underfloor heating, a heated towel rack, a washlet toilet, a custom wall-mounted double vanity and a recessed, lighted mirror with storage.
Klopf Architecture now offers interior design services but didn’t at the time of this project. The homeowners worked with designer Lucile Glessner when selecting and procuring light fixtures and bathroom materials, including the room’s textured porcelain wall tile.
The room also has underfloor heating, a heated towel rack, a washlet toilet, a custom wall-mounted double vanity and a recessed, lighted mirror with storage.
Klopf Architecture now offers interior design services but didn’t at the time of this project. The homeowners worked with designer Lucile Glessner when selecting and procuring light fixtures and bathroom materials, including the room’s textured porcelain wall tile.
Looking down the hall from the primary suite, one can see additional new skylights that let sunshine pour into the expanded bedroom wing.
On the right is a small powder room that was also added during the renovation.
The new grandparents’ suite is at the opposite end of the hall, past the two kids’ bedrooms.
On the right is a small powder room that was also added during the renovation.
The new grandparents’ suite is at the opposite end of the hall, past the two kids’ bedrooms.
The grandparents’ suite, which is at the front of the house, has motorized roller shades and a built-in desk.
Before: This hall bathroom was the second of the two bathrooms in the existing home. When Klopf and Alexander redesigned and expanded the bedroom wing, they eliminated this bathroom and reallocated the space. Now, guests use the new powder room and each of the four bedrooms has an en suite bathroom.
Like the primary en suite bathroom, the grandparents’ en suite has a washlet toilet and curbless shower (albeit without steam), which are popular aging-in-place features. The elder couple prefer to use a three-legged stool to shower, so it doesn’t have a built-in bench, but there’s a handheld shower head. This room is also sunny and bright thanks to its skylight.
“People don’t think about it, but having better daylight is actually good for aging in place,” Klopf says. “As everyone’s eyes age, you notice that it’s harder to see in dimmer light. [So ample] light is something that helps make spaces more livable for people of all ages.”
11 Ways to Age-Proof Your Bathroom
“People don’t think about it, but having better daylight is actually good for aging in place,” Klopf says. “As everyone’s eyes age, you notice that it’s harder to see in dimmer light. [So ample] light is something that helps make spaces more livable for people of all ages.”
11 Ways to Age-Proof Your Bathroom
This en suite bathroom, which adjoins the twins’ bedroom, has a curbless shower; their big sister’s bathroom, not pictured, has a tub.
The expansion of the bedroom wing allowed Klopf and Alexander to enlarge the children’s bedrooms and closets. Thanks to the extra elbow room and all of the other upgrades made by Klopf Architecture, this 60-year-old house could easily fit this family’s needs far into the future.
“It’s going to last another few generations,” Klopf says. “Maybe the kids who are living in those little twin cribs will one day be in the front, and their grandchildren will be in the back.”
How to Make Your Home More Comfortable and Inclusive
“It’s going to last another few generations,” Klopf says. “Maybe the kids who are living in those little twin cribs will one day be in the front, and their grandchildren will be in the back.”
How to Make Your Home More Comfortable and Inclusive
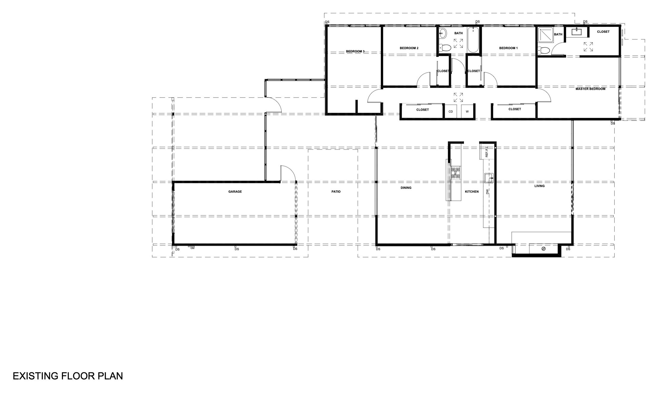
The existing floor plan


































House at a Glance
Who lives here: A couple, their three young children and a set of grandparents
Location: Palo Alto, California
Size: 2,608 square feet (242 square meters); four bedrooms, 4½ baths
Designers: John Klopf and Angela Alexander (architecture) of Klopf Architecture and Thuilot Associates (landscape design)
Of the 10,000 or so modest but architecturally progressive Eichler homes built in the 1950s through the mid-1970s, more than 2,000 — more than in any other city — were clustered in tract house neighborhoods of Palo Alto. Although they came in several floor plans, they’re easily identified by their shared post-and-beam construction, low rooflines, horizontal orientation and minimal street-facing windows.
This house, which was built in 1959, is often referred to as a courtyard Eichler. It has a private open-air courtyard between the main house and a front fence and gate (the red door to the left of the garage in this photo).
Find an architect near you