Houzz Tours
Houzz Tour: Organic Modern Makeover Embraces the Art of Wabi-Sabi
A designer found on Houzz respects nature, Japanese craftsmanship and the power of fire in a California home renovation
When a Santa Cruz, California, couple hired designer Shannon Demma of Urbana Design Studio to remodel their home after finding her portfolio on Houzz, they shared several wishes. First, the avid bird-watchers and environmentalists wanted the house to feel more connected to its wooded setting. Aesthetically, they were after a modern, nature-inspired style that incorporated Japanese-style wood joinery (an homage to the wife’s heritage). And they were adamant about increasing the home’s fire resistance. See how Demma made those wishes come true in collaboration with talented local craftspeople.
Before: This is the house pre-renovation. One of Demma’s biggest challenges was improving its interior and exterior layouts. To begin with, the main entrance in the previous photo is on the side of the house, so the couple usually entered through the garage door. Often visitors (including Demma the first time she drove up) couldn’t even find the front door.
Another big challenge was mitigating fire risk. Originally, the home had redwood siding and shake roofing. Redwood can be naturally fire-resistant, and fires in the county until that point had been relatively infrequent. But given the increasing wildfire risk throughout California, the homeowners wanted to upgrade the house with the most fire-resistant yet natural-looking materials possible.
Their concerns proved prescient when, partway through the renovation, lightning sparked a historic fire that swept through the Santa Cruz Mountains and adjacent areas. Although the couple’s house wasn’t damaged, the neighborhood was evacuated. The wife, who’d been particularly insistent, was vindicated. “She’s like, ‘See? Everyone thought I was crazy, but I’m not!’” Demma says.
Another big challenge was mitigating fire risk. Originally, the home had redwood siding and shake roofing. Redwood can be naturally fire-resistant, and fires in the county until that point had been relatively infrequent. But given the increasing wildfire risk throughout California, the homeowners wanted to upgrade the house with the most fire-resistant yet natural-looking materials possible.
Their concerns proved prescient when, partway through the renovation, lightning sparked a historic fire that swept through the Santa Cruz Mountains and adjacent areas. Although the couple’s house wasn’t damaged, the neighborhood was evacuated. The wife, who’d been particularly insistent, was vindicated. “She’s like, ‘See? Everyone thought I was crazy, but I’m not!’” Demma says.
After: Demma and the homeowners searched high and low for a garage door with an integrated walk-through door. Ultimately, they had one custom-made. It’s surrounded by a fire-resistant natural stone veneer, and peeking out above it is the home’s new, noncombustible standing-seam metal roof.
Like the front entrance, the garage door tells a bigger story. It was built by local craftsman Max Spooner, an expert in Japanese-style woodworking who tragically lost his own home in the fire. In a poetic instance of reclamation, Spooner sourced the charred wood used on the door from a water tank that also burned during the blaze.
How to Protect Your Home From Wildfire
Like the front entrance, the garage door tells a bigger story. It was built by local craftsman Max Spooner, an expert in Japanese-style woodworking who tragically lost his own home in the fire. In a poetic instance of reclamation, Spooner sourced the charred wood used on the door from a water tank that also burned during the blaze.
How to Protect Your Home From Wildfire
The charred wood is essentially naturally produced yakisugi, also known as shou-sugi-ban — typically made using a traditional Japanese method of heat-treating wood that makes it rot- and fire-resistant. That dovetailed perfectly with the homeowner’s style. “Her father’s Japanese, and she loves Japanese joinery and woodworking,” Demma says, shou-sugi-ban included.
To solve the problem of the invisible entrance, Demma and builder Rory Howland created an obvious pathway leading to the front door, framed by a Japanese-style entry trellis built by Spooner from reclaimed redwood. He collected the driftwood spanning the top of the gate on the nearby coastline. (Another large piece of driftwood over the front entry is visible in the first photo.)
The design “sets the stage for the entire experience that will follow,” Demma says.
The design “sets the stage for the entire experience that will follow,” Demma says.
The stone that surrounds the garage extends along the side of the house to the entry and pulls in the green and brown tones from the yard.
Above the stone is fire-resistant fiber cement shake siding that took some sleuthing to find. “She’s very tactile, very, very tuned in to materials and color nuances,” Demma says of the homeowner, and the most commonly available fiber cement siding didn’t pass muster with her. So when the homeowner spotted a siding she liked on a house in the area, she knocked on the door and learned the manufacturer’s name: Nichiha. The company was founded in Japan and has a manufacturing plant in Georgia. In the black color, the shake resembles shou-sugi-ban. “It all came together when we found [that siding],” Demma says.
The better pieces of the original redwood siding were salvaged for reuse in another project.
Above the stone is fire-resistant fiber cement shake siding that took some sleuthing to find. “She’s very tactile, very, very tuned in to materials and color nuances,” Demma says of the homeowner, and the most commonly available fiber cement siding didn’t pass muster with her. So when the homeowner spotted a siding she liked on a house in the area, she knocked on the door and learned the manufacturer’s name: Nichiha. The company was founded in Japan and has a manufacturing plant in Georgia. In the black color, the shake resembles shou-sugi-ban. “It all came together when we found [that siding],” Demma says.
The better pieces of the original redwood siding were salvaged for reuse in another project.
After: A 180-square-foot addition enclosed the original porch and created a new covered entry area.
Spooner built the front entry from locally sourced reclaimed wood using traditional Japanese joinery methods and design inspiration. “He built this entire front entry with not a single fastener,” Demma says, adding that the structural engineer, Blake Carpenter, calculated all of the loads and deemed it both “amazing” and “perfect.”
Playful and modern egg-shaped Gregg outdoor pendants by Foscarini hang from the ceiling. Demma calls the lights a perfect embodiment of the clients’ aesthetic: the modern fused with the very old and traditional. She suspected they were less to Spooner’s taste, though. “I thought Max was gonna croak,” she says with a laugh.
Spooner built the front entry from locally sourced reclaimed wood using traditional Japanese joinery methods and design inspiration. “He built this entire front entry with not a single fastener,” Demma says, adding that the structural engineer, Blake Carpenter, calculated all of the loads and deemed it both “amazing” and “perfect.”
Playful and modern egg-shaped Gregg outdoor pendants by Foscarini hang from the ceiling. Demma calls the lights a perfect embodiment of the clients’ aesthetic: the modern fused with the very old and traditional. She suspected they were less to Spooner’s taste, though. “I thought Max was gonna croak,” she says with a laugh.
The front door, which features a maple circle inside a field of redwood, was custom-made by Robin Cash, another local woodworker, who lost both his house and shop in the fire. In fact, the first front door he made for this house was burned so badly that it had to be remade, so it was the last piece to be installed.
“Originally the circle was in the middle, but then we played with moving the circle around. It turned out lovely,” Demma says. The asymmetry and even the loss of the first door align with wabi-sabi principles, which embrace natural materials, the beauty of imperfection and impermanence.
“Originally the circle was in the middle, but then we played with moving the circle around. It turned out lovely,” Demma says. The asymmetry and even the loss of the first door align with wabi-sabi principles, which embrace natural materials, the beauty of imperfection and impermanence.
This detail shot of one of the home’s new reclaimed-redwood corbels offers a closer look at Spooner’s craftsmanship and the fire-resistant siding.
Demma’s decision to enclose the porch solved an awkward aspect of the home’s interior flow. “You would walk in the front door and you’d have to walk around a whole big circle to get to the kitchen,” she says. Now when one enters, the open-plan dining and kitchen are directly on the left.
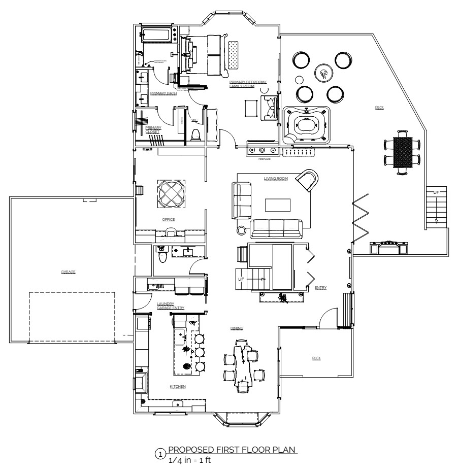
Scroll to the bottom of the story to see the new floor plan and southeast elevation.
Scroll to the bottom of the story to see the new floor plan and southeast elevation.
When the homeowners first reached out to Demma, they were mostly focused on updates to the home’s exterior and layout. But the renovation soon extended to much of the first floor. Demma used Houzz Pro software to manage procurement for the project.
The dining room got a new, larger window on one side and a built-in storage piece beneath the bay window. They chose two handcrafted LED Sling pendant lights from Hubbardton Forge, which Demma calls “the swans,” to hang over the Mission-style table and chairs.
The dining room got a new, larger window on one side and a built-in storage piece beneath the bay window. They chose two handcrafted LED Sling pendant lights from Hubbardton Forge, which Demma calls “the swans,” to hang over the Mission-style table and chairs.
After: To remedy those issues, Demma removed a wall between the dining room and kitchen (the wall on the left in the previous image, where the wall ovens used to be). She replaced the tiled floors with engineered oak, the tiled countertops with slabs of Calacatta marble and the backsplash with a green picket tile from Fireclay that resembles vines climbing the walls.
Demma also combined the separate casual dining and breakfast areas. The original cabinets and appliances were removed and donated. Now, an L-shaped configuration of walnut and white-painted cabinetry wraps around an island with a waterfall countertop and bar seating.
If you enter the home and keep going straight, you land in the living room. Here, the goals included creating a comfortable entertaining space with a nature-inspired modern style and opening up both views and access to the outdoors. Bernhardt’s woven-abaca Maya sofa and accent tables and a neutral-toned rug with a river-rock-like pattern add to the organic feel of the space.
Before: Maximizing the outdoor connection took heavier lifting. This was the wall on the right when stepping into the living room. The best view to the backyard — and of a beloved old oak tree that the remodeling crew took great care to protect during construction — was partially blocked by a large brick-faced fireplace.
After: Demma moved the fireplace to the adjacent wall and replaced it with a 15-foot-long LaCantina door. Between the corner and the new fireplace, she added another, shorter LaCantina door. Now the walls open up to create a seamless flow from the living room onto a fire-resistant TimberTech deck outfitted with a gas fireplace, furniture from Terra Outdoor Living and a hot tub recessed into the deck (not pictured).
A custom-built chaise tucked into the corner provides a spot for reading and bird-watching. “This is the most sought-after spot in the whole house,” Demma says.
A custom-built chaise tucked into the corner provides a spot for reading and bird-watching. “This is the most sought-after spot in the whole house,” Demma says.
The new gas fireplace has a recycled-redwood mantel and a drywall surround painted in Benjamin Moore’s Iron Mountain.
After: The original plan was to leave the rooms undivided. But that changed when the pandemic hit, and the couple — especially the wife, who is a therapist — needed a private space to work from home. Demma and Howland worked with a local glass company to install handcrafted Herrero steel doors and windows that enclose the space but maintain the views and open feel.
A powder room that’s accessed from the living room just to the left of the office continues the earthy, modern theme and green-and-brown color palette. A wall-mounted faucet from Graff’s Luna series swoops down to fill an organically shaped vessel sink sitting atop a marbled counter. Behind it, a textured tile sustainably handcrafted in Oregon by Encore Ceramics stretches to the ceiling. (The green looks more saturated in person, Demma says.)
Before: This is the first-floor primary suite bathroom, which is on the opposite side of the office, as seen from the vantage point of the bedroom. For now, the couple use that bedroom as a den and sleep upstairs. But as they age in place, they plan to move to the primary suite downstairs, Demma says, and they decided to remodel this bathroom with accessibility in mind. While they were at it, they swapped the orientation of the shower and closet to take advantage of the views.
After: Demma installed the same textured green tile used in the powder room above the walnut double vanity. The pendant light hanging between the medicine cabinets is the pebble-like Cairn by Hubbardton Forge, the same Vermont lighting manufacturer that made the “swans” in the dining room.
In the curb-free shower-wet room, a Graff Luna tub filler follows the graceful curve of the large freestanding soaking tub. A coordinating grab bar makes entering and exiting the tub safer — and Demma says that if she could do the project again, she’d do even more grab bars. “I had a hip replacement, and that’s when I really got the whole gist of it,” she says. “[Grab bars] keep you independent.”
As with choosing fire-resistant exterior materials, when it comes to designing for aging in place, an ounce of prevention is worth a pound of cure. And as this project illustrates, those proactive measures can lead to beautiful outcomes.
As with choosing fire-resistant exterior materials, when it comes to designing for aging in place, an ounce of prevention is worth a pound of cure. And as this project illustrates, those proactive measures can lead to beautiful outcomes.

































House at a Glance
Who lives here: A couple with a daughter in college
Location: Santa Cruz, California
Size: 2,671 square feet (248 square meters); three bedrooms, three bathrooms
Designer: Shannon Demma of Urbana Design Studio
Builder: Rory Howland of Howland Built
This new front entrance perfectly embodies the philosophy and artisanship that went into the project. The story that follows details the materials, design elements and construction methods — not to mention the heart and heartache — involved in creating this masterwork as well as the rest of the home.
Find a local interior designer on Houzz