Japanese Design Influences in a California ADU
A design-build firm found on Houzz looks to a family’s Japanese heritage for the new energy-efficient backyard home
A California couple with three children and roots in Japan and Australia wanted to create an accessory dwelling unit in back of their home in Silicon Valley, with the intention of using it for visiting relatives from Japan. They found building Lab on Houzz and hired the design-build firm to create a multigenerational home that would embrace the Japanese aesthetic. The owners and architects shared reference images from a Houzz ideabook. “We used that during early design development to understand visually what they desired in this new ADU,” principal architect Stephen Shoup says. “The communal theme was the driving factor in developing this project, such as providing an onsen bathing experience with a private garden.”
This is the ADU’s front entry, referred to as a genkan in Japanese, where visitors remove their shoes before stepping up to enter the rest of the home. It serves as a transition space from outside to indoors. The picture window on the right, which has an automated roller shade, looks into one of the bedrooms.
The ADU’s sustainable and energy-efficient features include large skylights, radiant floor heating and tile flooring to help store passive solar heat. Shoup says the tiles conduct heat extremely well, which reduces the amount of energy needed to warm up a room. They’re a relatively thick porcelain that’s better than wood and carpeting at absorbing, holding and radiating heat, he says. “This is useful both in a purely passive way, for example, by sunlight, as well as when actively heated by the in-floor hydronic radiant heat system,” Shoup says.
A heat pump is split into four zones, which allow the owners to adjust hot and cold air in individual rooms. They installed an energy recovery ventilator (ERV) for efficient fresh air ventilation.
The Passive House: What It Is and Why You Should Care
The ADU’s sustainable and energy-efficient features include large skylights, radiant floor heating and tile flooring to help store passive solar heat. Shoup says the tiles conduct heat extremely well, which reduces the amount of energy needed to warm up a room. They’re a relatively thick porcelain that’s better than wood and carpeting at absorbing, holding and radiating heat, he says. “This is useful both in a purely passive way, for example, by sunlight, as well as when actively heated by the in-floor hydronic radiant heat system,” Shoup says.
A heat pump is split into four zones, which allow the owners to adjust hot and cold air in individual rooms. They installed an energy recovery ventilator (ERV) for efficient fresh air ventilation.
The Passive House: What It Is and Why You Should Care
Before: An underused garage was in back of the main residence. The first order of business was to demolish it. The team then cleaned up the backyard and prepared it for the new ADU.
A shed was attached to the garage, facing the back fence. The open area included a raised bed for vegetables. The new plan includes small gardens near the kitchen and bath.
After: This is a view of the ADU from the main residence, separated by a pathway of pavers and stones, which are functional as well as aesthetic. “We used this combination for architectural, practical and permeability reasons,” Shoup says.
The siding is fiber cement panels with a stone-like finish. “They were chosen in part because they have an integral color and do not require painting or other forms of ongoing maintenance other than the occasional wash,” Shoup says.
The siding is fiber cement panels with a stone-like finish. “They were chosen in part because they have an integral color and do not require painting or other forms of ongoing maintenance other than the occasional wash,” Shoup says.
Before: The original site plan shows a sizable area toward the back of the house that included the underused garage and an unused area behind it.
After: The new structure, shaded gray in the diagram, occupies about 1,000 more square feet of the rear yard than the garage and sheds did.
Solar panels were installed on the main house as part of the ADU project, and they power both structures. In the diagrams, the small rectangles on the roof of the main house represent solar panels; on the ADU, they’re skylights.
Check out our beginner’s guide to get started on your home project
Solar panels were installed on the main house as part of the ADU project, and they power both structures. In the diagrams, the small rectangles on the roof of the main house represent solar panels; on the ADU, they’re skylights.
Check out our beginner’s guide to get started on your home project
Cross-section: This side-view cutaway rendering of the ADU illustrates the accordion shape of the roof. The homeowners’ interest in design was key to the success of the project, Shoup says. The accordion roof is a bold element that gives more shape to the squarish site plan, he says.
“When it came to the accordion, it was a rare opportunity when we could make a leap on shaping the exterior form and allow the interior spaces to develop and grow toward it,” Shoup says. “As a result, the feeling of continuity is much more global in level. Rarer still was the willingness of our client to invest in an exterior expression which could hardly be seen by the human eye from the ground level.” The roof is a single-membrane thermoplastic, which is often used on low-pitched roofs that aren’t visible, Shoup says.
“When it came to the accordion, it was a rare opportunity when we could make a leap on shaping the exterior form and allow the interior spaces to develop and grow toward it,” Shoup says. “As a result, the feeling of continuity is much more global in level. Rarer still was the willingness of our client to invest in an exterior expression which could hardly be seen by the human eye from the ground level.” The roof is a single-membrane thermoplastic, which is often used on low-pitched roofs that aren’t visible, Shoup says.
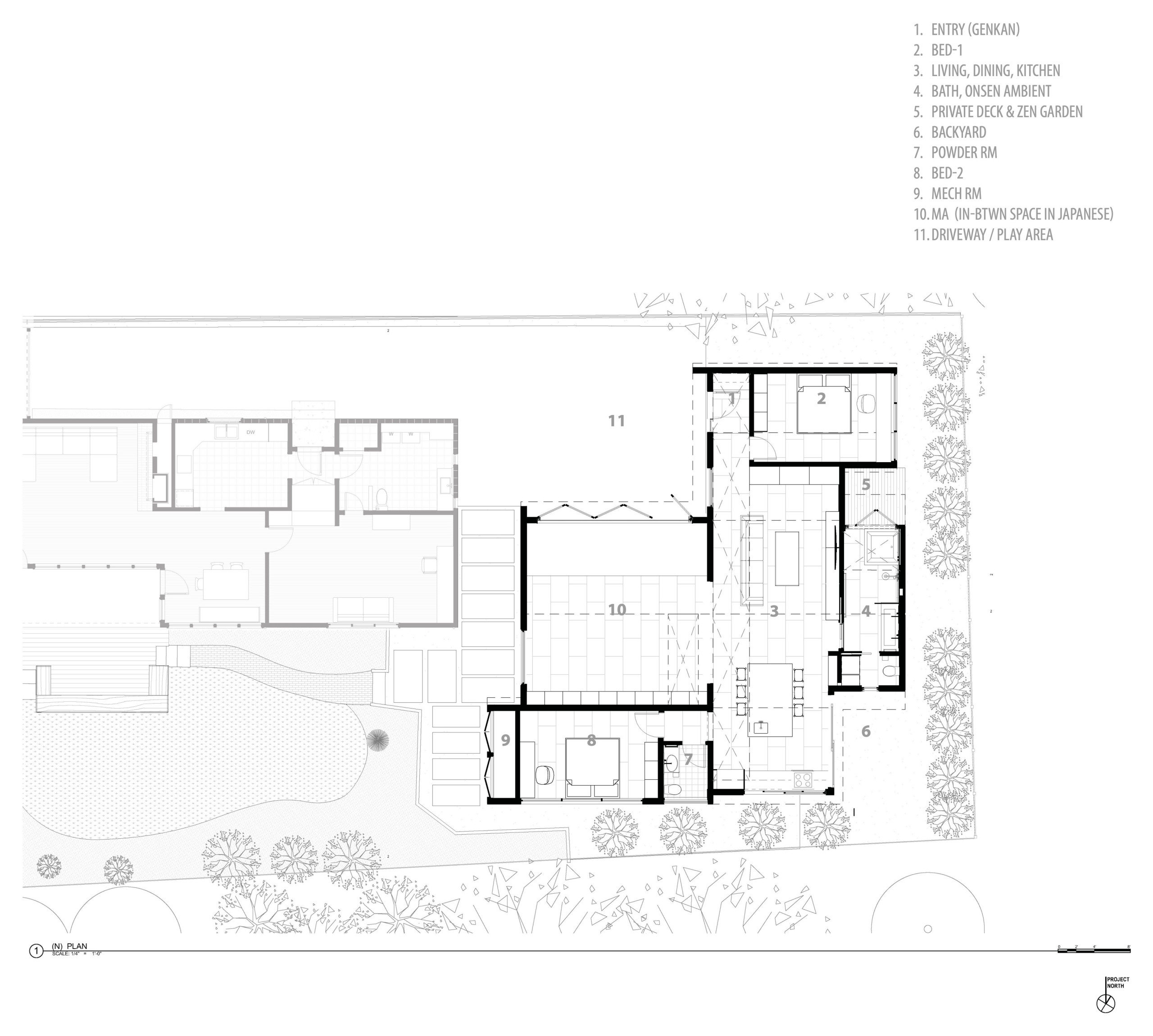
Floor plan: In determining the layout, the top priority was making sure the family bath occupied a central position in the home, Shoup says. “Instead of a popular concept where an en suite master bath is considered desirable, we followed the Japanese tradition where everything, and bathing in particular, is communal,” he says. A generously sized pocket door connects the bath (No. 4 in the diagram) to the home’s common areas.
This is a view in the hallway from the living room toward the front entry. A line of skylights illuminates the path into the living room.
The living room features built-in cabinets and shelving. A mini-split heat pump HVAC air handler is contained behind the grate near the ceiling. “The indoor mini-split units were installed during the cabinet installation since those are integrated in the cabinet to hide them,” Shoup says. He used a mechanical engineer to install the all-electric heat pump. “He specced the kind of heat pump, and then we did the cabinetry so we didn’t compromise the function.”
Installing a ductless mini-split heat pump doesn’t have to mean sacrificing attractive design for an obtrusive air handler unit on the wall. “The reality is manufacturers are very aware of the concerns in the U.S. about aesthetics, so it’s evolving pretty quickly,” Shoup says.
Shop for living room furniture in the Houzz Shop
Installing a ductless mini-split heat pump doesn’t have to mean sacrificing attractive design for an obtrusive air handler unit on the wall. “The reality is manufacturers are very aware of the concerns in the U.S. about aesthetics, so it’s evolving pretty quickly,” Shoup says.
Shop for living room furniture in the Houzz Shop
The kitchen with its compact features is open to the living area. “The kitchen layout was configured to have a communal kitchen-dining experience,” Shoup says. The custom flat-panel cabinetry is sawn white oak, with matte black fixtures and drawer pulls. The island features large drawers with built-in outlets inside. The narrow glass window over the counter slides open and provides a view of the green foliage outside.
The living area is illuminated by skylights that follow the accordion shape of the roof. The home has a combination of fixed and operable skylights, all of which have internal shades that can be opened and closed remotely. “There is a UV coating on the glass and mild tint to help with heat gain, but we opted for clarity of glass to maintain great views of sky and treetops,” Shoup says. “The internal electrically operated shades are used to mitigate heat gain and oversaturation of light.”
This is the multiuse family-play space, a large, open room referred to in Japanese as the ma, or in-between space. The pocket door seen in the center of the photo, just beyond the living area, leads to the family bath.
The family room-multiuse space has plenty of storage, with integrated floor-to-ceiling closets along one wall.
The team created a primary bathroom that follows the Japanese tradition of communal bathing called onsen, where nature is central — in this case, by way of a large skylight and a bifold glass door that opens to a private deck and garden. “This family bath and the entire project is an American house with lots of respect paid to Japanese sensibilities,” Shoup says.
The star feature is a spacious soaking tub, with a white Krion deck and matte black waterfall tub filler, under a large skylight. Krion is a solid-surface product similar to natural stone that’s hard-wearing, easy to maintain and antibacterial. In a nod to Japanese bathhouses, the pros used cedar planking to cover one wall and extend across the vaulted ceiling. “Cedar is moisture-resistant, and it gives a pleasant fresh odor when wet,” Shoup says. The shower area is wet-room-style, with a linear drain. The vanity, also made of Krion, has an integrated trough sink with a removable counter-like panel for bath accessories and for hiding the drain and making cleaning easier. The toilet, not seen in this photo, is on the other side of the vanity.
The star feature is a spacious soaking tub, with a white Krion deck and matte black waterfall tub filler, under a large skylight. Krion is a solid-surface product similar to natural stone that’s hard-wearing, easy to maintain and antibacterial. In a nod to Japanese bathhouses, the pros used cedar planking to cover one wall and extend across the vaulted ceiling. “Cedar is moisture-resistant, and it gives a pleasant fresh odor when wet,” Shoup says. The shower area is wet-room-style, with a linear drain. The vanity, also made of Krion, has an integrated trough sink with a removable counter-like panel for bath accessories and for hiding the drain and making cleaning easier. The toilet, not seen in this photo, is on the other side of the vanity.
Sunlight streams through the primary bedroom’s window. The window contains an automated roller shade from Hunter Douglas. The space also has a custom built-in floating white oak desk and drawers.
The pros were looking for a little change of pace in the powder room, so pastels make an appearance, with a pale green sink and Fireclay Fallow White Motif porcelain tiles in a semicircle pattern on the floor. Narrow porcelain wall tiles in a vertical grid stack on the wall circle back to the same tile laid in a horizontal grid pattern in the main bath.
More on Houzz
Tour more homes
Hire a local design professional
Shop for your home
More on Houzz
Tour more homes
Hire a local design professional
Shop for your home
























ADU at a Glance
Who lives here: A couple and their three children
Location: Silicon Valley, California
Size: 1,592 square feet (148 square meters); two bedrooms, 1½ bathrooms
Architect-builder: Principal Stephen Shoup and project designer-manager Hideaki Kawato of building Lab
After long delays during the pandemic and its resulting supply chain issues, the ADU was finally completed. Shoup and his team delivered a serene, modern home built for a sense of well-being, with traditional Japanese elements that include smooth lines, airiness and a connection to nature. The design includes an undulating roof with skylights that bring in light and a sense of the outdoors.
“The series of skylights in the main space that denote the main flow offer an abundance of light and a proportionally unexpected architectural and spatial experience,” Shoup says. “On clear nights, one feels as though they can reach up and grab the stars.”
The couple and their children ended up moving in themselves. They especially enjoy the quality of light and the kitchen and bath spaces in the new ADU. The main house is now used as study rooms and play spaces for the children and for relatives when they visit. There’s a large asphalt play area directly outside the ADU. The homeowners park in the relatively long driveway, part of which is covered.
Find an architect on Houzz