Kitchen of the Week: A Sensible Layout and an English Sensibility
A Wisconsin kitchen gets an English country revamp with a powder blue range, oak work island and charming period details
The existing kitchen in this Colonial-style home in the Milwaukee suburbs had a lot going for it — at least at first glance. But its work triangle and storage space were inefficient, its natural light was scant and its island orientation left the owners facing a blank wall instead of dinner guests. So design-build firm Refined Renovations tweaked the kitchen’s layout and gave it a cheerful and charming makeover, taking design cues from classic English country kitchens and sculleries.
After: After removing and donating what they could from the old kitchen, Refined Renovations’ design and production teams (who work together closely) had a blank canvas.
The homeowners wanted a kitchen with an antique English sensibility, cheerful colors and quirky details. Drawing inspiration from historical English kitchens and sculleries, they and the designers, led by Morgan Taugher, agreed on painted inset perimeter cabinets surrounding a stained oak island, all topped with marble-like Matarazzo quartzite.
The cabinetry was fabricated by Refined Renovations’ new in-house custom cabinetry shop. The existing hardwood floor was refinished and stained a complementary color.
Cabinet paint: White Dove, Benjamin Moore (uppers) and Silver Lake, Sherwin-Williams (lowers)
The homeowners wanted a kitchen with an antique English sensibility, cheerful colors and quirky details. Drawing inspiration from historical English kitchens and sculleries, they and the designers, led by Morgan Taugher, agreed on painted inset perimeter cabinets surrounding a stained oak island, all topped with marble-like Matarazzo quartzite.
The cabinetry was fabricated by Refined Renovations’ new in-house custom cabinetry shop. The existing hardwood floor was refinished and stained a complementary color.
Cabinet paint: White Dove, Benjamin Moore (uppers) and Silver Lake, Sherwin-Williams (lowers)
To address the inefficiency of the layout, the designers shifted the sink over slightly and placed the new, larger refrigerator to its left. They centered a smaller range on the back wall, leaving ample countertop on either side. Where the fridge once stood, they added a full-height pantry with a built-in speed oven. And they rotated the island 90 degrees.
Unlike the previous cabinets, these reach the ceiling, adding storage and display space inside illuminated glass-front cabinets. Matching paneled fronts on the new fridge and dishwasher help the appliances virtually disappear.
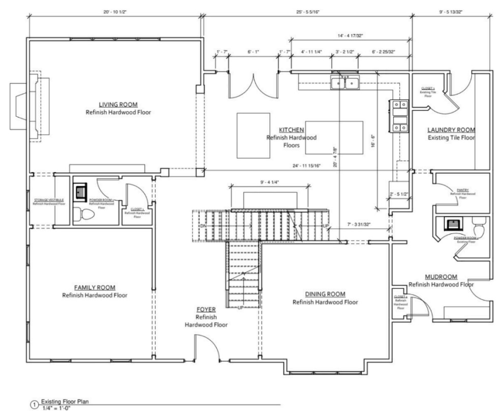
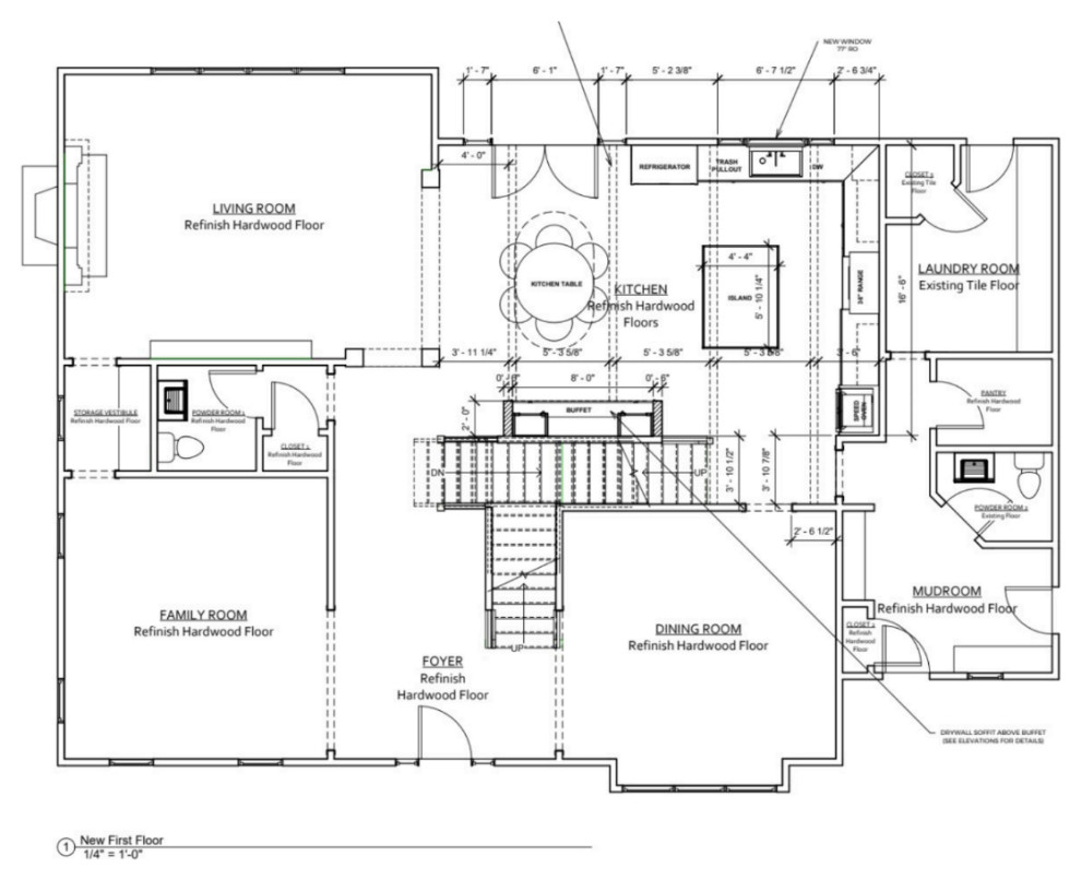
Scroll to the bottom to see the before-and-after floor plans.
Unlike the previous cabinets, these reach the ceiling, adding storage and display space inside illuminated glass-front cabinets. Matching paneled fronts on the new fridge and dishwasher help the appliances virtually disappear.
Scroll to the bottom to see the before-and-after floor plans.
Before: Previously, the kitchen’s only natural light entered through a small window over the sink. The sink itself was a basic stainless steel drop-in design.
New to home remodeling? Learn the basics
New to home remodeling? Learn the basics
After: A tall bank of windows measuring just over 6 feet wide now lets in abundant sunshine. Refined Renovations’ in-house interior design service, Refined Interiors, custom-made the relaxed Roman shades, which have a traditional botanical pattern.
The window was installed two months before the cabinetry went in. That made it challenging to set the handmade cast-iron, wall-mounted sink, one of the key elements of the vision for an old English working kitchen.
“It is not flat; it is not plumb. There are no 90-degree angles. It’s very imperfect, which is part of the beauty,” says Laura Marshall, Refined Renovations’ director of marketing.
To get the sink centered and with an even reveal, and at the same time have its wall-mounted faucet perfectly line up with the plumbing, there was no room for error. Luckily, with a lot of coordination between the design and production teams, the installation went flawlessly, Marshall says.
Faucet: Country Kitchen bridge in satin nickel, Rohl
The window was installed two months before the cabinetry went in. That made it challenging to set the handmade cast-iron, wall-mounted sink, one of the key elements of the vision for an old English working kitchen.
“It is not flat; it is not plumb. There are no 90-degree angles. It’s very imperfect, which is part of the beauty,” says Laura Marshall, Refined Renovations’ director of marketing.
To get the sink centered and with an even reveal, and at the same time have its wall-mounted faucet perfectly line up with the plumbing, there was no room for error. Luckily, with a lot of coordination between the design and production teams, the installation went flawlessly, Marshall says.
Faucet: Country Kitchen bridge in satin nickel, Rohl
Better use of “dead corners” was on the homeowners’ wish list. So the designers added blind corner cabinet pullouts to maximize that storage space. Sitting atop that base corner cabinet, beadboard-backed open shelving with a decorative scalloped trim provides a spot for cookbooks and other frequently accessed items. A small antique-looking brass sconce with a ribbed detail illuminates the space. Elsewhere, undercabinet lighting helps to eliminate shadows.
Specialized storage inserts for knives, baking trays, spices and other items keep the rest of the kitchen cabinets organized.
Specialized storage inserts for knives, baking trays, spices and other items keep the rest of the kitchen cabinets organized.
After: Turning the island parallel to the range wall allowed the homeowners to face the open dining and living areas instead of a blank stair wall when prepping meals.
Here you can also see the kitchen’s new decorative ceiling beams, which, like the new island, are made of quartersawn red oak with a rich stain. (Note that recessed ceiling lighting was digitally removed from these photos to keep attention on the design details.)
Here you can also see the kitchen’s new decorative ceiling beams, which, like the new island, are made of quartersawn red oak with a rich stain. (Note that recessed ceiling lighting was digitally removed from these photos to keep attention on the design details.)
A scullery — traditionally a space secondary to the kitchen for dishwashing and other messy tasks — often had a worktable in the center. Refined Renovations took inspiration from those freestanding tables when designing the island, but a hidden recessed toe kick supports the lower shelf and electrical outlets face the range wall. Two antique-looking pendants cast light onto the quartzite island top.
Browse kitchen lighting in the Houzz Shop
Browse kitchen lighting in the Houzz Shop
Other English antique-inspired island features include custom spindle legs, period hardware with a satin brass finish, faux keyholes and these brass mesh inserts for produce ventilation, which are on the island’s range-facing side.
“We were trying to be mindful of infusing this kitchen with really special details so that it would feel not only functional, beautiful and high-end, but [also] special,” Marshall says.
20 Kitchens Straight Out of the English Countryside
“We were trying to be mindful of infusing this kitchen with really special details so that it would feel not only functional, beautiful and high-end, but [also] special,” Marshall says.
20 Kitchens Straight Out of the English Countryside
After: The designers replaced the stainless steel pro range with a beautiful 36-inch powder blue La Cornue range that set the blue-and-white color scheme for the kitchen and became its focal point. The color is both pretty and period-appropriate, since light-blue-tinted plaster was common in Victorian sculleries.
Above the range, a custom hood has trim painted warm gray and a brass rod mounted between two shapely corbels. An original watercolor painting mounted on the front evokes the English countryside while adding a touch of contrasting color.
The handmade Clé zellige tile backsplash, which was dry-stacked (installed without grout), is reminiscent of that seen in historical English homes. The small center tiles coordinate with the hood trim and the veins in the countertop.
Hood trim paint: Worldly Gray, Sherwin-Williams
The handmade Clé zellige tile backsplash, which was dry-stacked (installed without grout), is reminiscent of that seen in historical English homes. The small center tiles coordinate with the hood trim and the veins in the countertop.
Hood trim paint: Worldly Gray, Sherwin-Williams
After: Refined Interiors found the new classically elegant dining set, which has a rich, dark finish. The round table can be extended into an oval (as pictured here), and it’s paired with custom upholstered chairs with fluted legs and nailhead details. The chairs’ striped upholstery was selected to complement the floral window shade.
The brass drum chandelier above the table has a ribbed frame that echoes the ribbed detail on the sconce above the open shelving. Its jewelry-like chains are similar to the island pendant light chains.
The brass drum chandelier above the table has a ribbed frame that echoes the ribbed detail on the sconce above the open shelving. Its jewelry-like chains are similar to the island pendant light chains.
After: In place of the desk, Refined Renovations built in a dining buffet with a quartersawn red oak countertop and a beadboard back that matches the back of the open shelving in the kitchen. The buffet’s mix of open and closed storage includes dedicated space for clerical items as well as an outlet for a hidden printer.
Fully operable cremone bolts hold the upper cabinets’ glass doors closed.
“They had to fit perfectly flush into that countertop,” Marshall says. “So it was a high-stakes moment of routing those in to perfectly match, so that the return could strike right inside that countertop for those working hardware pieces.”
The bolts are yet another detail that imparts an old English feel to the remodeled kitchen — and illustrates the thoughtfulness and craftsmanship that went into bringing it to life.
“They had to fit perfectly flush into that countertop,” Marshall says. “So it was a high-stakes moment of routing those in to perfectly match, so that the return could strike right inside that countertop for those working hardware pieces.”
The bolts are yet another detail that imparts an old English feel to the remodeled kitchen — and illustrates the thoughtfulness and craftsmanship that went into bringing it to life.
New floor plan
More on Houzz
Read more kitchen stories
Browse kitchen photos
Hire a kitchen remodeler
Shop for kitchen products
More on Houzz
Read more kitchen stories
Browse kitchen photos
Hire a kitchen remodeler
Shop for kitchen products























Kitchen at a Glance
Who lives here: A couple with grown children and two dogs
Location: Delafield, Wisconsin
Size: 320 square feet (30 square meters); 20 by 16 feet
Designer: Morgan Taugher (lead) of Refined Renovations
Before: The existing kitchen had dark cabinetry and countertops that gave it a heavy, shadowy look. Its back wall was dominated by an off-center stainless steel range, backsplash and hood, and the refrigerator was to the range’s right, far from the sink and trash cans, creating an inefficient work triangle. The only pantry was located down the hall, accessed through a mudroom.
Find a kitchen designer near you