Kitchen of the Week: Art Deco Style and a Place for Entertaining
An artfully decorated chimney vent hood and beloved collections stand out in a Toronto kitchen that reflects its owners’ passions
The personalities of homeowners Rachel Sa and Bruce Kirkland, and their passion for Art Deco design, shine through in their Toronto kitchen. Along with the artful display of the couple’s vintage glassware and jadite collections are permanent elements you might swear had been there since the 1930s, thanks to designers Francesco Giampietro and Cassandra Brandow’s careful study of Art Deco style and attention to details and finishes. The couple’s remodeled and expanded kitchen fits right in with their 1923 home while providing plenty of space for them to cook, entertain and be surrounded by their favorite things.
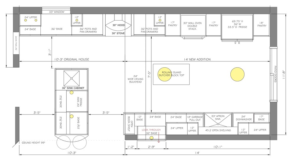
The homeowners’ previous kitchen was just 120 square feet. That kitchen was torn out and expanded as part of an addition at the back of the house. The designers were hired after construction had begun, and they inherited the new footprint — a long galley-like shape too wide to function as a true galley.
Before designing the kitchen’s layout, Giampietro learned how his clients liked to use the kitchen. They are avid cooks and entertainers, and were happy with having room in the middle to move around and be joined by guests.
So Giampietro employed a two-island strategy. The area to the left around the large island is the entertainment center, complete with two wine coolers and a bar sink that also serves the stove. The area to the right is more work-centric. A second island on casters and topped in butcher block works hard near the wall ovens and refrigerator. The other side of this area houses the main sink and dishwasher.
Before designing the kitchen’s layout, Giampietro learned how his clients liked to use the kitchen. They are avid cooks and entertainers, and were happy with having room in the middle to move around and be joined by guests.
So Giampietro employed a two-island strategy. The area to the left around the large island is the entertainment center, complete with two wine coolers and a bar sink that also serves the stove. The area to the right is more work-centric. A second island on casters and topped in butcher block works hard near the wall ovens and refrigerator. The other side of this area houses the main sink and dishwasher.
It was obvious to Giampietro that his clients also are passionate about collecting Mauviel cookware from France. Every year when Kirkland travels to cover the Cannes Film Festival, he returns with another piece of the handmade copper cookware. Displaying the collection as a focal point drove the design around the range. Chestnut Grove designed and fabricated the pot rails in-house from hammered black iron with an oil-rubbed bronze patina to complement the collection. The large-format tiles behind the collection are easy to keep clean, and their brick pattern ties them to the classic subway tile in other parts of the room.
Gas range: Bosch; floor and backsplash tile: Olympia Tile
Gas range: Bosch; floor and backsplash tile: Olympia Tile
The couple had already ordered a chimney vent hood in stainless steel before these design plans were complete. “We needed a chimney-style vent hood so that we’d have room to hang the pots, but the long stainless steel chute didn’t do their copper collection justice,” Giampietro says. He realized that this was a great opportunity to add a showstopping Art Deco element, and the clients were enthusiastically on board. Brandow got to work researching the appropriate motifs for a new chimney cover.
During her research, she was struck by the beauty of the Art Deco details on the 1925 Madison Belmont Building in New York City. As it turned out, the building was a favorite of Kirkland; he had visited it and knew it well. He suggested the transom over door number 181, designed by iconic Art Deco artist and metalworker Edgar Brandt, to use as the inspiration for the piece.
During her research, she was struck by the beauty of the Art Deco details on the 1925 Madison Belmont Building in New York City. As it turned out, the building was a favorite of Kirkland; he had visited it and knew it well. He suggested the transom over door number 181, designed by iconic Art Deco artist and metalworker Edgar Brandt, to use as the inspiration for the piece.
“One of the great things about having a fabrication shop in-house at our design studio is getting to try things we’ve never done before and making them work,” Giampietro says. The shop adjusted the motif from the historic building’s transom to fit on the vent hood chimney surround and fabricated it out of medium-density fiberboard.
Here you see the piece coming together (the red marks are spot putty). They added an epoxy coating, then color-matched it to the metallic shine of the copper cookware by using automotive paint.
To the left of the stove, another of the couple’s collections, their antique pressed-glass goblets, earned a place of honor. Glass-front cabinet doors, glass shelving and LED lights highlight the beautiful color and shape of each piece.
The two-tone cabinet scheme was inspired by the Art Deco era as well, and the designers took the colors from a tuxedo. “For the bottom cabinets, we wanted to ground the room and show some age to go with the patina of the copper pots,” Giampietro says. “We used black cabinets with a more robust color and wider rail.” They used black paint with a caramel rub-through stain that adds warmth and age. Oil-rubbed bronze bar pulls coordinate with the color scheme and nod to the Art Deco era.
Overhead, white cabinets with narrower rails and smaller bead detailing appear lighter. Glass fronts, knobs and shelving let the collections be the star.
Cabinet finishes: Black Licorice with Caramel rub-through (lowers) and Coconut Grove (uppers), Chestnut Grove
The two-tone cabinet scheme was inspired by the Art Deco era as well, and the designers took the colors from a tuxedo. “For the bottom cabinets, we wanted to ground the room and show some age to go with the patina of the copper pots,” Giampietro says. “We used black cabinets with a more robust color and wider rail.” They used black paint with a caramel rub-through stain that adds warmth and age. Oil-rubbed bronze bar pulls coordinate with the color scheme and nod to the Art Deco era.
Overhead, white cabinets with narrower rails and smaller bead detailing appear lighter. Glass fronts, knobs and shelving let the collections be the star.
Cabinet finishes: Black Licorice with Caramel rub-through (lowers) and Coconut Grove (uppers), Chestnut Grove
As big entertainers and cooks, Sa and Kirkland like a lot of room to move around in the middle of the kitchen, and they encourage guests to join in on the prep work and cooking. The butcher block-topped rolling cart helps them navigate the space and serves as a pit stop for incoming groceries, for items on their way from the refrigerator to the stove and for food to rest after it’s removed from the oven. The lower shelf provides more handy storage for cookware.
In the main sink work zone, the two-tone cabinet scheme continues. Giampietro created another prominent spot for Sa’s midcentury jadite containers, which add color and curves to the room. The classic beveled subway tile backsplash and beadboard are 1930s-appropriate and a good fit for a house near the beach.
Sink: Kohler
Sink: Kohler
The large cast-iron sink, the quartz countertop with marblelike veining and the triple-step detail on the cabinet valance all nod to the Art Deco era. Look closely to see how well the valance plays off the curves of some of the jadite canisters.
Countertops: 11219, TCE Stone
Countertops: 11219, TCE Stone
The triple-step detailing continues on the arched pass-through between the kitchen and the dining room. Through the opening you can see shelving along the dining room wall that provides more room for the couple’s collections. The side facing the dining room also has cabinet storage under the pass-through for silverware and other items. The end of the cabinet provides a great opportunity for the couple to keep their cookbook collection handy.
Rolling island: Total Tabletop Plus
Rolling island: Total Tabletop Plus
The couple’s lighting choices also were inspired by the 1930s. Although the ceiling-mount lights have some Art Deco style, they nod to the Prairie School as well. These simple pendants with tungsten lightbulbs add a historic industrial touch. Choosing bronze finishes for the lighting ties them together and unifies the bronze elements in the room.
With the room complete, Sa and Kirkland are enjoying cooking, entertaining and having their collections around them.
See more Kitchens of the Week
With the room complete, Sa and Kirkland are enjoying cooking, entertaining and having their collections around them.
See more Kitchens of the Week
















Kitchen of the Week
Who lives here: This is the full-time home of journalists Rachel Sa and Bruce Kirkland
Location: Upper Beaches neighborhood of Toronto
Size: 288 square feet (27 square meters)
Designers: Francesco Giampietro and Cassandra Brandow of Chestnut Grove Design Studio
The first thing Giampietro did was sit down with his clients and get to know them — learning about their travels, life experiences, careers and collections. “Both Rachel and Bruce are journalists. Bruce [a movie critic, among other things] had a clear passion for the film industry, and both he and Rachel had collections of antiques from the 1920s to 1940s,” he says. “After talking for a while I said, ‘I think your passion is Art Deco,’ and they said, ‘You’re absolutely right!’”
Bar sink: Kohler