Kitchen of the Week: Former Barn Gets a Modern Rustic Style
A designer opens up a closed-off kitchen and creates a warm and moody look with walnut cabinets and black details
A converted 1920 dairy barn provided interesting architectural elements — such as a cathedral ceiling with wood rafters — in this Connecticut home. But those elements, on display in the open dining room and living room, weren’t visible from the closed-off kitchen. The current homeowners reached out to designer Lana Nguyen to help open up the kitchen and create a warm, moody style that nods to the home’s barn roots.
Nguyen removed walls to connect the spaces. A peninsula creates seating and a work surface. New casement windows frame a wooded landscape and bring in fresh air. A mix of rich walnut and soft black cabinets joins dark Negresco granite countertops for dramatic rustic style. Blue backsplash tiles have a handmade look with a subtle curved line pattern that adds visual interest.
Nguyen removed walls to connect the spaces. A peninsula creates seating and a work surface. New casement windows frame a wooded landscape and bring in fresh air. A mix of rich walnut and soft black cabinets joins dark Negresco granite countertops for dramatic rustic style. Blue backsplash tiles have a handmade look with a subtle curved line pattern that adds visual interest.
After: This view from about the same angle shows the more open kitchen with the new peninsula. “It gives you that direct connection to the kitchen,” Nguyen says.
Small fluted blue-gray glass tiles cover the back of the peninsula. “A lot of our decisions were about bringing light to the space,” Nguyen says. “Even though we are using darker colors, this is how you bring lightness to a space that is more moody.” A built-in beverage refrigerator is on the far right of the peninsula, giving access to drinks from the dining room or living room without the need to enter the kitchen. A pair of barn-style outdoor sconces with gooseneck stems and wide metal shades hang over the peninsula.
Sconces: RLM 1 light outdoor wall sconce in Architectural Bronze, Millennium Lighting
Shop for bar and counter stools
Small fluted blue-gray glass tiles cover the back of the peninsula. “A lot of our decisions were about bringing light to the space,” Nguyen says. “Even though we are using darker colors, this is how you bring lightness to a space that is more moody.” A built-in beverage refrigerator is on the far right of the peninsula, giving access to drinks from the dining room or living room without the need to enter the kitchen. A pair of barn-style outdoor sconces with gooseneck stems and wide metal shades hang over the peninsula.
Sconces: RLM 1 light outdoor wall sconce in Architectural Bronze, Millennium Lighting
Shop for bar and counter stools
Before: The former kitchen had a palette of dated brown tones — aging knotty pine cabinets, wood countertops and ceramic tile flooring. The space in the foreground with a built-in bench on the right, meant to be a breakfast nook, ate up valuable square footage. “It was tiny,” Nguyen says. “It was too small for them.” The doorway on the left led to the living room. A bulky refrigerator stuck out into the space. A structural beam made the kitchen feel even more closed-in.
After: Nguyen knocked the kitchen back to the studs, removed two walls and raised the structural beam into the ceiling, which helped lighten the look and feel of the space. “It was a pain, but it allowed us to enlarge the space and let in more light,” she says.
She kept the location of the range the same but shifted the sink over a few inches to center it on the new windows. She also closed up the former doorway to the living room in order to move the location of the new counter-depth black stainless steel fridge over and create more storage on that wall.
The wood cabinets are custom full-overlay walnut veneer with flat-panel fronts and flat black pulls in different sizes. Additional cabinet units on the left and right feature a soft black paint (Iron Mountain by Benjamin Moore). New 5-inch-wide white oak character-grade floor planks with a dark stain coordinate with the refinished original flooring elsewhere in the home. “They wanted that rustic kind of look that fit with the barn,” Nguyen says.
Cabinet pulls: Riverside, Top Knobs; refrigerator: KitchenAid; ceiling paint: White Dove, Benjamin Moore
Find kitchen remodelers near you
She kept the location of the range the same but shifted the sink over a few inches to center it on the new windows. She also closed up the former doorway to the living room in order to move the location of the new counter-depth black stainless steel fridge over and create more storage on that wall.
The wood cabinets are custom full-overlay walnut veneer with flat-panel fronts and flat black pulls in different sizes. Additional cabinet units on the left and right feature a soft black paint (Iron Mountain by Benjamin Moore). New 5-inch-wide white oak character-grade floor planks with a dark stain coordinate with the refinished original flooring elsewhere in the home. “They wanted that rustic kind of look that fit with the barn,” Nguyen says.
Cabinet pulls: Riverside, Top Knobs; refrigerator: KitchenAid; ceiling paint: White Dove, Benjamin Moore
Find kitchen remodelers near you
Before: Here’s a closer look at the former kitchen’s range wall. Upper cabinets and the microwave were hung below the structural beam, creating a cramped look and feel.
After: A new 36-inch counter-depth freestanding induction range with convection oven features a dark finish that complements the black cabinets, black refrigerator, custom metal-look laminate range hood and Negresco granite countertops. Two midcentury-style black metal sconces flanking the hood also coordinate with the dark elements.
The backsplash is blue porcelain tile with a handmade look, a textured finish and subtle curved lines on some of the tiles. “They have a very rustic feel — the edging isn’t very defined,” Nguyen says. “We liked the blue color and that they bring in more light from outside from the windows. The irregular pattern was also a fun focal point or point of interest.” A sleek natural stone shelf offers space for cooking items and decorative accessories.
Backsplash: Nakama Blue and Wabi Blue, Enso collection, WOW; range: Master series, Bertazzoni
9 Kitchen Remodeling Trends Everyone Should Know About Now
The backsplash is blue porcelain tile with a handmade look, a textured finish and subtle curved lines on some of the tiles. “They have a very rustic feel — the edging isn’t very defined,” Nguyen says. “We liked the blue color and that they bring in more light from outside from the windows. The irregular pattern was also a fun focal point or point of interest.” A sleek natural stone shelf offers space for cooking items and decorative accessories.
Backsplash: Nakama Blue and Wabi Blue, Enso collection, WOW; range: Master series, Bertazzoni
9 Kitchen Remodeling Trends Everyone Should Know About Now
Nguyen added a piece of Negresco granite to the front of the 32-inch undermount stainless steel single-bowl sink. “It’s not really farmhouse, but we wanted to create a luxurious look using the stone front,” she says.
A bronze pull-down faucet coordinates with the other dark finishes. A stainless steel dishwasher sits to the right of the sink. A paneled trash and recycling pullout is to the left.
New wood-and-vinyl casement windows bring in fresh air and views of the backyard garden. “We actually eliminated one of the existing windows,” Nguyen says. “They were very afraid to lose one of the windows, but I was able to convince them that by grouping all the windows together we could allow more light into the space and enlarge the view. We could also create symmetry.” The wall sections around the windows are painted the same black as the cabinets (Benjamin Moore’s Iron Mountain). The interior of the peninsula holds a new 27-inch built-in microwave.
Windows: 400 series casement, Andersen Windows + Doors
Where Designers Would Spend and Save in a Kitchen
A bronze pull-down faucet coordinates with the other dark finishes. A stainless steel dishwasher sits to the right of the sink. A paneled trash and recycling pullout is to the left.
New wood-and-vinyl casement windows bring in fresh air and views of the backyard garden. “We actually eliminated one of the existing windows,” Nguyen says. “They were very afraid to lose one of the windows, but I was able to convince them that by grouping all the windows together we could allow more light into the space and enlarge the view. We could also create symmetry.” The wall sections around the windows are painted the same black as the cabinets (Benjamin Moore’s Iron Mountain). The interior of the peninsula holds a new 27-inch built-in microwave.
Windows: 400 series casement, Andersen Windows + Doors
Where Designers Would Spend and Save in a Kitchen
A cabinet faced with reeded glass sits on either end of the sink wall, including this one to the right of the sink area. “We wanted to bring more light into the space,” Nguyen says. “Making it reeded makes things lighter but it also allows you to have things not look busy.”
28 Home Design Trends That Will Define 2024
28 Home Design Trends That Will Define 2024
This photo shows the more open connection between the kitchen, dining room and living room. “This space cannot accommodate an island with this layout,” Nguyen says. “I think people are often turned off by the idea of a peninsula. But I always tell them you can create a peninsula that feels like an island, but you actually don’t need an island.”
Stools: Sede, Article
New to home remodeling? Learn the basics
Stools: Sede, Article
New to home remodeling? Learn the basics
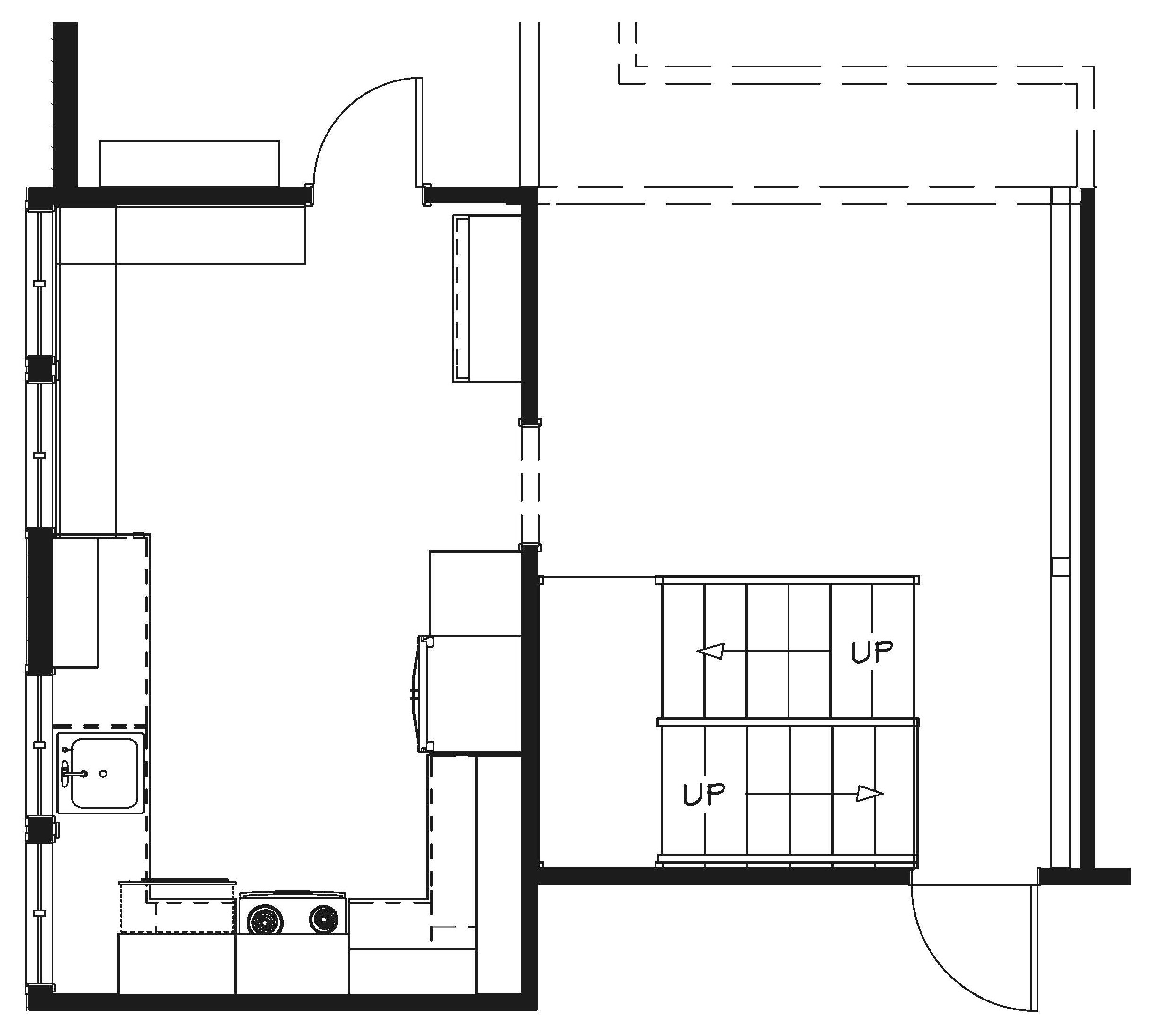
Before: This floor plan shows the layout of the former kitchen on the left. The dining room would be at the top left and the living room at the top right. The range sits along the wall at bottom left. You can see how the kitchen was closed off via the dining room door (top left) and living room door (center).
After: Nguyen removed two walls and added a peninsula (top left) to provide better connection to the surrounding spaces. The range (bottom left) stayed in the same spot but the sink (left middle) now sits symmetrically on the window wall. The fridge (center) shifted over slightly.
“Now the family has a larger, open space that can accommodate everyday casual dining and gathering for holiday dinners,” Nguyen says. “And the clients love the kitchen because it looks like it’s been there forever.”
More on Houzz
Read more kitchen stories
Browse kitchen photos
Hire a kitchen remodeler
Shop for kitchen products
“Now the family has a larger, open space that can accommodate everyday casual dining and gathering for holiday dinners,” Nguyen says. “And the clients love the kitchen because it looks like it’s been there forever.”
More on Houzz
Read more kitchen stories
Browse kitchen photos
Hire a kitchen remodeler
Shop for kitchen products














Kitchen at a Glance
Who lives here: A couple with teenagers
Location: Branford, Connecticut
Size: 223 square feet (21 square meters)
Designer: Lana Nguyen of Design by the Jonathans
Before: This photo taken from the dining room prior to the remodel shows the closed-off kitchen through the open door. The living room is out of view to the left. The layout limited connection among the spaces.
“I saw an opportunity there,” Nguyen says. “It didn’t make any sense for this kitchen to be completely isolated from the rest of the house. I thought it would be perfect to have it open and have a peninsula there, with both seating and storage.”