Kitchen of the Week: Light-Filled Update in Wood, White and Black
A designer opens up a cramped family kitchen with more natural light, a larger island and a striking dark-stained bar
This Michigan couple with two young kids wanted to update their bland and dated kitchen. Heavy upper cabinets crowded two corner windows and blocked natural light. A small island lacked both seating and storage, and the refrigerator jutted out past the cabinetry. A narrow pantry tucked into a nearby hallway added to the cramped feel.
To reimagine the kitchen and the rest of the first floor, the couple hired designer Heather Vercellino, who uses Houzz Pro software to manage her projects. Vercellino removed upper cabinets on two walls and added four double-hung windows, flooding the space with light. A larger island now offers generous seating and storage, while custom white oak and walnut cabinets bring warmth and depth. A striking new bar with dark-stained cabinetry adds a touch of glamour. Finishing details — an elegant French range, layered lighting and a hidden pantry — complete this bright, functional space designed for easy everyday living and entertaining.
To reimagine the kitchen and the rest of the first floor, the couple hired designer Heather Vercellino, who uses Houzz Pro software to manage her projects. Vercellino removed upper cabinets on two walls and added four double-hung windows, flooding the space with light. A larger island now offers generous seating and storage, while custom white oak and walnut cabinets bring warmth and depth. A striking new bar with dark-stained cabinetry adds a touch of glamour. Finishing details — an elegant French range, layered lighting and a hidden pantry — complete this bright, functional space designed for easy everyday living and entertaining.
After: Vercellino stripped the kitchen to the studs and started fresh. She removed the upper cabinets and added four double-hung windows, turning the once-dark space into a bright and airy hub. “I think one of the biggest challenges was that corner sink,” Vercellino says. “Eliminating the corner sink meant we needed symmetry in the kitchen. Moving the new sink to the center of the exterior wall led to the suggestion of adding additional windows. This created a really beautiful focal point.”
Custom European-style full-overlay rift-sawn white oak cabinets line the perimeter, paired with a walnut island and tower storage in the right corner. Hardware in unlacquered brass and oil-rubbed bronze varies in size and style. “We mixed hardware and metals throughout,” Vercellino says. “From drawer pulls and appliance pulls to cup pulls and knobs.”
By reconfiguring an adjoining staircase, Vercellino gained 25 square feet for a more spacious layout and a larger island. (Stools were added after these photos were taken.) A black marble-look quartz countertop with a wraparound overhang adds contrast to the white Carrara marble-look quartz on the perimeter counters and complements the statement black range. “They didn’t want a kitchen that looks like everyone else’s kitchen,” Vercellino says. “It gives it that custom look.”
The natural red oak floor was refinished in a custom stain with a hint of whitewash to soften the red tones.
Find a kitchen designer on Houzz
Custom European-style full-overlay rift-sawn white oak cabinets line the perimeter, paired with a walnut island and tower storage in the right corner. Hardware in unlacquered brass and oil-rubbed bronze varies in size and style. “We mixed hardware and metals throughout,” Vercellino says. “From drawer pulls and appliance pulls to cup pulls and knobs.”
By reconfiguring an adjoining staircase, Vercellino gained 25 square feet for a more spacious layout and a larger island. (Stools were added after these photos were taken.) A black marble-look quartz countertop with a wraparound overhang adds contrast to the white Carrara marble-look quartz on the perimeter counters and complements the statement black range. “They didn’t want a kitchen that looks like everyone else’s kitchen,” Vercellino says. “It gives it that custom look.”
The natural red oak floor was refinished in a custom stain with a hint of whitewash to soften the red tones.
Find a kitchen designer on Houzz
The classic white farmhouse sink is centered beneath the new windows overlooking the lush backyard. It’s paired with a refined widespread bridge faucet in polished nickel. “I love the warm undertones of the polished nickel with the brass we have in this kitchen — it just pairs beautifully,” Vercellino says. “And with the corner sink, it was a problem even loading the dishwasher. It trapped you in that corner.”
A paneled dishwasher sits to the left of the sink; a matching trash and recycling pullout is to the right. Three bronze wall sconces with white glass shades illuminate the area, complemented by new LED recessed ceiling lights for general lighting. On the island end facing the range wall, drawers of various sizes keep pots, pans and cooking essentials organized and within easy reach.
Sconces: Parkington single library wall light in bronze, Visual Comfort; faucet: Georgian Era widespread bridge in polished nickel, Perrin & Rowe
Before and After: 4 Gorgeous White, Black and Wood Kitchens
A paneled dishwasher sits to the left of the sink; a matching trash and recycling pullout is to the right. Three bronze wall sconces with white glass shades illuminate the area, complemented by new LED recessed ceiling lights for general lighting. On the island end facing the range wall, drawers of various sizes keep pots, pans and cooking essentials organized and within easy reach.
Sconces: Parkington single library wall light in bronze, Visual Comfort; faucet: Georgian Era widespread bridge in polished nickel, Perrin & Rowe
Before and After: 4 Gorgeous White, Black and Wood Kitchens
The black French range with a ceramic glass induction cooktop and two electric convection ovens males a stunning focal point. “They really loved the accent of black being a focal point and cohesion for the new bar,” Vercellino says. “It’s a work of art.”
Above the range, a black arched hood with unlacquered brass trim adds drama and sophistication. It features multiple speeds for efficient ventilation, LED lighting and electronic touch controls. A shallow quartz shelf offers a stylish spot for accessories and salt and pepper shakers.
Above the shelf and wrapping the window wall is hand-glazed 4-by-4-inch natural clay zellige tiles installed in a dry-stack method with minimal grout. Their tonal variation adds rich texture and depth. “The backsplash frames the windows and creates a dramatic wow factor,” Vercellino says.
Range and hood: CornuFé, La Cornue
How to Design a Kitchen That Brings People Together
Above the range, a black arched hood with unlacquered brass trim adds drama and sophistication. It features multiple speeds for efficient ventilation, LED lighting and electronic touch controls. A shallow quartz shelf offers a stylish spot for accessories and salt and pepper shakers.
Above the shelf and wrapping the window wall is hand-glazed 4-by-4-inch natural clay zellige tiles installed in a dry-stack method with minimal grout. Their tonal variation adds rich texture and depth. “The backsplash frames the windows and creates a dramatic wow factor,” Vercellino says.
Range and hood: CornuFé, La Cornue
How to Design a Kitchen That Brings People Together
Above the island, a pair of large modern schoolhouse pendant lights in antique brass with frosted glass shades cast a soft, inviting glow. “I showed these lights to them very early on in the design process and they loved them,” Vercellino says. “They’re one of their favorite parts of the kitchen.”
Across the island, the new paneled refrigerator blends seamlessly with the cabinetry. To its left, a matching paneled door opens to the butler’s pantry. (See below.)
This view also shows the walnut storage tower in the back corner, where glass along the center section and wire detailing above add texture and visual interest.
Pendant lights: Modern Schoolhouse Lantern in antique brass, Visual Comfort
Across the island, the new paneled refrigerator blends seamlessly with the cabinetry. To its left, a matching paneled door opens to the butler’s pantry. (See below.)
This view also shows the walnut storage tower in the back corner, where glass along the center section and wire detailing above add texture and visual interest.
Pendant lights: Modern Schoolhouse Lantern in antique brass, Visual Comfort
The walnut tower showcases fine glassware and dishware. “That tower has lighting inside and it glows really beautifully at night with all the other layers of light in the kitchen,” Vercellino says. The upper cabinet displays decorative pieces. Deep drawers below add more storage. A microwave drawer on the island sits conveniently across from the refrigerator and pantry.
25 Kitchen Storage Features Pros Swear By
25 Kitchen Storage Features Pros Swear By
To the right of the storage tower, a door disguised as cabinetry opens to the fully equipped butler’s pantry, complete with an undermount stainless steel sink, dishwasher, wall oven and shelves for dry goods and small appliances. LED strip lights under the shelves illuminate the workspace. “It has an automatic light so when you walk in the lights turn on,” Vercellino says. “It’s almost an extended prep space with all of the features. It gets utilized a lot for prep space and hosting.”
Before and After: 4 Fresh White-and-Wood Kitchens
Before and After: 4 Fresh White-and-Wood Kitchens
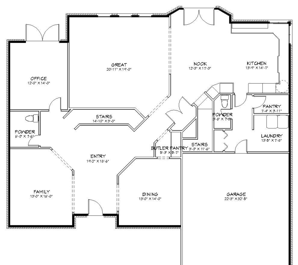
Before: In the original layout, an angled section combined a staircase, cabinetry, a coat closet behind double doors and a butler’s pantry (not shown). A narrow hallway on the left led to a walk-in pantry, powder room and laundry. (See “before” floor plan below.) The homeowners wanted to simplify and streamline this area.
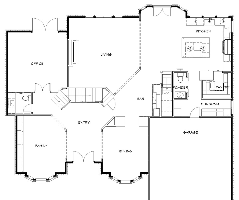
After: Vercellino relocated the laundry room to an oversize landing near the bedrooms upstairs, straightened the staircase and removed the coat closet and butler’s pantry. In the newly streamlined space, she created a glamorous wet bar with dark-stained cabinetry. Designed for a morning coffee or an evening cocktail, the one-stop setup includes a sink, integrated coffee maker, ice maker, refrigerator, freezer, wine fridge and bottles of spirits the homeowners collected during their travels. The doorway connects the bar and kitchen to the dining room.
“One of the things they talked about from the very beginning was their love of hosting,” Vercellino says. “This provided the ability to expand their hosting experience with a full bar setup that accommodates from morning to evening. And obviously, it’s kind of a flex.”
New to home remodeling? Learn the basics
“One of the things they talked about from the very beginning was their love of hosting,” Vercellino says. “This provided the ability to expand their hosting experience with a full bar setup that accommodates from morning to evening. And obviously, it’s kind of a flex.”
New to home remodeling? Learn the basics
Before: The kitchen and eating nook (top right) were tucked at the back of the home. (The former small island isn’t shown in this floor plan.) A doorway led to a transitional zone with a pantry, powder room, laundry and garage access (bottom right). The angled staircase (center right) sat beside the coat closet and a cramped butler’s pantry near the front entry. “That butler’s pantry was small and crowded,” Vercellino says. “Almost claustrophobic.”
After: The new layout created a more cohesive kitchen centered around a larger island. A hidden pantry in the kitchen offers easy access to dry goods and small appliances. Straightening the staircase and removing the coat closet and butler’s pantry made space for a new wet bar.
A revamped transitional zone with powder room and mudroom between the kitchen and garage streamlines daily life for the family. “The natural materials, warm finishes and technology of the appliances make this kitchen feel functional and welcoming,” Vercellino says.
More on Houzz
Read more stories
Browse photos for ideas
Find home professionals
A revamped transitional zone with powder room and mudroom between the kitchen and garage streamlines daily life for the family. “The natural materials, warm finishes and technology of the appliances make this kitchen feel functional and welcoming,” Vercellino says.
More on Houzz
Read more stories
Browse photos for ideas
Find home professionals













Kitchen at a Glance
Who lives here: A couple with two kids, ages 3 and 5
Location: Oakland Township, Michigan
Size: 440 square feet (41 square meters)
Designer: Heather Vercellino of Verce Design
Before: The 415-square-foot traditional-style kitchen had short, glazed cream cabinets and granite counters that gave the space a bland, dated look. Corner windows above a corner sink let in some light, but upper cabinets flanking them blocked much of it. “It definitely felt dark and lacking in a lot of function,” Vercellino says. “There was a lot of clutter and a lack of drawer storage.”
A small electric cooktop on the back wall felt lost. A petite island that sat beneath an oversize chandelier offered little in the way of seating and storage. The refrigerator on the right stuck out awkwardly. “It was dysfunctional with the way the refrigerator protruded out,” Vercellino says. “The placement of the island in relation to the functional elements was a disruption.”
The homeowners wanted to keep an open eating nook off the kitchen, partially visible at the bottom left. A narrow hallway near the refrigerator connected to a powder room, laundry room and cluttered pantry — all of which needed rethinking. “It was really narrow and not pretty to look at,” Vercellino says. The homeowners liked the existing wood floor but it needed refinishing.
Vercellino uses Houzz Pro software for project management. “We use it for proposals, product tracking, bookkeeping and things,” she says. “We use it from onboarding to project completion. It’s great and I would be lost without it.”
See why you should hire a professional who uses Houzz Pro software