Kitchen of the Week: Modern Details Make Entertaining Easy
A kitchen opens up to create a more functional space for a couple who love to cook with guests
The owners of this kitchen in Bellevue, Washington, love to cook and would regularly host gatherings of more than 20 people. The couple, who also love modern architecture, knew their cluttered kitchen wasn’t cutting it. They clicked with April Bettinger, owner of Nip Tuck Remodeling, at a golf event, and hired her to remodel their entire house.
“They’d started a bathroom on their own and realized they were in over their heads and needed help,” Bettinger says. As she does with every client, she “gave them homework,” using Houzz ideabooks to collect inspiration images, share comments and collaborate. Their goal was a modern, functional kitchen with smooth cabinetry free of hardware — minimalist but warm.
“They’d started a bathroom on their own and realized they were in over their heads and needed help,” Bettinger says. As she does with every client, she “gave them homework,” using Houzz ideabooks to collect inspiration images, share comments and collaborate. Their goal was a modern, functional kitchen with smooth cabinetry free of hardware — minimalist but warm.
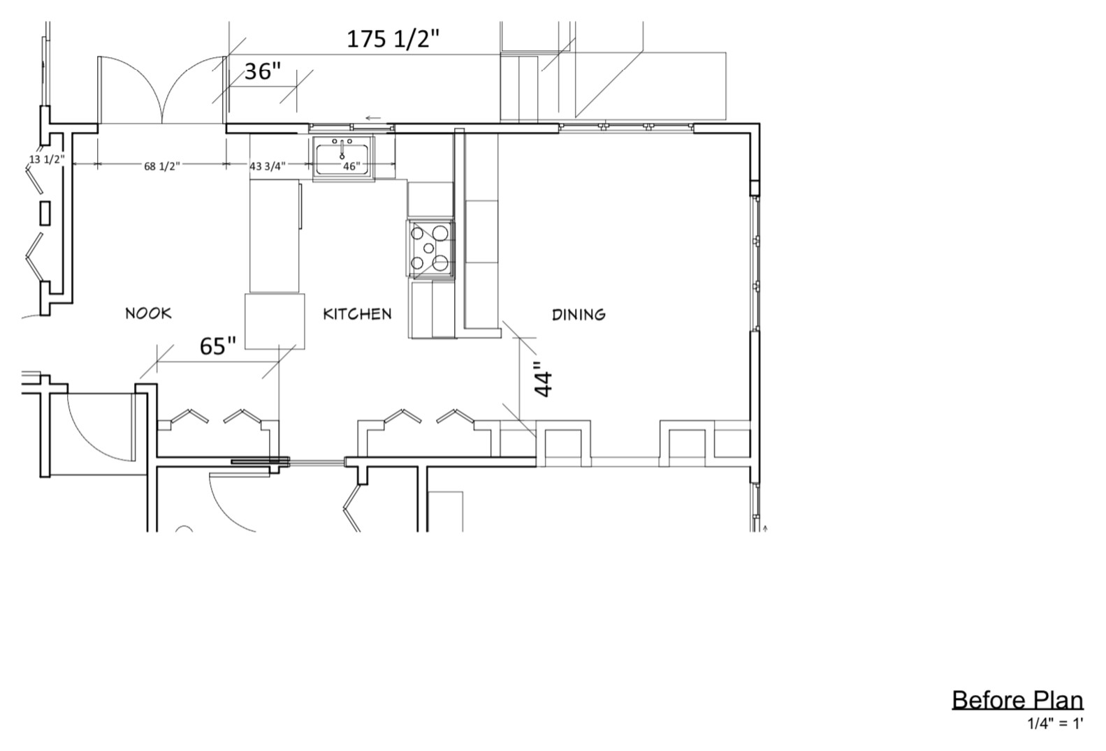
Before: The tiny kitchen was a separate, compartmentalized room sandwiched between a breakfast nook and the dining room. “When I walked in, it was a postage stamp of a kitchen,” Bettinger says. “If it was 10 by 10 feet, that was generous. There was an adjoining dining room, and the area wanted to be one big space.”
In addition to being cramped, the kitchen had dated cabinets and tile counters. It wasn’t conducive to having more than a few people in it at a time.
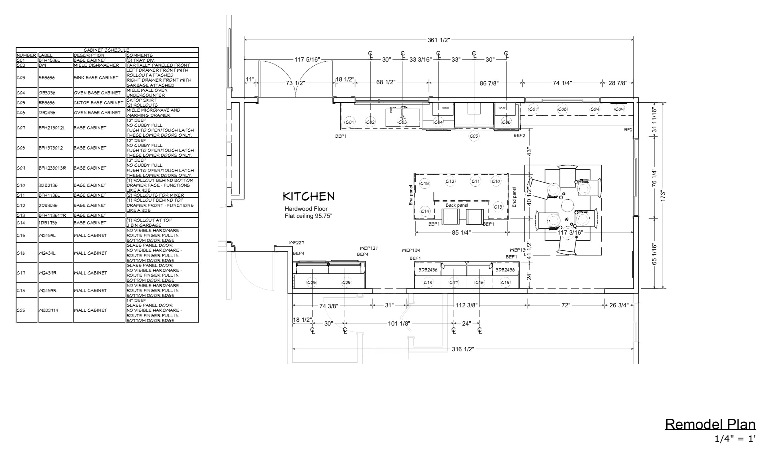
After: The team removed a wall separating the kitchen from the dining room and took out the cabinets and refrigerator on the opposite side. It installed new oak flooring. It kept a skylight over the sink, which remained in the same location, and enlarged the window. Symmetry was important to the homeowners, so the existing skylights remained lined up over the windows and the French doors, Bettinger says.
The team also delivered on the homeowners’ wish for smooth cabinetry with no hardware. It used a combination of notched cutouts, push-to-open magnets and channels under cabinets to substitute for hardware pulls.
Shop for kitchen and dining furniture
The team also delivered on the homeowners’ wish for smooth cabinetry with no hardware. It used a combination of notched cutouts, push-to-open magnets and channels under cabinets to substitute for hardware pulls.
Shop for kitchen and dining furniture
Here’s a view looking toward the area that opened up after a wall of cabinets and the refrigerator were removed. The changes made room for a spacious new island.
New to home remodeling? Learn the basics
New to home remodeling? Learn the basics
Before: Here’s a view from the old dining nook, which included a pass-through to the kitchen.
These floor plans of the kitchen’s previous layout (above) and the remodel plan (next image) show how the space was opened up by combining the nook, kitchen and dining room.
When the design-build team removed the barriers that had partitioned the space, it increased the kitchen’s size by more than 300 square feet.
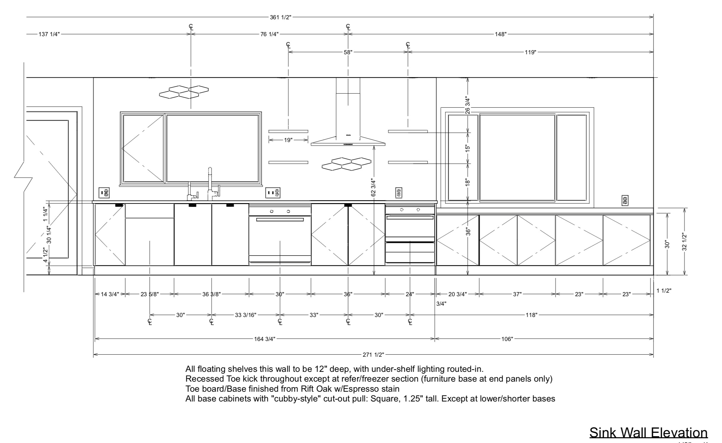
After: The team installed an induction cooktop, which is powered by electricity and uses copper coils to evenly heat cookware with a magnetic current. Glossy elongated hexagonal porcelain tile on the backsplash reflects light and provides a burst of artistic flair. The tile installers used urethane grout on the backsplash to make it easy to clean. Floating shelves made of vertical-grain fir keep fresh items at hand when cooking, and LED lights underneath them further brighten the space.
Cooktop and ventilation hood: Miele; tile: Verdon in Dove, Cepac Tile
Cooktop and ventilation hood: Miele; tile: Verdon in Dove, Cepac Tile
The window that was replaced and enlarged offers a view of a creek in the backyard. The designers chose subway tile trim in the window frame to complement the backsplash tile. A stainless steel undermount sink and sleek fixtures that include a hot-cold water filtration faucet round out the modern aesthetic.
Window trim tile: Continental subway in Glossy White, Cepac Tile
Window trim tile: Continental subway in Glossy White, Cepac Tile
The team created a sleek and smooth wall of fir cabinetry with built-in appliances that include a dishwasher, a speed oven and a base oven with a warming drawer, all from Miele. The speed oven combines the features of a full oven with a microwave. Nip Tuck’s cabinet supplier created the wood panel on the dishwasher, leaving room at the top for the controls. The toe kicks were painted a dark color to correspond with the black aluminum window frames and black-framed French doors.
The oven unit includes a warming drawer.
Here are measurements for the cabinetry and appliances on the wall with the sink and enlarged window.
For the island, the designers continued the look of the rest of the kitchen’s finishes with smooth fir cabinetry and a Caesarstone quartz top in Organic White. There’s a spacious work surface, ample storage for tools and appliances, and seating for family members who visit while meals are being prepared.
Appliances are neatly concealed in the island’s slide-out drawers. The team designed the island to be storage-friendly, since some cabinetry was sacrificed to accommodate undercounter refrigerators and freezers, Bettinger says.
Bettinger says the homeowners were adamant about having no traditional tall refrigeration or pantry, so the team opted for undercounter refrigerator and freezer drawers and two built-in beverage refrigerators. Here’s a view of the kitchen’s mix of closed and glass-front cabinetry, with the beverage refrigerators on the left and refrigerators and freezers on the right. The view through the doorway is to the home’s entry.
The owners use one of the beverage refrigerators for condiments and the other for beverages.
Beverage refrigerators: True
Beverage refrigerators: True
A cabinet with a coffee station and open shelving and cabinet above it for drink supplies contains the double-drawer refrigerators on the left and freezers on the right.
Refrigerators and freezers: Sub-Zero
Refrigerators and freezers: Sub-Zero
The pull-open refrigerator (left) and freezer (right) drawers have plenty of capacity for daily food needs, Bettinger says.
The dining area of the kitchen fulfills the homeowners’ wishes for a more functional space. Before the renovation, for large family gatherings they would have to drag the dining table into the living room. Now the entire table fits in the kitchen. A table-height bar counter of PaperStone, a stone-like product of recycled paper and resin, runs under the original dining room window and is a multifunctional spot used as a desk for puzzles and projects, as well as extra seating and a buffet when entertaining.
The transition from kitchen counter to the black bar visually signifies a change in function, but the areas still tie together. “We had to find ways to make it look like it was one space,” Bettinger says. “That’s why the countertop drops, why the color stops, so we could find a place to stop the kitchen.”
Bettinger got to experience the benefits of the new kitchen at a dinner party the owners hosted right before the pandemic shut things down. “Everybody was sitting at chairs around the island and fresh food was out,” she says. “It was about bringing people into their home, saying, ‘Let’s cook together.’ It was about wanting to share their home and food with others.”
Wall paint: High Reflective White, Sherwin-Williams
More on Houzz
Read more Kitchen of the Week stories
Find a kitchen professional
Shop for kitchen and dining products
The transition from kitchen counter to the black bar visually signifies a change in function, but the areas still tie together. “We had to find ways to make it look like it was one space,” Bettinger says. “That’s why the countertop drops, why the color stops, so we could find a place to stop the kitchen.”
Bettinger got to experience the benefits of the new kitchen at a dinner party the owners hosted right before the pandemic shut things down. “Everybody was sitting at chairs around the island and fresh food was out,” she says. “It was about bringing people into their home, saying, ‘Let’s cook together.’ It was about wanting to share their home and food with others.”
Wall paint: High Reflective White, Sherwin-Williams
More on Houzz
Read more Kitchen of the Week stories
Find a kitchen professional
Shop for kitchen and dining products
























Kitchen at a Glance
Who lives here: A couple
Location: Bellevue, Washington
Size: 433 square feet (40 square meters)
Designer and builder: Lead designer Allison Scott, Nip Tuck Remodeling
“They really wanted a custom, sleek and modern space,” Bettinger says. “They had some interesting and unique requests. They’re both art-forward and art-driven, so everything we did had to combine these needs.” The team delivered a kitchen that combines custom cabinetry, sleek finishes, handy conveniences for cooking and plenty of room for family and friends.
Find a design-build firm near you