Kitchen of the Week: Organic Modern Style for a Chef and a Baker
Warm and light-filled, this minimalist kitchen in California gets its character from beautiful wood grains
Becky Harris
March 22, 2019
Houzz Contributor. Hi there! I live in a 1920s cottage in Atlanta that I'll describe as "collected."
I got into design via Landscape Architecture, which I studied at the University of Virginia. I've been writing about design online for quite a few years over at Hatch: The Design Public Blog.
Houzz Contributor. Hi there! I live in a 1920s cottage in Atlanta that I'll describe... More
Photos by Helynn Ospina Photography
Kitchen at a Glance
Who uses it: A chef and a baker
Location: Woodacre, California
Size: 330 square feet (31 square meters) including the dining space
Architect: Craig O’Connell Architecture
Northern Californians Nick and Arielle Giusto make magic in the kitchen. Nick is a fourth-generation miller and baker and helps run the family business, which provides restaurants and bakeries with premium-quality flour and grains. Arielle is a talented chef who caters and has helped open several popular restaurant kitchens in the area. So their dated kitchen with limited counter space, low ceilings and a lack of social space was not cutting the mustard for them.
Architect Craig O’Connell designed a light-filled, airy space that connects to the outdoors and the region, reflects the couple’s tastes and gives them all the room they need to prepare delicious food together and entertain.
Expanding Out and Up
The project was a full renovation. O’Connell expanded the kitchen’s footprint by taking over an adjacent office space, removed an 8-foot drop ceiling to allow for a cathedral ceiling with reclaimed beams and installed three 6-foot-wide windows. The office wall O’Connell removed was to the right of the range. The existing roofline allowed for the new ceiling height.
Find an architect for your next project on Houzz
Kitchen at a Glance
Who uses it: A chef and a baker
Location: Woodacre, California
Size: 330 square feet (31 square meters) including the dining space
Architect: Craig O’Connell Architecture
Northern Californians Nick and Arielle Giusto make magic in the kitchen. Nick is a fourth-generation miller and baker and helps run the family business, which provides restaurants and bakeries with premium-quality flour and grains. Arielle is a talented chef who caters and has helped open several popular restaurant kitchens in the area. So their dated kitchen with limited counter space, low ceilings and a lack of social space was not cutting the mustard for them.
Architect Craig O’Connell designed a light-filled, airy space that connects to the outdoors and the region, reflects the couple’s tastes and gives them all the room they need to prepare delicious food together and entertain.
Expanding Out and Up
The project was a full renovation. O’Connell expanded the kitchen’s footprint by taking over an adjacent office space, removed an 8-foot drop ceiling to allow for a cathedral ceiling with reclaimed beams and installed three 6-foot-wide windows. The office wall O’Connell removed was to the right of the range. The existing roofline allowed for the new ceiling height.
Find an architect for your next project on Houzz
Before: The ceilings were low, there wasn’t much natural light and there wasn’t enough counter space for the couple to work in here together. “Nick needs a lot of room for rolling dough and flour and baking in general,” O’Connell says.
The larger footprint gave O’Connell room to flank the range with 72-inch-wide awning windows. They provide expansive views of the tree canopy — this works beautifully with the prominent graining in the sycamore cabinets below. “I carefully designed the windows and the hood in elevation with how they would meet and [with] the views in mind,” he says.
The two culinary professionals needed a serious range, and they chose a 48-inch red model from BlueStar that revs up the room with color. The countertops on either side of the range are cypress butcher block, providing plenty of room for chopping. A new solar-powered operable skylight by Velux is located close to the range. “While the vent hood works well, Arielle says the skylight really helps air things out when she’s got a lot cooking on the stove,” O’Connell says.
The couple knew they wanted copper on the vent hood, which the architect designed to fit the space. It brings in a rich patina that works beautifully with the wood and the Italian marble backsplash. The marble adds elegance and contrasts with the rustic elements.
“The Giustos knew they wanted Italian marble here, but Arielle warns that it is not easy to keep clean with cooking splatters,” O’Connell says. “But it was worth it to them.”
The two culinary professionals needed a serious range, and they chose a 48-inch red model from BlueStar that revs up the room with color. The countertops on either side of the range are cypress butcher block, providing plenty of room for chopping. A new solar-powered operable skylight by Velux is located close to the range. “While the vent hood works well, Arielle says the skylight really helps air things out when she’s got a lot cooking on the stove,” O’Connell says.
The couple knew they wanted copper on the vent hood, which the architect designed to fit the space. It brings in a rich patina that works beautifully with the wood and the Italian marble backsplash. The marble adds elegance and contrasts with the rustic elements.
“The Giustos knew they wanted Italian marble here, but Arielle warns that it is not easy to keep clean with cooking splatters,” O’Connell says. “But it was worth it to them.”
Another 72-inch awning window provides a beautiful view over the sink. “Nick and Arielle have an amazing terraced garden outside, which makes for a great view,” O’Connell says. The concrete counters, copper faucet and wood cabinetry and trim complement the garden. The simple silhouette of the one-handle faucet with integrated sprayer is in keeping with the minimalist aesthetic.
Local Flavor
It was important to the couple that the design be “of the place.” O’Connell used meaningful local materials and expert craftspeople. For example, the ceiling beams were milled from reclaimed old piers that had been buried in San Francisco Bay.
The reclaimed piers, the cypress countertops and shelves and the sycamore live-edge peninsula counter and cabinet wood came from local reclaimed-wood dealer Evan Shively of Arborica. “This was definitely a site to visit with the clients. We looked at all kinds of woods, and the homeowners found the ones that spoke to them,” O’Connell says.
San Francisco company [RE] Union Creative fabricated the custom stained concrete countertop and integrated sink. Petaluma craftsman Cemil Hope made the custom sycamore cabinets.
Shop for a copper kitchen faucet on Houzz
Local Flavor
It was important to the couple that the design be “of the place.” O’Connell used meaningful local materials and expert craftspeople. For example, the ceiling beams were milled from reclaimed old piers that had been buried in San Francisco Bay.
The reclaimed piers, the cypress countertops and shelves and the sycamore live-edge peninsula counter and cabinet wood came from local reclaimed-wood dealer Evan Shively of Arborica. “This was definitely a site to visit with the clients. We looked at all kinds of woods, and the homeowners found the ones that spoke to them,” O’Connell says.
San Francisco company [RE] Union Creative fabricated the custom stained concrete countertop and integrated sink. Petaluma craftsman Cemil Hope made the custom sycamore cabinets.
Shop for a copper kitchen faucet on Houzz
To emphasize the grain of the sycamore and maintain the room’s minimalist aesthetic, O’Connell used drawer reveals instead of adorning the cabinetry with hardware. Open shelves in the lower cabinet to the right of the stool contain cookbooks.
The floors are large-format ceramic tiles that look like gray concrete. This contributes to the organic modern feel of the room. The new floors are also heated. The architect tucked custom CNC-routed grilles into the toe kicks for the home’s existing forced-air HVAC system.
The floors are large-format ceramic tiles that look like gray concrete. This contributes to the organic modern feel of the room. The new floors are also heated. The architect tucked custom CNC-routed grilles into the toe kicks for the home’s existing forced-air HVAC system.
Before: Prior to the renovation, there had been a concentration of cabinets and appliances along the interior wall with minimal workspace around the range.
Wall of Storage
In the remodeled kitchen, O’Connell devoted this interior wall to cabinetry and the fridge. There’s an appliance garage for the coffeemaker and stand mixer next to the countertop. Arielle found the bow-shaped wood hardware.
One detail to note is how the fridge appears to float. O’Connell used 8-inch-high toe kicks (standard height is 4 inches) around the room to give everything a lighter, floating look. He warns that a high toe kick can cut into storage capacity but notes that here the copious amount of storage accommodated this choice.
In the remodeled kitchen, O’Connell devoted this interior wall to cabinetry and the fridge. There’s an appliance garage for the coffeemaker and stand mixer next to the countertop. Arielle found the bow-shaped wood hardware.
One detail to note is how the fridge appears to float. O’Connell used 8-inch-high toe kicks (standard height is 4 inches) around the room to give everything a lighter, floating look. He warns that a high toe kick can cut into storage capacity but notes that here the copious amount of storage accommodated this choice.
Just past the fridge is a long, wall-mounted cabinet and open shelves. This space lets the room breathe and adds to the minimalist feel. The shelves can hold all of the couple’s everyday china and glasses, and the cabinet countertop serves as a bar (with the cabinet housing the bottles). The wood on the countertop and shelving is cypress.
Note: Hanging shelves and cabinets like this should be planned out during the framing phase of construction to handle the weight.
Note: Hanging shelves and cabinets like this should be planned out during the framing phase of construction to handle the weight.
Before: The kitchen was always open to the dining room, which made socializing and entertaining easy.
Social Space
The renovation continued the cathedral ceiling and beams into the dining room. Sliding doors connect to the deck outside. O’Connell replaced the bulky old peninsula with an open one. The top is a live-edge piece of sycamore. Planning the structural support for cantilevering this piece occurred during the framing stage, in collaboration with the cabinetmaker and general contractor. Cantilevering the countertop maintains the open and minimalist look.
Browse backless counter stools in the Houzz Shop
The renovation continued the cathedral ceiling and beams into the dining room. Sliding doors connect to the deck outside. O’Connell replaced the bulky old peninsula with an open one. The top is a live-edge piece of sycamore. Planning the structural support for cantilevering this piece occurred during the framing stage, in collaboration with the cabinetmaker and general contractor. Cantilevering the countertop maintains the open and minimalist look.
Browse backless counter stools in the Houzz Shop
Here’s a peek at how the kitchen relates to the living room. There’s a wide opening between the two, and the scope of the project included both spaces. The opening allows guests to mingle between the rooms, and the new high ceiling in the kitchen makes the entire first floor feel more open and light.
Friends and family enjoy gathering for delicious meals at the Giustos’. These include O’Connell, who is not only their architect but also their neighbor. “It’s been really fun to be able to enjoy this space and see it in action after it was finished,” he says.
Friends and family enjoy gathering for delicious meals at the Giustos’. These include O’Connell, who is not only their architect but also their neighbor. “It’s been really fun to be able to enjoy this space and see it in action after it was finished,” he says.
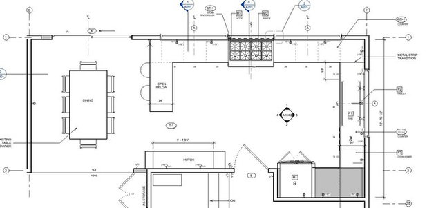
Here’s a plan of the new kitchen space. A wall used to run between the range and the fridge, and everything to the right of it was the home office.
Takeaways
Contractor: Spyder Petersen of Petersen & Son General Contractors
More on Houzz
See more Kitchens of the Week
Find a general contractor
Shop for kitchen products
Takeaways
- Take inspiration from the views outside when choosing materials and colors.
- Accompany your designer to wood and stone showrooms to see what speaks to you.
- To maintain a minimalist look, you can forgo cabinet hardware with reveals, cutouts or touch-latch hardware.
- Plan room for favorite cookbooks.
- High toe kicks can give a lighter, floating look to cabinetry.
- The weight of open shelves that will be loaded with china, as well as wall-mounted cabinetry and cantilevered countertops, must be taken into account during the framing phase of construction.
Contractor: Spyder Petersen of Petersen & Son General Contractors
More on Houzz
See more Kitchens of the Week
Find a general contractor
Shop for kitchen products
Related Stories
Kitchen of the Week
Kitchen of the Week: Wood, White and Blue in an 1890s Kitchen
By Becky Harris
A designer preserves 19th-century architectural details while updating the room’s style and adding modern comforts
Full Story
Shop Houzz
March’s Bestselling Bar Stools
By Houzz
Upgrade your kitchen or bar seating with the month’s most popular styles
See Products
Outdoor Lounge Furniture
Outdoor Lounge Furniture With Free Shipping
By Houzz
Enjoy your patio with these picks
See Products
Kitchen of the Week
Kitchen of the Week: A Cottage Kitchen Opens Up
By Becky Harris
A Maryland remodel balances modern needs and architectural integrity in a kitchen designed for gatherings
Full Story
Kitchen of the Week
Kitchen of the Week: Renewed Vintage Style for a 1905 Bungalow
By Becky Harris
A 100-square-foot Texas kitchen gets a cozy eat-in area and a historic feel with subtle modern updates
Full Story
Modern Homes
Houzz Tour: A Midcentury Modern House Opens Up
By Becky Harris
The renovation of a 1951 ranch house in Los Angeles expands living areas to a newly landscaped patio and pool
Full Story
Before and Afters
Order Meets Wildness in a Denver Front Yard Makeover
A landscape designer turns a basic builder yard into a terraced, low-water dreamscape with a Cor-Ten steel surprise
Full Story
Shop Houzz
Bestselling Leather Bar Stools and Counter Stools
By Houzz
Add a refined element to your entertaining area with real, faux and bonded leather styles
See Products
Bathroom Makeovers
Master Bath Loses Dark Finishes and Gains Airy Glamour
By Erin Carlyle
A designer revamps a Tennessee bathroom by removing walls and redecorating in white, light gray and gold
Full Story
Houzz Tours
Houzz Tour: ‘Surgical Remodel’ Adds Modern Style to a Row House
By Erin Carlyle
A new open floor plan and an expansion help modernize a San Francisco home and open up a gorgeous hillside garden view
Full Story










Gorgeous! Love the openness and wood grains. Very clever choice for placement of ceiling beams (creating a new angle instead of continuing straight).
Incredible woodwork! The wood throughout is absolutely gorgeous!
what a transformation! I love the openness of it, the big windows, high ceiling and the blending of natural materials with the splashes of elegance. Gorgeous.