Kitchen of the Week: Rich Wood, Stone and Rustic Warmth
This kitchen on an alpaca ranch in Washington embraces its rural surroundings — and a decidedly not-white palette
The showpiece: A garnet-colored English-style larder displays pantry staples and homemade herb tinctures. Inspired by a rooster painting that was previously in storage, the group chose the deep red shade (Red Bay by Sherwin-Williams) and topped it with a brown glaze. “We love how the glaze settled in the grooves and gave us that timeworn look,” Mayden says.
The cabinets: For the main cabinets, the designer worked with Huggy Bear’s Cupboards. They started with knotty alder lumber to match other elements of the house and stained the wood with an auburn tint. The finishing brown glaze helps pick up shades of rust from the slate backsplash and keeps the cabinets looking warm, not dark. “Midtoned cabinets are easier to maintain,” Mayden says. “You don’t see dust or nicks like you would on a dark stain, and you don’t see smudging and dirt like you would on a light or white cabinet.”
The floor: The Surface Art porcelain flooring laid in a brick-style pattern resembles the slate backsplash but is more affordable and easier to maintain.
The floor: The Surface Art porcelain flooring laid in a brick-style pattern resembles the slate backsplash but is more affordable and easier to maintain.
The countertops: To balance everything out, Mayden chose Mysore Black granite countertops, which provide visual relief and deliver on practicality (the granite won’t scratch or stain and can handle hot pots), while the chiseled edges lend a rustic feel. “We didn’t want anything to be too perfect,” she says.
The John Boos & Co. butcher block reinforces the wood-centric design. It can be easily removed for cleaning and upkeep.
The John Boos & Co. butcher block reinforces the wood-centric design. It can be easily removed for cleaning and upkeep.
The sink: Farmhouse sinks are having a moment, and while we’re used to seeing them in white fireclay, this copper version from Native Trails stands out. “It has patina, texture and a lovely organic feel,” the designer says. “It changes color over time and provides a beautiful anchor on that wall.”
Shop copper farmhouse sinks
Shop copper farmhouse sinks
The layout: Having an open layout was key. “The couple likes to be able to look into the living room, watch TV and talk to family while they cook,” Mayden says. The range in the middle of the island allows the chef to stay connected to whatever is going on in adjacent rooms, while the opening created between the kitchen and the dining room allows guests to move fluidly between rooms.
The range hood: Mayden found an unobtrusive ceiling-mounted recessed vent to replace a clunky and inefficient down-draft hood and hung Restoration Hardware light fixtures at an ideal height to keep the line of vision clear.
The range hood: Mayden found an unobtrusive ceiling-mounted recessed vent to replace a clunky and inefficient down-draft hood and hung Restoration Hardware light fixtures at an ideal height to keep the line of vision clear.
The window: Another standout feature is the 12-foot window that was carved out to flood the kitchen with natural light and allow the homeowner to look out over her alpacas as they roam across the lawn.
The backsplash: Mayden designed the slate backsplash to cover the rest of the wall and draw attention to the window as the focal point. “Since we didn’t have upper cabinets where the backsplash usually stops, I didn’t want to see a line where the tile just randomly ended,” she says. “Plus, finishing the wall this way makes a grander statement.”
The storage: Giving up so much wall space to the window and the opening meant having to get creative with storage. That’s why the island and other counters were outfitted with deep drawers and rollout trays. “More and more people are choosing drawers,“ Mayden says. “No one wants to get down and dig through lower shelves.” With the drawers and charming open shelving, the Dickinsons can keep the area neat despite the lack of wall cabinetry.
The backsplash: Mayden designed the slate backsplash to cover the rest of the wall and draw attention to the window as the focal point. “Since we didn’t have upper cabinets where the backsplash usually stops, I didn’t want to see a line where the tile just randomly ended,” she says. “Plus, finishing the wall this way makes a grander statement.”
The storage: Giving up so much wall space to the window and the opening meant having to get creative with storage. That’s why the island and other counters were outfitted with deep drawers and rollout trays. “More and more people are choosing drawers,“ Mayden says. “No one wants to get down and dig through lower shelves.” With the drawers and charming open shelving, the Dickinsons can keep the area neat despite the lack of wall cabinetry.
Since they love to have people over, the kitchen had to feel inviting and be accessible. The breakfront cabinet, where the everyday china is kept, makes it convenient for people to get what they need. Beadboard along the back of the unit lends a farmhouse feel. “In general, they wanted things rustic but not too country,” Mayden says. “I talked them into a few touches like this to enhance warmth and texture.”
The bar counter: The raised live-edge slab bar mirrors a piece on the living room mantel. “Using a similar material for the bar helps to tie those two spaces together, so it looks like it was all conceived as a whole, rather than two separate projects,” Mayden says. It also ties back to the rustic theme.
The bar counter: The raised live-edge slab bar mirrors a piece on the living room mantel. “Using a similar material for the bar helps to tie those two spaces together, so it looks like it was all conceived as a whole, rather than two separate projects,” Mayden says. It also ties back to the rustic theme.
Other Spaces
The dining room: To create cohesiveness throughout the house, the homeowners and designer also incorporated elements of the kitchen into other areas. In the dining room, shown here, a matching cabinet keeps barware and other entertaining essentials within reach.
The dining room: To create cohesiveness throughout the house, the homeowners and designer also incorporated elements of the kitchen into other areas. In the dining room, shown here, a matching cabinet keeps barware and other entertaining essentials within reach.
The mudroom: This space carries the same full-height backsplash, Restoration Hardware light fixtures and similar semicustom cabinetry.
The powder room: Mayden brought in leftover barn wood to cover the wall. “Even in a new space, I never feel like everything should be new,” she says. She encourages her clients to mix in older, funky pieces they love. “Don’t be afraid to give your space character. Our homes aren’t supposed to be showpieces, but rather ever-evolving representations of the people who live in them.”
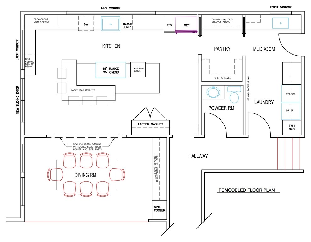
The floor plan: Here’s a look at how the various spaces are laid out. The new kitchen occupies the top left and middle areas. The mudroom, laundry room and powder room are grouped together in the upper right corner. The dining room sits at the bottom left.
More
Homeowner’s Workbook: How to Remodel Your Kitchen
Find a kitchen designer
Shop kitchen products
More
Homeowner’s Workbook: How to Remodel Your Kitchen
Find a kitchen designer
Shop kitchen products















Kitchen at a Glance
Who lives here: Bob and Kathryn Dickinson
Location: Carnation, Washington
Size: 370 square feet (34.4 square meters)
Designer: Sheila Mayden Interiors
The backstory: Many people love white kitchens. They are airy, clean and modern. But when Kathryn Dickinson, the owner of an alpaca ranch in Carnation, Washington, called upon Sheila Mayden to help with a home renovation, she told the interior designer right off the bat that the family wasn’t interested in an achromatic palette.
“She told me, ‘I see you do a lot of white kitchens, and I am the one person who does not want a white kitchen. Can you do that?’” Mayden says. The designer welcomed the challenge and succeeded in creating a space that is as striking as it is practical by mixing rich wood with sleek stone surfaces, adding a 12-foot window and building smart storage solutions.
Kathryn and Bob Dickinson moved from the suburbs to this 5-acre ranch after their kids went off to college. They loved the lot and the ample space it provided for Kathryn, a textile artist, to raise alpacas, but the home was dark and dated. Keeping in line with the rural setting, the Dickinsons leaned toward wood accents and earth tones when remodeling their abode.
The palette: Getting the color right was a priority. Mayden guided them to mix cool blues and grays to accentuate the warm palette they wanted. “If you just keep layering browns, reds, oranges and beiges, you end up with a muddy mess,” she says. “You need those cool accents to really let your main tones pop.”