Kitchen of the Week: Timeless Kitchen With a Walk-In Pantry
Tons of storage, a sociable layout and an outdoor connection were key to creating this practical, inviting space
What would be included in your dream kitchen? For the owners of this historic house, a large island, lots of storage, a walk-in pantry and a bar for entertaining were all high up on their wish list. They’d brought in kitchen designer Tom Howley at the planning stage of their addition to help make best use of the new open-plan space. “This is something we recommend all our clients do,” Howley says. “Planning the detail of your kitchen as early as possible ensures all key elements, such as electrics and water, are considered as part of your build.”
Howley worked with the owners to design a kitchen that’s both beautiful and practical, while comfortably including all the items they’d asked for.
Howley worked with the owners to design a kitchen that’s both beautiful and practical, while comfortably including all the items they’d asked for.
“The clients came to me with a clear idea of the cabinet color they wanted, after having seen it on our website,” Howley says. The deep green avocado shade was complemented with burnished brass handles, brass stools and matching pendant lights, while a white quartz countertop provides a clean contrast.
“With such a bold cabinet color, keeping the countertop bright and neutral made perfect sense,” Howley says.
Organic White countertops, Caesarstone
Shop for your kitchen
“With such a bold cabinet color, keeping the countertop bright and neutral made perfect sense,” Howley says.
Organic White countertops, Caesarstone
Shop for your kitchen
Steel-frame windows are positioned around the room to create an outdoor connection.
Howley decided to create a bench seat with drawer storage beneath one of the windows to make the most of the view.
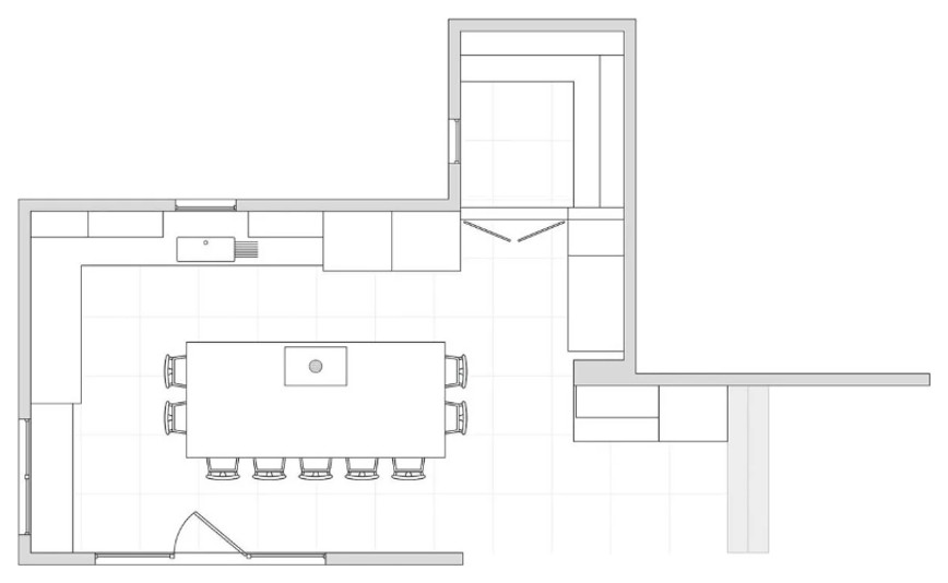
Floor plan: The L-shaped layout of the room provided a great opportunity to design a walk-in pantry (top).
Howley says the homeowners had seen similar pantries in his previous projects and wanted to include the same feature in their space.
New to home remodeling? Learn the basics
New to home remodeling? Learn the basics
Shallow shelves for sauces and spices were attached to the back of the pantry’s double doors. Inside, there are more shelves, some handcrafted drawers, and enough countertop space for the owners to store their small appliances and breakfast-making equipment.
12 Clever Kitchen Cabinet Storage Ideas
12 Clever Kitchen Cabinet Storage Ideas
More storage was created between the kitchen and living space, this time to include a bar area. Bifold doors open up to reveal shelving for glassware above a countertop where the owners can mix cocktails.
Howley installed LED lighting to the shelves, which reflects against the mirrored backs for an atmospheric glow in the evening.
Howley installed LED lighting to the shelves, which reflects against the mirrored backs for an atmospheric glow in the evening.
Alongside the bar area are practical fridge drawers to keep beers and canned drinks cold, plus a wine cooler.
10 Design Features Pros Recommend for Entertaining at Home
More on Houzz
Read more kitchen stories
Browse kitchen photos
Hire a kitchen remodeler
Shop for kitchen products
10 Design Features Pros Recommend for Entertaining at Home
More on Houzz
Read more kitchen stories
Browse kitchen photos
Hire a kitchen remodeler
Shop for kitchen products













Kitchen at a Glance
Who lives here: A family with young children
Location: Kent, England
Size: 938 square feet (87 square meters); 32.8 by 28.6 feet (10 by 8.7 meters)
Designer: Tom Howley
This open-plan kitchen is located in a new addition, which was created as part of a full house renovation, so Howley had a blank canvas to work with. His clients are very sociable, so he took the opportunity to center the layout on a large island (11 feet by 4.6 feet) with room for nine bar stools.
The island is also big enough to accommodate an induction stove with a downdraft ventilation hood on the surface and lots of drawer storage below.
Hartford cabinetry in Avocado, Tom Howley
Find a kitchen designer near you