Kitchen Tour: A Clever Redesign Improves Storage and Light
A dark kitchen in a 1920s bungalow has been given a light and airy makeover filled with small-space ideas
Interior designer Jaime Dupes works for a firm that specialises in renovating old houses, so she knows a thing or two about returning character to tired interiors. Since old homes often have relatively small kitchens, she’s also adept at making a compact space feel bigger than it is.
So when repeat clients asked her to renovate the kitchen in their 1920s home in Atlanta’s historic Virginia Highland neighbourhood, she was in her element. Scroll down to see the kitchen’s dramatic transformation and learn a few of Jaime’s design strategies along the way.
So when repeat clients asked her to renovate the kitchen in their 1920s home in Atlanta’s historic Virginia Highland neighbourhood, she was in her element. Scroll down to see the kitchen’s dramatic transformation and learn a few of Jaime’s design strategies along the way.
This photo of the new kitchen was taken from the same angle as the “before” shot. The Copper Sky team turned a full bathroom behind the wall on the left into a cloakroom, which allowed them to increase the kitchen’s width sufficiently to install a 1m-wide island with just over 1m of walkway on either side. They laced in red oak flooring to match the original and refinished it.
The door leading to the dining room was moved a few feet to the left. Not only did that allow the cabinetry and appliances to wrap onto the back wall, it also aligned the opening with the kitchen’s path of travel instead of smack into the island.
In addition, the fridge, which used to impede traffic to the dining room, was moved to a space next to the window. Now the whole cooking zone is on the right side of the kitchen, buffered from the travel zone by the island.
These changes allowed Jaime to install shallow cabinetry – a storage zone – along the entire left wall, which was key to her design. “Whenever I have a kitchen that’s going to live in a smaller footprint, there are a couple of tricks that I do to make it feel larger than it is,” she says. “One of those is you always want cabinetry on at least three walls.”
On this kitchen’s third wall, two tall cabinets designated for food storage flank narrower cabinets used for both storage and display.
Island painted in Mt. Rainier Gray, Benjamin Moore. Carrara Lumos quartz worktop, MSI. Kara cabinet handles in Honey Bronze, Top Knobs.
The door leading to the dining room was moved a few feet to the left. Not only did that allow the cabinetry and appliances to wrap onto the back wall, it also aligned the opening with the kitchen’s path of travel instead of smack into the island.
In addition, the fridge, which used to impede traffic to the dining room, was moved to a space next to the window. Now the whole cooking zone is on the right side of the kitchen, buffered from the travel zone by the island.
These changes allowed Jaime to install shallow cabinetry – a storage zone – along the entire left wall, which was key to her design. “Whenever I have a kitchen that’s going to live in a smaller footprint, there are a couple of tricks that I do to make it feel larger than it is,” she says. “One of those is you always want cabinetry on at least three walls.”
On this kitchen’s third wall, two tall cabinets designated for food storage flank narrower cabinets used for both storage and display.
Island painted in Mt. Rainier Gray, Benjamin Moore. Carrara Lumos quartz worktop, MSI. Kara cabinet handles in Honey Bronze, Top Knobs.
When it came to the kitchen’s finishes, the homeowners were familiar with Jaime’s work and trusted her design eye. They shared a Houzz ideabook filled with style inspiration, too. The aesthetic they landed on was “cottage”, but everyone agreed this shouldn’t be a cookie-cutter kitchen.
“In historic homes, you want to have a lot of character,” Jaime says. “So even though we wanted [the kitchen] to be light and airy, we knew we wanted it to have interest with contrast. The question was, ‘How do we get that interest in a white kitchen, but make it feel elevated and custom?’”
They did it by layering in texture and introducing wood elements, including the maple-stained white oak mixed with the painted white wood on the pantry wall.
Details such as preserved and replicated original woodwork and an ogee (decorative curved) edge on the island’s marble-look quartz worktop helped lend personality to the space as well.
“In historic homes, you want to have a lot of character,” Jaime says. “So even though we wanted [the kitchen] to be light and airy, we knew we wanted it to have interest with contrast. The question was, ‘How do we get that interest in a white kitchen, but make it feel elevated and custom?’”
They did it by layering in texture and introducing wood elements, including the maple-stained white oak mixed with the painted white wood on the pantry wall.
Details such as preserved and replicated original woodwork and an ogee (decorative curved) edge on the island’s marble-look quartz worktop helped lend personality to the space as well.
Removing the peninsula and reconfiguring the furniture in the adjacent family room gave Jaime enough open space to install a breakfast area. It shares a new white, wood and grey-blue palette with the kitchen that’s soft and pleasing. But lighter colour isn’t the only thing easier on the eye.
“Another thing I do when we are working in a smaller footprint is I always panel the appliances,” Jaime says. The fridge and dishwasher are hidden behind doors, and a speed oven-microwave tucked into the island is integrated, too. That helps the eye travel around the kitchen cabinetry without stopping at appliances. “It really helps the space feel larger,” she says.
A third trick Jaime uses to make a small kitchen feel open is to choose clear glass globes on pendant lights. Here, the pendants have a pretty, slim brass rod that coordinates with the cabinet hardware.
Cafe pendant lights in natural brass, Coastal Living collection, Regina Andrew.
“Another thing I do when we are working in a smaller footprint is I always panel the appliances,” Jaime says. The fridge and dishwasher are hidden behind doors, and a speed oven-microwave tucked into the island is integrated, too. That helps the eye travel around the kitchen cabinetry without stopping at appliances. “It really helps the space feel larger,” she says.
A third trick Jaime uses to make a small kitchen feel open is to choose clear glass globes on pendant lights. Here, the pendants have a pretty, slim brass rod that coordinates with the cabinet hardware.
Cafe pendant lights in natural brass, Coastal Living collection, Regina Andrew.
The cooker hood is cerused wood, which means it has a whitewash treatment that brings out the grain. Zoom in to admire the hood’s pretty routed detail as well as the marble mosaic tile splashback.
“I think the scale of the pattern helps it feel more updated and fresh and not just like a typical accent tile behind the range that you’ve seen time and time again,” Jaime says.
Splashback tiles, Tile Bar.
“I think the scale of the pattern helps it feel more updated and fresh and not just like a typical accent tile behind the range that you’ve seen time and time again,” Jaime says.
Splashback tiles, Tile Bar.
One of the homeowners’ design goals was to clear the worktops of clutter, including the filter coffee machine. So to the right of the new sink, Jaime created a coffee station that sits on the worktop and has a pocket door.
To leave some work surface to the right of the sink, the tiled wall around the window had to be asymmetrical, so Jaime installed a sconce to create balance and, at the same time, break up the wall of white with a fun, unexpected detail. A soft, striped cafe curtain is a sweet finishing touch.
Ariel sconce, Coastal Living collection, Regina Andrew.
To leave some work surface to the right of the sink, the tiled wall around the window had to be asymmetrical, so Jaime installed a sconce to create balance and, at the same time, break up the wall of white with a fun, unexpected detail. A soft, striped cafe curtain is a sweet finishing touch.
Ariel sconce, Coastal Living collection, Regina Andrew.
In this floor plan of the original kitchen, you can see the full bathroom on the right. Notice how the peninsula divided the kitchen from the family room (at the top) and cut into the path of travel from the family room into the dining room (at the bottom).
If you’re feeling disorientated, imagine you’re standing on the far side of the peninsula looking into the kitchen. That’s the perspective you’re seeing in the story’s first picture.
If you’re feeling disorientated, imagine you’re standing on the far side of the peninsula looking into the kitchen. That’s the perspective you’re seeing in the story’s first picture.
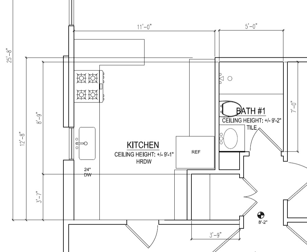
In the new floor plan, you can see how stealing space from the bathroom created enough room in the kitchen for the island. You can also see how there’s now a straight pathway from the family room to the dining room that doesn’t interfere with the cooking zone.
Tell us…
What do you like about this kitchen transformation? Share your thoughts in the Comments.
Tell us…
What do you like about this kitchen transformation? Share your thoughts in the Comments.










Who lives here? A couple with three young daughters
Location Atlanta, USA
Size 17 sq m
Designer Jaime Dupes of Copper Sky Design + Remodel
Photos by Anastasia Alkema
This view of the original kitchen is from the home’s family room looking towards the dining room. Note there’s a short peninsula in the foreground.
The homeowners’ complaints were primarily aesthetic: they felt the 1990s-era kitchen was dark, dated and out of sync with the style of the adjacent rooms. It also had scant storage space, along with small appliances cluttering the worktop. And while they did like it that their three children could eat breakfast at the peninsula, it blocked flow between the narrow kitchen and the family room.
Jaime’s directive was to turn it into a bright and open kitchen with an efficient floor plan and more drawer space and food storage. The clients really wanted an island, too, though how one might be squeezed in wasn’t immediately obvious.
Scroll to the “before” and “after” floor plans at the end of the story, which have the family room and peninsula positioned at the top, to get orientated.
Find kitchen designers near you.