See How 8 Bathrooms Fit Everything Into About 100 Square Feet
Get ideas for materials, layouts and more before meeting with pros to plan your own remodel
If you want a bathroom with a stand-alone bathtub, separate shower, double vanity and toilet or water closet, you’re looking at 100 square feet, give or take. That figure is based on the standard dimensions of each of those elements, plus the space you’ll need for meeting code requirements and moving through the room.
Designer John Conroy says this size is popular for a bathroom because it gives you the biggest bang for your buck. In other words, you can get the features you want while being able to include things like marble tile, a higher-end countertop material and radiant floor heating. Once you go bigger than that, “the square-foot dollar amount adds up very quickly,” Conroy says. “With 100 square feet, you’re making your budget go further.”
With that in mind, we decided to take a look at eight bathrooms that fall around the 100-square-foot mark — some smaller, some bigger — and see how layouts, materials, style and, most important, costs were handled in the space.
Designer John Conroy says this size is popular for a bathroom because it gives you the biggest bang for your buck. In other words, you can get the features you want while being able to include things like marble tile, a higher-end countertop material and radiant floor heating. Once you go bigger than that, “the square-foot dollar amount adds up very quickly,” Conroy says. “With 100 square feet, you’re making your budget go further.”
With that in mind, we decided to take a look at eight bathrooms that fall around the 100-square-foot mark — some smaller, some bigger — and see how layouts, materials, style and, most important, costs were handled in the space.
Vanity and countertop: A custom floating double vanity with a concrete countertop in a custom color drops down at one end to form a floating concrete shelf and storage unit that also contains a wall-hung toilet.
Style: Berghuis says he enjoys working with contemporary style in midsize bathrooms because the clean lines and floating elements give the appearance of more space. Plus, he adds, many of the items become statement pieces themselves, such as the tub and the vanity in this space.
Toilet: Geberit
Find floating vanities with two sinks in the Houzz Shop
Style: Berghuis says he enjoys working with contemporary style in midsize bathrooms because the clean lines and floating elements give the appearance of more space. Plus, he adds, many of the items become statement pieces themselves, such as the tub and the vanity in this space.
Toilet: Geberit
Find floating vanities with two sinks in the Houzz Shop
Layout: Berghuis located the shower at the far end so that the homeowners wouldn’t step right into a wet zone when entering the room from the top right. (The actual layout changed slightly from this floor plan, as Berghuis got rid of the linen closet on the bottom right to extend the toilet area and shelf.)
Cost: Because this was part of a full custom home construction, Berghuis says it’s a bit difficult to break out the cost of the bathroom, but he estimates that it took about $75,000 of the overall construction budget, including materials, labor and design fees.
Note: All costs associated with the projects included in this article should be expected to vary from city to city, depending on supply, demand, other regional factors and whether the project was a stand-alone bathroom or part of a larger home remodeling or custom build project.
See more ways to lay out a 100-square-foot bathroom
Cost: Because this was part of a full custom home construction, Berghuis says it’s a bit difficult to break out the cost of the bathroom, but he estimates that it took about $75,000 of the overall construction budget, including materials, labor and design fees.
Note: All costs associated with the projects included in this article should be expected to vary from city to city, depending on supply, demand, other regional factors and whether the project was a stand-alone bathroom or part of a larger home remodeling or custom build project.
See more ways to lay out a 100-square-foot bathroom
2. Marble Magic and Rustic Vanity
Location: Los Angeles
Size: 90 square feet (8.4 square meters)
Designer: Lindsay Chambers Design
The backstory: A top-to-bottom Mediterranean style didn’t suit the character of the 1919 Craftsman home, which was renovated in 2014.
Solution: Designer Lindsay Chambers and Hazel Wood Group builders completely gutted the room. They had to rebuild the floor due to water damage, reinsulate the walls, put up drywall and waterproof everything. Then a modern palette of white and gray with lots of marble created a refreshing atmosphere.
Tile: Carrara marble tiles cover the floors and walls, creating an elegant, spa-like feel. A mix of patterns — arabesque on one wall, brick on another and large format on the floor — gives dynamic character to the space.
Vanity: A large furniture-style vanity in a rustic wood offers a nice counterpoint in tone and texture to the expanses of white-and-gray marble.
Shower and tub: A curbless shower, separated from the rest of the room by just a single piece of glass, gives the impression of more space — visually and physically — and makes way for a freestanding tub.
Shower and tub filler: Hansgrohe; faucets: Newport Brass; lighting: Hudson Valley Lighting; paint: Apparition and Simply White, Benjamin Moore; bathtub: Caicos, Aquabrass
Shop for wall and floor tile
Location: Los Angeles
Size: 90 square feet (8.4 square meters)
Designer: Lindsay Chambers Design
The backstory: A top-to-bottom Mediterranean style didn’t suit the character of the 1919 Craftsman home, which was renovated in 2014.
Solution: Designer Lindsay Chambers and Hazel Wood Group builders completely gutted the room. They had to rebuild the floor due to water damage, reinsulate the walls, put up drywall and waterproof everything. Then a modern palette of white and gray with lots of marble created a refreshing atmosphere.
Tile: Carrara marble tiles cover the floors and walls, creating an elegant, spa-like feel. A mix of patterns — arabesque on one wall, brick on another and large format on the floor — gives dynamic character to the space.
Vanity: A large furniture-style vanity in a rustic wood offers a nice counterpoint in tone and texture to the expanses of white-and-gray marble.
Shower and tub: A curbless shower, separated from the rest of the room by just a single piece of glass, gives the impression of more space — visually and physically — and makes way for a freestanding tub.
Shower and tub filler: Hansgrohe; faucets: Newport Brass; lighting: Hudson Valley Lighting; paint: Apparition and Simply White, Benjamin Moore; bathtub: Caicos, Aquabrass
Shop for wall and floor tile
Layout: Chambers tucked the toilet in the corner behind the vanity so it wouldn’t be the first thing you see when entering the room. She angled the tub slightly to maximize traffic flow.
Cost: $52,000, including materials, labor and design fees. Below is how some of that budget broke down.
Vanity: $2,775
Mirrors: $675 each
Sconces: $400 each
Plumbing fixtures and bathtub: $7,500
V-groove ceiling (including installation and paint): $5,500
Chambers points out that, in her experience, remodeling projects are more expensive in California in general, but especially in major metropolitan areas like Los Angeles.
See more of this bathroom
Cost: $52,000, including materials, labor and design fees. Below is how some of that budget broke down.
Vanity: $2,775
Mirrors: $675 each
Sconces: $400 each
Plumbing fixtures and bathtub: $7,500
V-groove ceiling (including installation and paint): $5,500
Chambers points out that, in her experience, remodeling projects are more expensive in California in general, but especially in major metropolitan areas like Los Angeles.
See more of this bathroom
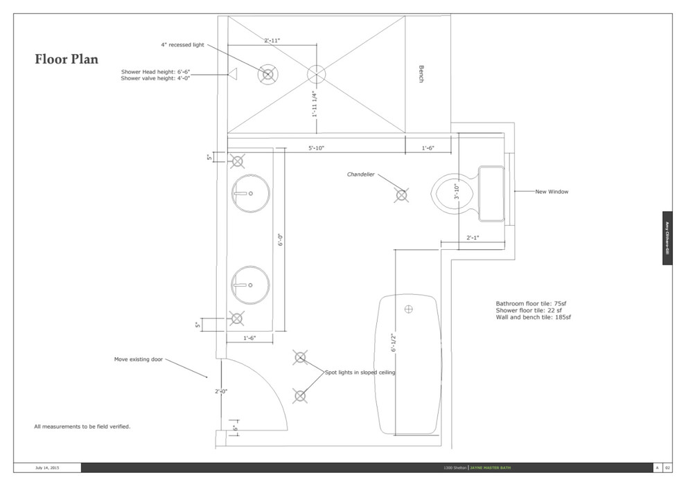
3. Vintage Charms Amid an Awkward Roofline
Location: Nashville, Tennessee
Size: About 110 square feet (10.2 square meters)
Designer: Amy Gill of Gill Design & Construction
The backstory: A leaky bathtub and a less-than-desirable chopped-up floor plan set off the transformation of this bathroom inside a Tudor-style home.
Solution: Designer Amy Gill relocated a door and removed an odd half wall to streamline the layout, which made room for a double vanity, a walk-in shower under the sloping roofline and a stand-alone tub on the opposite side of the room.
Vanity: Gill had vessel sinks installed on a large dresser for a vintage, eclectic double vanity.
Tile: In the shower, white subway wall tile (with charcoal-gray grout) contrasts with black hexagonal floor tile for a graphic visual statement. The rest of the floor is ceramic tile digitally printed to look like hardwood.
Paint: Pure White, Sherwin-Williams (walls in flat, trim in semigloss); sconces: Kichler; sinks: Decolav
Shop for vessel sinks
Location: Nashville, Tennessee
Size: About 110 square feet (10.2 square meters)
Designer: Amy Gill of Gill Design & Construction
The backstory: A leaky bathtub and a less-than-desirable chopped-up floor plan set off the transformation of this bathroom inside a Tudor-style home.
Solution: Designer Amy Gill relocated a door and removed an odd half wall to streamline the layout, which made room for a double vanity, a walk-in shower under the sloping roofline and a stand-alone tub on the opposite side of the room.
Vanity: Gill had vessel sinks installed on a large dresser for a vintage, eclectic double vanity.
Tile: In the shower, white subway wall tile (with charcoal-gray grout) contrasts with black hexagonal floor tile for a graphic visual statement. The rest of the floor is ceramic tile digitally printed to look like hardwood.
Paint: Pure White, Sherwin-Williams (walls in flat, trim in semigloss); sconces: Kichler; sinks: Decolav
Shop for vessel sinks
Splurge: The homeowner really wanted a claw-foot tub and decided to splurge on a $1,000 one from Signature Hardware.
Savings: Gill was able to save some money by purchasing a beadboard kit from Home Depot for less than $100 and painting the beadboard the same color as the walls.
Savings: Gill was able to save some money by purchasing a beadboard kit from Home Depot for less than $100 and painting the beadboard the same color as the walls.
Layout: By relocating a door and working with the angled ceiling, Gill was able to maximize the space and improve the traffic flow in the room.
Cost: $17,800, including materials, labor and design fees.
See more of this bathroom
Cost: $17,800, including materials, labor and design fees.
See more of this bathroom
4. Minimalist in a Modern Addition
Location: Portland, Oregon
Size: About 122 square feet (11.3 square meters); 9 feet 4 inches by 10 feet 10 inches, plus a water closet that’s 7 by 3 feet
Designer: Risa Boyer Leritz of Risa Boyer Architecture
The backstory: This bathroom was part of a new-addition master suite. The homeowners didn’t want to do a huge addition, so once they settled on a size of about 500 square feet total, designer Risa Boyer Leritz began looking at how much space to allot for the bathroom.
Space savings: Leritz says she chose this arrangement because the larger shower volume made sense at the far end, rather than at the entrance to the room. “If you put a full-height volume, something that goes floor-to-ceiling, at the entry, it’s going to make the space feel more confined,” she says. “When you walk in and there’s a tub, the open volume of space above it makes the room feel more spacious.”
A custom floating walnut vanity also helps free up space.
Bathtub: A 5½-foot-long built-in soaking tub features a Caesarstone tub deck.
Neat idea: A walnut-fronted recessed medicine cabinet at the end of the vanity creates a beautiful design feature.
Location: Portland, Oregon
Size: About 122 square feet (11.3 square meters); 9 feet 4 inches by 10 feet 10 inches, plus a water closet that’s 7 by 3 feet
Designer: Risa Boyer Leritz of Risa Boyer Architecture
The backstory: This bathroom was part of a new-addition master suite. The homeowners didn’t want to do a huge addition, so once they settled on a size of about 500 square feet total, designer Risa Boyer Leritz began looking at how much space to allot for the bathroom.
Space savings: Leritz says she chose this arrangement because the larger shower volume made sense at the far end, rather than at the entrance to the room. “If you put a full-height volume, something that goes floor-to-ceiling, at the entry, it’s going to make the space feel more confined,” she says. “When you walk in and there’s a tub, the open volume of space above it makes the room feel more spacious.”
A custom floating walnut vanity also helps free up space.
Bathtub: A 5½-foot-long built-in soaking tub features a Caesarstone tub deck.
Neat idea: A walnut-fronted recessed medicine cabinet at the end of the vanity creates a beautiful design feature.
Layout: Here’s a look at the location of the various elements, including the water closet. Leritz oriented the tile in a way to elongate the narrow space, which she refers to as “galley style.” Arranging the elements in this way also helped free up wall space on the end for a large window to bring in natural light.
Cost: Leritz estimates that this project cost $35,000 to $40,000, including materials and labor. But she emphasizes that this was part of a larger project and would cost more if done as a stand-alone project.
Cost: Leritz estimates that this project cost $35,000 to $40,000, including materials and labor. But she emphasizes that this was part of a larger project and would cost more if done as a stand-alone project.
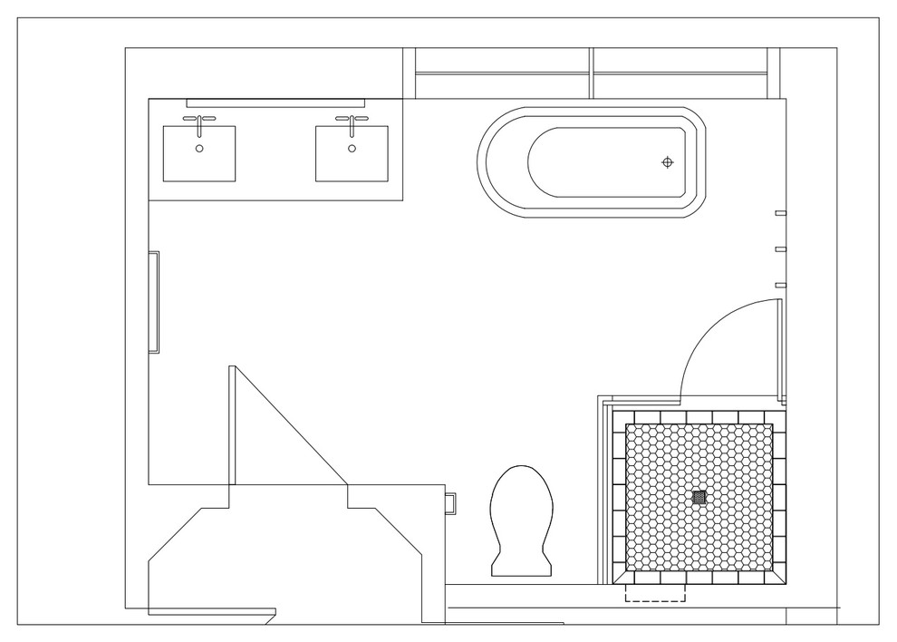
5. Gray and Gorgeous
Location: Waltham, Massachusetts
Size: 100 square feet (9.3 square meters)
Designer: Alissa Minehart of Lenore Design
The backstory: An inefficient layout and 30-year-old fixtures and style kicked off this complete transformation, which included stripping everything down to the studs and moving all the plumbing to establish a better layout.
Solution: Shaker-inspired wainscoting and dark charcoal-gray walls create sophisticated contrast. A refinished cast-iron claw-foot tub punctuates the space atop hexagonal marble floor tiles.
Location: Waltham, Massachusetts
Size: 100 square feet (9.3 square meters)
Designer: Alissa Minehart of Lenore Design
The backstory: An inefficient layout and 30-year-old fixtures and style kicked off this complete transformation, which included stripping everything down to the studs and moving all the plumbing to establish a better layout.
Solution: Shaker-inspired wainscoting and dark charcoal-gray walls create sophisticated contrast. A refinished cast-iron claw-foot tub punctuates the space atop hexagonal marble floor tiles.
Vanity: Ready-made cabinets received an upgrade with an open shelf below, built by contractor LJ Gauvin & Sons. A custom Carrara marble countertop and chrome fixtures further enhance the room’s main storage piece.
Shop for bathroom vanities
Shop for bathroom vanities
Layout: A compact corner walk-in shower allows room for the toilet, stand-alone tub and double vanity, with a comfortable traffic flow in the middle.
Cost: $20,000 for fixtures, materials and design but not labor.
See more of this bathroom
Cost: $20,000 for fixtures, materials and design but not labor.
See more of this bathroom
6. Smart Storage and Clever Space Planning
Location: Freehold, New Jersey
Size: 83 square feet (7.7 square meters)
Designer: John Conroy of Princeton Design Collaborative
The backstory: The homeowners had begun demolishing their existing bathroom when they realized that they needed professional help. After finding Conroy and his firm on Houzz, and perusing his previous work and reading reviews, they hired him over the phone. “A bit unusual,” he says, “but Houzz gave them enough information to do that.”
The challenges he found in the 1990s-built bathroom were that it lacked insulation on five of its six sides, which created a frigid space.
Solution: A new interior shell of spray foam inside all walls, floor and ceiling solved the dilemma.
Location: Freehold, New Jersey
Size: 83 square feet (7.7 square meters)
Designer: John Conroy of Princeton Design Collaborative
The backstory: The homeowners had begun demolishing their existing bathroom when they realized that they needed professional help. After finding Conroy and his firm on Houzz, and perusing his previous work and reading reviews, they hired him over the phone. “A bit unusual,” he says, “but Houzz gave them enough information to do that.”
The challenges he found in the 1990s-built bathroom were that it lacked insulation on five of its six sides, which created a frigid space.
Solution: A new interior shell of spray foam inside all walls, floor and ceiling solved the dilemma.
Space savings: The plumbing stayed in the same location to keep costs down, but Conroy did steal from the adjacent attic to push the room out 1½ feet and create a larger shower and bench with a storage armoire above. “It got us more elbow and breathing room and more storage,” he says.
Conroy also laid the economical porcelain floor tile the long way to create longer lines and make the room appear bigger than it is.
Shower: He gutted the existing fiberglass shower and put in a curbless one.
Armoire: A custom storage unit sits on a bench on the rear wall.
Conroy also laid the economical porcelain floor tile the long way to create longer lines and make the room appear bigger than it is.
Shower: He gutted the existing fiberglass shower and put in a curbless one.
Armoire: A custom storage unit sits on a bench on the rear wall.
Cabinets: The cabinets are cherry with a rosewood stain. Plywood veneers and mitered corners give the units the appearance of solid pieces of wood.
Vanity: Conroy likes using floating vanities in midsize bathroom spaces because they help give the appearance of more room, and it’s easy to clean underneath. “Plus, you’re not bending way down to get into the cabinets,” he says.
Accent tile: Conroy splurged on onyx field tile at $30 per square foot for the vanity wall and back wall near the shower. “Adding those jewel-like elements in spare places makes the bathroom feel more opulent,” he says.
Design feature: The tub surround wraps around to become the countertop, while the wood planes on the cabinetry above wrap around to form a lighting shelf. “It helps make it look not like you’ve gone to a big-box department store and bought pieces of millwork,” he says. “If you take the care to have cabinetry relate to other pieces within the space, to talk to one another, it gives a serene, spa-like feeling.”
Faucets and shower fixtures: Grohe; tub and sinks: Kohler
Vanity: Conroy likes using floating vanities in midsize bathroom spaces because they help give the appearance of more room, and it’s easy to clean underneath. “Plus, you’re not bending way down to get into the cabinets,” he says.
Accent tile: Conroy splurged on onyx field tile at $30 per square foot for the vanity wall and back wall near the shower. “Adding those jewel-like elements in spare places makes the bathroom feel more opulent,” he says.
Design feature: The tub surround wraps around to become the countertop, while the wood planes on the cabinetry above wrap around to form a lighting shelf. “It helps make it look not like you’ve gone to a big-box department store and bought pieces of millwork,” he says. “If you take the care to have cabinetry relate to other pieces within the space, to talk to one another, it gives a serene, spa-like feeling.”
Faucets and shower fixtures: Grohe; tub and sinks: Kohler
Layout: Since Conroy and the homeowners decided not to move any plumbing fixtures to save on cost, the components remained in the same place. But here you can see how they were able to incorporate about 1½ feet from the left side to create a bench and squeeze in an armoire.
Cost: Although Conroy says he isn’t able to share all costs associated with this project, he offered the following breakdown.
Custom shower doors: About $5,000
Quartz surfaces on vanity, tub surround and bench: $7,000
Cabinetry: $10,000
Conroy also points out that this was a stand-alone bathroom project, and he says that a similar project in scope and size in the central New Jersey area would probably cost $800 to $875 per square foot, which would be about $70,000.
He adds that due to economies of scale, a similar bathroom that’s part of a larger home renovation might come in at $450 to $500 per square foot, which would be about $41,500. “On top of these numbers, one should expect to pay between 8 and 12 percent of construction costs for architectural fees on a quality set of design and construction drawings,” Conroy says.
See more of this bathroom
Cost: Although Conroy says he isn’t able to share all costs associated with this project, he offered the following breakdown.
Custom shower doors: About $5,000
Quartz surfaces on vanity, tub surround and bench: $7,000
Cabinetry: $10,000
Conroy also points out that this was a stand-alone bathroom project, and he says that a similar project in scope and size in the central New Jersey area would probably cost $800 to $875 per square foot, which would be about $70,000.
He adds that due to economies of scale, a similar bathroom that’s part of a larger home renovation might come in at $450 to $500 per square foot, which would be about $41,500. “On top of these numbers, one should expect to pay between 8 and 12 percent of construction costs for architectural fees on a quality set of design and construction drawings,” Conroy says.
See more of this bathroom
7. Airy and Bright With a Beachy Vibe
Location: Camarillo, California
Size: 132 square feet (12.3 square meters)
Designer: Gail Jamentz of Soul Interiors Design
The backstory: The soon-to-be empty nesters in this 1970s home wanted to update their master bathroom and change out the dropped soffit and fluorescent lighting, oak cabinets, light ceramic countertops, and brass shower doors. “The footprint was nice; it just needed a refresh,” says designer Gail Jamentz.
Vanity: White vessel sinks and a Caesarstone counter top a deep espresso-stained vanity.
Tile: The clients are near the ocean and love blue-greens, so Jamentz incorporated those shades in the color scheme by way of wall paint and accent tile.
Wall paint: Tide Water at 120 percent, Sherwin-Williams; faucet: Hansgrohe; sinks: Reve, Kohler; faucets: Hansgrohe
Location: Camarillo, California
Size: 132 square feet (12.3 square meters)
Designer: Gail Jamentz of Soul Interiors Design
The backstory: The soon-to-be empty nesters in this 1970s home wanted to update their master bathroom and change out the dropped soffit and fluorescent lighting, oak cabinets, light ceramic countertops, and brass shower doors. “The footprint was nice; it just needed a refresh,” says designer Gail Jamentz.
Vanity: White vessel sinks and a Caesarstone counter top a deep espresso-stained vanity.
Tile: The clients are near the ocean and love blue-greens, so Jamentz incorporated those shades in the color scheme by way of wall paint and accent tile.
Wall paint: Tide Water at 120 percent, Sherwin-Williams; faucet: Hansgrohe; sinks: Reve, Kohler; faucets: Hansgrohe
The flooring consists of 12-by-24-inch porcelain tiles. The field tile around the tub and shower stall is a 4-by-16-inch matte white tile that provides a subtle background for the blue accent tile.
Tip: Don’t skimp on plumbing fixtures, no matter what. “Nice quality fixtures — those are your workhorses in the bathroom,” Jamentz says. She cautions against finding less expensive versions of fixtures, warning that the interior components are often plastic and don’t hold up for very long.
Shower floor and niche tile: Akdo; floor tile: Strands collection, Emser Tile
Tip: Don’t skimp on plumbing fixtures, no matter what. “Nice quality fixtures — those are your workhorses in the bathroom,” Jamentz says. She cautions against finding less expensive versions of fixtures, warning that the interior components are often plastic and don’t hold up for very long.
Shower floor and niche tile: Akdo; floor tile: Strands collection, Emser Tile
Cost: Jamentz estimates that this project came in at about $48,000, including materials and construction but not design fees. To save money, no walls or plumbing were moved.
See more of this bathroom
See more of this bathroom
8. Transitional Style in the Face of a Difficult Shape
Location: Montreal
Size: 120 square feet (11.1 square meters)
Designer: Joanne Padvaiskas of Wow Great Place
The backstory: The previous bathroom offered minimal storage and a never-used corner tub that ate up most of the available space.
Solution: Designer Joanne Padvaiskas removed everything and relocated every piece of plumbing. She even moved the door leading into the room. A reconfigured layout put a now often-used stand-alone tub (smaller in scale than the previous tub) into the corner, freeing up space for a walk-in shower.
Paint: Storm (cabinetry) and Barely There (walls), Benjamin Moore
Location: Montreal
Size: 120 square feet (11.1 square meters)
Designer: Joanne Padvaiskas of Wow Great Place
The backstory: The previous bathroom offered minimal storage and a never-used corner tub that ate up most of the available space.
Solution: Designer Joanne Padvaiskas removed everything and relocated every piece of plumbing. She even moved the door leading into the room. A reconfigured layout put a now often-used stand-alone tub (smaller in scale than the previous tub) into the corner, freeing up space for a walk-in shower.
Paint: Storm (cabinetry) and Barely There (walls), Benjamin Moore
Vanity: The rearranging also freed up space for a new custom double vanity with lots of storage features.
Custom cabinetry: Jazzy Design
Shop for bathroom mirrors
Custom cabinetry: Jazzy Design
Shop for bathroom mirrors
Storage: A custom pullout holds hair products and cosmetics. A makeup mirror hangs at the perfect height for one of the clients.
Extra space: Moving the door to the bathroom allowed Padvaiskas to add a curbless shower and a dedicated toilet area.
Toilet: PMF Plumbing Supplies
Toilet: PMF Plumbing Supplies
Layout: Here you can see the configuration of the various components and how Padvaiskas won the game of inches to get space for everything her client wanted, including a spacious walk-in shower on the right, above the toilet.
Cost: $43,800, including materials, labor and design fees. Here’s how that broke down.
Contractor labor and designer: $16,000
Countertop, cabinetry (millwork): $9,000
Plumbing fixtures: $8,000
Tile (floor and in shower, including custom mosaic) and installation: $4,000
Lighting and heated floor (electrical): $3,000
New window: $800
Shower glass and other costs: $3,000
See more of this bathroom
More on Houzz
How to Lay Out a 100-Square-Foot Bathroom
How Much Does a Bathroom Remodel Cost?
Find bath designers and contractors
Get bathroom design ideas
Browse bath products and materials
Cost: $43,800, including materials, labor and design fees. Here’s how that broke down.
Contractor labor and designer: $16,000
Countertop, cabinetry (millwork): $9,000
Plumbing fixtures: $8,000
Tile (floor and in shower, including custom mosaic) and installation: $4,000
Lighting and heated floor (electrical): $3,000
New window: $800
Shower glass and other costs: $3,000
See more of this bathroom
More on Houzz
How to Lay Out a 100-Square-Foot Bathroom
How Much Does a Bathroom Remodel Cost?
Find bath designers and contractors
Get bathroom design ideas
Browse bath products and materials




























Location: Grand Rapids, Michigan
Size: 126½ square feet (11.8 square meters); 14 feet 8 inches by 8 feet 7½ inches
Designer: Josh Berghuis of Berghuis Construction
The backstory: For this new build, designer-builder Josh Berghuis was tasked with how to fit in a master bathroom that “didn’t need to be massive,” he says, but needed to include a walk-in shower, separate tub, double vanity and toilet.
Shower and tub: On the right, a 6-foot-long freestanding tub leads to a 4-by-4-foot walk-in shower, separated by a single piece of glass.
Tile: Textured stone tile covers two walls all the way to the ceiling. The floor is 24-by-24-inch black stone tiles.
Find a local bathroom designer in the Houzz pro directory