Houzz Tours
Traditional and Modern Blend Beautifully in an Elegant Remodel
A designer uses interior windows, warm accents and built-ins to make this London home more functional, inviting and cozy
Two of the most important elements in a home are daylight and well-functioning storage, and this Victorian row house in London was in need of both. Some of the rooms were dark, many had haphazard storage, and the decor was tired. So the owners invited designer Sybille Le Mene of Into Interior Design to rework all four floors to make them more cohesive, cozy and welcoming. The renovation happened in two stages. New interior windows, elegant built-in storage and rich colors have gently brought the house up to date.
To make the room feel cozier, Le Mene introduced soft curves, pale wood and warm accents. She swapped the dark wood floor for oak herringbone parquet, which adds gentle pattern, and chose a thick cream area rug in a similar geometric. She also installed in-floor heating to ensure the space felt as cozy as it looks.
Le Mene has used cool blues and greens throughout the house, but she’s also woven in warmer mustard and terra-cotta accents. “I like using timeless colors for the walls then an accent color on the furniture or cushions,” she says. “At the beginning, [the couple] wanted white everywhere, but they changed as they noticed color could really add impact, warmth and coziness, and that it was important to create contrast.”
Curvy couches and coffee tables soften the hard lines.
Flooring: herringbone engineered oak, Havwoods; coffee tables in iroko wood and Carrara marble: The Socialite Family; mustard couch: Love Your Home; off-white couch: Poliform
Le Mene has used cool blues and greens throughout the house, but she’s also woven in warmer mustard and terra-cotta accents. “I like using timeless colors for the walls then an accent color on the furniture or cushions,” she says. “At the beginning, [the couple] wanted white everywhere, but they changed as they noticed color could really add impact, warmth and coziness, and that it was important to create contrast.”
Curvy couches and coffee tables soften the hard lines.
Flooring: herringbone engineered oak, Havwoods; coffee tables in iroko wood and Carrara marble: The Socialite Family; mustard couch: Love Your Home; off-white couch: Poliform
The curtain fabric is embroidered linen and adds gentle texture and color from floor to ceiling. “It works with both the contemporary and more traditional styles,” Le Mene says.
The alcove cabinet was custom-made, and brass handles continue the curvy theme. Le Mene fitted shelves above for books and display.
Cabinet paint: Sloe Blue No. 87, Farrow & Ball; curtain fabric, Élitis
Find an interior designer on Houzz
The alcove cabinet was custom-made, and brass handles continue the curvy theme. Le Mene fitted shelves above for books and display.
Cabinet paint: Sloe Blue No. 87, Farrow & Ball; curtain fabric, Élitis
Find an interior designer on Houzz
To add a sense of sophistication to the room, Le Mene created paneling using resin beading glued to the walls. “The strips are very thin — 2.5 centimeters [1 inch] wide,” she says. “I was adding quite a lot, so I wanted something light. They’ve made a huge difference, bringing elegance to a room that wasn’t very interesting.”
The walls are painted a chalk shade. “There’s no yellow in it. There’s a little gray, but it’s very warm and it reflects the light as pure white would so it improves the light in the room,” she says.
The pale paint and simple moldings form the perfect backdrop for the couple’s treasured paintings, which they wanted to showcase. “I wanted to create a contemporary background but with antique touches,” Le Mene says.
The blue built-in cabinet and marble and walnut buffet bring in more curves and, in addition to closed storage, offer display space for some of the couple’s sculptures.
The entrance into the home office was previously open, but Le Mene installed steel-framed glass doors so it could be closed off when necessary but without blocking light.
Wall paint: Slaked Lime No. 105, Little Greene; olive green metal office furniture: USM; beading: PX201, Orac; steel-framed doors: Perla Windows; buffet: Calligaris
The walls are painted a chalk shade. “There’s no yellow in it. There’s a little gray, but it’s very warm and it reflects the light as pure white would so it improves the light in the room,” she says.
The pale paint and simple moldings form the perfect backdrop for the couple’s treasured paintings, which they wanted to showcase. “I wanted to create a contemporary background but with antique touches,” Le Mene says.
The blue built-in cabinet and marble and walnut buffet bring in more curves and, in addition to closed storage, offer display space for some of the couple’s sculptures.
The entrance into the home office was previously open, but Le Mene installed steel-framed glass doors so it could be closed off when necessary but without blocking light.
Wall paint: Slaked Lime No. 105, Little Greene; olive green metal office furniture: USM; beading: PX201, Orac; steel-framed doors: Perla Windows; buffet: Calligaris
Before: The former office had messy open shelves and room for only one person to work at the desk.
After: The new custom desk is long enough to accommodate two people if necessary. The wood brings in warmth while the curved top and fluted legs continue the soft shapes introduced in the living room. Le Mene has added metal storage cabinets on either side.
She has also given anyone working here a pleasing vista. “Because the room is so narrow, it didn’t look inviting. I hung this wallpaper so it feels as if they’re looking at a landscape,” she says.
In place of the open shelves, built-in closets now run the length of the room and hide pipework as well as office paraphernalia. Le Mene has echoed the curved desk with subtle arches at the top of the doors. “They’re just pieces of MDF stuck on, but they’re very effective,” she says. The handles are also round and have a gentle ribbed texture that echoes the fluting on the desk legs.
Wallpaper: Isidore Leroy; closet handles: Hendel & Hendel
She has also given anyone working here a pleasing vista. “Because the room is so narrow, it didn’t look inviting. I hung this wallpaper so it feels as if they’re looking at a landscape,” she says.
In place of the open shelves, built-in closets now run the length of the room and hide pipework as well as office paraphernalia. Le Mene has echoed the curved desk with subtle arches at the top of the doors. “They’re just pieces of MDF stuck on, but they’re very effective,” she says. The handles are also round and have a gentle ribbed texture that echoes the fluting on the desk legs.
Wallpaper: Isidore Leroy; closet handles: Hendel & Hendel
This shot illustrates how elegantly Le Mene has blended old and new, with the modern stick wall light echoing the thin lines of the traditional paneling. “The light is very contemporary on purpose because I really wanted to mix both styles,” she says.
The doorway into the entrance hall was originally double width, but Le Mene narrowed it to allow more space for the blue storage unit, which, along with the alcove cabinet, is painted in the same color as the hallway.
As the hallway is narrow and was quite dark, Le Mene knocked out the wall behind the couch and installed a steel-framed interior window.
Wall light: Filin, Wever & Ducré; storage unit paint: Sloe Blue No. 87, Farrow & Ball
See why you should hire a professional who uses Houzz Pro software
The doorway into the entrance hall was originally double width, but Le Mene narrowed it to allow more space for the blue storage unit, which, along with the alcove cabinet, is painted in the same color as the hallway.
As the hallway is narrow and was quite dark, Le Mene knocked out the wall behind the couch and installed a steel-framed interior window.
Wall light: Filin, Wever & Ducré; storage unit paint: Sloe Blue No. 87, Farrow & Ball
See why you should hire a professional who uses Houzz Pro software
Before: The hallway is just 31.5 inches (80 centimeters) wide with a ceiling height of 9 feet (2.8 meters), so before the window was installed the space felt quite oppressive.
After: Now, looking from the entrance door, it’s clear to see how much more open the hallway looks thanks to the wall of glass.
The deep blue color has made the space enveloping and cozy. “It’s nice that you have a dark entrance, then you arrive in the bright living room, so there’s a strong contrast,” Le Mene says. The large mirror helps to boost light both in here and in the living room.
She added a chair, or dado, rail a third of the way up the wall — a common feature in Victorian properties — and was originally planning to use the blue only below it as she thought the owners may not want too much color. “But they said they loved it and why not paint the whole entrance,” she says.
The room visible at the back just beyond the stairs is a guest-TV room. The stairs to the basement sit beneath this flight up to the second floor.
Wall paint: Sloe Blue No. 87, Farrow & Ball; brass wall light: Wever & Ducré; glass and brass pendant light: Caravane; mirror: Maison Sarah Lavoine
The deep blue color has made the space enveloping and cozy. “It’s nice that you have a dark entrance, then you arrive in the bright living room, so there’s a strong contrast,” Le Mene says. The large mirror helps to boost light both in here and in the living room.
She added a chair, or dado, rail a third of the way up the wall — a common feature in Victorian properties — and was originally planning to use the blue only below it as she thought the owners may not want too much color. “But they said they loved it and why not paint the whole entrance,” she says.
The room visible at the back just beyond the stairs is a guest-TV room. The stairs to the basement sit beneath this flight up to the second floor.
Wall paint: Sloe Blue No. 87, Farrow & Ball; brass wall light: Wever & Ducré; glass and brass pendant light: Caravane; mirror: Maison Sarah Lavoine
This is the guest-TV room seen behind the stairs. It contains a sleeper-sofa. There’s a Samsung Frame TV across from it that looks like an artwork when it’s switched off.
The right-hand section of the built-in under the window is open to act as a nightstand when guests are staying over. As the existing sleeper-sofa was blue, Le Mene chose a line drawing in deep blue for the wallpaper.
Panoramic wallpaper: Isidore Leroy
The right-hand section of the built-in under the window is open to act as a nightstand when guests are staying over. As the existing sleeper-sofa was blue, Le Mene chose a line drawing in deep blue for the wallpaper.
Panoramic wallpaper: Isidore Leroy
Floor plan: The first-floor plan shows where the wide, double-door entrance into the living room has been reduced to fit in the shelving unit. You can also see that the guest-TV room has two closets for coats and shoes to make up for the lack of storage in the narrow hallway.
Before: The basement was the first level Le Mene remodeled. The kitchen was sandwiched between two rooms, so it didn’t get much daylight. “Originally, there was a bedroom at the front [behind the camera] and an almost solid wall at the back [seen here], so the kitchen was dark,” she says.
With the owners’ children away at university, the need for five bedrooms had diminished and they saw an opportunity to remove the basement bedroom and transform the area into a bright, open space where natural light could flow across the entire floor.
With the owners’ children away at university, the need for five bedrooms had diminished and they saw an opportunity to remove the basement bedroom and transform the area into a bright, open space where natural light could flow across the entire floor.
After: Le Mene removed the bedroom at the front, reduced the width of the supporting pillars and installed an interior glass panel (pictured) to open up the kitchen, with daylight now coming in from front and back.
The sleek new cabinets are painted in a color that’s a pale, calm mix of blue, green and black, while white marble-style quartz countertops boost the light.
Oak shelves between the cabinets keep the look open and bring in warmth. An LED strip light has been routed into the base of the lower shelf to illuminate the sink area. The induction cooktop has an integrated downdraft range hood (extractor), keeping sightlines open above the island.
The wooden door seen at the back of the stairs is a general storage cupboard. The glass door next to it gives access to wine storage.
Kitchen: John Lewis of Hungerford; spray-painted in Blue Gray No. 91, Farrow & Ball; countertops: Calacatta Gold, Silestone; steel-framed fixed screen: Perla Windows
The sleek new cabinets are painted in a color that’s a pale, calm mix of blue, green and black, while white marble-style quartz countertops boost the light.
Oak shelves between the cabinets keep the look open and bring in warmth. An LED strip light has been routed into the base of the lower shelf to illuminate the sink area. The induction cooktop has an integrated downdraft range hood (extractor), keeping sightlines open above the island.
The wooden door seen at the back of the stairs is a general storage cupboard. The glass door next to it gives access to wine storage.
Kitchen: John Lewis of Hungerford; spray-painted in Blue Gray No. 91, Farrow & Ball; countertops: Calacatta Gold, Silestone; steel-framed fixed screen: Perla Windows
From here you can see how removing the bedroom from the front of the basement and opening up the wall between the kitchen and dining area helped to spread light through the whole floor.
In place of the previous two styles of floor — tile and wood boards — which looked disjointed and were past their prime (see “before” photo), Le Mene has laid wood-look herringbone tile throughout. “It’s amazing,” she says. “I had someone call me one day saying she wanted the same wood floor as in this project and I had to say, ‘No, it’s tile,’ and she couldn’t believe it.”
Floor tile: Wood-look herringbone, Ca’ Pietra
In place of the previous two styles of floor — tile and wood boards — which looked disjointed and were past their prime (see “before” photo), Le Mene has laid wood-look herringbone tile throughout. “It’s amazing,” she says. “I had someone call me one day saying she wanted the same wood floor as in this project and I had to say, ‘No, it’s tile,’ and she couldn’t believe it.”
Floor tile: Wood-look herringbone, Ca’ Pietra
A custom-made buffet in deep green adds roomy storage for dining paraphernalia, while wall niches provide display space.
As in the hallway, Le Mene has hung a large mirror to boost the light.
Buffet paint: Studio Green No. 93, Farrow & Ball
As in the hallway, Le Mene has hung a large mirror to boost the light.
Buffet paint: Studio Green No. 93, Farrow & Ball
Le Mene has subtly zoned the seating and dining spaces using an area rug and panoramic wallpaper. The paper echoes the climbers in the yard and creates a sense of depth.
The small building just glimpsed at the back of the yard is a storage and gym area.
Dining table: Ethnicraft; terra-cotta velvet dining chairs: Calligaris; wallpaper: Isidore Leroy; terra-cotta side table: Rail Edition, Gwendoline Porte
The small building just glimpsed at the back of the yard is a storage and gym area.
Dining table: Ethnicraft; terra-cotta velvet dining chairs: Calligaris; wallpaper: Isidore Leroy; terra-cotta side table: Rail Edition, Gwendoline Porte
The building seen through the kitchen window at the front of the house contains the laundry room and bike storage and is accessed via a corridor (see floor plan below).
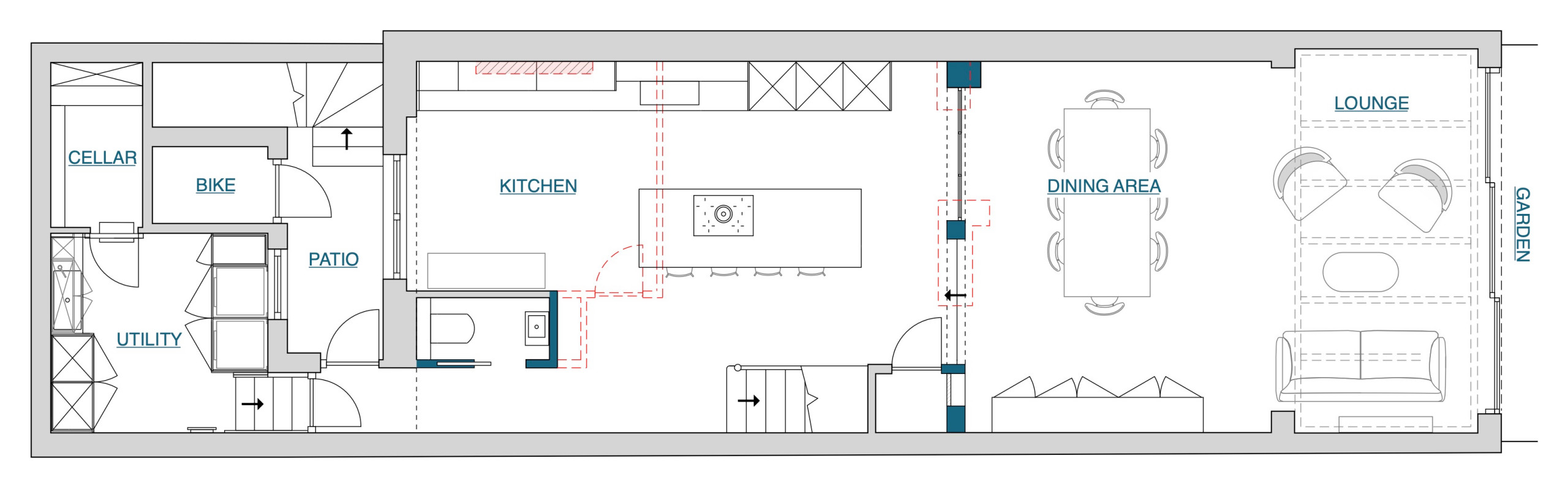
Floor plan: The red lines on this basement floor plan show how the structural pillars between the kitchen and dining area were narrowed, and indicates where the bedroom used to sit and the way it blocked all light from the front patio, which is essentially a lightwell.
Le Mene also carved out a little powder room next to the kitchen.
Le Mene also carved out a little powder room next to the kitchen.
This is the route to the laundry and powder room from the kitchen. It’s painted the same color as the kitchen cabinets.
The powder room is accessed off the corridor. The blue and green palette running through the house continues in here courtesy of green paint with a blue undertone. Le Mene has used more panoramic wallpaper — in this case a washable design. “It doesn’t look like vinyl, it looks like paper,” she says.
Washable wallpaper: Isidore Leroy; wall paint: Ambleside No. 304, Little Greene
Washable wallpaper: Isidore Leroy; wall paint: Ambleside No. 304, Little Greene
Custom cabinetry makes the most of the laundry room, offering masses of storage. Le Mene has picked up on the terra-cotta color seen in the dining chairs to bring warmth into this potentially stark room.
Opposite this unit is a washing machine, tumble dryer and long worktop underneath a window onto the tiny patio (see floor plan above).
Cabinet paint: Red Earth No. 64, Farrow & Ball; white tile: Claybrook Studio
Opposite this unit is a washing machine, tumble dryer and long worktop underneath a window onto the tiny patio (see floor plan above).
Cabinet paint: Red Earth No. 64, Farrow & Ball; white tile: Claybrook Studio
The daughter’s room on the second floor simply needed a refresh. “The unit was existing, but we changed the shelves for oak, backed them with wallpaper, and swapped the handles,” Le Mene says.
The joinery has been painted in beige with a hint of pink, which works well with the pale pink wallpaper. The floorboards are original.
There’s also a desk and chair in the room, out of shot.
Wallpaper: Isidore Leroy; joinery paint: Archive No. 227, Farrow & Ball; brass wall light: Pooky
The joinery has been painted in beige with a hint of pink, which works well with the pale pink wallpaper. The floorboards are original.
There’s also a desk and chair in the room, out of shot.
Wallpaper: Isidore Leroy; joinery paint: Archive No. 227, Farrow & Ball; brass wall light: Pooky
Also on this floor is another bedroom and the bathroom pictured. In addition to the blue and brass, the accent color in here is pink to coordinate with the daughter’s bedroom.
The primary bedroom and bathroom are on the top floor. Storage was a priority in the bedroom. Because the windows are set quite high, Le Mene was able to build in a long bank of roomy drawers underneath.
Bedding: Caravane; Roman shades fabric: Romo
Bedding: Caravane; Roman shades fabric: Romo
Along the side wall, Le Mene installed a bank of closets and added interest with sisal wallpaper panels. “The room looked a bit boring, so I wanted to add texture,” she says.
The second and third closets from the left are shallow inside, as they sit in front of a chimney breast (see floor plan below). The two closets are only 12 inches (30cm) deep, but that’s fine for shoes and bags, Le Mene says.
There are also two single closets just out of shot on the right (see floor plan below).
For the dressing table, Le Mene has used a durable walnut laminate as it’s designed for using a laptop as well as applying makeup and needed to be robust.
The brass pendant lights add warmth and free up space on the surface. Le Mene likes to echo colors and designs throughout a home for a sense of continuity and these are the same lights as she installed in the basement (at the back of the kitchen). “I like the idea of having the same design upstairs,” she says.
Natural sisal wallpaper: CMO Paris; closet handles: Plank Hardware; pendant lights: Wever & Ducré; dressing table: walnut laminate, Egger
The second and third closets from the left are shallow inside, as they sit in front of a chimney breast (see floor plan below). The two closets are only 12 inches (30cm) deep, but that’s fine for shoes and bags, Le Mene says.
There are also two single closets just out of shot on the right (see floor plan below).
For the dressing table, Le Mene has used a durable walnut laminate as it’s designed for using a laptop as well as applying makeup and needed to be robust.
The brass pendant lights add warmth and free up space on the surface. Le Mene likes to echo colors and designs throughout a home for a sense of continuity and these are the same lights as she installed in the basement (at the back of the kitchen). “I like the idea of having the same design upstairs,” she says.
Natural sisal wallpaper: CMO Paris; closet handles: Plank Hardware; pendant lights: Wever & Ducré; dressing table: walnut laminate, Egger
Floor plan: The top floor plan shows two extra closets not seen in the photos (either side of the entrance door), further boosting the amount of storage in here. You can also see how the bank of closets evens out the wall around the chimney breast.
The old primary bathroom was fairly plain, so Le Mene has introduced color and texture. Again echoing an element from downstairs, the fluted oak of the custom vanity echoes the fluted legs of the home office desk on the first floor.
One of the advantages of hiring a professional is their access to custom products, and this bathroom is a good example. Le Mene asked bathroom supplier Porter to make the lights in softer brushed brass rather than standard polished brass so they matched the faucets. She also had these mirrors, usually supplied as cabinets, made as simple wall mirrors with demister pads behind.
Countertop: Caesarstone; tile: Mandarin Stone; mirrors and pendant lights: Porter Bathroom
One of the advantages of hiring a professional is their access to custom products, and this bathroom is a good example. Le Mene asked bathroom supplier Porter to make the lights in softer brushed brass rather than standard polished brass so they matched the faucets. She also had these mirrors, usually supplied as cabinets, made as simple wall mirrors with demister pads behind.
Countertop: Caesarstone; tile: Mandarin Stone; mirrors and pendant lights: Porter Bathroom
The blues and greens the owners love come together in the teal tile used in the generous curbless shower and as a backsplash behind the vanity.
With all four floors now finished, the home feels cohesive and welcoming. The owners tell Le Mene that there’s a lovely vibe that makes them want to linger in the rooms now.
They say she gave their home a modern touch while respecting their desire to preserve their Impressionist paintings, family mementos and personal character — making it a true home, one that is not only beautiful, but also comfortable and joyful to live in.
More on Houzz
Read more stories
Browse photos for ideas
Find home professionals
With all four floors now finished, the home feels cohesive and welcoming. The owners tell Le Mene that there’s a lovely vibe that makes them want to linger in the rooms now.
They say she gave their home a modern touch while respecting their desire to preserve their Impressionist paintings, family mementos and personal character — making it a true home, one that is not only beautiful, but also comfortable and joyful to live in.
More on Houzz
Read more stories
Browse photos for ideas
Find home professionals































House at a Glance
Who lives here: A family with four children, three of whom have left home
Location: Fulham, southwest London
Size: Four bedrooms and two bathrooms
Designer: Sybille Le Mene of
Into Interior Design
The house consists of four floors: a basement with an opening onto the backyard; the first floor with an entrance at street level; the second floor containing the daughter’s bedroom and bathroom; and a third floor containing the primary bedroom and bathroom.
The basement kitchen, dining and seating space was completed three years ago, with Le Mene returning to remodel the remaining three floors in 2025.
Once the basement was done, the owners largely spent their time down there, and this living room (pictured) on the first floor became neglected. “They wanted it to be nice and welcoming and somewhere they could invite guests,” Le Mene says.