Wood, White and Green Bathroom With a Bold Surprise
Walnut, marble, deep green tile, brass and a flamboyant wallpaper create a striking new look in a gut remodel
This Portland, Oregon, couple knew their primary bathroom was on borrowed time. A poorly executed renovation years earlier had left the space in rough shape, and when the wall-mounted vanity began pulling away from the wall, it became clear a full remodel was needed. Beyond fixing the problems, the homeowners also wanted a bathroom that reflected their personal style.
They hired contractor Arent Wortel and designer Joel Fraley for the project. Wortel focused on making the room structurally sound, while Fraley worked closely with the homeowners to create a bold, memorable look. “These clients are very outgoing and love bold style,” Fraley says.
They hired contractor Arent Wortel and designer Joel Fraley for the project. Wortel focused on making the room structurally sound, while Fraley worked closely with the homeowners to create a bold, memorable look. “These clients are very outgoing and love bold style,” Fraley says.
After: The wife suggested introducing a bold green tile, which became the jumping-off point for the entire design. “It was just a matter of finding one in the right color and shape,” Fraley says. “Everything else fell into place from there.” That “everything else” includes a walnut double vanity with a marble mosaic tile backsplash, marble floors, a sculptural tub and refined brass accents.
Fraley describes the home’s architecture as contemporary Northwest with hints of midcentury modern style. That sensibility guided the creation of a clean-lined bathroom with a carefully curated material palette. The walnut on the vanity is bookmatched, allowing the wood grain to flow continuously across the doors and drawers. Its legs give it a lighter, furniture-like appearance, while a brass toekick prevents dust from collecting underneath.
Behind the cabinet doors, a pullout shelf holds a trash bin and allows easy access to items stored in back. Inset flush doors and drawers feature European soft-close hinges that sit flat within the frame. Together, these details make the vanity both highly functional and visually streamlined.
Find a bathroom remodeler on Houzz
Fraley describes the home’s architecture as contemporary Northwest with hints of midcentury modern style. That sensibility guided the creation of a clean-lined bathroom with a carefully curated material palette. The walnut on the vanity is bookmatched, allowing the wood grain to flow continuously across the doors and drawers. Its legs give it a lighter, furniture-like appearance, while a brass toekick prevents dust from collecting underneath.
Behind the cabinet doors, a pullout shelf holds a trash bin and allows easy access to items stored in back. Inset flush doors and drawers feature European soft-close hinges that sit flat within the frame. Together, these details make the vanity both highly functional and visually streamlined.
Find a bathroom remodeler on Houzz
To accommodate the couple’s storage needs, Fraley added two countertop cabinets. Interior outlets power toothbrushes, shavers and hair tools. Extending the cabinets to the ceiling draws the eye upward and gives the vanity wall a strong architectural presence.
Because there wasn’t enough space for both countertop cabinets and two sinks, Fraley proposed a long trough sink with dual faucets. “It’s nice to be able to pull out tricks we have up our sleeves like this when they are needed,” he says.
Marble-look quartz countertops coordinate with other marble finishes in the bathroom. The homeowners opted for quartz over real marble for its durability and resistance to water spotting.
Backsplash tile: Ann Sacks; faucets: Hansgrohe
Find a bathroom designer on Houzz
Because there wasn’t enough space for both countertop cabinets and two sinks, Fraley proposed a long trough sink with dual faucets. “It’s nice to be able to pull out tricks we have up our sleeves like this when they are needed,” he says.
Marble-look quartz countertops coordinate with other marble finishes in the bathroom. The homeowners opted for quartz over real marble for its durability and resistance to water spotting.
Backsplash tile: Ann Sacks; faucets: Hansgrohe
Find a bathroom designer on Houzz
The intricate marble mosaic tile backsplash adds elegance and movement to the vanity wall. Here, the simplicity of the single-hole faucets, conical sconces and round mirror complements the tile rather than competing with it. On the right, Fraley positioned a makeup mirror so the nearby sconce would illuminate that area.
Tile placement throughout the bathroom required careful planning. “We were really, really careful to minimize the cuts on the tile,” Fraley says. “They are all full tiles except for the top and the bottom rows, where we tried to split the difference.”
Using a gridded tile layout also meant the ceiling needed to appear level. “Because the ceiling was not level, the sheetrockers added a heavy coat of mud to meet the top of the tile line evenly,” Wortel says. Otherwise, the angled line would have subtly thrown off the entire room.
Using a gridded tile layout also meant the ceiling needed to appear level. “Because the ceiling was not level, the sheetrockers added a heavy coat of mud to meet the top of the tile line evenly,” Wortel says. Otherwise, the angled line would have subtly thrown off the entire room.
The wall tiles edging the tub and shower area have finished glazed edges. Eliminating the need for tile edging strips helped maintain the bathroom’s clean-lined look.
Previously, double doors connected the bathroom and bedroom (left). By reducing the opening, Fraley gained space around the tub. This is one of two new red birch and etched glass pocket doors in the bathroom; the other opens to the primary closet. The birch matches other doors in the home, while the etched glass allows light to pass through while preserving privacy.
The bathtub and shower stall sit on a platform. Large-format marble tiles with a water-rated honed finish cover the platform in the tub area, providing slip resistance.
Previously, double doors connected the bathroom and bedroom (left). By reducing the opening, Fraley gained space around the tub. This is one of two new red birch and etched glass pocket doors in the bathroom; the other opens to the primary closet. The birch matches other doors in the home, while the etched glass allows light to pass through while preserving privacy.
The bathtub and shower stall sit on a platform. Large-format marble tiles with a water-rated honed finish cover the platform in the tub area, providing slip resistance.
Overhead, the white-glass-and-brass ceiling light is damp-rated and adds an intricate flower pattern to the modern material palette. It’s also a hint that a big floral surprise awaits elsewhere in the bathroom.
After: While the shower stall remained in the same location, Fraley relocated the entry to the adjacent side and left it open, greatly improving circulation in and out of the shower.
The marble-tile-clad platform continues into the shower, where the floor shifts to 2-by-2-inch tiles. The increased grout lines provide extra traction. The rich green wall tile extends into the shower as well. Notice how the top row of tiles on the partial wall (left) remains full-size and aligns perfectly with the tiles and grout lines on the adjacent wall — a result of meticulous planning and installation.
Although the raised platform was primarily an aesthetic decision, Fraley notes that it’s also practical. Because the shower has no door or divider, the floor needed to slope toward a linear drain at the back. “Because this bathroom is on the second floor, it was easier to run the plumbing beneath a raised platform to create the slope required for the shower to drain,” he says. “Otherwise, we would have had to get into the floor joists [to create the required slope] and risked damaging the ceiling below.”
The shower controls are positioned within easy reach from outside the stall, allowing the homeowners to turn on the water and let it warm up before stepping in. Two hooks just outside the shower provide convenient spots for towels or robes.
The marble-tile-clad platform continues into the shower, where the floor shifts to 2-by-2-inch tiles. The increased grout lines provide extra traction. The rich green wall tile extends into the shower as well. Notice how the top row of tiles on the partial wall (left) remains full-size and aligns perfectly with the tiles and grout lines on the adjacent wall — a result of meticulous planning and installation.
Although the raised platform was primarily an aesthetic decision, Fraley notes that it’s also practical. Because the shower has no door or divider, the floor needed to slope toward a linear drain at the back. “Because this bathroom is on the second floor, it was easier to run the plumbing beneath a raised platform to create the slope required for the shower to drain,” he says. “Otherwise, we would have had to get into the floor joists [to create the required slope] and risked damaging the ceiling below.”
The shower controls are positioned within easy reach from outside the stall, allowing the homeowners to turn on the water and let it warm up before stepping in. Two hooks just outside the shower provide convenient spots for towels or robes.
The shower niche further demonstrates the thoughtful tilework. Two rows of full tiles inside the niche allow the grid pattern to continue uninterrupted. “We always try very hard to make tiles line up perfectly like this,” Wortel says.
See why you should hire a professional who uses Houzz Pro software
See why you should hire a professional who uses Houzz Pro software
This pocket door opens to a newly outfitted walk-in closet that was also part of the renovation.
Marble floor tile continues into the toilet room, where a dramatic surprise awaits. The exuberant wallpaper is by local artist Kate Blairstone, a favorite of the homeowners. Before this project, they had commissioned her to paint a mural in their downstairs bathroom.
Originally, the wife had hoped for a bathroom entirely clad in pink marble, but the cost and complexity made it impractical. “She said that if she couldn’t have her pink marble bathroom, then we absolutely had to use this wallpaper,” Fraley says. “We certainly got some pink into the room this way.” The wallpaper wraps the walls and ceiling, creating an immersive floral experience in the toilet room.
Wallpaper: Heirloom Roses, Kate Blairstone x Manolo Walls
New to home remodeling? Learn the basics
Originally, the wife had hoped for a bathroom entirely clad in pink marble, but the cost and complexity made it impractical. “She said that if she couldn’t have her pink marble bathroom, then we absolutely had to use this wallpaper,” Fraley says. “We certainly got some pink into the room this way.” The wallpaper wraps the walls and ceiling, creating an immersive floral experience in the toilet room.
Wallpaper: Heirloom Roses, Kate Blairstone x Manolo Walls
New to home remodeling? Learn the basics
Along with the marble floor, a walnut shelf visually ties the toilet room to the rest of the bathroom.
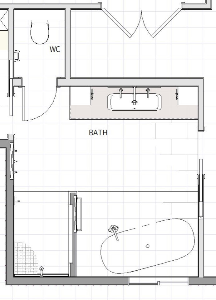
Floor plan (after): While the bathroom footprint remained the same, the layout was refined. New pocket doors on either side of the bathroom and a dividing wall between the tub and shower define the updated plan. Comparing the two layouts shows how removing the double doors allowed Fraley to extend the wall at the bottom right.
The homeowners transformed a failing bathroom — complete with a vanity propped up by a car jack — into a beautifully finished modern retreat. The final design reflects their bold yet refined tastes, and the room now brings a sense of joy each time they enter.
More on Houzz
Read more bathroom stories
Browse bathroom photos for ideas
Find design and remodeling pros
The homeowners transformed a failing bathroom — complete with a vanity propped up by a car jack — into a beautifully finished modern retreat. The final design reflects their bold yet refined tastes, and the room now brings a sense of joy each time they enter.
More on Houzz
Read more bathroom stories
Browse bathroom photos for ideas
Find design and remodeling pros



















Bathroom at a Glance
Who lives here: A couple and their two daughters
Location: Portland, Oregon
Size: 150 square feet (14 square meters)
Designer: Joel Fraley of Fraley + Co.
Builder: Arent Wortel of Right Arm Construction
Before: One thing the bathroom had going for it was a generous 150-square-foot footprint, which wasn’t changed during the renovation. However, the room was in terrible shape. “This had been a flip job in the early 2000s and it was very beige,” Fraley says. “It had a big tile tub surround that wasted a lot of space, and the floor of the shower had a lot of mildew and grout issues.” As the wall-mounted vanity began to fail, the homeowners resorted to propping it up with a car jack.
During demolition, Wortel uncovered rotted subflooring and discovered that all the plumbing and wiring needed replacement. He also found that the room required reframing.