Yard of the Week: Pergola, Patio and Privacy for Family Living
A landscape pro transforms a Toronto yard for a couple and their baby, with low-maintenance features and a phased design
With their first baby on the way, this Toronto couple wanted their yard to be family-friendly, with a grassy area for play. They also wanted an outdoor dining space and a pergola-covered lounge. Enter Alex Zalewski, a landscape designer and the co-owner of Infinite Possibilites Landscape Installation & Design. He worked with the homeowners on designing and installing these elements as part of a phased landscape design.
In addition, Zalewski added trees and shrubs for privacy and beauty, and redesigned the side yard. He kept easy maintenance at the front of his mind throughout the process. He also considered the master plan he’d drafted for the entire property. Later phases will include adding an outdoor kitchen and reworking the front yard.
In addition, Zalewski added trees and shrubs for privacy and beauty, and redesigned the side yard. He kept easy maintenance at the front of his mind throughout the process. He also considered the master plan he’d drafted for the entire property. Later phases will include adding an outdoor kitchen and reworking the front yard.
After: Zalewski took cues from the French doors off the new kitchen addition. He added the dining patio directly off them for easy access.
Browse patio furniture on Houzz
Browse patio furniture on Houzz
The homeowners plan to add a grilling station or small outdoor kitchen later. Zalewski created a spot for either to the left of the dining table, running conduits for gas, electricity and water to the area. For now, a sandbox occupies the space. This spot is convenient to the kitchen and the outdoor dining zone but also feels tucked away.
The patio surface is composed of natural flagstone in Dove Gray. In the pattern, called King’s Cross, rectangles of various sizes are staggered. There are no places where the corners of four rectangles meet. “Not having any four-corner joints makes for a more durable patio,” Zalewski says. “There is a 6-inch bed of concrete beneath the flagstones. The concrete was mixed to a cookie dough-like consistency. This provided structural integrity and durability.”
Pros Share Their Top Low-Maintenance Paving and Hardscape Picks
The patio surface is composed of natural flagstone in Dove Gray. In the pattern, called King’s Cross, rectangles of various sizes are staggered. There are no places where the corners of four rectangles meet. “Not having any four-corner joints makes for a more durable patio,” Zalewski says. “There is a 6-inch bed of concrete beneath the flagstones. The concrete was mixed to a cookie dough-like consistency. This provided structural integrity and durability.”
Pros Share Their Top Low-Maintenance Paving and Hardscape Picks
The project also included adding a perimeter fence, designed by the architect who completed the addition to the house. As with the rest of the landscape, Zalewski’s firm handled the installation. The design features 6-by-6-inch posts, 6-by-2-inch planks on the main body of the fence and a lattice detail along the top. The latter is composed of 1-by-2-inch planks with spacing between them, giving the yard a more open feeling.
The fence planks are cedar, but Zalewski knew he could save his clients money on the 6-by-6-inch cedar posts specified in the design. “Cedar posts in this size are very expensive — hundreds of dollars each — so we switched them out for pressure-treated spruce-pine-fir lumber,” he says. The color of this lumber is called Sienna Brown. It appears slightly darker than the cedar at first, but over time, things will patina to appear the same color. We saved our clients thousands of dollars by swapping in the pressure-treated lumber here,” he says. The homeowners opted not to stain the cedar, preferring the look of the silvery patina that will develop over time.
The fence planks are cedar, but Zalewski knew he could save his clients money on the 6-by-6-inch cedar posts specified in the design. “Cedar posts in this size are very expensive — hundreds of dollars each — so we switched them out for pressure-treated spruce-pine-fir lumber,” he says. The color of this lumber is called Sienna Brown. It appears slightly darker than the cedar at first, but over time, things will patina to appear the same color. We saved our clients thousands of dollars by swapping in the pressure-treated lumber here,” he says. The homeowners opted not to stain the cedar, preferring the look of the silvery patina that will develop over time.
This photo provides a closer look at the mowing strip that borders the lawn. Zalewski used 1-foot-wide flagstones that match the patios and stepping pavers. These pavers were placed at the same level as the mowing strip so the homeowners can run the mower right over them.
Adding irrigation systems — a drip irrigation system in the garden beds and a spray system in the grass — was another low-maintenance move.
The designer opted for columnar aspen (Populus sp.) trees toward the back of the yard to screen the yard from neighbors. “These trees create a bit of a visual barrier from the house behind them,” he says. “They also create some height. Screening like this doesn’t always need to be filled in completely, as the eye is drawn to the plants and then drawn up because of their verticality.”
10 Tips for Planting a Beautiful, Low-Maintenance Landscape
Adding irrigation systems — a drip irrigation system in the garden beds and a spray system in the grass — was another low-maintenance move.
The designer opted for columnar aspen (Populus sp.) trees toward the back of the yard to screen the yard from neighbors. “These trees create a bit of a visual barrier from the house behind them,” he says. “They also create some height. Screening like this doesn’t always need to be filled in completely, as the eye is drawn to the plants and then drawn up because of their verticality.”
10 Tips for Planting a Beautiful, Low-Maintenance Landscape
The 1-foot-wide mowing strip also borders the patios. This is is a visually pleasing way to tie the hardscape elements together.
After: Now the path leads to a a pergola-covered lounge. The Japanese maple between the fence and the path was existing, and Zalewski preserved it. A bed of Incrediball smooth hydrangeas (Hydrangea arborescens; USDA zones 3 to 8; find your zone) makes walking along the path to and from the pergola a lovely experience.
The pergola provides a shade-covered lounge where the family can gather. It’s also a great spot for keeping an eye on children playing in the yard.
Shop for outdoor lighting
Shop for outdoor lighting
Like the fence, the pergola is cedar. The patio is composed of the same natural stones in the same pattern as the dining patio. Boulders in the planting beds add a rugged natural touch that ties into the natural stone of the patio.
Check out our beginner’s guide to get started on your home project
Check out our beginner’s guide to get started on your home project
The mature canopy tree in the background was existing and provides lots of shade to other spots in the yard.
The house is located on a corner lot, bordered by roads on two sides. Zalewski added a line of columnar maples (Acer sp.) along the fence on the right for privacy. “These trees will add height without getting too wide. They also create a green wall that will help tamp down the sound from the road,” he says. The gate that leads to the side yard is located to the right.
How to Create Privacy in Your Yard With Plants and Structures
The house is located on a corner lot, bordered by roads on two sides. Zalewski added a line of columnar maples (Acer sp.) along the fence on the right for privacy. “These trees will add height without getting too wide. They also create a green wall that will help tamp down the sound from the road,” he says. The gate that leads to the side yard is located to the right.
How to Create Privacy in Your Yard With Plants and Structures
“Lately I’ve been adding outdoor chandeliers in projects like this whenever I can. Installing one in this structure totally changed the vibe. It really makes it feel like a room,” Zalewski says. He ran electrical lines out to the pergola for the chandelier and for audiovisual items such as a Wi-Fi repeater and speakers.
The clients added the outdoor fabric atop the pergola to protect the patio from tree litter. “The homeowner simply draped the fabric over the pergola and screwed it in along the ends. The fabric comes down in the winter and is stored in the garage,” Zalewski says. He also notes that the furniture came with high-quality covers for winter, but he recommends storing cushions like these indoors.
The clients added the outdoor fabric atop the pergola to protect the patio from tree litter. “The homeowner simply draped the fabric over the pergola and screwed it in along the ends. The fabric comes down in the winter and is stored in the garage,” Zalewski says. He also notes that the furniture came with high-quality covers for winter, but he recommends storing cushions like these indoors.
After: The new fence is much more attractive than the existing one was. A wide walkway, composed of the same flagstones used in the backyard, provides access from the street. There is another walkway that runs from the driveway to this path, hidden behind the tall ornamental grasses. The backyard gate is located where these two paths meet.
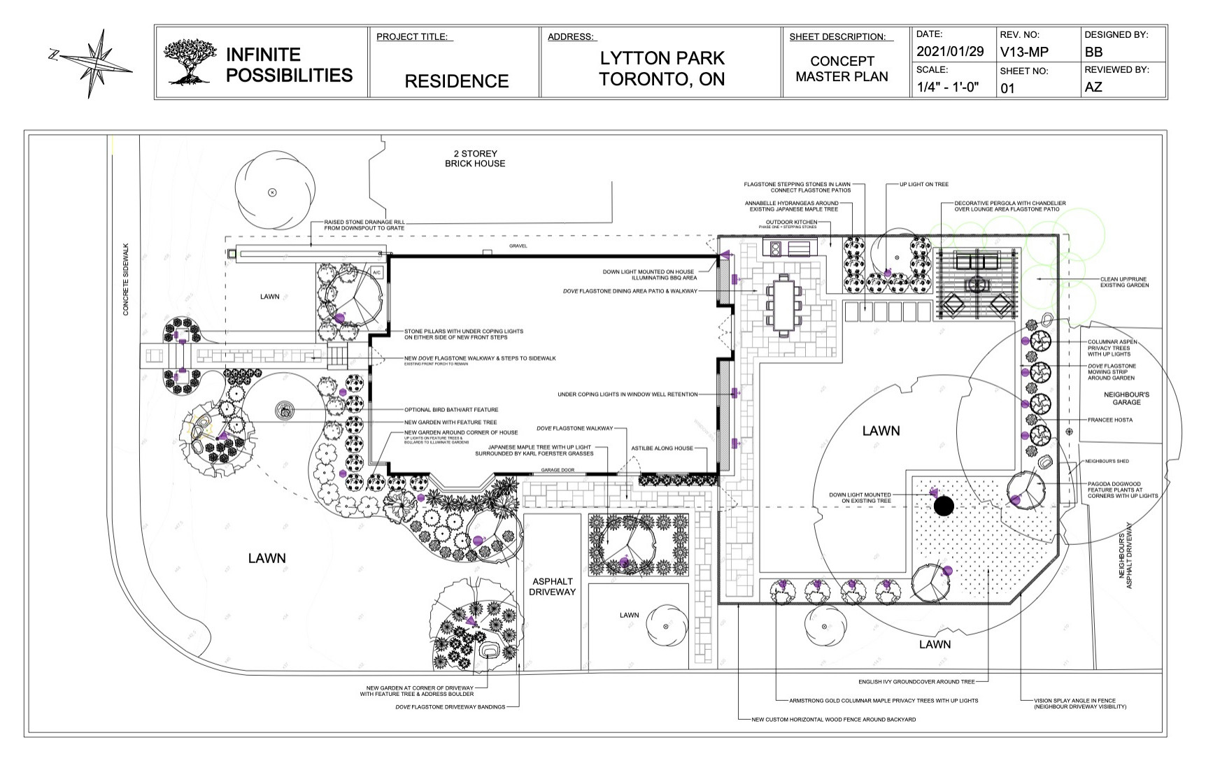
Master plan: Zalewski completed this master plan for the entire yard so that the homeowners could accomplish it in phases and maintain a cohesive look throughout the property. On this plan, the backyard is on the right and the side yard is at the bottom center. The next phases will include the outdoor kitchen, to be located in the top center of the backyard.
The front yard will be completed during another phase of the project. The priority in phase one was to get the backyard ready for the homeowners and their baby. Now they have space where they can enjoy the fresh air and relax during this new phase of their lives.
What You Should Know About a Phased Landscape Design Project
More on Houzz
Read more stories about patios
Browse thousands of patio photos
Hire a landscape contractor
Shop for your outdoor spaces
The front yard will be completed during another phase of the project. The priority in phase one was to get the backyard ready for the homeowners and their baby. Now they have space where they can enjoy the fresh air and relax during this new phase of their lives.
What You Should Know About a Phased Landscape Design Project
More on Houzz
Read more stories about patios
Browse thousands of patio photos
Hire a landscape contractor
Shop for your outdoor spaces






















Yard at a Glance
Who lives here: A young couple and their baby
Location: Toronto
Size: 3,600 square feet (334 square meters)
Landscape designer and installer: Infinite Possibilities Landscape & Design
The homeowners had recently moved in and extended the back of the house for a kitchen. The portion sticking out in the left side of this photo is that kitchen addition. Part of the landscape plan was to better connect the indoor spaces to the backyard through access, pathways, patios and views. But the biggest goal was to create a comfortable space with grass where kids could play and spots where their parents could watch them and gather with friends.
This aerial view provides a strong sense of the layout. The patio closest to the house is located off the kitchen and is for dining. From there, stepping pavers lead to a covered lounging patio.
The designer added a mowing strip around the yard to help lower maintenance. The homeowners can run the lawn mower’s wheels along it, eliminating the need for edging with a string trimmer. The strip also adds a crisp outline around the lawn and ties in with the other hardscape elements.
Find a local landscape designer