Software
Houzz Logo Print
lannegreene_gw

Old house kitchen layout - assistance requested

12 years ago

We are a 30 something couple, no kids, one cat (currently) living in a 95 year old house. We've taken care of "system" issues and remodeled the bathroom and are now ready to tackle the kitchen. I've been playing with the layout of this space for years, it just seems too limited! I need help from fresh eyes.
We are usually in the kitchen/mudroom together, one cooking the other doing laundry, going in/out, getting a drink or just visiting. We always seem to need the sink at the same time. We entertain family, 4-6 (generally) people at a time. Eating is done in the dining room or living room. I am a function over form person.
I would like to combine the kitchen and mudroom to open the space and aid function. The wall between the two is load bearing. The space will still need to serve as kitchen, laundry and entry/exit. I do not want to open up the kitchen to the dining room. Since the budget will have to deal with the kitchen/mudroom dividing wall, we would like to keep windows/doorways in place. I have been playing with moving the backdoor to the north wall, but there would have to be a big gain in functionality to justify doing it.
This stove is 20". I would like to have a 24" or 30" stove. The gas line is in back of the current stove, but we�ve only used electric. I would like a gas stove, but it is not a necessity. The refrigerator is 24", we do need a bit more room, a standard 18 cubic foot frig would be fine. We use the microwave daily to make oatmeal, steam cook vegetables or warm up leftovers. A coffee maker and toaster are our only other frequently used appliances.
Key issues:

  1. Traffic flows through key kitchen workspace. We need room for the cook to work without interference from the backdoor traffic, laundry traffic or just someone chatting with the cook.
    2. Always fighting to use the sink at the same time. Not just for cooking but to wash hands and clean up from laundry and outside, to get a drink, to clean up DIY project materials, you get the idea. The only other water source in the house is the upstairs bathroom.
    3. Cabinet drawers falling apart and too narrow for most uses.
    4. No exhaust over stove.
    5. Laundry is the focal point upon entering the backdoor. I would like to make it less conspicuous. Dirty laundry is stored and laundry is folded in the bedrooms.
    6. No space to sit to put shoes on/off, poor layout storage of shoes and coats.


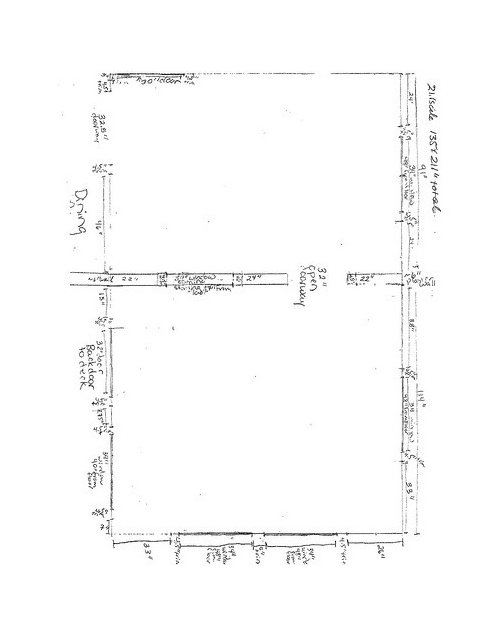
Layout of kitchen and mudroom.


The current layout with cabinets. The images don't show the measurements well at this size. The kitchen is 91"x 135", the mudroom is 114"x 135".


View in from the dining room. There is no door currently in place but I would like to install a swinging (32") door. The door to the basement (30") is at the immediate left, perpendicular to the dining room entry. The kitchen is in the northwest corner of the house. The sink is on the west wall. The refrigerator as shown is on the wall between the kitchen and mudroom. The doorway to the mudroom is between the refrigerator and the sink cabinets.


The backdoor leading to a deck. This is a 32" door on the east wall. There are two windows over the washer and dryer which face north to the vegetable garden and detached garage.


Backdoor is shown on the left, the wall shown divides the mudroom and kitchen.


West wall opposite the backdoor. Picture taken from window opening in wall between the two rooms.

Please let me know if I left out any information that would be helpful. I have considered finding a designer to help, but I've had such poor experinces with contractors (I know not the same, I should be more optimisic)I feel I need to understand the space first. We will be getting professionals to do most of the work, certainly working on the load-bearing wall.

Thank you for your time reading this. I hope someone will see this as a fun challange.

Comments (27)

  • 12 years ago
    last modified: 10 years ago

    I'd widen the 32 in opening betwen kitch/mudroom and close up the opening in the wall to the right of fridge....but not remove the wall. Across the back window wall you have about 17-18 feet and 2 double hung windows. do something old fashioned along that back wall and give yourself 2 sinks[wall mounted faucets,farmhouse sinks,drainboard,etc]. Pick your fridge and range choices and decide what and how much storage you want in the mudroom-you'll gain that closed up wall[with 48 in walk thru-the remaining wall can still be 5 feet or so]...so can install on both sides. Backroom-butler pantry style storage mixed with laundry.... with more upscale looks for the kitchen. you can get some serious storage going in that mudroom...I would think about a cabinet to house the washer dryer as well. Lighting/redoing the ceiling/new floor-but the windows and doors and basically the walls can stay intact and get a fun interesting space. You've decided to leave living/dining rooms alone,so it's not going to really be an open plan so dealing with this as 2 rooms,yet adjacent so the storage and retrieval from the one to the other[which is basically what you are doing but in a dysfunctional way], is the way I'd approach it.

  • 12 years ago
    last modified: 10 years ago

    Wow, what a great space! From one vintage homeowner to another (DINKs with cats and chickens and gardens), I throw a hearty "Woo-hoo!" your way.

    Yes, with 11ish by 17ish feet, you should be able to get your kitchen (with a full sized 30' range and a dishwasher) and laundry all in one space by replacing the wall with a beam. Unfortunately I can't clearly see all your measurements--the hand drawing in photobucket is blurry for me, so can't tell exactly where the doors and windows are. Could you post something with darker lines? We're dealing with a similar sized space (17x15) with laundry and back-door-shoe-removal and hand-washing and drink-getting and garden-washing situations.

    You don't say what your timeline is, but if you can live with it a while, it may help to develop several floorplans and then tape them off on the floor to see how they feel in the space before engaging a kitchen designer. We had a really bad experience with getting very expensive "as built" base plans before we really knew what WE wanted, so wasted our time and the designer's.

    You're on the right track -- prioritize what you know you need, like traffic flow, the "landing pad" for taking off shoes, a full-sized range and ventilation, and perhaps a second sink. It's not that hard to put in a bar/laundry sink next to a W/D because supply is there, but you may have issues with drain or vent stack depending on if you're on slab vs. foundation and whether or not the laundry was vented correctly to begin with. In your budget, invest in the infrastructure, framing and systems from the beginning, and you can always add cabs and finishes, fancy countertops and lighting, etc. later. Good luck and have fun!

  • 12 years ago
    last modified: 10 years ago

    This reminds me a lot of our old kitchen, as does your list of things to improve. :) The main difference for us was that the previous owner had already moved the laundry to the garage, so we left it there--but designed to allow it to return in the future. Taking the wall down made all the difference in the world--do it!

    Adding a second sink in the laundry area would be great, though we kept a single sink and found that a lot of our sink issues went away with a better layout (and a dishwasher!) Same deal where our only other sink is the bathroom, though, and if it had worked with the layout I would have adored a utility sink. I still hope to put an outdoor sink outside the back door at some point, though, which would also help.

    Our total space is 204" x 154", so a similar footprint. For us, the magic layout was an L, with additional counter/cabinetry (and in our case, the fridge, since we couldn't fit it on the L) opposite the corner of the L (if that makes any sense at all!) It looks like something similar could work here too, though I'm also having a hard time reading the diagrams well enough to see windows/doors clearly.

    We designed a shoe bench with coat storage and shelving above it that's in line with our cabinetry to deal with shoes/coats/sitting. It was a pretty inexpensive solution and can always be replaced with something more elaborate later--we just left space open between two cabinets and had a handyman build a bench, floating shelves, and shoe shelves. Works beautifully. We don't have laundry but do have a breakfast nook area that takes up an equivalent amount of space. (Our neighbor built a laundry closet in the same area by dropping in a sliding door/wall that hid the laundry from view, too.)

    One thing that helped (that I think I learned here!) was to map out all of the movement through the kitchen--people going outside, to the fridge, to the sink, etc.--to see where the paths are. I found the primary path through the kitchen and then designed around that so the cook could avoid crossing it whenever possible. It seems to work.

    If you've already updated systems, you're ahead of the game--we found the biggest challenge with an old house (ours is 98 this year!) was that everything needed to be updated/replaced and brought up to code, so one project quickly spiraled into many projects. If you know what's there it is far, far easier to budget.

    Also, we love our swinging door! (You do have to leave open wall behind it to accommodate the swing, though--not the most efficient thing, but wouldn't give it up.) Good luck and have fun!

  • 12 years ago
    last modified: 10 years ago

    The first thing I thought was what a great size for a mudroom/laundry and that a sink in there would be really nice and certainly doable. I'm having trouble with the drawing, too. Any chance of doing it on graph paper with darker writing?

  • 12 years ago
    last modified: 10 years ago

    I will work on a clearer rendering of the space tonight. I may be snowed in anyway.

    Herbflavor, I'm interested in the idea of leaving some of the dividing wall in place as it must be less expensive, but I'm not sure how much would work. Yes the west wall is a good amount of space to work with. The trick is stove and refrigerator placement, the space between the two windows is ample, but on either side of the windows is 24" on the east and 33" on the west.

    I am commited to getting the "bones" of the room right. Getting just the right lights, backsplash and such may be done over time. I do want to install real linoleum, but we may have to do a painted floor and add it later, depending on cost.

    Mizinformation, thank you for the encouraging words. As a vetran old house owner I'm sure you can guess some of the issues we will be dealing with. The electrical is sparse and may be knob and tube in the walls, who knows if the plumbing meets code and we need insulation in the attic space over the mudroom. That attic space is clossed off from the main attic and a dropped ceiling in both rooms makes access imposible right now. I assume the dropped ceiling is due to the condition of the plaster, we will see. We have been updating the electrical as we move through the house and all the bathroom and basement plumbing has been redone in PEX.

    I did tape off the floor and walls to get an idea of spacing. Maximizing space while making the entrace from the dinning room comfortable and not too closed off with cabinets/appliances will be a trick. It would be easier I think if the doors were alligned galley style.

    Mizinformatio and artemis78, do you have pictures posted of your space? I would love to see them.

    artemis78, you give me hope our space can work. The swinging door has space in the dining room and in the kitchen it will swing against the entrance to the basement. I can still see on the trim where how the door was origionally hung. May I ask where you go the swinging door hardware?

    Thank you all, I'll get you a clearer picture of the space tonight.

  • 12 years ago
    last modified: 10 years ago

    Ditto for the beam. I moved the refrigerator into the laundry room side.




    I set this up in the IKEA 3D planner. (I hope I've translated your measurements correctly.) IKEA is a high-value option to consider. If you don't like any of their door styles, you can use their boxes, drawers and hardware and use 3rd party doors, drawer fronts and cover panels. Three kitchens that went this route:
    http://ths.gardenweb.com/forums/load/kitchbath/msg0113171920861.html
    http://ths.gardenweb.com/forums/load/kitchbath/msg1119141331605.html?53
    http://ths.gardenweb.com/forums/load/kitchbath/msg1212153726876.html

    Here is a link that might be useful: IKEA 3D Planner - link good for 5 days

  • 12 years ago
    last modified: 10 years ago

    tbb123, Thank you for translating my layout into 3D. Your translation looks accurate. I never thought to put a second sink in that location. What is a good size laundry/everything else sink? I agree with the frig placement. We won't be installing a dishwasher, so I get extra drawers there!

  • 12 years ago
    last modified: 10 years ago

    Hmmm..
    Am I a SINK? Single income, no kids w/ cats & gardens? (Neighbors have the chicks.)

    You have a wonderful space to work with! I know nothing so I'll just watch. :)

  • 12 years ago
    last modified: 10 years ago

    Ok, I've got a clearer layout but my scanner won't work, I'll have to get it done tomorrow morning. I am not against Ikea cabinets but currently the nearest store is a 6 hour drive away. We do get an Ikea within 10 miles of me sometime in 2014!!! I'll try and work with the Ikea planner. Anyone know a good contractor in the Kansas City area? The ones I have delt with seem to resent working on an older home.

    You cat people out there, how do you manage contractors in the house with your cats? Our current guy is scared of visitors and the trash truck. I can't imagin him doing well with a lengthy kitchen remodel.

    A few other pictures of the house to give you context if you are curious. I've completed striping all the trim in the living and dining rooms, looking for paint colors and curtains.

    Looking from kitchen into dining room

  • 12 years ago
    last modified: 10 years ago

    Here's the link to ours--though this was before we had done the shoe area, which looks like this:

    The bench is supposed to be for putting on shoes, but in practice is generally covered with bags; we haven't gotten to organizing the shelves yet (just put this in this fall). When we designed the kitchen, I wanted to avoid having it behind the door, but in retrospect I think it would have been fine to tuck it there.

    This was roughly the plan we built, except we decided not to do the banquette and just left it open, and we tweaked a few dimensions. Our door and window placement is quite different from yours so I don't know that the layout itself is that helpful, but in case it helps, the wall between the rooms originally came in right at the edge of the cooler cabinet. The laundry is not in the room anymore, but at various points was either where the shoe bench is (originally this was a laundry porch) or on the left where the banquette bench is (originally this was a breakfast room--so three rooms total when the house was built).

    We got our swinging door hinge from House of Antique Hardware (the "standard" version). Chose it mainly because we had an existing swinging door and were replacing the hardware (some idiot previous owner had attempted to take the door off by taking a hammer/saw to the hinge--happily they did not succeed, but the door hinge no longer worked) so we were trying to match the cutout sizes as closely as possible. But we've been really pleased with it, and the quality seems quite good compared to the original. Would recommend it.

    Here is a link that might be useful: Bungalow kitchen remodel

    This post was edited by artemis78 on Thu, Jan 31, 13 at 0:57

  • 12 years ago
    last modified: 10 years ago

    You don't need a scanner just take a clear photo of the paper.

    Why no dw?

  • 12 years ago
    last modified: 10 years ago

    Ok, this didn't turn out great either. I'll have to seak technical assistance fom some friends here at the office. The measurments are a bit easier to read.

  • 12 years ago
    last modified: 10 years ago

    Use graph paper. If you don't have any you can print some out on line, just google. I'm going to show you mine just to give you an idea.

  • 12 years ago
    last modified: 10 years ago

    Better image?

    artemis78, I love your california cooler, I assume it is an origional feature? Lucky. Nice closet too, we don't have any on the main floor of the house. Your bench area looks very functional. Love the cabinet syle and happy paint color too. What kind of flooring did you use? It looks like you have a pull out cutting board, yes? did you add that to standard cabinets?
    I am familier with Antique Hardware but have not purchased from them, good to know you were happy with their quality. Thank you for the like to your kitchen project. I can't seem to get the link open at the moment, but I will work on it. Thank you for sharing!

    My plan is to work with the IKEA program to layout the cabinets, thining about my storage needs. I'll post once I get that completed.

  • 12 years ago
    last modified: 10 years ago

    Oh, we actually added the broom closet--it's just built out of high cabinets! (My husband wanted to do the same thing with the coat area to hide the clutter, and possibly he was right--I was concerned we would never use the hooks and bench if we had to open a cabinet to get to them, though.) So you can definitely add one if you want one (and I love ours--we only have closets in bedrooms, the one big flaw in our house's design). We actually had one in our old kitchen and specifically built it in the new one too because it was so helpful. Sadly we didn't end up with the cutting boards in the end--we planned on them but through a series of miscommunications with the cabinetmaker, the cabinets didn't get built properly to accommodate the boards (and we were not in a mood to have the whole thing rebuilt). Instead we wound up with taller than standard top drawers as a fix, which have actually turned out to be really nice. We don't miss the cutting boards (which we also had in the old kitchen) because the counter space is so much better in the new kitchen. So it worked out. You could add them to custom cabinets, though (probably not most semi-custom lines).

    We used Marmoleum Click flooring (a type of linoleum), which I like a lot. (Installed it ourselves and it is pretty easy as those things go, so that was a big plus.)

    New diagram is much clearer!

  • 12 years ago
    last modified: 10 years ago

    I have to say, in the plans shown above, it seems like an awful lot of real estate is being devoted to boots and laundry in this space. I'd try to use more of it for the actual kitchen.

    You said something about moving the back door to the north wall. Which direction is where in your diagram? Without even working out a plan, I instinctively want to try switching the back door with the window next to it (not hard), and/or maybe centering the range between the two windows on the top (only possible if your posts go completely away).

  • 12 years ago
    last modified: 10 years ago

    Marcolo, the north wall is where the set of double windows is. It is the best view outside view of any in the kitchen or mudroom. I agree, with your assessment of the use of space. I haven't found an effective layout that makes more kitchen space. I have thought of of placing the stove where tbb123 put the refrigerator. It looked a bit odd to me to enter the backdoor and immediately see the stove. Also, I don't see what I would gain from moving the stove there. An I missing something?
    I've been trying to find a way to stack the washer and dryer but the only wall spaces large enough are along the east wall (wall with the basement doorway, maybe with a cabinet between them and the window), on the east wall between the dining room and back door (that makes a big barrier in the traffic flow from backyard through the kitchen to the rest of the house), or, in the location tbb123 placed the refrigerator, (either facing south, or placing the stack against the dividing wall (elongated to 30-36") and facing north). Do any of these ideas work for a stacked washer/dryer.

    artimis I got your link to work. I love your kitchen! It is so full of open, useful, vintageish cuteness. Just the look I am hoping for. Congratulations on a job well done. I bet it is much nicer to work in there now.

  • 12 years ago
    last modified: 10 years ago

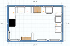
    I have been working with the Ikea planner. The cabinet layouts are rough but what do you think of the placment of the major appliances.

    Here the washer and dryer are in the corner. Sinks are in cabinets 2 and 7. The refrigerator is #10.

    Here the washer and dryer are stacked (#4 and 5), and kitchen has a U layout. Sinks are in cabinets 2 and 8. The refrigerator is opposite the backdoor.

    Do you think either layout is functional? Pro/cons?

  • 12 years ago
    last modified: 10 years ago

    For safety reasons, you need a cabinet on both sides of your stove.

  • 12 years ago
    last modified: 10 years ago

    I'd probably work with this latest plan[1st one in last post] If the 2 units fit[W/D], put them under the window by the back door. Leave more of the original lower wall[to the left of back door] and place more coat hanging/cubby hole/hook capacity on mudroom side...you'll want and need it...with the counter/cabs that wrap around on right of fridge,place 2nd small sink in corner or just after turn.Leave some space for a built in bench under 2nd window,closer to lower laundry set up. [with storage or cubbies underneath] I think you'd get more use from area to right of fridge with laundry setup more localized with coat storage and such down by back door. The bench off to the right will be used and look better than the view of w/d constantly under the windows in a prime visual line. This all depends on if W/D will fit under windows by back door. If so,think also about a corner cabinet with glass doors on wall in corner to right of fridge....with laundry positioned elsewhere, this becomes a spot where you get more value from a decorative cabinet. The other glass cabinet is okay,but I'd cut in and have counter between the upper and lower parts-you'll want a spot to set things with 2 passages entering kitchen just there. [I agree with above-move range over and have at least 12 in cab to the left of range]...but you still want some counter at that glass hutch cabinet. If you didn't need anything in positions 6,7,8 I'd see a great antique,smallish table set up in the floorspace-or the bench occupying the space under the 2 windows as seating for a table pushed over that way. Looks as though you're more into wrapping things around the entire perimeter.Be sure and save in budget for furniturefeet and trim/details[glass uppers]in a few spots at least to up the character quotient.It'll be nice with a great floor and valances or some treatment over the windows positioned in different spots-that will be a great theme carried throughout. It's hard to always see on paper but you can make it so appealing from the looks standpoint/that's why shifting the W/D down has benefit if you can do it.

  • 12 years ago
    last modified: 10 years ago

    Thank you for the feedback herbflavor. I think I understand you. I will work it up as soon s I can. There may be space under the backdoor window for the washer and dryer. I agree with counter to the left of the stove but I am having trouble with that wall and making some use of the corner cabinet area, none of the cabinet spacing seems to work well. I hope to unify the space with paint and curtains. Good idea pulling the eye to a decorative cabinet in the corner. Thank you.

  • 12 years ago
    last modified: 10 years ago

    Herbflavor,
    This is my translation of your sugestions. What do you think?


    View from backdoor.


    View through dining room doorway.
    The laundry does fit under the window by the door, barley. I'm not sure who the plumbing for them will go.
    I was worried about access to the mudroom sink, so it is under the window. I am still not happy with the cabinets on the stove wall. It doesn't seem like a good use of the space.
    My husband requested an eating area, so I put this one in. Now he wants it closer to the main kitchen prep area. I don't see anyway to do that without blocking traffic and or eleminating pantry storage.

    I looked at cabinets this weekend at HD and Lowe's. I really do not care for the thermofoil finish. Ikea frames and wood drawer/door fronts may work for us. I know many GW kitchens have used custom doors with Ikea.

  • 12 years ago
    last modified: 10 years ago

    Could you do a bistro table in the corner that the 3'7" points to?

    Rather than the filler between the 49" blind corner base and the stove, why not just devote those inches to a bigger set of drawers on the left?

  • 12 years ago
    last modified: 10 years ago

    Totally off topic, but lannegreene do you happen to know the paint color of your mudroom?

  • 12 years ago
    last modified: 10 years ago

    I think I'd love having that small table[I was thinking bench-but small table can really get use-or open counter/stools]. Think about more wallspace by the door where the 2 blue stools are...hooks/shelf up high for hats/scarves/etc. Or just locate a funky/antique coat stand for that spot "between" the 2 sides[that could be fun]. You can always "fill in" the spot under the windows with cabs/counter later...I like the small table-good window and light filled spot-you'd really gravitate to that spot. It remains to be seen if omitting the cabs/counter there would be missed-you could always add "storage" type of thing later if you discover you need it. do the 2 sinks need to be each full sized? I could picture a slightly smaller sink on the right side,then some counter,then think also about a side hinged column type cabinet in the corner as an alternative to upper and lower cab...inside-cubby holes for the shoes/mits/etc-stuff i thought you wanted spots for instead of all over the place.Maybe you're rethinking what you actually need. I do like where this is at....I really think the table would get use-but if you have doubts about that,think through it. I know you have seating at the dining room. I come in and out a lot from the side-esp in the summer and with a table there to take a break/have a tea/plan the meal/phone chat/set the grocery bags down/wait on the laundry-this looks good.

  • 12 years ago
    last modified: 10 years ago

    Herbflavor,
    Thank you for your comments. I have a very difficult time with spacial planning, it helps to learn from others experience. Yes, I like the table there too. I read the posts on a chefs kitchen and it has me rethinking some things. I am also making a list of everything I have in the kitchen and determining storage location and how much pantry room I need. I think these things will help me determine just what my cabinet needs/configerations should be. I need to go phisically look at sinks, it is hard for me to determine what is big enough for the sencond sink. I am a hands on person. DH job situation may postone the actual kitchen remodel but I am determined to complete my planning process while I am on a role. I want all the details worked out before a single hammer is lifted. We didn't do that with the bathroom remodel (I thought I had everything covered), now I know better.

  • 12 years ago
    last modified: 10 years ago

    because the right side is your "bonus" side in a way, you can do a phased project. The left side could get done straight away I'd think.The sink on the right could be a different approach...I'd do a round deep sink-something a little different....when entertaining-ice and drinks.[In otherwords-this space is going to be very multi functioning-just my prediction.]...I do think the round ones come in various sizes-maybe worth a look. Planning and education are smart-this space is not typical-taking out the wall is a commitment. You would still have options with just opening the passage between the 2 rooms instead of cutting the wall back to this degree. sit with the graph paper as long as you need! I do get a "period" vibe from your interior and the windows and trim. In that sense-keeping the wall up and loading it up has a point.there is a fair amt of sq footage right in the middle with the wall out-still not big enough for island there however, so it's unused space[ouch]. have you gone to houzz...search"period kitchen" or "butler pantry next to kitchen" or "mudroom and pantry in older home". Clever options are out there.Don't rush...it's a nice home.