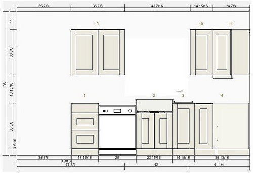
Final (!?) Kitchen Layout for Review - what do you think?
14 years ago
Related Stories

ARCHITECTUREThink Like an Architect: How to Pass a Design Review
Up the chances a review board will approve your design with these time-tested strategies from an architect
Full Story
KITCHEN WORKBOOKHow to Remodel Your Kitchen
Follow these start-to-finish steps to achieve a successful kitchen remodel
Full Story
BATHROOM WORKBOOKStandard Dimensions and Measurements for a Primary Bath
Create a luxe bathroom that functions well with these key fixture dimensions and layout tips
Full Story
SMALL KITCHENS10 Things You Didn't Think Would Fit in a Small Kitchen
Don't assume you have to do without those windows, that island, a home office space, your prized collections or an eat-in nook
Full Story
GARDENING AND LANDSCAPINGSpring Patio Fix-Ups: Earn Rave Reviews for Your Patio's Entrance
Consider innovative doors, charming gates or even just potted plants to cue a stylish entry point for your patio
Full Story
CONTRACTOR TIPSBuilding Permits: The Final Inspection
In the last of our 6-part series on the building permit process, we review the final inspection and typical requirements for approval
Full Story
KITCHEN DESIGNKitchen Layouts: A Vote for the Good Old Galley
Less popular now, the galley kitchen is still a great layout for cooking
Full Story
MODERN ARCHITECTUREBuilding on a Budget? Think ‘Unfitted’
Prefab buildings and commercial fittings help cut the cost of housing and give you a space that’s more flexible
Full Story
HOUZZ TOURSHouzz Tour: Visit a Forward Thinking Family Complex
Four planned structures on a double lot smartly make room for the whole family or future renters
Full Story
KITCHEN APPLIANCESFind the Right Oven Arrangement for Your Kitchen
Have all the options for ovens, with or without cooktops and drawers, left you steamed? This guide will help you simmer down
Full Story




palimpsest
davidro1
Related Professionals
Kalamazoo Kitchen & Bathroom Designers · Manchester Kitchen & Bathroom Designers · Salmon Creek Kitchen & Bathroom Designers · Soledad Kitchen & Bathroom Designers · Town 'n' Country Kitchen & Bathroom Designers · Bensenville Kitchen & Bathroom Designers · North Druid Hills Kitchen & Bathroom Remodelers · Emeryville Kitchen & Bathroom Remodelers · Lynn Haven Kitchen & Bathroom Remodelers · Mooresville Kitchen & Bathroom Remodelers · Olney Kitchen & Bathroom Remodelers · Lawndale Kitchen & Bathroom Remodelers · Gaffney Cabinets & Cabinetry · South Gate Cabinets & Cabinetry · Channahon Tile and Stone ContractorsbellajourneyOriginal Author
harrimann
davidro1
palimpsest
bellajourneyOriginal Author
davidro1
greencleaning
singingmicki
Buehl
bellajourneyOriginal Author
Buehl
davidro1
bellajourneyOriginal Author