Please Critique Our Plan!
Long time lurker, first time poster. My husband and I ( we have no kids) are building a home on 10 acres in Northern California (we currently live in an existing home on the property). Summers are in the mid 90s, winters mid-low 40s - no snow).
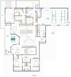
As I'm sure many of you are familiar, living on acreage presents it's own lifestyle benefits and challenges. We are not confined by many space limitations, but want the home to face west to take advantage of the view of the pond. The south-facing garage roof will have solar panels. (Sorry the plan is rotated funny) We want the home to be functional, practical, energy efficient, and we hope (though we are currently only 30), accessible to be able to age in place. We plan to delve deeper into efficient building materials later. Though we hope to never move, you can't plan life and therefore we want to consider resale value to a certain extent. Though we don't plan to have children, that could change. Regardless, we have a very large family in the area and love hosting family events. We need plenty of bedrooms and common area, even if it's only the two of us. We raise livestock, garden/canning, dogs, tractor, misc. projects, you name it.
Does anyone have any experience with passive solar? I know this plan isn't an ideal candidate, but if there's any areas we can improve slightly, and/or ways to mitigate having a large west facing wall in the summer, I'm all ears.
Please, any and all comments/questions welcomed! There's a method to my madness, but I would definitely like to hear others' opinions. Thank you so much, I've learned so much from you all and look forward to contributing more as we break ground!
Imgur album with more images:

Comments (27)
- 10 years agolast modified: 10 years ago
For a couple with no kids, you're building a lot of family space, which costs money to build, costs money to operate, costs money to maintain, costs more for building permits, and costs more in property taxes.
If I were in your shoes, I'd design a plan which meets your present needs and then continue with the plan development for added family space which can be built if needed, that is, design for future expansion but only build part of what you need now. This would actually be pretty simple to accomplish if you moved away from a ranch and built a 1.5 or 2 story but put no stairs up to the 2nd in your plan. Make the future stairway a sewing room or something and you won't be taxed on the unconditioned attic, you won't have to pay to build it out, you won't have to pay to operate it, and you won't have to take time to clean it.
Your office/library is a novel feature but it comes at the cost of lots of hallway space. I'm not sure that wasted hallway space is a good trade-off for having an island room.
Your master-bath, bath2 and laundry have corner cabinets. I'd get rid of those.
In bath1 your shower door is going to slam into your toilet.
Your laundry-mudroom is huge and requires entry via garage. Secondary entry to the garage is from your front porch. Where will most of your yard activity take place, by the front door or in the back? If in the back, then you're likely to be entering the house far away from the mudroom. Ideally you want the mudroom to serve its purpose, isolating dirty clothes and boots from the rest of the home. If your activity is in the front yard, then the mudroom can work, except for it's disproportional size for two people. If your activity is back yard oriented then you should think about changing the footprint of the house to situate the garage and mudroom so that they're more convenient to how you'll use the property and entry to the home.
Your west facing master bedroom, with all those windows, is going to be hot as hell in the summer. Heating up all day long and stabilizing just before you go to sleep. This means either hot nights, and not the good kind, or high air conditioning expenses.
I see that you have a crawlspace foundation, so why not just bite the bullet and build a full basement and shove your media room and game room down there? Heck, put a root cellar in an unwindowed, deep, corner and cut down the size of your pantry so that it's use relates to how 2 people would use it. You've got a lot of storage on top of a large kitchen and in the pantry there is a 5' wide aisle, that's just dead space that you're paying for and the purpose of the room is to store food and kitchen equipment.
Your covered patio roof is kind of funky. If you need a roof over the patio, then why not build a room above it? The cost of a 2nd floor room will be minimal because the foundation and roof are already there for another purpose. You might think about one roof plane across the entire back of the house and combine with another roof plane from the front of the house. The steeper you make the roof, the more room you can have under the roof at a very low cost.
Bedroom 2 has no east window yet it's in a corner location, thus ideally situated to exploit light from two directions.
You have no coat closet near your front door and those front walls have no windows and are, to my mind, isolated from your LR and Kit.
I think your exercise of designing a house is great but I think you probably need to go through a number of revisions and by doing so you hone what you want into fine detail. I'd say 5-10 revisions where you improve one feature and then discover something else doesn't work until everything works for you. For instance, I don't see the sense of your entire kid's wing, so if I were in your shoes, I'd just skip that for now but give myself the flexibility to build it out if needed. Keep that money in your investment account and let it earn you money until you have kids - better to be earning money than spending money to build and maintain space that you don't need, never mind having to heat/cool the space plus dust it and vacuum it unless you want a haunted house effect in those unused rooms?
- 10 years ago
Passive solar should have south facing windows combined with deep overhangs which will allow winter, low horizon, sunlight into the home and block summer, high horizon, sunlight from overheating the home and the interior part of the home which will be receiving the sunlight should have thermal mass to absorb the heat and then slowly release it.
Play around with these calculators to get an understanding of how the sun will interact with your house. Related Professionals
Ann Arbor Architects & Building Designers · Bull Run Architects & Building Designers · Doctor Phillips Architects & Building Designers · Commerce City Home Builders · Seguin Home Builders · Troutdale Home Builders · Dallas General Contractors · Fort Salonga General Contractors · Jackson General Contractors · Kettering General Contractors · Millbrae General Contractors · Oxon Hill General Contractors · Riverdale General Contractors · Springfield General Contractors · Palm River-Clair Mel General Contractors- 10 years ago
What do the elevations look like, there is much more to a house than a floor plan?
- 10 years ago
There's a song:
"It never rains in California,
But girl, don't they warn ya,
It pours, oh, it pours"
So you might want a closet for your guests' jackets,,rain boots, and umbrellas.
The office/hobby room is basically windowless, but it it's also kind of inconvenient, opening off the bedroom hall. Maybe it could swap with the game room? And remove more of the interior room's walls.
For passive solar, I've lived in a couple of houses with big west-facing windows, and the things that really help are broad overhangs like you have (in fact, my dad has 4' eaves all around the house with a big peaked patio overhang), 3M film, and trees. And we loved our solatubes, we had them in interior bath, hall, and stairwell.
Maybe this is just me, but if I have all the room in the world, I think I'd have a nicer destination coming out of my bedroom than right into the kitchen. It just reminds me too much of apartment living. It seems to be pretty common though, so maybe it is just me.
- 10 years ago
Elements of your plan are very similar to elements of our plan. I would also consider swapping office/hobby space for the theater room space or pool table space. Windows are needed in an office, and not desired in theater room. I would also consider making the island in the kitchen one long straight island and avoid the angles. I had them in my last house, and it is lots of wasted space. I have a 14' long island in my house now and I love it. Will you have windows into living and kitchen from front covered porch? Front windows into SE corner room?
alburley / Zone 9
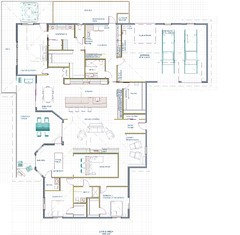
Original Author10 years agolast modified: 10 years agoThank you everyone for your suggestions! After giving it a lot of thought (and reading a lot of everyone's suggestions for fellow new home plans), I have a new revision to offer up to the hive-mind and would love your opinions. As a note, we still plan to meet with an architect and go through all the normal design/construction channels, but would love to have a very solid idea of what we'd like and what is most efficient/economical/code compliant.
Attached below is our revised floor plan, a google maps site plan for reference, and an additional sketch (close, but not exactly to scale) of the property. I have not included any elevations because the Chief Architect software is not rendering them correctly. I'm definitely trying to keep those views in mind. You're welcome to look at my ideabooks if you're curious as to the style we're going for. One thing I've noticed that is unique about this particular forum is there are an abundance of people here who live on acreage and are familiar with the lifestyle. So if anyone has any comments with regard to garages/shops/wells/pond maintenance/irrigation/livestock/you get the idea it's all welcome.
@Alex House:
Thank you for your suggestions about how to reduce costs/sq footage/etc. I definitely see your point. After much discussion, I think we want to build a home that (even though we currently are primarily a family of two) is able to accommodate frequent weekend guests and holiday parties, while still being a home that would be attractive in the resale market. We have no intention to move, but know that life can be unpredictable. (and/or the reality of aging in place, temporary disability, accommodating grandparents/in-laws) We are the type who tend to pay a premium for environmentally friendly/efficient technology at the expense of ROI because we see the long term, non-monetary value, in the investment. We're like the hippie version of people who have to have the first iphone 6 :-) but I digress...
Yes the western exposure is going to be tricky, and is less than ideal. We intend to look into options such as tinted windows, modern window tech, and porch overhangs. The view of the pond is really the highlight of the property. Currently our home on the property has an entirely western expose and although it is warm, I believe modern building materials and an intelligent design could accommodate the heat fine.
@momto3kiddos
Yes, to give credit where credit is due, your floor plan was the inspiration for this revision. Many of us have drooled over your home, but do not need a 5 bdrm home, this was an attempt to downsize.
Questions/Concerns:
I just don't love all the hallway space. I know I can add shelves and window seats, but its just mostly wasted space. This is the 5th complete overhaul of our plan, which is fine - we'll do as many as it takes - we aren't in a hurry, but design work sure is challenging! I really hope when we meet with an architect they can consolidate what we've put together. I'd still love to reduce the sq ft down from 3600 more if possible, while still considering that we host large parties frequently. And lastly, we'd like to leave the option of having a pool open for the future. Preferably near Bedroom 2/fireplace on deck.



- 10 years ago
Some quick thoughts:
Can I ask why you have a media room and a hobby room and a reading nook and a game room? It seems like some of these could be combined or eliminated. It just seems like you have a lot of ways for people to be separate from each other.
Bedrooms: I would move the closets to interior walls to capitalize on their ability to cut down on sound transmission and to remove the wasted space of the hallway inside the closet. Also you could then have windows on that wall. I would skip the jack and jill bath and go for a hall access bath since these are just guest bedrooms. Then your guests don't have to worry about locking and unlocking multiple doors.
I think your reading nook would be cozier as a window seat/alcove off of the main area. A windowless corner in the middle of the house is not as inviting. The master bedroom is quite large, maybe the reading nook could be in there?
I like your laundry/bath connectivity and the hampers under the counter, very convenient.
Not sure where the full size sink is planned in the kitchen?
Here is just a rough sketch of my initial thoughts how I might change it if I were building it. Not all of this will necessarily make sense for you.

alburley / Zone 9
Original Author10 years agoI think we're finally nailing it down! Thank you all for your suggestions! I'm sure the process of transforming a floor plan to a code compliant - actual habitable home will change all sorts of things, but I feel so much better knowing we have a direction that will work for our lifestyle!
@chelwa: We wanted our home to be conducive to our hobbies, lifestyle, and entertaining, while considering the (highly unlikely) occurrence of resale, aging in place (or accommodating aged parents/in-laws), etc. However, you are totally right that spaces can be consolidated. Ex: we feel like the local market expects at least three bedrooms however we probably only need one guest bedroom, or maybe two (murphy bed/couch pullout in office?) I think maybe it's time to start refining internal dimensions and dialing in the details :-)
Unless anyone sees any other glaring details...
The other big things to consider are the elevations and landscaping/decking, and how that ties it all together. Best left to the professionals, but I'm sure I'll have plenty of questions for you all.
Thank you for taking the time to reply.
- 10 years ago
Honestly, I think the layout is too convoluted for what you want. Simplify it and you'll have better space. You say you like entertaining but your entertaining space is all cutouts and angles. Why do you need the angles? Then you have a long hallway into the two bedrooms and to get to your bedroom you're either going through the mudroom and master bath or through the dining/kitchen area.
I would pretend you're walking through the home and doing all the things you want to do. Now imagine the home with 20 guests for a party.
If you haven't read Sarah Susanka's book, The Not So Big House, I highly recommend it. At first I figured it wouldn't be for me since we're building a 2800 square foot house for the two of us, but honestly, the book has really helped me to refine my home plan and to see ways to work my plan so it's even better.
Those jogs in the dining nook area add nothing to the look of the house except extra expense to build.
alburley / Zone 9
Original Author10 years agoWow Nick, thank you! What an elegant solution. I really like the southern exposure courtyard, especially if we decide to add a pool.
No worries about the dimensions, I'd love to work with it in Chief Architect and see how it works with our site plan.
Thank you again (and to everyone else whose offered advice) for taking the time to consider our plan.
- 10 years ago
I really like Nick's plan! My only question would be powder room access from rec room and/or pool. Looks like a long walk to the bedroom wing for powder room or through office to bathroom. Anyway to change that? Otherwise, amazing plan! :)
- 10 years ago
And if desperate there's a bathroom in the office. This plan really works well. Minimizes hallways but keeps open spaces.
- 10 years agolast modified: 10 years ago
Unless it's raining, or you're working in the office, while relatives/friends are in the rec room. I would not want people going through my office....and the guest room is a pretty long walk, as well.
I guess I'm just more aware of distance to bathroom and difficulty for some to reach it quickly. It amazes me how many times a plan doesn't consider how older family members, small children or walker/wheelchair people fit into the design.
- 10 years ago
You could switch the rec room with the bedroom and office space on nick's plan. The pond and future pool views would be from these spaces. The rec room activities are inward facing and views might be wasted there. And then you could have better access from the pool to the bath on that bedroom wing.
- 10 years agolast modified: 10 years ago
This may be a dumb question, but do you own all the land around the pond? Why not just place the house north of the pond, so your house can be south-facing?
alburley / Zone 9
Original Author10 years agoI think you all are definitely on the right track with relocating the powder room and swapping the bedroom and rec wings. I'll play around with the plan this week.
@Jillius: no not a silly question at all. Yes we own all the land around the pond, but unfortunately the north end is highly prone to flooding and makes the logistics of the driveway more complicated, as well as increasing the distance to power and well. I'd definitely prefer the N/S orientation too, and when we meet with architects maybe they can come up with a creative solution that preserves the views. Funny how quickly 10 acres can be reduced to two or three!
- 10 years ago
If you are really into canning. An outdoor kitchen would be amazing! If that isn't in the plan, I suggest a larger cooktop and 2 sinks.
- 10 years agolast modified: 10 years ago
Maybe there is a way to build an elevated house facing south, like what they do on the coasts where flooding is more of an issue? Like this:
http://sandcastlecoastalhomes.com/wp-content/themes/sandcastle/images/slideshow/8.jpg
I live in a west-facing condo, and it is hot as blazes every afternoon. I have to run the air conditioning for about 45 minutes every day at sunset. Other than some extra insulation and a stucco exterior, we don't have thick windows or a large roof overhang or any other measures to mitigate the sun. But it is bad enough now that it is hard to imagine any measures could work well enough to make me not have to run the air conditioner every day.
In your situation, I'd have to be able to go at sunset and stand inside a west-facing house built with the sun/heat mitigating measures that were going to be used on my house and experience for myself that they fixed the issue. Otherwise, I just wouldn't believe it.
- 10 years agolast modified: 10 years ago
One sticking point I have with your plan is that your master bedroom is right next to the kitchen. We have that set up and I absolutely hate it. We entertain a lot plus we have kids. If we go to bed before our guests/kids or if our guests/kids wake up before us the noise filters into our bedroom and keeps us awake. If you're insistent that the master bedroom be next to the kitchen I would try to create a sound buffer zone by putting your bathroom and closets between your bedroom and the kitchen. We are also right next to the patio and we have the same problem with noise we have with the kitchen.
The house we're designing set the master bedroom on a wall of the house away from any room that would create sleep time noise disturbances. We then created buffer zones like I mentioned previously so that we could have the peace and quiet we aren't getting in our current house.
- 10 years ago
tcufrog, I believe that Nick's plan addressed your very good point because now the bedroom is it's own section.
- 10 years agolast modified: 10 years ago
Why not make the "reading" room in Nick's plan a powder room? That's a bit more central, and I can't imagine that room would be used much now.
- 9 years agoI would LOVE to have a copy of this house plan! I have looked and looked for something like this. Could you please email it to me? This plan has everything my husband and I have been looking for!
My email address is trishhenry77@att.net
I would be so appreciative!
Thanks!











Nick