enclosed kitchen layout - suggestions?

The kitchen/dining will be 25'4" x 17'. The door in the dining room opens to a deck on the east side. Most of the first floor will be glass on the east side to capture views and allow morning sun in.
I welcome any feedback on the kitchen layout. In particular:
1. Do you think having the sink and range on one wall will work? I've seen several photos of kitchens with this layout, just never had one myself.
2. Does anyone have a shallow pantry like this? It's 3'5"x 6'10". The idea is that I'll have 1' shelves on the 6'10" wall and 18"-24" shelves on the narrow walls. That give me 2'5" to stand/move around inside it. I really like it but want to confirm it won't be TOO shallow.
Thank you!
Comments (36)
- 10 years ago
Regarding the pantry, mine is 5'2" x 41" (built over stairs leading to basement). I have an 18" deep Metro shelving unit in mine. I don't have a problem with it being too shallow. Just my opinion though. :)
mo142 thanked 293summer - 10 years ago
First of all, swap the sink and range positions - whoever did that layout does not cook. There is no need for a sink to be close to the fridge, but there is a reason for the sink to be closer to the bar. I used to live with an architect (who did not cook), and he would have me do his kitchen layouts for him. The range should be close to the pantry and fridge.
mo142 thanked Lars Related Professionals
Commerce City Kitchen & Bathroom Designers · Hybla Valley Kitchen & Bathroom Designers · Magna Kitchen & Bathroom Designers · South Farmingdale Kitchen & Bathroom Designers · University City Kitchen & Bathroom Remodelers · Feasterville Trevose Kitchen & Bathroom Remodelers · 20781 Kitchen & Bathroom Remodelers · Allouez Kitchen & Bathroom Remodelers · Morgan Hill Kitchen & Bathroom Remodelers · Santa Fe Kitchen & Bathroom Remodelers · South Lake Tahoe Kitchen & Bathroom Remodelers · Winchester Kitchen & Bathroom Remodelers · Kentwood Cabinets & Cabinetry · Universal City Cabinets & Cabinetry · Beachwood Tile and Stone Contractorsmo142
Original Author10 years agolast modified: 10 years ago293summer - so glad to hear from someone with a similar pantry and learn that it works! Thank you!
Lars - Thanks for the input. Blame me for the sink position--I actually asked for it in that order. My inspiration kitchen had it in that order and it seemed good to me. Plus it allows for the window over the sink to sorta be centered on that wall. However, I don't have strong ideas on this and if the more functional thing is to put the range in the middle, we could definitely change it. Also, we plan to have a small bar sink at the bar.
Anyone else have thoughts on the order?
- 10 years ago
mo142 and cpartist are right. We work from fridge to sink/prep to cooktop to clean-up. The order is right in the layout in the OP.
However, I have a concern. The range is a bit in the walkway to the back door. Without dimensions it's hard to tell how close it all is. You don't want a lot of traffic in the cooking zone.
Could you post just the kitchen with dimensions? We need the total length of the main cabinet run, the length and width of the island, and the aisle width. It would also be helpful to have the measurement from end of cabinets to cooktop, width of cooktop, cooktop to sink, width of sink, sink to wall. It would be a lot easier to help you with this information.
mo142 thanked funkycamper - 10 years ago
Keep the sink by the fridge! From the fridge to the left side of the sink, wash things in sink, move things to the right side of sink, prep things for cooking slide them down to the stove, cook on the stove, put cooked items to the right of the stove. It's a great layout!
mo142 thanked practigal mo142
Original Author10 years agoThanks for the help! funkycamper - here's the kitchen. Sorry it's hand drawn; I haven't been able to master any software for design. The scale is each block is 1' square. Kitchen/dining overall is 18' x 25'4". The sink/range wall is 16' long. The coffee bar/desk run is 18' long (7' coffee bar, 4' liquor cabinet, 7' desk). Island is 8'x3'. Dining table is 7'x3'.
Excellent point about keeping the range out of the traffic path. When I drew it, I took your comment and went ahead and moved the range down some so that it's within the island zone and not so close to the door opening. If I do that, there's still 3' between the range and sink.

mo142
Original Author10 years agoInspiration photo for coffee bar/cabinet/desk wall is below. I'm thinking the pantry cabinet will be good for storing alcohol out of sight but near beverage area. We have quite a few bottles because my husband likes to try new cocktails, but want to keep it out of sight because we have kids and sleepovers are starting.

- 10 years ago
How do you feel about a prep sink in the island? You could then switch the sink and range and better protect the range from traffic (one of the goals of a good design).
- 10 years agolast modified: 10 years ago
That's a prep sink in your 2nd inspiration photo - not a cleanup sink. The cleanup sink is in the island in your inspiration. (I'm assuming it's an island - you can't tell for certain from the picture.)
Regarding a window - put the Prep Zone in front of the window so you have the view while prepping! (70% or more time is spent prepping).
- 10 years ago
Do you really need a desk? Most people get rid of a desk in the kitchen when they remodel - it's usually a junk magnet.
Consider, instead, a Command/Message Center designed for charging electronic devices, sorting mail, holding keys/purses/etc.
- 10 years agolast modified: 10 years ago
Do you have a general layout of the entire first floor (or whatever floor the kitchen is on)?
Where is the family entrance? The guest entrance?
May I suggest you check out the Layout Help FAQ?
How do I ask for Layout Help and what information should I include?
Others of interest:
Kitchen work zones, what are they?
Aisle widths, walkways, seating overhangs, work and landing space, and others
How do I plan for storage? Types of Storage? What to Store Where?
.
Read Me Thread: New to Kitchens? Read Me First!
mo142 thanked Buehl mo142
Original Author10 years agolast modified: 10 years agobuehl - Thanks for the input! I forgot to say this when cpartist mentioned it, but I have a strong (probably irrational) preference for an empty island. I have a 7x3 island with nothing on it now and love it! It's our gathering place--I prep meals there while my kids hang out at the island and talk to me, we do crafts and experiments, etc. I just really like how it works. So, while a prep sink there makes total sense, I just can't.
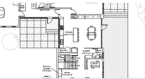
Here's the first floor plan. Family entrance is from garage. Guest entrance is at bottom. When kids are old enough to drive, they'll use guest entrance (we have separate parking area under those stairs at bottom).
About the desk in kitchen: The area labeled as "study" was bigger before this draft. I had the architects move the half-bath down from above the kitchen to where it is now to reduce traffic through kitchen. As a result, the study got much smaller and is basically now just big enough for a desk or two nice chairs. That's why I was thinking of using the 7' strip of cabinets in the kitchen as a desk area.
Edited to add: my husband really doesn't want to see my desk clutter in the living room, that's another reason I was thinking of putting it in the dining area. Also, our living room on the first floor is smallish, but upstairs will have a living area for kids that's directly above and same size as the kitchen/dining.
mo142
Original Author10 years agolast modified: 10 years agoAlso, I want to say I'm sorry, because I thought I had read enough on here before I posted, but clearly should have read ALL of the links from buehl first (I'd read the FAQ and zones, but not everything). Thanks so much for the info!
My main concern in posting was about the pantry and the sink/range wall and I feel those issues are resolved, but I would love general input. Here's some info I should've included on my initial post:
- We're a family of 5. Three kids, ranging from 9-4. Our main goals in our build are (i) to have a kid-friendly home where our kids can have friends over often and (ii) to have a home we can live in as we age. We're not going full-tilt universal design, but I've included at least 4' around the island on each side and around our dining room table, master bedroom is on first floor, etc.
- I like to cook but as long as I have some prep space, I can make due in whatever kitchen I have (I've had some tiny ones in the past and have learned to deal). I listen to podcasts and music while I cook and clean, so that's partly why I'm not in favor of an open plan (hard to concentrate on Ira Glass with the TV on as well).
- I'm the only cook. My husband mainly uses the kitchen for making coffee and cocktails, so we're adding a separate beverage station with bar sink, ice maker and mini frig for him.
- We don't entertain friends often, but do have extended family dinners. Our family is easygoing and happy to be fed, so they'll eat anywhere, any how. We like the idea of kitchen/dining together rather than a separate, more formal dining area.
- I have a (probably irrational) desire to have an island with nothing on it (or, except for cabinets, under it). So, no prep sink, no microwave shelf in island, no extra ice maker in island, etc. I use the island for prepping meals and hanging with my kids and for doing crafts with them. There's always a bowl of fruit and a book on it as well.
- This is new construction and we're at prelim plan stage, so we can still change anything. That being said, we've been working on this for months and my architects will probably kick me if I try to start over from scratch.
- Windows on the sink/range wall will be an issue. The architects drew that wall with lovely windows all across, but I need some open shelves and a range hood. Also, that is the west side and I don't want a lot of windows there. I'm thinking one window over the sink and maybe a smaller one to the right of the range.
- As for appliances, I will honestly use this area to save money because I'm really ok with lower-end or mid-level appliances as long as they function well. I know that I'm probably an anomaly on this page with that view, but we live in a rural area where most of the homes listed for sell are $100k or less, so I really don't feel pressure to create an upscale kitchen. I do, however, want one that functions well and is pleasant to be in. So, I honestly will probably go to Lowe's (maybe the only place that delivers to where I live, other than online companies) and pick appliances. Standard size oven/range, DW, frig with ice maker in door because kids love getting their own drinks, etc. Our splurge in this respect will be the beverage center, with separate beer frig and ice maker.
I truly appreciate the feedback! I have started feeling overwhelmed by the design process lately and am already feeling better just hearing my pantry and sink-range order work.
- 10 years ago
I'm with you on the appliances. I never even heard of Liebherr, Bosch, Bluestar, and most of the other upscale brands until I came to this Kitchen forum, lol. The closest dealers are 2+ hours away and nobody around here services them. The brands sold at HD are the only ones locally available and they are fine with me, too.
I like your plan. It is so nice to see a living/dining/kitchen space with windows!!! So many have the main living spaces crowded between two separate bedroom areas. I don't know why living in a cave is so popular.
It looks like you need a good drop zone from the family entry (garage). Good grief, my diagram isn't posting. Glitches lately, bah! I see you have coat hooks but, with kids, I think you need to steal some space from either the laundry or master bath and put in some kind of cubbies for school bags, books, etc., or it's all gonna end up either on your island or in the beverage center and it will drive you batty. Also, somewhere between the cubbies and the kitchen it would be good to have a place to hang the sports/school calendars, the big family calendar, and other items needed to help plan your schedules. If think if you can keep the mess out of your kitchen (and out of that desk area in the dining room), you will be much happier.
Also, I noticed that your toilet room has a door swinging in. This is against code in a lot of areas for a good reason. If someone gets hurt or is ill and falls on the floor with the door closed, how do you open the door to get to them? You can't. It really needs to be either a pocket door or a door that swings out into the bathroom proper.
I also really like your beverage/booze/desk wall idea. I do share some concerns with buehl about the desk area. Just some things to consider. Most of us rarely sit at a desk anymore. We haul our laptops to our island or dining room table, or outside on the deck, or to the living room couch. If I were you, I would make part of that desk area hidden storage for office supplies and a place to charge phones/tablets/laptops. Some people have put their charging station in a drawer or behind a cabinet so it keeps the space from looking messy. Then I would make it look more like a hutch. I would put glass doors on all the uppers for storing my pretty serving pieces and similar items used at the dining room table. Below, I would have a drawer or two for those office supplies and maybe a filing drawer, if there isn't room for this elsewhere, and then I'd use the rest for storing my dining room supplies. Maybe linens, serving trays, good china, whatever. Instead of a bookcase for cookbooks in that desk area, I'd consider putting a bookcase in the end of the island (the end next to the hall to garage). I would not have seating there but, rather, that combo desk/dining storage with a hutch look. Make sense?
Obviously, you need to assess your lifestyle to determine what works best for you regarding the calendar and desk issues but most people find that these areas are clutter magnets and I know I wouldn't want a clutter magnet in my kitchen/dining area if it could be planned for and avoided.
I'm with the others that I would swap range/sink locations and then put a prep sink on the island. This would make a super-efficient working zone for prep/cook activities and allow for a separate clean-up sink. Separating kitchen activities usually makes each activity more efficient and also makes it easier for your kids to help with kitchen clean-up. They could even help clean-up while you're cooking but stay out of the cooking area for their safety. It's a safe way to teach them how to help out. You have a big island. I think a prep sink on one end will still leave plenty of room for the other things you like using your island for.
However, if you're really opposed to that, moving the range down so it's shielded by the island as you did in your last kitchen drawing is a good move. 36" is the minimum recommended for prep between sink/cooktop so you still have a workable space. And your DW is appropriately placed to left of sink, out of that prep zone. Technically, a child can help load the DW while you're cooking in that location but it will be a bit tighter, especially if you're getting things out of the fridge or they are moving around to put dishes away. You will definitely have some congestion issues with that layout. But if you refuse to have a sink in the island, it's probably your best possible layout.
- 10 years ago
My pantry is almost the same dimensions as yours - I think its around 4' by 7', with the door on one of the 7' walls. I have Metro shelving on one of the short walls and one of the long walls, the lower shelves are 21" deep and the uppers are 12" or 14" deep (I'm away so can't measure or take pictures right now). On the other short wall we have hooks where we hang all the fabric shopping bags. We can store so much in this pantry that we hardly need kitchen storage! It's a great setup.
mo142 thanked sjhockeyfan325 mo142
Original Author10 years agosjhockeyfan325 - if you do get a chance to share a photo later on, I'd love to see. Sounds wonderful! 293summer also mentioned metro shelving. I'll have to check it out. I've had elfa closet systems before, but never seen metro.
- 10 years ago
Metro is free-standing, often used in restaurants and hotels. It fit the style of our condo (industrial loft conversion). It's fine, but honestly it's what my DH wanted; I would have preferred solid shelves like we have in our linen closet and under-stairs area (which our handyman built beautifully).
mo142
Original Author10 years agofunkycamper - thank you for your incredibly generous and smart reply! To answer your points:
- Yes, we really do need a drop zone/cubbies in the mud room. I haven't started detailing that area yet, but we need everything you said. Plus room for dog beds! It'll be a squeeze, so that is the one area I'm thinking of enlarging, depending on how estimates come back.
- I would like a pocket door in the bathroom. Thanks for catching that. I've noticed it on previous drafts but hadn't added it to my comment list this time, so it very well could've gotten overlooked.
- About the beverage/booze/desk wall - I actually still use a desktop, so do need a sitting area. I use my phone, tablets, etc. some as well, but I work from home a few hours a week right now and can type so much faster with my real keyboard. At least it's one of the all-in-one types with few cords. I do like all your suggestions for storage, and will come back to what you wrote when I figure out for sure where my desktop will live (other option is sitting area by living room). And I really do get everyone's points about keeping the office clutter to a minimum. That applies in either location.
- I will give serious thought to whether I can live with a prep sink in the island. I can see how that'd make super efficient work zones. I just sorta get twitchy thinking about it, so I'm not sure. :)
- 10 years ago
If you decide to do a sit-down desk on that dining room wall, I think some kind of cabinet that can quickly hide the mess would be nice. I don't have any specific suggestion right now but I have seen some interesting ideas on Houzz, Pinterest and elsewhere on the web. Since I can't post photos right now, I'll just say that I've seen a lower cabinet that swings out and provides a top surface for a laptop and a lower area for the printer. When it swings back in, it looks like either drawers or cabinet doors, whatever your prefer. Just a thought. Be creative and really think through how you use the space and we'll try and help you find a way to easiliy transform it to looking like a dining hutch when done working. There's a lot of creative folks here.
Glad you're considering a better drop zone/cubby/calendar area in the hallway space and a prep sink. Especially with a busy household with kids, I really do think you'll find it useful.
One thing I often suggest is for people to do imaginary cooking and clean-up sessions in their layout. Be as detailed as possible with this process. You might want to print out numerous copies of your layout and use a pencil to trace your paths. You want to have as few paths criss-crossing around as possible. And you want to have the most commonly used items stored where they are used. Do this exercise as if you are working solo. Now, do it again with your DH helping and/or your kids helping. I drove my DH crazy with this as we did it actually in our kitchen space as well as my doing it on paper. I would come up with scenarios like "pretend you're cleaning up while I'm making spaghetti" or "I'm baking a cake while you're doing stir-fry" or "I'm cooking an elaborate dinner and prepping a dessert while you desperately need a sandwich to tide you over". Get the idea? I think this is the most valuable thing you can do before finalizing a plan to see how things flow, where people cross paths, and identify things that need improvement. Have fun with it.
mo142
Original Author10 years agofunkycamper - I love your ideas! I absolutely will take your suggestion and map out my paths doing tasks. But there's no way I can get my husband to pretend to clean while I'm making spaghetti. You must have a helpful husband or one who likes design. Mine won't even look at plans unless I beg him. He just kinda told me to make it awesome. That's why I so, so appreciate the feedback here. :)
- 10 years ago
I have not read all of this, but I noticed that people disagreed with my suggestion that the sink should be closer to the range than the fridge. I do not use my sink that as a prep area, and I almost never take anything from the fridge directly to the sink. I do take things directly from the fridge to the range, however. I did think that a sink in the island was more ideal, but the island was too small. When I cook, I normally take things from the fridge to my peninsula and then from there to the range. The food that I wash the most is potatoes, and other foods I wash before storing them - not while cooking. I like having my range between the fridge and the sink - that is what works the best for me, but everyone cooks differently, and I do not use my kitchen for entertaining.
mo142 thanked Lars - 10 years ago
First let me address Lars. I think myself like most people take our cold stuff out of the fridge, vegetables, meat, etc and then bring it to the sink to wash it and cut it up. I don't wash my vegetables when I get them from the supermarket.
Mo, I like your layout. The only thing that bothers me is I'm worried that everyone coming in from the garage is going to use your work area in the kitchen as a cut across instead of walking around the island between the dining table and the island. Is there a way you can move the bar sink down, and somehow have the opening into the kitchen from that entrance so it opens in such a way that people will not take the shortest route to the rest of the house?
mo142 thanked cpartist mo142
Original Author10 years agoI like the sink where it is unless I add a prep sink, which I'm still thinking about.
If I do add a prep sink and switch the regular sink and range, does the DW still go to the left of the sink? That seems to be the consensus on other threads--DW always to the left of the sink--but then I'd have to go around the DW door to put away things to the left of the DW.
cpartist - thanks! I am also concerned about traffic from the garage through the kitchen. I can't change the kitchen opening without changing the master bedroom layout, and I really like the master bedroom layout right now. I did at least take the half-bath out of the mudroom area to eliminate that traffic.
- 10 years ago
If you don't need a desk with a big surface area a tall secretary cabinet in the living room or dining room looks nice and you can just close the flap to hide the clutter. You could have a separate command center in the kitchen for the phone chargers and things.
@lars - washing your produce before you store it tends to make it not keep as long. Most people wash things right before they prep them.
- 10 years ago
No dishwasher goes to wherever it is out of the work zone, so if you switch sink with range, then your sink would go on the right.
I know that no matter how many times I would have told my kids to walk around, they'd still run through. It's human nature to take the shortest path.
Are your master closets each only 4'4" wide? I think your architects must have mislabeled the closet sizes because they certainly don't look that small.
- 10 years ago
btw: I truly understand about liking the way things are arranged and not wanting to change them. I also understand about house size restrictions, etc. If you want to see how much I understand, I've been getting a lot of help in the building a home forum in this thread. It's long but I think you'll see that there is a solution to everything but it might mean thinking outside the box.
If you read through my thread, you'll see that I started with the entrance to my house on one street, and wound up with it on another street. Also you'll see that the things I liked already pretty much stayed the same. I'm at the point now where I actually think I got a better product than from where I started. Here's the thread: Cpartist's House
mo142
Original Author10 years agocpartist - I actually read some of your thread in action the other day. I was routing for the pergola. I think your home will be beautiful and it was great how you had so much help!
About the bedroom, I really wanted a 18x14 bedroom and have gotten it (well, close) after several drafts. I think the closets are labeled correctly. I might try to make the closets and laundry room bigger, depending on how estimates come back (I've sent this to one contractor so far). I'm trying not to make anything under the second floor bigger because the second floor is perfect, but the first floor ends basically where the master bedroom is and the part from our closet to garage is one story, so I have more freedom there.
fishcow - yes, that's a good idea. I started looking at pinterest pics as suggested above and there are some great ways to hide a desk. But then I saw the kitchen/dining reveal for lmgch and loved her simple desk/bar area.
mo142
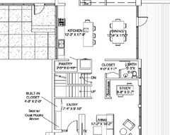
Original Author10 years agoIf I switch the range and sink, then add a prep sink to the cabinet side between the pantry and range, would that work? It'd keep the island free, as I prefer, and better protect the range from traffic, as others have suggested. Not sure if it'd be cramped or fine. The cabinet run is 17'. Here's a 2D version that I put together in sketchup (just discovered it this weekend--so much fun! It's like minecraft for adults).
The bumpout above the range is just a place marker for range hood, the one above the sink is for 4' window. I'll have open shelves in between and on either side.
- 10 years ago
The MINIMUM recommendation for prep area (between prep sink and cooktop) is 36". I have 54" and sometimes wish I had more. I would find it difficult to prep in 36". It would be impossible, imho, to do it in 24". So I would say that no, it's not gonna work. You'll end up doing prep on the island which means you'll have to continually turn and walk across the aisle to the sink. It's do-able if you don't mind dripping on the floor and more steps making it less efficient.
mo142
Original Author10 years agofunkycamper - you're right.
I just need to put the prep sink in the island...it does work so much better.

- 10 years ago
Yes, the prep sink make so much sense in your layout. You have a HUGE island. I really do think you'll have plenty of uninterrupted island space in spite of having a prep sink toward the end. I would put the prep sink in 24-30" from the end of the island to have space to place all my veggies and such for prepping. No less than 24" or I think it would be too narrow and things would start falling off onto the floor.
- 10 years ago
My pantry is 48" wide and 40" deep. I have l-shape of shelving (18" deep shelf on 40" side wall and 18" seed shelf on 48" back wall. I have two pull out drawers at bottom of 48" shelving. I definitely done have enough space to have a party, but with the door open I've always felt I can find what I need.
My shelving is from container store (Elfa system).
- 10 years agolast modified: 10 years ago
I like your inspiration photos, but most have a prep sink on the island :)

mo142
Original Author10 years agoThanks everyone! I've pretty much decided to switch the range and sink in order to protect the range and then add a prep sink to the island, thanks to suggestions above. And I think the pantry size will totally work. I really appreciate the feedback on here. Now time to work on the living room layout...












cpartist