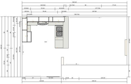
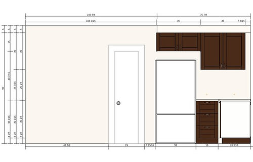
Kitchen layout review needed - kitchen renovation continues...
10 years ago
Featured Answer
Sort by:Oldest
Comments (18)
- 10 years ago
Related Professionals
Corcoran Kitchen & Bathroom Designers · East Islip Kitchen & Bathroom Designers · Reedley Kitchen & Bathroom Designers · Eagle Mountain Kitchen & Bathroom Remodelers · Athens Kitchen & Bathroom Remodelers · North Arlington Kitchen & Bathroom Remodelers · Oceanside Kitchen & Bathroom Remodelers · Winchester Kitchen & Bathroom Remodelers · Bullhead City Cabinets & Cabinetry · Hammond Cabinets & Cabinetry · Warr Acres Cabinets & Cabinetry · Warr Acres Cabinets & Cabinetry · White Oak Cabinets & Cabinetry · North Bay Shore Cabinets & Cabinetry · Pendleton Tile and Stone Contractors- 10 years ago
- 10 years agolast modified: 10 years ago
- 10 years ago
- 10 years ago
- 10 years ago
- 10 years ago
- 10 years ago
- 10 years ago
- 10 years ago
- 10 years ago
- 10 years ago
- 10 years ago
- 10 years ago
- 10 years agolast modified: 10 years ago
Related Stories

KITCHEN SINKSEverything You Need to Know About Farmhouse Sinks
They’re charming, homey, durable, elegant, functional and nostalgic. Those are just a few of the reasons they’re so popular
Full Story
KITCHEN DESIGNCouple Renovates to Spend More Time in the Kitchen
Artistic mosaic tile, custom cabinetry and a thoughtful layout make the most of this modest-size room
Full Story
KITCHEN DESIGNKitchen of the Week: Barn Wood and a Better Layout in an 1800s Georgian
A detailed renovation creates a rustic and warm Pennsylvania kitchen with personality and great flow
Full Story
MOST POPULARHow Much Room Do You Need for a Kitchen Island?
Installing an island can enhance your kitchen in many ways, and with good planning, even smaller kitchens can benefit
Full Story
KITCHEN APPLIANCESLove to Cook? You Need a Fan. Find the Right Kind for You
Don't send budget dollars up in smoke when you need new kitchen ventilation. Here are 9 top types to consider
Full Story
KITCHEN DESIGNKitchen of the Week: Taking Over a Hallway to Add Needed Space
A renovated kitchen’s functional new design is light, bright and full of industrial elements the homeowners love
Full Story
KITCHEN LAYOUTSThe Pros and Cons of 3 Popular Kitchen Layouts
U-shaped, L-shaped or galley? Find out which is best for you and why
Full Story
MODERN ARCHITECTUREThe Case for the Midcentury Modern Kitchen Layout
Before blowing out walls and moving cabinets, consider enhancing the original footprint for style and savings
Full Story
KITCHEN DESIGNKitchen Layouts: Ideas for U-Shaped Kitchens
U-shaped kitchens are great for cooks and guests. Is this one for you?
Full Story
ARCHITECTURERoots of Style: French Eclectic Design Continues to Charm
Hip roofs, towers, quoins ... if your house includes architectural elements like these, you might trace its design lineage to France
Full StorySponsored
DC Area's Award-Winning Interior Designer | 12x Best of Houzz
















huango