Noob attempts kitchen layout
Hi, I've lurked here for years, and now that my own renovation is looming on the horizon I'd love some of your awesome advice on my possible layout.
Right now the kitchen is in a different room, so there's no existing plumbing to work around, but the back door, windows, and hall door would not be easy to move. We will be vaulting our ceiling, so I know venting the hood will be a bit of a challenge, but because of the direction of our floor joists and the room directly below the kitchen, a downdraft hood is not an option.
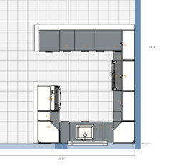
I love to bake, we (mostly my husband) cook a fair amount, but like to keep things pretty simple. We also entertain large-ish groups somewhat frequently, so we're hoping a large island will give plenty of space for people to hang around the kitchen, since that's where they end up anyway.
The dish storage on the left will hopefully be a sweet cabinet/hutch that will house all our dishes and serve-ware. Is it ridiculous to have that outside the main kitchen? It would be near the table where we'll be eating, and I kept the dishwasher nearby, but I'm not entirely confident that it's not a case of function following form.
The open shelves on the right will hold small appliances and my baking canisters.
Any other info I can give?

Thanks for taking a look!
Comments (63)
- 10 years ago
Look...just because some people think it's a horrible idea doesn't mean it's horrible for everyone. I've known people who have moved in to a home with that and then remodel to change it. And I have had clients who remodeled their kitchen, opted for an island range and have loved it. I agree it's not the first best option if it can be avoided but if you've thought through it carefully, have safety concerns taken in to account, and don't mind a hood abstructing the view, then it's totally do-able. Any good kitchen designer would weight all the pros and cons with you. There's lots of great feedback and considerations above as well regarding space, safety, etc., so take it all in, weigh your options and do what's right for you and your family (and resale value of you intend to sell any time in the near future).
- 10 years agolast modified: 10 years ago
Many people say they want their cooktop/range in an island b/c they want to visit while cooking. In reality, cooking is the activity you spend the least amount of time on (and the one you usually need to pay the most attention to without distractions). Here are the stats:
- 70% or more of your time is spent prepping - all aspects of preparing a meal or snack (or preparing a cake), except applying heat
- 10% of your time is spent cooking - actually watching food cook, stirring, adding ingredients, etc.
- 20% or less is spent cleaning up - including clearing the table & counters, wiping down the table & counters, loading the DW, and unloading the DW
So, what should be placed in the most advantageous spot - be it an island or in front of a window? The Prep Zone.
In addition, the Cooking Zone should be in the most protected area - protected from traffic and other activities for safety's sake...that's rarely an island. Think about carrying a pot of boiling water - you don't want to be tripping over/dodging people on the way to the sink to dump it. That includes an open DW door, btw, not just people! You also want to be sure you won't be splattering grease or dowsing people with smoke or scalding hot steam. A hood (overhead hood) is pretty good at taking care of most of these things (except grease that splatters b/f the hood can catch it), but most hoods are not 100%. [Note: hoods should be sized correctly and installed correctly to be effective - too high or small and they can't do their job.]
Related Professionals
Four Corners Kitchen & Bathroom Designers · Beachwood Bathroom Remodelers · Sunrise Manor Bathroom Remodelers · Broadlands Bathroom Remodelers · Fremont Bathroom Remodelers · Mesquite Bathroom Remodelers · Rolling Hills Estates Bathroom Remodelers · Santa Fe Bathroom Remodelers · Joppatowne Bathroom Remodelers · Oakland Park Cabinets & Cabinetry · Sunset Cabinets & Cabinetry · Brentwood Tile and Stone Contractors · Chaparral Tile and Stone Contractors · Boise Design-Build Firms · Schofield Barracks Design-Build Firms- 10 years agolast modified: 10 years ago
Do need a 36" cooktop/range? I understand you want one, but do you need one? When space is at a premium, every inch counts!
- 10 years ago
No way in HE!! I would put a cooktop on a small island. Never, ever, never, ever.
What is going on in the corner left of where you have the dishes hutch planned?
Can the back door next to the hutch move left?
I am sure the folks here are busy thinking of ways to help your kitchen space be a baking zen zone! What exactly do you bake?
- 10 years ago
And, how often? Liking to bake and doing it all the time are two different things! (I know, I like to bake, but outside of Thanksgiving & the Christmas Season, I don't often have time to bake!)
- 10 years ago
Can you move the back door almost all the way over to the wall with the hallway entrance? Something like this? I made the dining area only 10 wide to try to center the exhaust hood on that back wall and get 36" base to the left of the range; that's a bit tight. I did this as quickly as possible, so its not my prettiest drawing but you'll get the idea...


- 10 years agolast modified: 10 years ago
Could you move one window over, then put a panel between them on the
exterior, instead of re-doing the stucco? Maybe make it look like a
niche and hang a planter or other decorative object? Does your stuccoed
house have any arches? You could make the niche echo the shape of an
arch. If you don't want to move the window, what about putting the
cooktop under it?
Cooktops/hoods in front of window

kelsey_drews
Original Author10 years agolast modified: 10 years agoWow! I am absolutely amazed that so many people took the time to weigh in on my little kitchen! You all are amazing!
So, here's a big info dump.
Our current kitchen (pictured below) is very separated from the rest of the house, built for people of average height, and has only one good work space. My goal for the new kitchen is to:
- have it feel connected to the main living space so the person doing the cooking doesn't feel isolated
- choose a set up that works for both me (average height) and my husband (very tall)
- have enough work space in the right places so that the cook isn't running all over the kitchen or trying to work in a space too small for the project.
I'm not a pro baker, but I bake a few times a week. Usually loaves of bread on the weekend and desserts or snacks 1-2 nights per week. I'd like to bake even more, and maybe learn to cook better, but right now spending any long period of time in the kitchen kinda feels like being grounded since I can't interact with the rest of the house. My husband is a good cook, but most of our meals are pretty simple and straight forward.
Because of my husband's height the wall ovens are really necessary. We could probably make do with one, but I have had a few situations where I had to use my sister's oven or even our toaster oven because mine was full, so I think we'd end up using them both.
I'm not sure that we NEED a 36" range, but since I also do a fair bit of canning I thought a bigger cooktop would be nice. Plus it's frequently listed as people's favorite feature of their remodeled kitchens.
So here's what the main floor looks like now (not to scale, just for reference)

Here's what I hope to end up with

Because of where the garage will need to attach and where the basement egress windows are I really can't move the back door.
The deck, breezeway, and garage will all be part of a later remodel, once the dust (and our bank account) has settled from knocking down all those walls.
The master bedroom will change around a lot I'm sure, but that's a problem for another day.
Is it ok to have the ovens next to the fridge? I thought I had read somewhere that extra heat from the ovens could cause problems for the coils on the fridge. If that's not true I love the idea of moving them over to be on the same wall!
@mothergoose - Other people talked me out of the idea of having the cooktop in front of a window because it could be a pain to clean, but if there's a way around that I'm open to that as well!
It seems that I've stirred up a hornet's nest re: cooktops in islands. I have family who's kitchens are arranged this way and they love it, but I don't have strong feelings either way. I definitely would have to do an overhead vent no matter where it is, so visually I would love to not need a hood blocking my view. On the other hand I like the idea of being able to face the room while cooking, then I might not be so tempted to walk away and burn whatever needed stirring! I also think that I could make the island a full 50" deep, which might reduce the safety concerns, especially since it wouldn't be our eating area.
@nightowl - Next to the hutch in the corner I'm hoping to have shelves for my plants since it's the SE corner and gets great light.
@LoraLogan - I will definitely have to get a lazy susan for that corner, or maybe a super susan since everyone seems to love them!
ETA: Just realized these images are upside down compared to the first set! That's what I get for using two different programs for my plans. The new images are more accurate since up=North. Sorry!kelsey_drews
Original Author10 years agoSince my measurements might not be very easy to read, here they are in the format buehl suggested

A = 10'8" This has a 40" window 1" from the corner
B = 2'6"
C = 2'6"
D = 5'10"
E = 6'
F = 10'
G = 2'6"
H = 13'4"
I (2 measurements - width x length of stairs in the space) = Stairs are 13'2"x3'6"
J = Ignore this, the opening for the stairs will go all the way to the wall. Sorry!
K = 102" Window
L = 41" (current measurement, but I want either one bigger door, or double doors)
M = 40" (current)
N =5'10" (current)
O = 44" Window
P =1"
Q = 6'6" (rough estimate, no deck doors have been chosen) This also has a 44" window 1" from the corner
R = 12' (maybe? possibly french doors with stationary "fake" doors on either side?)
S = 6'6" (rough estimate, no deck doors have been chosen) This has a 40" window 1" from the corner
- 10 years agolast modified: 10 years ago
kelsey_drews, I included a link to images of ranges and cooktops under windows, but here's another one with GW discussions on the subject. You might also start a thread asking how those whose cooktops are under windows like that layout.
In addition, here are links to GW discussions--ovens beside fridge. I've read that there is no reason that they can't be side-by-side, except that it's easier to dent the fridge door when opening it, if the oven door is open.
- 10 years agolast modified: 10 years ago
We did a gut renovation of a house--completed last year--after spending a year working on the floor plan of the 1200 sf house within the existing footprint (added a bathroom, added a bedroom, moved the kitchen, the whole enchilada.) I think you can do A LOT better with the floor plan and the space you have available to you. Our renovation cost an additional 75% above the cost of the property. If you're making such an investment too I think it's worth a bit more time to reconsider these changes.
kelsey_drews
Original Author10 years ago@mama goose - That's great! If the ovens don't have to be off on their own it makes things a lot easier!
@benjesbride - We've been playing with the floor plan for a while, and this doesn't show any of the things we're doing in the basement, but it's more complicated than I'd expected. Any ideas or advice would be welcome. I wish we had your budget to work with! :) Unfortunately a big chunk of ours will be spent insulating against these brutal Minnesota winters.
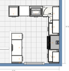
Ok, here's another try. I got rid of the controversial island cooktop and moved the ovens over with the other tall things. I also discovered that you can add couches and furniture in the Ikea planner, so I stuck in a few as place holders to give a better idea of what I'm hoping for. The big yellow thing is the stairs going down to the basement. The white thing in the corner represents open shelves holding appliances.
The view from the front door

What do you think?Thanks again!
- 10 years ago
I didn't think it was fair to criticize your plan without offering an alternative, so I played around with it for a minute. Basically just moved the stair to bedroom 1 to open up the living space. Of course, nothing is to scale.

- 10 years agolast modified: 10 years ago
Why are you putting the stair in the living room? Your planned living room space looks very odd.
If I gave the impression we had a huge budget, I mislead you. We bought in 2013 before the market rebounded and the house was considered a tear down by everyone except me. The property was the equivalent cost to an empty lot.
My advice is to have the best GC on board that you can afford. If it wasn't for ours being a wonderful communicator who is incredibly organized I probably would have lost my mind. Also, I think time spent planning is time well spent. I analyzed every detail of this house and drove my husband crazy, but once the project got underway there were no change orders and it went incredibly smooth; only about 7 weeks from gutted space to paint.
- 10 years ago
If you are looking for a few distractions, here are some blogs that did major wall removing, ceiling vaulting renovations on their homes: http://www.housetweaking.com/current-house/ and http://www.4men1lady.com/kitchen-living-dining-reveal/ and http://chezerbey.com/tour/
kelsey_drews
Original Author10 years ago@benjesbride - I love House Tweaking, her home is one of my main inspirations! Can't wait to check out the other two!
We're both pretty handy, so we'll only be hiring others to install spray foam insulation and tie the new plumbing into our main drain under our slab. It'll definitely take us longer than 7 weeks (I'm jealous!) but so long as we're insulated before the snow falls I'll be happy.
Finding a new place for the stairs has been one of the hardest parts of this whole plan! Our house is divided into thirds. The green lines show where there are load supporting beams. Our basement has 7' ceilings, and the beams drop that by 10", so that makes the space below the beams 6'2" unfinished, finished it's about mid-forehead on my husband. :(

So stairs cannot cross any of the green lines, and the furnace, water heater, and chimney all fall within the purple box, which restricts it further.
We will put a master suite upstairs, but we want to keep it a 3 bedroom house. Also we want to add a full bath in the basement. This is the basement plan I've come up with:

This gives us two bedrooms, a full bath, a utility area, and the center area as a cozy rumpus room/home theater. Plus we'd get a lot of light coming through the stairwell.Husband absolutely hates any staircase with a landing/turn, so a switchback staircase would not get his stamp of approval. It took a lot of measuring and discussion to convince him that the plan above wouldn't be too claustrophobic at the bottom of the stairs.
I couldn't figure out a better place for the stairs that fit our needs, but would be open to any suggestions! It is a problem that has literally kept me up at night!
- 10 years ago
I think the stairs in the front of the living room are a bad idea. Very bad. Hopefully others will weigh in.
Will your husband compromise on the stairs with a landing if they are generously sized? Like 42 inches wide with room for a reading nook/bench on the landing or something? I'd go to the mat for staircase location because (as you know) it's dictating the rest of the house. And not in a good way.
- 10 years ago
Maybe something like this (even though you'll have fewer stairs because of the basement ceiling height) with the existing bedroom window above. It would be a neat feature.

- 10 years ago
Stairs without a landing are a safety hazard.
You didn't give your age or your family makeup. What does that consist of?
kelsey_drews
Original Author10 years agoIf they're open enough he could maybe be convinced, but it still leaves me with the issue of finding a place where they don't cross a beam and don't eliminate one of the bedrooms. I hit a wall (hahaha) on this a few months ago and decided that the plan above was the best I could come up with. I also consulted with my architect father-in-law, who has been incredibly busy and not able to spend much time on our pro-bono project. He didn't see any alternatives either. Since we have a few things we're not willing to budge on, like two bedrooms downstairs and an open plan with extra windows upstairs, it seems like we've found the lesser of the evils. I'm planning on adding a well insulated and heated vestibule when we add the front porch, which will keep people from bunching up near the top of the stairs to take off boots and coats. We'll also be adding bookcases that will fill the wall behind the stairs from the basement floor to at least the bottom of the upstairs windows, which will hopefully make the stairs more interesting and less of an afterthought.
I'm still very interested in any suggestions, maybe a fresh set of eyes can come up with a solution that my weary ones missed.
It's so funny, when I posted my original plan I was worried I'd be scolded for having my dish storage in the dining room! I had no idea I'd end up posting the basement plans and re-thinking the stairs!
kelsey_drews
Original Author10 years ago@cpartist - I'm 29 and he's 35. No kids now, just 2 cats and a spider. Maybe kids in the future? We're not sure yet, so we're trying to build a space that would suit our needs either way, which is not very easy.
When I say he doesn't like stairs with a landing I really mean that he likes stairs that descend straight and end facing the room, not a wall. Not sure if I'm describing that well. Basically if it would be hard to move a large piece of furniture through, then he wouldn't like it. I suspect it's because he's been asked to "help" move too many hide-a-bed couches into too many tiny apartments. :)
- 10 years ago
The next phase of our construction is going to be underpinning because our basement is a smidge over 6 feet, as is my husband and he has to bend to go under the beams. When hes down there and I hear a boom I know he hit his head (again.)
If you're in this house for the long haul, have you considered underpinning someday? If this house is short-term that's another story. Its a bummer to invest so much in that basement when your husband can't even walk upright across it. Here's another blog that got started with a basement underpinning project. 8 foot 6.
kelsey_drews
Original Author10 years agoWe looked into underpinning and also jacking up the house, since we do hope to live here until we die. Unfortunately both are so far outside our price range that they're really not an option. We love our little house and want to make it into the best version of itself, but we don't want to be so much in debt that we can't travel or enjoy our other hobbies.
- 10 years ago
Regarding the basement... Its not desirable to have an entertaining space between the bedrooms and the bathroom. If you want suggestions for alternate layouts, please post the basement with the things that cannot be moved.
- 10 years agolast modified: 10 years ago
If you plan on children I would not eliminate that 2nd bedroom near the master. My kids are 3 and 6 and I would not want them on a separate floor from me. No way.
kelsey_drews
Original Author10 years agoThe current upstairs bedrooms are really too small to be useful. I know lots of people like to have all the bedrooms on the same floor, but that really isn't possible for us. I like the idea of the bathroom not against the bedrooms because we can leave the plumbing wall open to the utility room and keep all our water use near the water heater. Plus if someone is sleeping in one of the rooms they won't be woken up by someone using the bathroom.
- 10 years ago
It's good to think through all the scenarios like plumbing noise and stuff. Another consideration is the sound from a home theater next to the kids rooms. DH and I like to watch movies after the kids go to bed and I don't know that we could if our TV was in the room next to where the kids sleep.
kelsey_drews
Original Author10 years agoWe're really very happy with our basement plan. If we ever end up having kids I'm sure lots of our habits will have to change, but we'll cross that bridge if we come to it. Right now my main priority is deciding where the appliances in the kitchen belong so we can plumb them at the same time as the basement bathroom.
I'm thinking about moving the sink and dishwasher to the island unless there's reasons to avoid that too. Then I could have my space for "baking zen" (I love that phrase!) where my cleanup zone was. Looks like I'll be playing with ikea some more tonight.
Any reason to avoid a sink or dishwasher in an island?
Maybe the increased visibility will help keep us motivated to stay on top of the dirty dishes!
- 10 years agolast modified: 10 years ago
The work area of my kitchen is an L similar in size to yours. I have a mobile (in theory) island with no plumbing or electrical, so I'm imagining how you will work in the plan you posted yesterday. You have a basic, functional plan for a small space, but personally, I think the hood is crowding the window, and the open cabinet in the upper corner might be difficult to access. If you make it standard 12" depth, that problem might be solved.
There are arguments for not putting your clean-up mess on the island, but I think function would be improved in this case, and you'd have your baking area on the back wall.
Another personal preference--I like the look of ovens next to a fridge, without the cabinet separating them. You might consider putting the pantry on the right side of the fridge, with doors that open on the side--it would be much easier to access. That would put the ovens closer to the corner, so it would work better if the sink is on the island and the cooktop is moved over.

kelsey_drews
Original Author10 years agoI love the cabinet that opens to the side! That'll be way more practical as a pantry!
I agree that the corner cabinet seems weird, I'll try the shallower depth tonight.
I really like the look of the cook top in front of the windows. Maybe I'll try hooking an old storm window behind our current range for a while and then I'll have a better idea of how often I'll have to clean it.
- 10 years ago
Just know that some municipalities do not permit cooktops in front of windows.
kelsey_drews
Original Author10 years ago@sjhockeyfan - thanks! I'll take a look at our city's code before I get my heart set on it!
- 10 years ago
Hi Kelsey! Welcome to the kitchen forum and congratulations on your forever home! How very exciting!
I just want to remind you that this is YOUR house. YOU know the budget, YOU understand the architecture. YOU stated clearly in your OP that you can't move the wall, the door, the stairs (because you've really studied the matter) and don't want to mess with the window.
The challenge, then, for the gurus who are helping you, is to come up with the best kitchen layout possible, while respecting the parameters you have laid down. That's what they tell you they will do in the "How to ask for layout help," which is a great thread that I would encourage you to read.
I will leave you with one piece of advice. If this is indeed the house you plan to die in, then either plan now for the possibility that you will be lucky enough to get old before you die, or plan for another major remodel in about twenty years. Or perhaps some things now and some things later. Just be aware that some things that work great when you're thirty won't be as great when you're sixty or seventy or eighty. Don't get caught in a financial position of needing modifications you can't afford.
On a brighter note, congratulations once again on your home! I hope you get your insulation soon! Brrrrr!!!! :-)
kelsey_drews
Original Author10 years agoThanks again everyone!
Based on the recommendations here is what I put together, along with potential work zones.

And the view from the front door
I stole the slightly larger windows from another part of the house (they had to be swapped out anyways) so now I have a pair of 40" instead of 35". I pulled the cabinets away from the right wall so that we can get a standard depth fridge and have it feel more like a counter depth. I will have to wait to hear back from the city on whether they allow the cooktop in front of the a window, and obviously we won't be opening the bottom halves of the windows, but we both really like the look of it. I can't wait to roll out a pie crust on that huge back counter!
Is it a bad idea to have the DW across from the sink? I like having the sink off-centered in the island, but maybe it's not worth it?
@Debbie B - thanks for your encouraging words! I widened the doorways to make them wheelchair accessible, because that will be much easier to do when the walls are opened up, and wide doorways are nice even if you're not in a wheelchair. I'm also hoping that by using drawers in all the lower cabinets we won't be stooping down as much, so that'll be easier on our backs. I'm sure as we age we'll make more changes, but I'm hoping for sweet robo-legs when I'm an old granny. :)
- 10 years ago
Are you doing a standard 24" wide dishwasher-36" sink-24" base cab on the island?
- 10 years agolast modified: 10 years ago
Bigger windows are better. :) I like the new plan, except for the DW
across the aisle from the sink. Can you make the island 6" wider, and
put the DW beside the sink? With 90" of cabinetry and 2" overhang,
that's 92", still short enough for one slab. Or go for 8' + overhang, and make your sink base 36". The aisle between the island and fridge could be reduced to 42" since it's not a work aisle.You could then store dishes
in the 24" drawer base across the aisle, with pots and pans in 36"
drawers under the cooktop. You might consider making the two 18" bases
beside the cooktop 36" drawers, too--you'll lose space with two smaller
drawers, and one wider drawer can be divided with thin inserts. kelsey_drews
Original Author10 years ago@benjesbride - I had it in that order at first, but it felt like a ton of space next to the sink. I changed it to be an 18" cab, 30" sink, then 2 more 18"cabs. We're thinking a single basin sink might fit our needs, so I've been planning on a 30" sink cab. It has been many years since I've had a DW, so I'm not very familiar with where it should go.
- 10 years ago
I don't recall where you are at in the demo phase of your project, but if you're able (and haven't done so already) I recommend marking out your spaces on the floor (I used my kids' chalk on the subfloor) and roughly mocking up your kitchen, your dining table, your sofa locations with boxes or saw horses or whatever you have on hand.
Doing this really helped me visualize sight lines and traffic patterns and such. We designed everything in SketchUP, but the best way for me to process my design decisions was to be in the space. I'm sure the neighbors thought I was nuts moving stuff around in a gutted house night after night, but I'm glad I did.
kelsey_drews
Original Author10 years ago@mama goose - I want bigger windows everywhere! I can definitely put the DW next to the sink. That'll be easier to plumb too! I hadn't thought about the space lost with multiple small drawers, I'll have to consolidate some of them.
kelsey_drews
Original Author10 years ago@benjesbride - We haven't started demo on the main floor yet, but once the walls are out of the way we'll have to try that! We have measured out spaces on our long dining room table and pretended to cook at it, but that only gets you so far.
- 10 years ago
Is moving the door to the right out? That was my favorite so far. No corners!
I couldn't live with the DW across like that. - just an FYI.
kelsey_drews
Original Author10 years ago@nightowl - Yeah, between 2 egress window wells, a large tree, and my desire to someday attach a garage, there's really no way to move the back door. Based on everyone's feedback I'll definitely be moving the DW over next to the sink.
- 10 years ago
Kelsey, you're latest plan is very similar to mine. Moving my sink from under the window to the island was the best decision I made. It gave me 8 1/2' of workspace to the left of my stove which is my baking space, and 4' to the right where I off load and cool baked goods. I love prepping and working at the island with family right there. I also like that I can pivot and get into my protected cooking zone yet not be far from the action. I love this layout as its great to cook in and also to hang in. My DW is to the right of my sink on the island. My dishes and some glassware are directly across. I've got IKEA cabs. The corner Susan holds a ton of small appliances. What appliances are you planning to put on your shelves? I keep my huge kitchen aid in a 24" cab beside the range. If at all possible, get as many 30 and 36" base drawers as possible. I have two 36" and a 30. Hope this helps to visualize your space.

- 10 years agolast modified: 10 years ago
So - can you move the door left then? Of course bbtrix is better, but if you want another visual - here you go -this one has the wall ovens.

kelsey_drews
Original Author10 years ago@bbtrix - Your kitchen is beautiful! I'm so glad to hear that the layout works well for you!
I'm planning to have my mixer and toaster on the bottom shelf/counter top, the microwave above that (it's pretty small), and I was planning on having all the little things (air popper, blender, food processor) above those. I'm rethinking those top shelves now, putting them below on a lazy susan seems pretty ideal! Then I could put my cookbooks, baking canisters, and other cute stuff there where they'd be visible. I have some open shelves in our current kitchen and they've been really useful.
@nightowl - The door is pretty much stuck where it is. There are egress window wells on both sides, so I could only move it about a foot in either direction.
I love the image with the wall ovens! It's good to see islands with sinks that look so clean and inviting!
kelsey_drews
Original Author10 years agoOur code allows the stove on front of the window! Even with a working window and a gas cook top! I'm so relieved. I had already started dreaming about that big chunk of work space, so to have to chop it up would have been disappointing.
I moved the DW, consolidated a few smaller drawers, and ended up with this!

I've gone from really overwhelmed and apprehensive to enthusiastically excited over the course of 3 days. Seeing other similar kitchens and getting everyone's opinions has made this project seem like something I can actually pull off! We still have to do basement work before we can start knocking down walls, but now I'm more confident that we'll be running plumbing to the right place.Any other changes/tragic mistakes that I should consider?
- 10 years ago
Even though you can place a stove in front of a window I wouldn't want to do that, so much harder to clean and I hate cleaning my current tile backslash which really is fairly easy, but still easy to hit my head when I do it on the hood. Next kitchen I'm not wanting any nooks or crannies behind the stove. Since you are replacing the current window can't you do windows flanking the stove on each side. This will spread the light out into a the kitchen too.
- 10 years ago
I like your plan. I think glass is pretty easy to clean and you will have a hood, so not too worried about your cooktop there unless you fry stuff in grease and let it splatter all over constantly! We only had a painted BS behind the range in our original kitchen and a wipe once in a while was fine. You certainly have to balance things you can't have everything perfect when doing a remodel because of existing constraints!
We are in the midst of our kitchen remodel right now. We have a small kitchen but opened up the wall to the dining/living area and removed the counter under the window in order to gain drawer space and walking space, moved the sink to the peninsula. A peninsula is another option for you but I think your wall of fridge/ovens looks good. I would fill that corner with full cabinets though and not have a recessed area that might be hard to reach (to the left of the ovens).
Here is our original floor plan - approximated as it was not an Ikea kitchen. The wall at the top had a "pass through" window to DR, the fridge was awkwardly placed in the middle of the wall and DW right next to it (more dead space than shown here with Ikea cabinets, no super susans) and the range was right next to the doorway with the light switch above it! Opening any appliance meant no one else could walk around in the room.This is the new layout for our Ikea kitchen, after much guidance from this forum. We also considered cooktop on the peninsula but we decided against it not only due to the visual interference of the hood, but because DH was worried our cats - who are not allowed on the counters but are occasionally naughty - might jump up there and get burned or cause an accident... and when we entertain we use that area as a "buffet" and even with the cooktop not in use we worried that guests settling down dishes etc might crack the cooktop by being careless. So instead, at somewhat increased expense due to labor (we are on concrete slab) we moved the sink and DW to the peninsula and I think we will be very happy with this layout. When we entertain, dirty dishes can be easily loaded into the DW right from the peninsula. The range will be safely off to the side, and we have a great food storage wall with pantries/fridge.
The floorplan doesn't show but we will have an overhand toward the DR, the counter will be 36" on the peninsula but no cabinets on that side as 15" more was too much stolen from the DR.


- 10 years ago
This GW thread discusses using a baking sheet to protect a backsplash, but the idea would be the same if temporarily protecting a window when frying or making something really messy, such as tomato sauce.
kelsey_drews
Original Author9 years ago@lyfia - Currently we're just making an existing window hole bigger, so that won't require much stucco patching. If we were to remove the window that's currently behind the cook top there would be a large patch of stucco that would need to be patched. It wouldn't be the end of the world, but I'd like to avoid it, especially since our house doesn't have any panels or arches or other exterior features that I could try to match to camouflage the patch job.
I showed the latest plan to my husband and he absolutely loves it. So much that when I suggested moving the stove he was really disappointed. Since he does most of the kitchen cleaning and actual cooking, I figure if he's happy then I'm happy.
@tmnca - your new kitchen is such a huge improvement! I never would have thought of removing the cabinets along the window wall, but that makes it seem so much bigger! I played with the idea of a peninsula, but it seemed to create a dead end that didn't flow well with the rest of the room. I totally agree with what you said about accepting existing constraints, and trying to find the best solution within that space.
@mama goose - I was just talking to a metalworker friend last night about making a custom piece that could fit in front of the window for messy cooking projects and then stash under the stove when not in use. Maybe with hinged arms so it will stand up nicely like a splatter shield? He thinks it's a great idea, and even suggested adding some decorative elements in case we decide to leave it out all the time. We will probably steal the idea of using a big cookie sheet to test it out before commissioning the actual piece.











Buehl